-
Köpa
Köpa -
Sälja
Sälja - Hitta bostad
- Skapa bevakning
- Hitta mäklare
Drömboende i Edsåsdalen
Edsåsdalen, Åre
*Areauppgifter enligt taxeringsinformationen
Spännande villa med det där lilla extra som passar både permanent och fritidsboende som handen i handsken.
Upplev fjällkänslan året runt i denna moderna villa från 2022, perfekt placerad med utsikt över fjällen och skidbacken runt hörnet. Här möts stilren design och funktion – 158 kvm i två plan med öppna sociala ytor, eldstad, generös altan i söderläge och balkong med magisk vy.
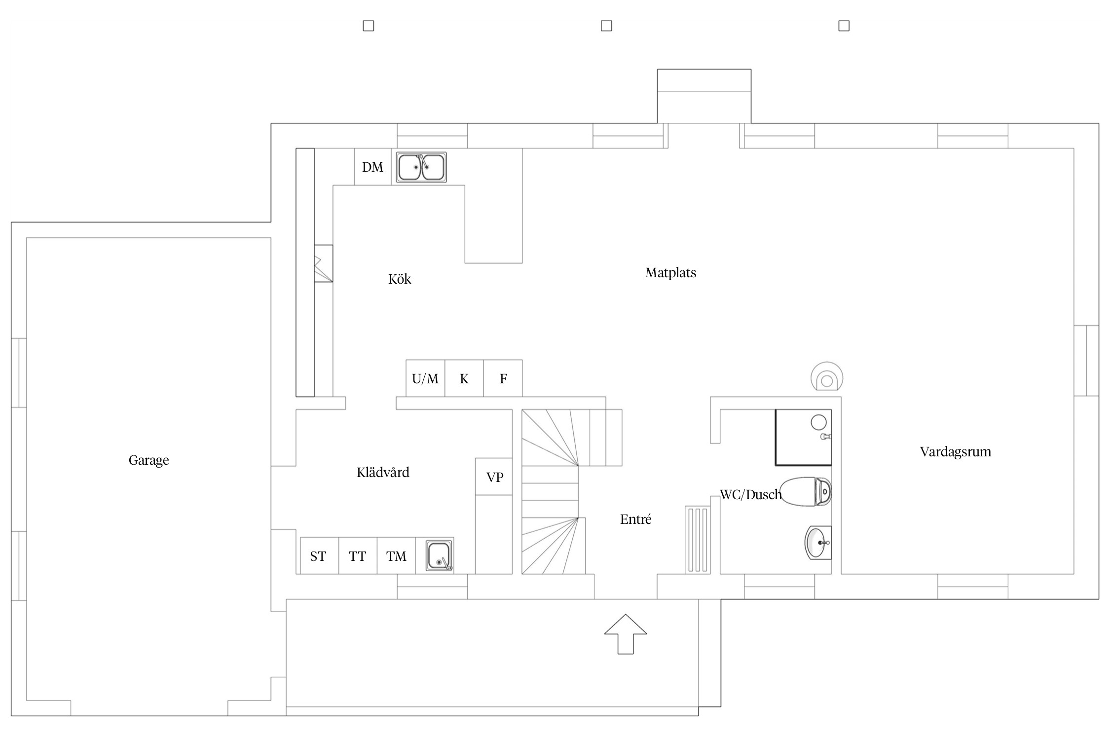
Entréplan:
Välkomnande entré under tak vidare in till generös hall, vackert helkaklat badrum med fönster, wc, handfat och dusch.
Vackert kök, fullt utrustat kök med anslutande matplats och vardagsrum i öppen planlösning där vinkeln på vardagsrummet enkelt kan bli det fjärde sovrummet om så önskas. Mellan matplats och vardagsrummet finns en eldstad samt utgången till en generös altan i söderläge men utsikt över fjällen.
I anslutning till köket ligger tvättstugan med dörr direkt till garaget som är ljust och fräscht med fjärrstyrd port samt separat dörr som groventré vilket gör livet på fjället enkelt och praktiskt.
Övervåning:
Via en rejäl trapp från entrén kliver man upp mitt i övervåningen till ett ljust vardagsrum med utgång till balkong och samma fina utsikt som från altanen. Här finns också tre fint disponerade sovrum i var sitt hörn av våningen. Master bedroom har en rejäl klädkammare och utgång till balkongen. Badrum med fönster, wc, handfat, dusch samt ett badkar att värma sig i efter en dag på fjället.
Villan är fint placerad på på Vajavägen med praktisk access snett bakifrån och med framsidan i en vacker södersluttning, tomten är delvist anlagd med gräsmatta, fruktträd och bärbuskar och några trevliga granar som avgränsning till grannarna.
Huset är levererat av BRA hus som ännu en gång har levererat ett rejält hus som ger ett gediget och mycket välbyggt intryck, snyggt inrett och trevliga materialval tillsammans med ett fint arbetsutförande gör detta hus till något utöver det vanliga.
Bergvärme och vattenburen golvvärme borgar för låga driftskostnader.
Kvalitet och komfort
Byggt av BRA Hus med gedigna materialval och hög finish – ett hem som andas kvalitet. Bergvärme med vattenburen golvvärme och radiatorer ger både komfort och låga driftskostnader.
Alpina skidbacken ligger på andra sidan av vägen och man tar sig enkelt till och från huset till skidåkningen.
Edsåsdalens längdspår blir en positiv överraskning för er som inte varit där tidigare, kända för naturupplevelsen och att vara mycket fint preparerade.
Skoteråkning är enkelt med access till VÄSEK´s leder.
Vita Renen uppe på Renfjället bjuder på en fin upplevelse med god mat, hit tar man sig antingen med skoter eller turskidor, här finns också en trevlig lite skidbacke med släplift.



Entréplan
Övervåning
Dalen 1:46
*Areauppgifter enligt taxeringsinformationen
Kopplat garage
Altan i söderläge runt huset samt balkong
Kommunalt vatten, Kommunalt avlopp.
Trädgård och skogstomt
Plats för 2 bilar utvändigt samt garage
Detaljplan (1990-03-08)
Gemensamhetsanläggning: Åre dalen ga:5 ändamål: Vägar, Vattenförsörjning, Avloppsanläggning, Kvartersanläggning
TV: Via fiber Internet: Öppet fiber
Elförbrukning och uppvärmning under samma kostnad, 13.893kWh/år beräknat mot 1,62:-/kWh
Samfälligheten omfattar, vatten/avlopp, väg/snöröjning samt sopor.
Övrigt avser skottning av egen uppfart, säljaren har gjort det själv men räkna med ca 3.000:-/år om man låter plogbilen snöröja.
Sväng av E14 vid Undersåker mot Trillevallen, Ottsjö och Edsåsdalen, efter att passera Indalsälven tar ni direkt höger mot Edsåsdalen och följer vägen i ca 10 minuter. Efter att ha passerat Köja Fjällhotell och Sportboden fortsätter ni en dryg kilometer och vägen börjar klättra upp på fjället. Vajavägen ligger som en egen liten krok på höger sida ca 700 meter upp.
Det finns 2 st pantbrev uttagna om sammanlagt 4 018 000 kr
Edsåsdalen är en genuin fjällby 8 km söder om Undersåker på sydsluttningen av Renfjället. Orten har eget liftsystem, många längdspår, husvagnscamping och fina fiskevatten. I området finns både fritidshusområden blandat med permanentbostäder. Uppe på Renfjället finns fjällvärldens kanske mest kända våffelstuga - Vita Renen.
Köpa, sälja eller värdera bostad i Edsåsdalen? Kontakta våra mäklare i Åre! Passa också på att anmäla dig till vår kostnadsfria söktjänst Boagenten som hjälper dig att hitta ditt drömboende.
Kontakta mäklaren om du behöver hjälp att ta fram en boendekalkyl.
När du köper din bostad genom Bjurfors kan du ansöka om bolån till en förmånlig ränta hos våra banksamarbetspartners Söderberg & Partners och SEB.
Ansvarig mäklare