-
Köpa
Köpa -
Sälja
Sälja - Hitta bostad
- Skapa bevakning
- Hitta mäklare
Gårdsdröm i Kvitsle
Kvitsle, Åre
Unik gård i Kvitsle med 6 ha mark, charmigt hus om 199 kvm med bergvärme, ladugård, carport, egen strand, båthus med vedeldad bastu i naturnära läge!
Välkommen till en charmig gård i idylliska Kvitsle, strax utanför Mattmar - ett unikt boende för dig som söker livskvalitet med egen strandremsa, båthus med vedeldad bastu och privat brygga i lantliga omgivningar. Här erbjuds en sällsynt möjlighet att kombinera gårdsliv med närhet till vatten och natur. Gården omfattar cirka 6 hektar mark, varav omkring 4 hektar skog och 2 hektar åkermark, vilket ger fina förutsättningar för hästhage, odling, mindre djurhållning eller ett aktivt liv på landet.
Det bevarade boningshuset i tre plan om 199 kvm sammanlagd yta förenar klassisk gårdscharm med moderna bekvämligheter. Entréplanet välkomnar med en rymlig hall, kaklat badrum med dusch och wc, ett stort och ljust vardagsrum samt ett stilrent och fullutrustat arbetskök från Storsjökök. I direkt anslutning till köket finns en separat matplats med gott om utrymme för ett större matbord – en naturlig samlingspunkt för familj och vänner. Det övre planet rymmer fyra rogivande sovrum, wc-rum samt en generös, isolerad balkong med öppningsbart fönsterparti. I källarplanet finns en praktisk matkällare samt tvättstuga. Här erbjuds även ett avkopplande duschrum med bastu. Vidare finns ett generöst hobbyrum med bergvärmeanläggning och groventré. I pannrummet finns fortfarande en fungerande vedpanna som är utrustad med dubbla ackumulatortankar. Källaren erbjuder goda förvaringsutrymmen.
Gårdsbilden kompletteras av en ladugård i två plan om cirka 150 kvm med goda förvaringsytor och möjligheter till djurhållning eller varför inte skapa en festvåning på den rymliga logen. På tomten finns även en lekstuga, en rymlig carport med plats för två bilar samt en gårdsverkstad med förråd om cirka 50 kvm. Nere vid den egna strandlinjen finns ett charmigt timrat båthus med vedeldad bastu och en privat brygga – en oslagbar plats för bad, fiske, båtturer på Storsjön, bastubad och avkoppling året runt, oavsett säsong.
Kvitsle är en rofylld och genuin by i lantlig miljö strax utanför Mattmar. Området präglas av öppna landskap, vacker natur och ett lugnt vardagsliv med närhet till skog, friluftsliv och den jämtländska fjällvärlden – inte minst Åre och Bydalen. Storsjön nås från fastigheten och erbjuder möjligheter till bad, fiske, båtturer och rekreation. Samtidigt finns service, förskola och kommunikationer i Mattmar, närmaste skolor finns i Mörsil och Hallen. Via smidigt pendlingsavstånd når du både Åre och Östersund.
Ett naturnära och harmoniskt boende med stora möjligheter – en gård att trivas på, leva i och njuta av året om.
.
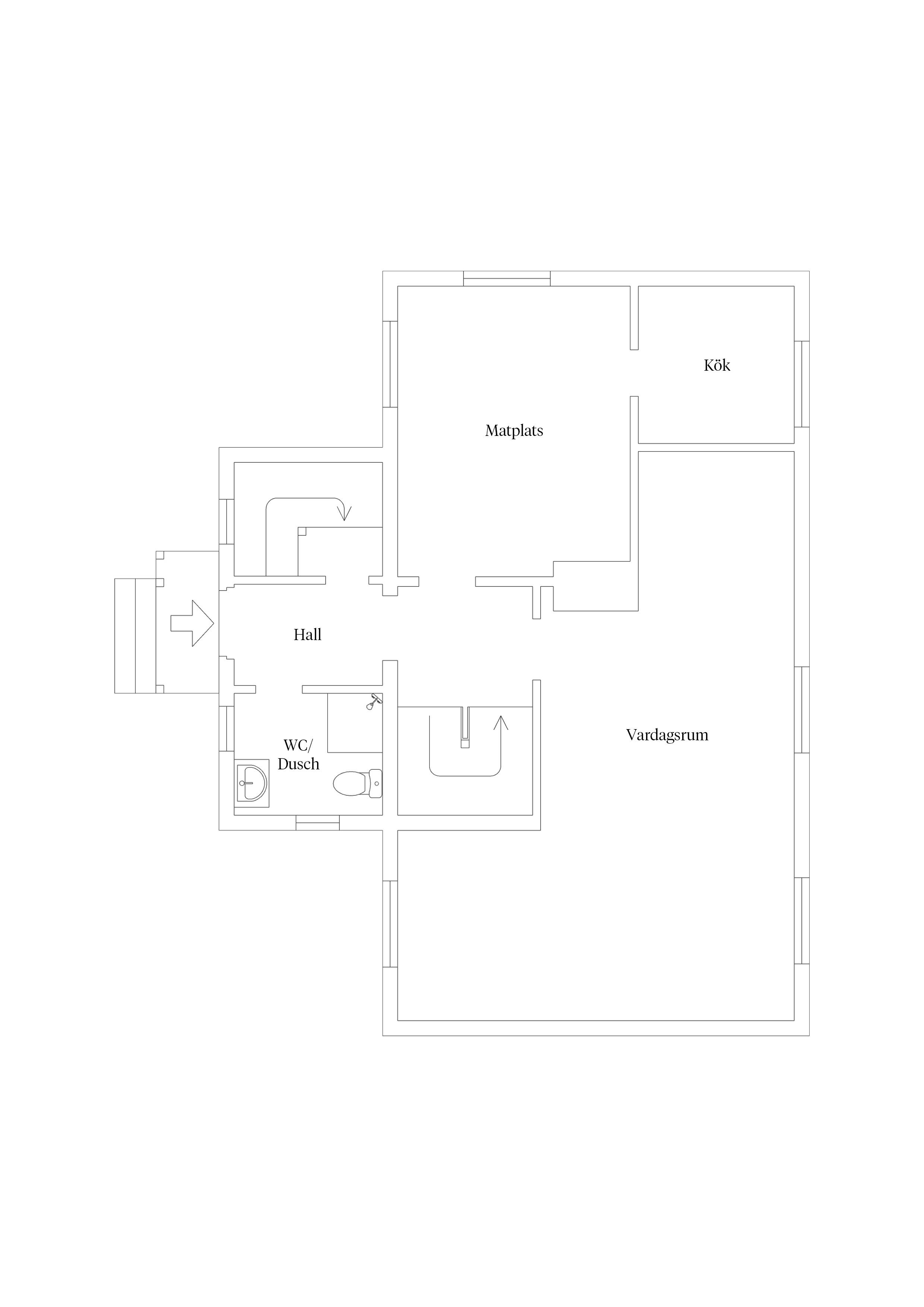
HALL
Välkomnande hall med utrymme till klädavhängning. Hallen förgrenar mot våningsplanets samtliga rum och härifrån går trappa till källare och trappa till övre plan. i hallens inre del finns trappskrubb och garderob. Hallen har klinkergolv med golvvärme.
BADRUM
Helkaklat badrum med vattenburen golvvärme. Här finns dusch med vikbara duschväggar, WC, väggskåp, handfat med underskåp och spegelskåp.
MATRUM
I anslutning till köket ligger matrummet, parkettgolv och målade väggar. Här står fullstor kyl och frys.
KÖK
Stilrent arbetskök från Storsjökök som renoverades 2011. Köket är utrustat med fläkt, spis med häll och diskmaskin. Köket har gott om utrymme på arbetsbänkarna och erbjuder bra förvaring i skåp och lådor. Kakel som stänkskydd ovan arbetsbänkarna. Laminatgolv och målade väggar.
VARDAGSRUM
Rymligt vardagsrum som med dess disposition ger möjlighet till både tv-hörna och matsal. Vardagsrummet har trevliga fönstersättningar mot två väderstreck och erbjuder även utsikt mot Kvitsleströmmen. Parkettgolv och tapetserade väggar.
HALL ÖVRE PLAN
Hallen på övre plan förgrenas mot våningsplanets samtliga sovrum och WC-rummet. Här är det målade väggar och laminatgolv. Platsbyggd garderob finns till förvaring.
SOVRUM 1
Rymligt sovrum med härliga fönstersättningar. Panelade väggar och plastmatta.
WC-RUM
Mindre WC-rum med handfat, WC och spegel. Målade väggar och plastmatta.
SOVRUM 2
Rogivande sovrum med platsbyggd garderob. Laminatgolv och tapetserade väggar.
SOVRUM 3
Föräldrasovrum med två platsbyggda garderober i nisch. Tapetserade väggar och laminatgolv.
SOVRUM 4
Sovrum med åtkomst till den rymliga och inglasade balkongen. Panelade väggar och laminatgolv. Balkongen kommer du åt via trevliga dubbeldörrar.
BALKONG
Stor balkong som förlänger utesäsongen. Balkongen är isolerad och har skjutbara fönsterpartier. Plastmatta och träpanel.
KÄLLARE
Med trappa ner från hallen möts ni upp av en källare.
MATKÄLLARE
Matkällaren har grusat golv och betongväggar. Här finns hyllförvaring.
TVÄTTSTUGA
Tvättstuga med betonggolv och målade väggar. På betonggolvet ligger plastklinkers. Här finns tvättmaskin, torktumlare, vattenpump och elcentral.
DUSCH/BASTU
Duschutrymme med dusch och handfat. Klinkergolv och väggarna kläs med träpanel och kakel. Här är det elgolvvärme.
FÖRRÅD
Rymligt förrådsrum med målade väggar och betonggolv. På betonggolvet ligger plastklinkers. Här finns garderober till förvaring.
PANNRUM
I pannrummet finns en fungerade ved/el panna med dubbla ackumulatortankar. Denna panna används ej idag. Här är det betonggolv och betongväggar.
TEKNIKRUM/HOBBYRUM
Ett rymligt rum med groventré. Här finns bergvärmepumpen och hyllor till förvaring. Betonggolv och betongväggar.



Åre Kvissle 5:1 & Åre Kvissle 5:5
2001 Fastigheten tillbyggdes, 2009 Ny 3-kammarbrunn, ny pump och bottenventil i brunn, 2011 Kök, 2012 carport, 2013 Ommålning bostadshus, 2014 Bergvärme, 2021 Ny hydrofor.
Vatten från grävd brunn, avlopp till 3-kammarsbrunn med infiltration.
Tomtarea 2000 m².
Last: Ledningsrätt Elektrisk kommunikation, 2321-2017/7.1
Last: Ledningsrätt Starkström/tele, 2321-07/14.1
Last: Officialservitut Väg båtuppläggningsplats, 23-MAT-422.1
Last: Avloppsanläggning
Last: Paviljong och bad/båtplats
Last: Pumphus
I kostnad för el ingår uppvärmning.
Driftkostnader och elförbrukning är inhämtade från säljaren och bör endast ses som en uppskattning. Kostnaden kan variera och baseras på förbrukning och avtal.
Areal: 4 ha.
Areal: 2 ha. Brukningsvärde: Normalt. Dränering: Tillfredsställande.
Det finns en fullt fungerande vedpanna (installerad 2001) med dubbla ackumulatortankar. Radonsug finns installerad i pannrummet.
På bostadens baksida finns utvändigt förvaringsutrymme där oljetank finns installerad (oljetank är ej i bruk idag)
Det finns 3 st pantbrev uttagna om sammanlagt 200 000 kr
Rymlig carport med bra takhöjd. I carporten är det grusat golv och den rymmer plats för två bilar.
Nere vid Kvissleströmmen ligger det kombinerade båthuset med vedeldad bastu. Båthuset rymmer plats till förvaring av båt och den vedeldade bastun rymmer sittplats för 5-6 personer.
Vedförvaring med plåttak.
Area 152 kvm. Ladugården är i två plan. På nedre plan finns äldre stalldel och det finns goda förvaringsutrymmen. Övre plan är i öppen planlösning och till den finns det åtkomst från både ut och insida. Ladugården är belägen invid bostadshuset. Vidbyggt finns vedförråd. Med ingång från ena kortsidan finns ingång till mindre källarutrymme för förvaring.
Area 42 kvm. Uppe vid vägen finns en enklare gårdsverkstad innehållandes både enklare verkstadsdel och förråd.
På tomten finns en charmig lekstuga. Lekstugan har trägolv och panelade innerväggar. Här finns vedkamin installerad (ej besiktad).
Kvitsle är en rofylld och genuin by i lantlig miljö strax utanför Mattmar. Området präglas av öppna landskap, vacker natur och ett lugnt vardagsliv med närhet till skog, friluftsliv och den jämtländska fjällvärlden – inte minst Åre och Bydalen. Storsjön finns inom bekvämt avstånd och erbjuder ytterligare möjligheter till bad, fiske och rekreation. Samtidigt finns service, förskola och kommunikationer i Mattmar, närmaste skolor finns i Mörsil och Hallen. Via smidigt pendlingsavstånd når du både Åre och Östersund.
Köpa, sälja eller värdera bostad i Kvitsle? Kontakta våra mäklare i Åre eller i Östersund! Passa också på att anmäla dig till vår kostnadsfria söktjänst Boagenten som hjälper dig att hitta ditt drömboende.
Kontakta mäklaren om du behöver hjälp att ta fram en boendekalkyl.
När du köper din bostad genom Bjurfors kan du ansöka om bolån till en förmånlig ränta hos våra banksamarbetspartners Söderberg & Partners och SEB.
| Bud | Budgivare | Datum | Tid |
|---|---|---|---|
| 3 110 000 kr | Budgivare 3 | 2026-05-13 | 17:46 |
| 3 100 000 kr | Budgivare 2 | 2026-05-13 | 17:45 |
| 3 040 000 kr | Budgivare 3 | 2026-05-13 | 07:53 |
| 3 030 000 kr | Budgivare 4 | 2026-05-13 | 07:52 |
| 3 020 000 kr | Budgivare 3 | 2026-05-13 | 07:40 |
| 3 010 000 kr | Budgivare 2 | 2026-05-13 | 07:38 |
| 2 999 000 kr | Budgivare 3 | 2026-05-13 | 07:37 |
| 2 960 000 kr | Budgivare 2 | 2026-05-13 | 07:35 |
| 2 950 000 kr | Budgivare 3 | 2026-05-13 | 07:34 |
| 2 910 000 kr | Budgivare 2 | 2026-05-13 | 07:27 |
| 2 900 000 kr | Budgivare 3 | 2026-05-13 | 07:26 |
| 2 870 000 kr | Budgivare 2 | 2026-05-13 | 07:24 |
| 2 860 000 kr | Budgivare 3 | 2026-05-13 | 07:24 |
| 2 810 000 kr | Budgivare 2 | 2026-05-12 | 15:03 |
| 2 800 000 kr | Budgivare 3 | 2026-05-12 | 15:02 |
| 2 790 000 kr | Budgivare 2 | 2026-05-12 | 15:01 |
| 2 780 000 kr | Budgivare 3 | 2026-05-12 | 15:00 |
| 2 770 000 kr | Budgivare 2 | 2026-05-11 | 11:41 |
| 2 760 000 kr | Budgivare 1 | 2026-05-11 | 11:33 |
| 2 750 000 kr | Budgivare 2 | 2026-05-11 | 10:33 |
| 2 720 000 kr | Budgivare 3 | 2026-05-11 | 10:15 |
| 2 700 000 kr | Budgivare 2 | 2026-05-10 | 18:30 |
| 2 580 000 kr | Budgivare 1 | 2026-05-10 | 15:21 |