-
Köpa
Köpa -
Sälja
Sälja - Hitta bostad
- Skapa bevakning
- Hitta mäklare
Hyresfastighet Centrala Undersåker
Undersåker, Åre
Hyresfastighet Centrala Undersåker med 5 lägenheter, samtliga tillgängliga från 1:a juli 2025
Spännande tillfälle att förvärva en egen liten hyresfastighet i centrala Undersåker mitt emot ICA Strandbergs.
Fastigheten byggdes på 30-talet i timmer och inrymde Konsum på entréplanet och ägaren bodde på våning 2.
Sedan många år, gissningsvis på 70-talet, byggdes fastigheten om och är det en hyresfastighet med 5 lägenheter där nuvarande ägaren delvis tid bott i huset och skött om det.
Hyresintäkterna har legat mellan 210.000:- till 240.000:- och då utan några större engagemang för att maximera hyresintäkter, endast med tillfälliga fastboende samt att ägaren använt en av lägenheterna.
Det finns med andra ord potential för en driven ägare att öka dessa intäkter avsevärt.
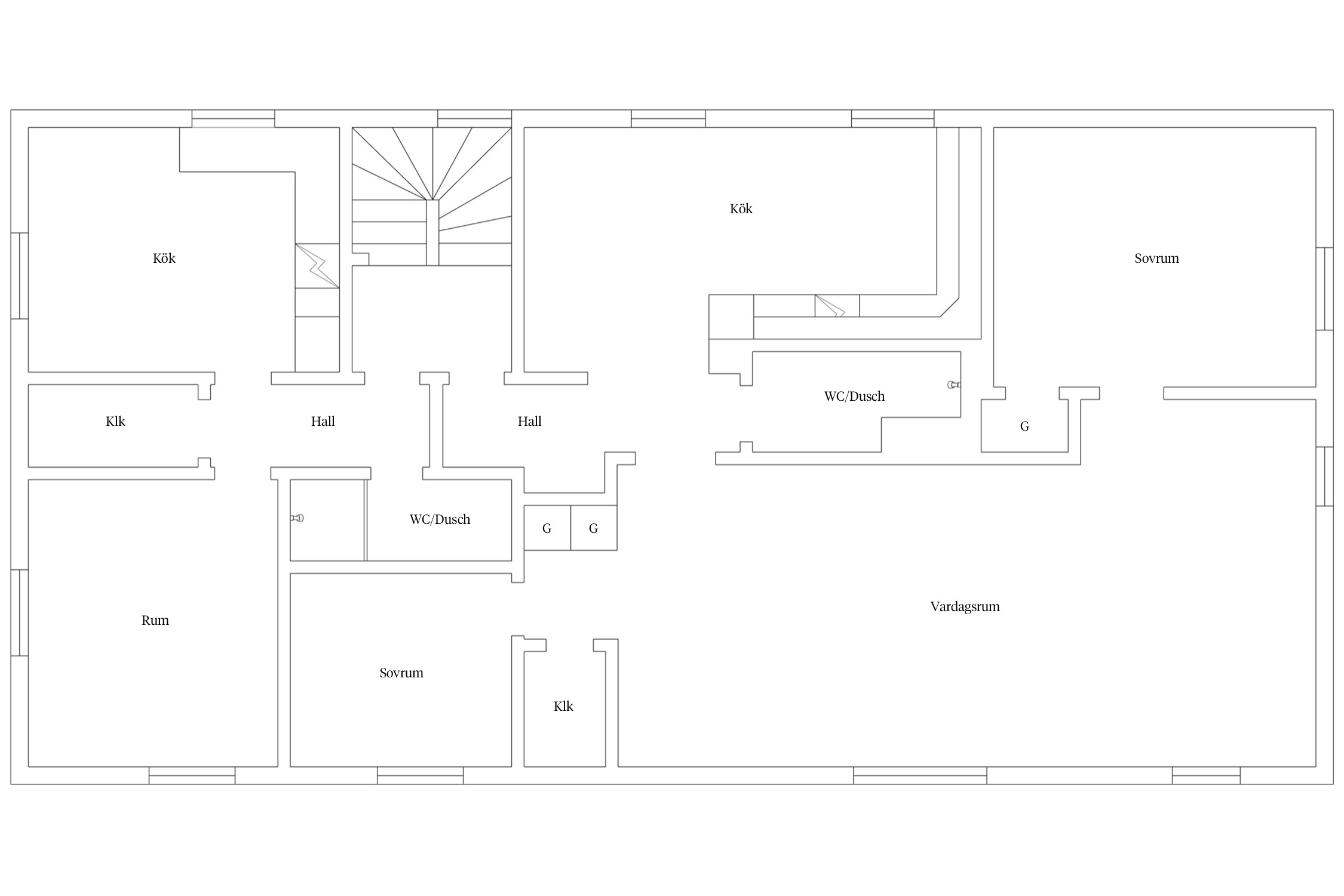
ENTRE PLAN:
1 rum och kök om ca 26kvm
3 rum och kök om ca 83kvm
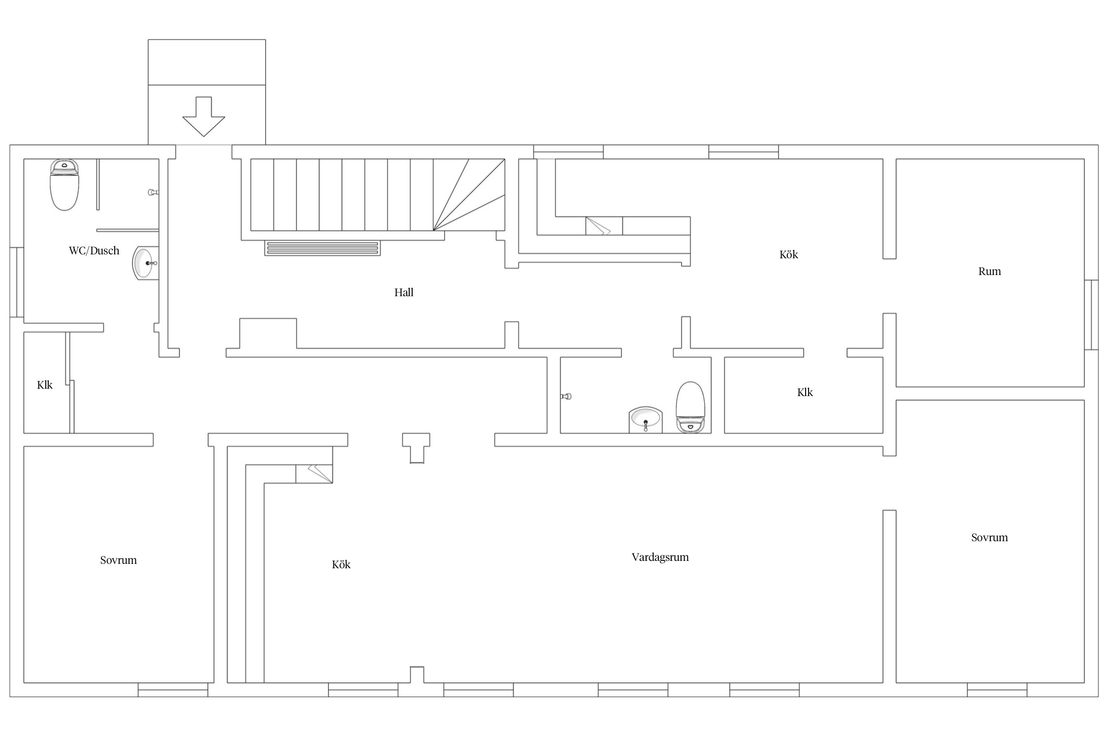
VÅNING 2:
1 rum och kök om ca 33kvm
3 rum och kök om ca 78kvm
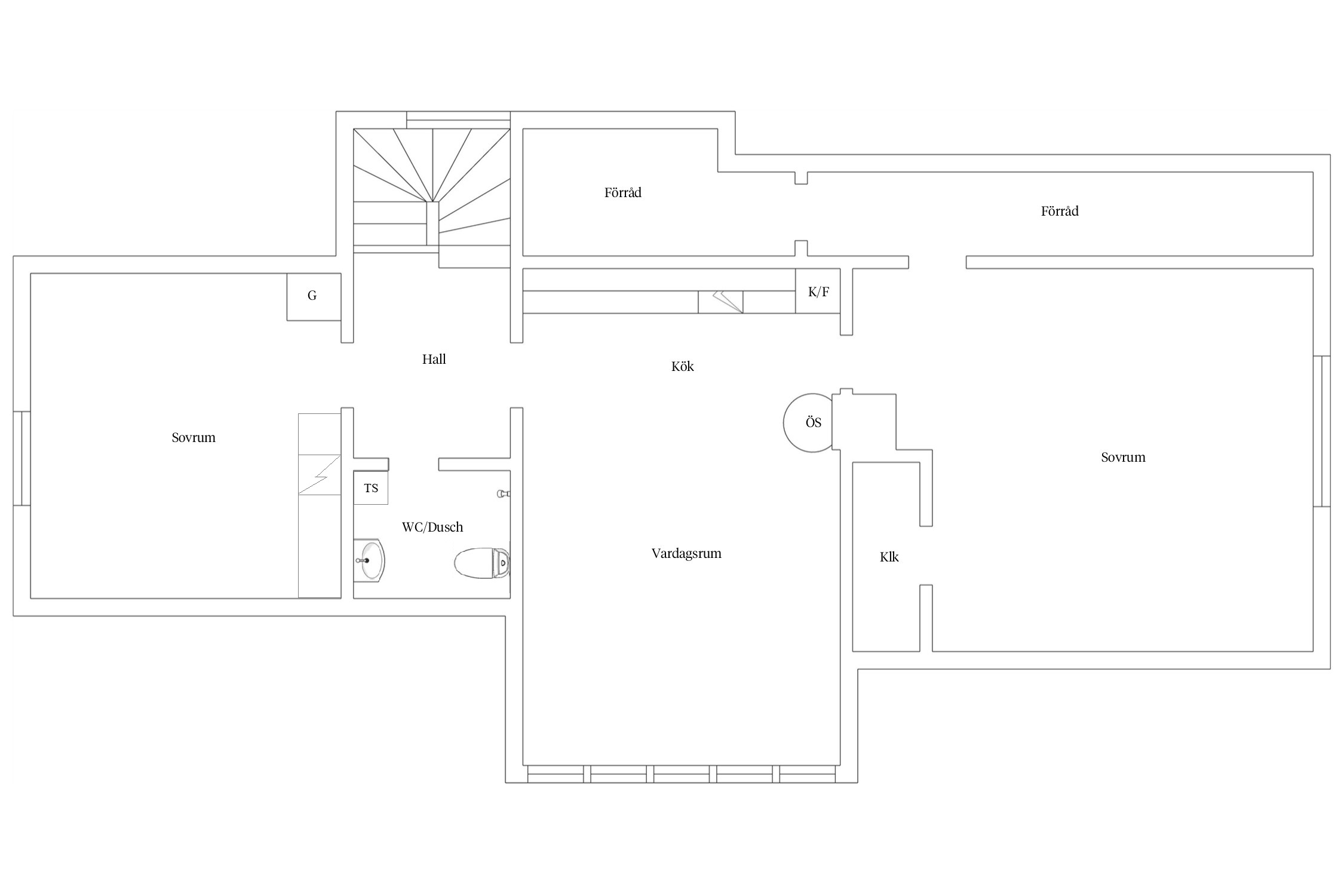
VINDSPLAN:
2 rum och kök om ca 55kvm, samt ett extra rum "Annexet" har inretts med trinettkök.
KÄLLARE:
Delvis källare vid entrén av huset, där finns tvättstuga och lägenhets förråd samt pannrum med bergvärmepump.
Kostnaderna för drift har legat på hyffsat bra nivåer:
Vatten Avlopp och Renhållning: 31.767:-
Försäkring: 14.657:-
El, Jämtkraft: 27.411:- (hyresgästerna har egna abonnemang för hushållsel)
Snöröjning 8.000:-
Underhåll: 13.200:-
Det finns parkering för ca 7 bilar på gården
I källaren finns cykel förråd, mindre lägenhets förråd och tvättstuga.
Bergvärme installerad 2001.
Bildmaterialet är från 3 av lägenheterna, de andra har hyresgäster, husets samtliga lägenheter är tillgängliga för visning från juli och framåt.



Entréplan
Våning 2
Våning 3
Stamgärde 2:21
Jordkällare
Kommunalt
Parkeringar intill huset och skogstomt
Plats för ca 7 bilar
Var och en använder mobilt bredband
Uppvärmning inkluderar fastighets el, VA inkluderar sopor, Övrigt avser snöröjning,
Varje hyresgäst betalar sin egen hushållsel
Fastigheten har bra parkeringsmöjligheter för de boende och på den övre delen av tomten har det en gång i tiden stått en byggnad men idag är det endast en lummig skogsbacke med utemöbler.
Bergvärme installerad 2001. Löpande underhåll på inventarier och maskiner som bytts efter hand då behov uppstått.
Undersåker är en familjevänlig ort i Åredalen, mellan Åre och Järpen. Här bor man med närhet till flera skidområden. I området bor mestadels permanenta invånare och många barnfamiljer väljer att bosätta sig här. Här finns förskola och skola åk 1-6. Här finns goda kommunikationer med tågstation samt service med matbutik. Strax väster om järnvägsstation når man Södra Årefjällen via bro över Indalsälven.
Köpa, sälja eller värdera bostad i Undersåker? Kontakta våra mäklare i Åre! Passa också på att anmäla dig till vår kostnadsfria söktjänst Boagenten som hjälper dig att hitta ditt drömboende.
Kontakta mäklaren om du behöver hjälp att ta fram en boendekalkyl.
När du köper din bostad genom Bjurfors kan du ansöka om bolån till en förmånlig ränta hos vår samarbetspartner SEB.
Ansvarig mäklare