-
Köpa
Köpa -
Sälja
Sälja - Hitta bostad
- Skapa bevakning
- Hitta mäklare
Stilsäkert totalrenoverad trea!
Odensala, Östersund
*I avgiften ingår värme, vatten/avlopp, kabel-tv och internet (185kr/mån).
**Areauppgifter enligt bostadsrättsföreningen
På Förhand ligger bostäder som av olika anledningar inte är ute till försäljning just nu men som kan komma att säljas om förutsättningarna är rätt.
Stilsäkert helrenoverad trea av högsta klass med balkong i soligt läge. Helkaklat badrum & harmoniska, enhetliga färgval. Bekvämt med hiss i huset.
Välkomna till en helrenoverad bostad av högsta klass! Med fingertoppskänsla, finess och exklusiva materialval av högsta klass vågar jag påstå att detta är en av områdets absolut finaste treor. Här bor ni bekvämt dit hissen tar er om så önskas. Här har verkligen inte sparats på krutet när ni välkomnas till en välplanerad hall med platsbyggd skjutdörrsgarderob. Det renoverade köket är även det av hög klass med sobra färgval som följer den röda tråden och vitvaror av hög kvalitet.
I denna högklassiga lägenhet har verkligen inget lämnats åt slumpen och renoveringen är utförd med noggrannhet och enhetlighet i fokus. Färgvalen på väggarna är både stilsäkra, enhetliga och harmoniska och det påkostade badrummet följer den genomgående röda tråden. Här njuter ni av en lång dusch i det snyggt helkaklade badrummet med lyxen av golvvärme som värmer frusna fötter och här finner ni dessutom både kombinerad tvättmaskin, torktumlare, vattenburen handdukstork och stämningsfull dimbar spotlightsbelysning i taket. Att sedan från sovrummet kliva ut på en balkong i soligt sydvästläge höjer känslan av trivsel ytterligare en nivå.
Här bor ni i populär bostadsrättsförening med utemiljö som faller många i smaken och god ekonomi med låg månadsavgift där bredband ingår. Här trivs människor i alla åldrar i denna trivsamma bostadsrättsförening som ordnar gemensamma aktiviteter och erbjuder samlingslokal, hobbyrum, grillplats och lekplats allt för medlemmarnas trivsel. I närområdet finns restaurang, Lillänge handelsområde, välsorterad livsmedelsaffär, skola, förskola och badhus. Till centrala Östersund tar ni er enkelt och smidigt med de goda bussförbindelserna eller så tar ni en cykeltur eller promenad.
Välkomna på visning!
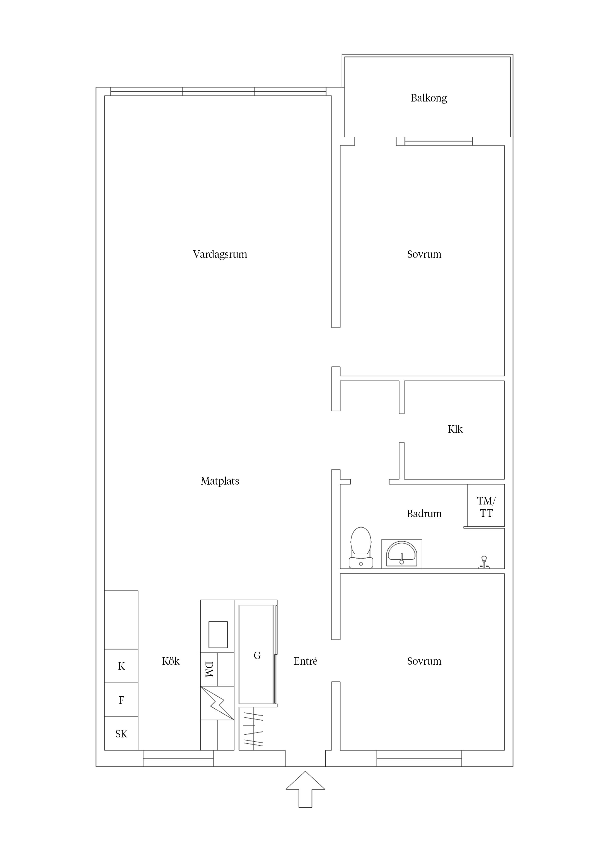
HALL
Välkomnande hall med hatthylla och skoställ som ingår i köpet. En mycket praktisk skjutdörrsgarderob finner ni längre in i hallen. Snyggt träfärgat laminatgolv och ljusa målade väggar.
KÖK-MATPLATS
Köket är stilsäkert renoverat med luckor i modernt beige nyans och och ljusa bänkskivor i laminat som matchas med snyggt kakel som stänkskydd. Köket är utrustat med påkostade vitvaror med fullstor kyl och frys, induktionshäll, varmluftsugn, spisfläkt och diskmaskin. Gott om förvaringsutrymme och bänkyta i köket. Utrymme för större matplats intill kök och vardagsrum. Snyggt träfärgat laminatgolv och ljusa målade väggar.
VARDAGSRUM
Ljust och inbjudande vardagsrum med öppen och social planlösning mot köket. Snyggt träfärgat laminatgolv och ljusa målade väggar. Här finns gott om utrymme för sällskapsmöbler.
BADRUM
Påkostat och lyxigt badrum med snyggt, enhetligt kakel och klinker på både golv och vägg. Golvvärme (el) som värmer frusna fötter och rymlig dusch med duschvägg och takdusch. Här finns vidare handdukstork (vattenburen), handfatskommod samt WC. Kombinerad tvättmaskin och torkumlare. Dimbara spotlights i taket för snygg belysning.
SOVRUM
Det större sovrummet har utgång till den härliga balkongen. Här finns utrymme för garderober. Snyggt träfärgat laminatgolv och väggar målade i ljus nyans.
KLÄDKAMMARE
Rymlig klädkammare med enhetligt laminatgolv som i resten av lägenheten och ljusa målade väggar.
SOVRUM
Sovrum direkt till höger från entrén med laminatgolv och målade väggar i något mörkare nyans.



*Areauppgifter enligt bostadsrättsföreningen
I avgiften ingår värme, vatten/avlopp, kabel-tv och internet (185kr/mån).
Lägenheten är totalrenoverad 2026
Till lägenheten finns förråd i samma hus.
I föreningen finns 9 st ordinarie tvättstugor och 4 st grovtvättstugor.
I de ordinarie tvättstugorna finns två tvättmaskiner och en torktumlare. I anslutning till tvättstugorna finns torkrum och mangelrum. I grovtvättstugorna finns en större tvättmaskin och ett torkskåp för mattor och liknande
Tidsbokning för tvättstugorna görs på informationstavlorna i trapphusen eller på internet.
Föreningen har även samlingslokal, bastu, solarium, cykel och barnvagnsförråd.
Balkong i soligt sydvästläge.
Kabel-tv via Telia
Bredband via Telia ingår i avgiften.
Bostadsrättens indirekta nettoskuldsättning baseras på föreningens skulder/lån minus föreningens räntebärande tillgångar och likvida medel. Beräkningen är gjord och baseras på senaste tillgängliga årsredovisningen. För mer information kontakta ansvarig fastighetsmäklare.
*Betalas av köpare
I Riksbyggen Östersundshus nr 17 bor man i en trivsam förening där det bl.a. ordnas gemensam surströmmingsfest och julgröt för de boende. På de lummiga innergårdarna finns lekplatser, grillplats och fina boulebanor som används flitigt under sommarhalvåret.
Här bor ni med närhet till goda kommunikationer, skolor, förskolor, gym, pizzeria och en populär matvarubutik. Föreningen äger fastigheten Tröskan 1, 2 & 3 med sammanlagt 15 st byggnader med 320 lägenheter och 32 lokaler. Adresserna i föreningen är Odenskogsvägen 54-100 jämna nummer samt 108 & 110.
1/10 2026 har styrelsen beslutat en höjning av månadsavgiften med 15%
1/10 2025 höjdes månadsavgiften med 15%
1/1 2025 höjdes månadsavgiften med 7%
1/10 2023 höjdes månadsavgiften med 10%
Fastigheten är fullvärdesförsäkrad i Folksam. Hemförsäkring bekostas individuellt av bostadsrättsinnehavarna och bostadsrättstillägget ingår i föreningens fastighetsförsäkring.
Utförda renoveringar:
2012 - Byte garageportar, fönster och balkongdörrar. Takbeläggningen byttes för några år sedan.
2016 - Lägenhetsdörrar på höghusen byttes
2019 - Fiber, öppen anslutning från Telia. Digitala motorvärmaruttag i garagen. De senaste 5-10 åren har renoveringar gjorts av trappuppgångar, hissar, tvättstuga och ventilation.
2021 - Bytt lägenhetsdörrar i låghusen, vallarum har ställts iordning och föreningen har förbättrat skalskyddet genom att sätta upp "blippar" vid entréer och installera ett nytt låssystem på allmänna ytor.
2023 - Bytt avloppsstammar i köken.
2024 - Byte av leverantör för TV och bredband, köksavlopsstammar, och 2st bommar. Renovering av delar av fasad på låghus och markförlagda avloppsledningar
2025 - Takbyte och relining är pågående.
Föreningen tar en del av arbetet och kostnaden vid badrumsrenovering. Har man ett orenoverat badrum och renoverar det är kravet att föreningen kontaktas. Föreningen ställer krav på att man använder deras godkända firmor för utförandet av bilning av golv och byte av avloppsrör. Föreningen tar även kostnaden för bilning, nytt avlopp, vattenledning fram till stam och grovgjutning av golv. (För mer information kontakta fastighetsmäklaren).
De badrum som ej fått utbytta golvbrunnar kommer att inspekteras under de närmaste åren.
Planerade renoveringar:
2026 - Slutföra takbyte
2027-2028 - Fräscha upp balkonger och loftgångar.
Inom föreningen finns:
179st garageplatser med motorvärmaruttag, 275kr/mån (separat kö)
127 p-platser med motorvärmaruttag, 185kr/mån (Lediga platser finns)
30 p-platser med laddningsuttag för elbil 450kr/mån + el (fler än 10st lediga)
Besöksparkeringar:
29 st besöksparkeringar
4 st besöksparkeringar med laddnings-uttag för elbil.
(2026-04-13)
Bredband (250/250) och kabel-tv via Telia ingår i avgiften
På innergårdarna finns grönområden, sittytor, sandlådor, gungställningar, lekplatser och boulebana.
Föreningen har ställt iordning ett bibliotek, vallarum med snickarbänk samt ett "ge och ta"-rum. Det finns även 9st tvättstugor, samt 4st grovtvättstugor i föreningen.
Det finns tre boule-banor samt en bastu med relax på Odenskogsvägen 84 (30kr/gång). Samlingslokal med kök finns på Odenskogsvägen 54-56 (200kr/gång).
I föreningen finns samlingslokal för 80-90 personer samt bastu. Det finns separata förråd (ca 70st) att hyra. Det finns också 9 st tvättstugor samt 4 grovtvättstugor i föreningen.
Föreningen har en fritidskommitté som anordnar aktiviteter under året som t ex julgröt, café med loppis, GåBingo m.m.
Enligt överenskommelse
Odensala är det perfekta valet för dig som söker ett tryggt, aktivt och bekvämt boende – särskilt för barnfamiljer. Här finns flera förskolor och skolor, vilket gör vardagen smidig och trygg. Naturen är alltid nära, och området erbjuder fantastiska möjligheter till ett aktivt liv med elljusspår, padelhall, utegym och det populära Sportfältet – ett nav för idrott och rörelse.
I centrum av Odensala hittar du en välsorterad ICA Supermarket, pizzeria, gym och cykelaffär – allt du behöver för en bekväm vardag. Bara en kort promenad bort ligger Lillänge köpcentrum med ett brett utbud av butiker för hela familjen.
Här bor du med närhet till vackra Storsjön, där en omtyckt badstrand väntar för lata sommardagar och härliga dopp. Oavsett årstid är Odensala ett område där du har nära till både natur, service och stadens puls.
Köpa, sälja eller värdera bostad i Odensala? Kontakta våra mäklare i Östersund! Passa också på att anmäla dig till vår kostnadsfria söktjänst Boagenten som hjälper dig att hitta ditt drömboende.
Kontakta mäklaren om du behöver hjälp att ta fram en boendekalkyl.
När du köper din bostad genom Bjurfors kan du ansöka om bolån till en förmånlig ränta hos våra banksamarbetspartners Söderberg & Partners och SEB.
Ansvarig mäklare