-
Köpa
Köpa -
Sälja
Sälja - Hitta bostad
- Skapa bevakning
- Hitta mäklare
Villa med strandläge
Slåtte-Österböle-Hållsta, Östersund
*Areauppgifter enligt taxeringsinformationen
Bokad visning. Anmäl dig på bjurfors.se eller ring Bjurfors 0725199300
Exklusiv villa vid Hornsjön med strandtomt, låg driftkostnad, bastu, brygga och stilren design - ett hem där varje dag känns som semester.
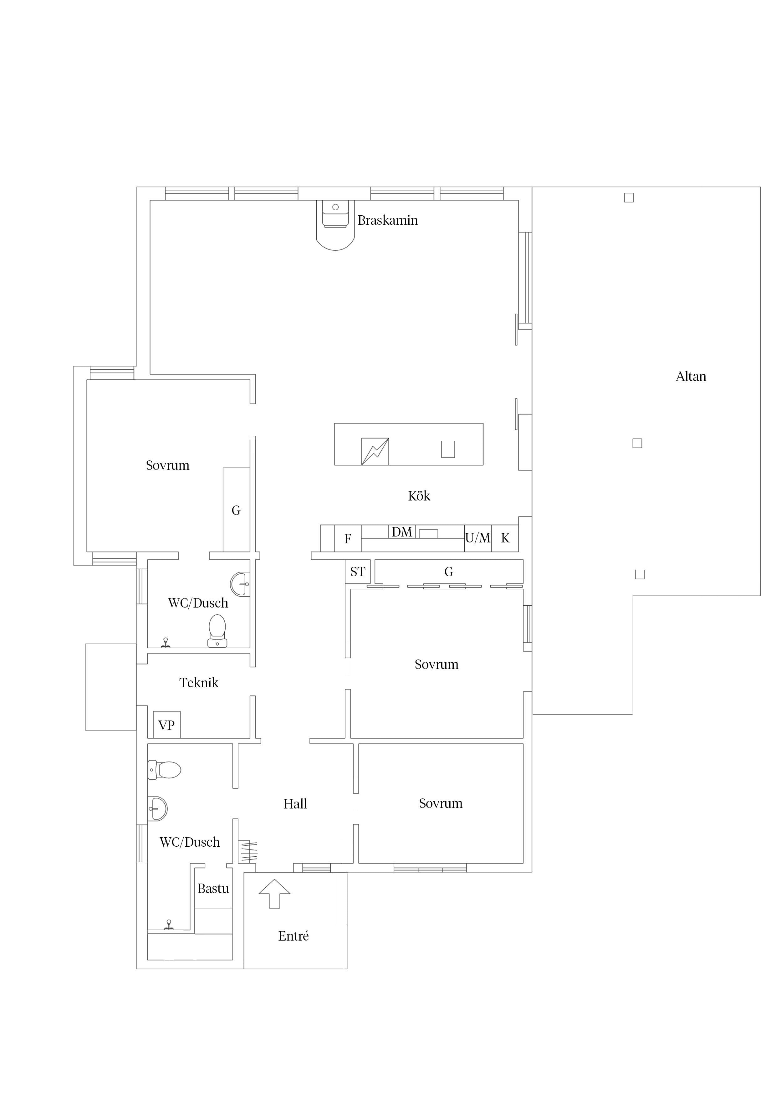
Välkommen till ett boende som kombinerar hög komfort, stilren design och naturnära livskvalitet - med ett fantastiskt strandläge vid vackra Hornsjön. Denna välplanerade enplansvilla om 130 m² erbjuder ett genomtänkt hem med vattenburen golvvärme i samtliga rum, exklusiva materialval och en boendemiljö som passar lika bra för året runt-boende som för fritidshus.
Husets hjärta är det öppna köket och allrummet med imponerande takhöjd på fyra meter och stora fönsterpartier som ger ett fantastiskt ljusinsläpp och sjöutsikt. Det stilrena Ballingslöv-köket är fullutrustat med bl.a köksö, vinkyl och häll med integrerad fläkt allt för att passa den matlagningsintresserade som gärna bjuder in vänner och familj till umgänge. Här finns gott om arbetsytor och förvaring, vilket gör köket både praktiskt och estetiskt tilltalande. Den vedeldade kaminen skapar en varm och inbjudande atmosfär, perfekt för både vardagsmys och middagar med utsikt mot vattnet. Rummet bjuder in till socialt umgänge och blir en naturlig samlingspunkt för familj och vänner, oavsett årstid. En altandörr tillsammans med stort skjutdörrsparti som suddar ut gränsen mellan inne och ute, och knyter elegant ihop vardagsrummet med den generösa altanen - perfekt för sommarens måltider och avkoppling i solen.
Bostaden har tre sovrum, varav ett föräldrasovrum med direktaccess till ett eget "en-suite" badrum. Här finns gott om förvaring och vackra fönsterpartier som släpper in naturen. Det andra sovrummet har utgång till altanen och en garderobsvägg med skjutdörrar, medan det tredje är ett rofyllt rum med utsikt mot infarten. Badrummen är stilfullt inredda med helkaklade väggar, klinkergolv och stämningsfull belysning. Bastun erbjuder en egen hemmaspa-upplevelse - perfekt efter en dag ute i naturen.
Tvättstugan är praktisk med groventré och utgång till trädgården. Uppvärmningen sker via frånlufts-värmepump, vilket tillsammans med solceller ger en mycket god boendeekonomi och ett hållbart energisystem.
Utomhusmiljön är lika imponerande som insidan. Den stora altanen är delvis under tak och erbjuder plats för både loungedel och matgrupp. Intill strandkanten finns en grillplats med murad öppen spis och en brygga där du kan lägga till båten. Tomten är uppväxt och grönskande med ett fantastiskt strandläge vid Hornsjön. På fastigheten finns även ett isolerat dubbelgarage med elbilsladdare, ett charmigt båthus med gjuten sula, ett oisolerat förråd med garageportar - perfekt till förvaring av snöskoter eller motorcykel - samt en friggebod med förrådsutrymme och utedass. Läget är lugnt och naturnära längst in på återvändsgata, men ändå med goda pendlingsmöjligheter till Östersund. Här bor du med naturen som granne, med möjlighet till ett aktivt friluftsliv året runt - och samtidigt med bekvämt avstånd till stadens service. Nuvarande ägare disponerar även angränsande fastighet (Slåtte 1:21). Möjlighet finns för köpare att förvärva båda fastigheterna om köparen önskar ett generationsboende eller en plats där familj och vänner kan samlas.
Välkommen att uppleva ett boende där varje dag känns som en semester - med låg driftkostnad, hög livskvalitet och ett läge som är svårt att slå.
Bostaden har hög kvalitet på materialval, solida ekgolv i Amerikansk ek, innerdörrar från Ekstrands, Ballinglöv-kök och det är vattenburen golvvärme i alla rum
ENTRÈ/HALL
Välkomnande entré som förgrenar mot bostadens samtliga rum. I hallens förlängning har ni direktkontakt med kök/allrum och det är öppet upp mot nock. Invid entrén finns yta för klädavhängning. Målade väggar.
SOVRUM 1
Rogivande sovrum med målade väggar. Naturligt ljusflöde från fönster mot infarten.
BASTU/DUSCH/WC
En bastumiljö med stilrena materialval och stämningsfull belysning. Här finns dusch, handfat med underskåp, spegelskåp och wc - praktiskt och njutbart med möjlighet till ditt eget hemmaspa efter njutningsfulla dagar utomhus. Klinkergolv och kaklade väggar.
SOVRUM 2
Sovrum med plats för dubbelsäng och utgång till den härligt solsäkra altanen. Garderobsvägg med skjutdörrar ger rummet mycket förvaring. Tapetserade väggar
GROVENTRÉ & TVÄTTSTUGA
Tvättstuga med sobert grå klinker och målade väggar. Här finns tvättmaskin, arbetsbänk med ho, värmepump, avhärdare och skåpförvaring. Groventré med utgång till trädgården.
KÖK/ALLRUM
Här är vi mitt inne i husets hjärta med en vy som ger känslan av att sjön ligger precis utanför rummet. Den generösa takhöjden om dryga fyra meter i kombination med de härliga fönstersättningarna ger samtidigt en mycket härlig känsla av rymd. Varför inte också tända upp en sprakande eld i den vedeldade kaminen som skapar stämning oavsett om du äter middag eller landat i soffan. Det stilrena köket från Ballingslöv är smart planerat med köksö som erbjuder fantastiska arbetsytor och bra förvaring. Köket är utrustat med vinkyl, inbyggnadsugn, inbyggnadsmicro, häll med integrerad köksfläkt, diskmaskin, bänkfrys och fullstort kylskåp. Det finns utgång till den stora altanen som delvis har tak och de härliga fönsterpartierna är öppningsbara. Målade väggar.
FÖRÄLDRASOVRUM
Föräldrasovrum med härliga fönstersättningar. Här ryms dubbelsäng och det finns garderob till förvaring. Härifrån finns åtkomst till det egna badrummet. Tapetserade väggar.
BADRUM (En-suite)
Sobert badrum med åtkomst från föräldrasovrummet, vitt helkakel, Stilrent klinkergolv, wc, dusch vikbara glasdörrar, spegel med belysning, högskåp samt en formren handfatskommod.
GARAGE
Isolerat varmgarage med gjuten platta som rymmer plats för två bilar i fil. Här finns elbilsladdare, arbetsbänk, frysbox och skåp till förvaring. Sidodörr ger enkel access från gården. Luft/luft värmepump
BÅTHUS
Ett charmigt båthus nere vid Hornsjöns strand med vipp-port för enkel in/utfart med båten. Det är gjuten sula som praktiskt omgärdar båtplatsen. Byggnaden är uppförd i trä med plåttak.
FÖRRÅD
Förrådsbyggnad uppfört i anslutning till bostadshuset. Förrådet är isolerat och har gjuten platta, det finns sidodörr och två garageportar för enkel åtkomst. Här förvarar ni gärna snöskotern, motorcykeln, åkgräsklipparen eller andra säsongstillbehör med fördel.
FRIGGEBOD
Oisolerad friggebod med förråd och utedass.



Slåtte 1:20
*Areauppgifter enligt taxeringsinformationen
Fastigheten har solpaneler på både bostadshus och garage (sol-el), det finns fiber installerat. Framför de stora fönsterpartierna finns golv-element för att förhindra kallras. Elektriska markiser. Det finns elbilsladdare i garaget. Växlaren för solcellerna är förberedd ifall man vill koppla in batterier. Nuvarande ägare disponerar även angränsande fastighet (Slåtte 1:21). Möjlighet finns för köpare att förvärva båda fastigheterna om köparen önskar ett generationsboende eller en plats där familj och vänner kan samlas. För mer information om Slåtte 1:21, vänligen kontakta fastighetsmäklaren.
2020 Tillbyggdes fastigheten och samtidigt totalrenoverades den äldre delen så att allt blev genomgående nytt.
Garage, friggebod, förråd och båthus
Invid bostadshuset finns en stor solsäker altan som delvis erbjuder tak. Här kan ni med fördel skapa både loungedel och det finns goda ytor för matbord. Det finns en grillplats med platsmurad öppen spis i anslutning till strandkanten.
Enskilt vatten (borrad), Enskilt avlopp (3-kammarbrun med infiltration). Delas via servitut med grannen, för mer information kontakta fastighetsmäklaren.
Uppväxt och grönskande tomt med fint strandläge intill Hornsjön. Nere vid vattnet finns en härlig brygga där man gärna lägger till båten. Fina stensatta gång och parkeringsytor och en mur som avgränsar mot infarten.
Garage med plats för 1-2 bilar och det finns gott om utrymme till parkering på tomten.
Servitut vatten och avlopp
Servitut vatten och avlopp
Via fiber
Via fiber
I uppvärmningskostnaden ingår även hushålls-el. Solpanelerna producerar ca 11 500 kWh per år, vilket dras av mot förbrukning. Driftkostnaden är baserad på att fastigheten används som fritidsbostad.
Enligt överenskommelse
Vill du köpa, sälja eller värdera bostad i Jämtland? Kontakta våra mäklare i Åre eller våra mäklare i Östersund. Passa också på att anmäla dig till vår kostnadsfria söktjänst Boagenten som hjälper dig att hitta ditt drömboende.
Här hittar du alla våra lediga bostäder till salu i Jämtlands län just nu!
Kontakta mäklaren om du behöver hjälp att ta fram en boendekalkyl.
När du köper din bostad genom Bjurfors kan du ansöka om bolån till en förmånlig ränta hos våra banksamarbetspartners Söderberg & Partners och SEB.
Bokad visning. Anmäl dig på bjurfors.se eller ring Bjurfors 0725199300