-
Köpa
Köpa -
Sälja
Sälja - Hitta bostad
- Skapa bevakning
- Hitta mäklare
Radhus med härligt uterum, fritt läge och garage!
Torvalla, Östersund
*Areauppgifter enligt taxeringsinformationen
Bokad visning. Anmäl dig på bjurfors.se eller ring Bjurfors 072-529 93 04
Ljust och välplanerat radhus med uterum och soligt läge. Lugnt område nära skola, buss, natur och med garage i avgiften.
Välkommen till Arågränd 48 - ett trivsamt tvåplansradhus i Torvalla! Här bor du i ett trevligt och familjevänligt område med ett attraktivt läge nära ytterkanten av området, vilket ger en härlig känsla av rymd.
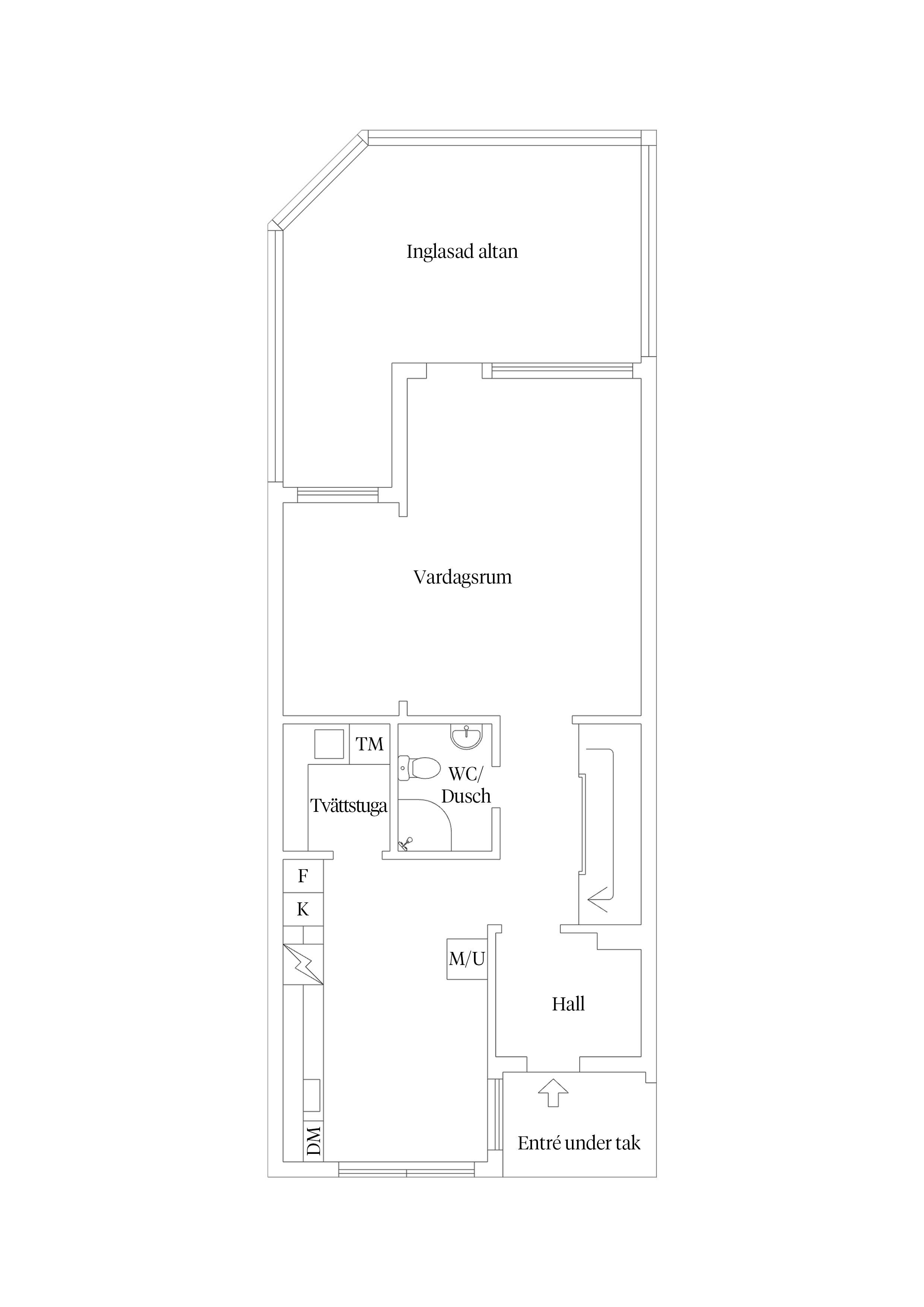
Bostaden erbjuder en genomtänkt planlösning med generösa ytor för både vardag och umgänge. Entréplanet bjuder på ett luftigt kök med fint ljusinsläpp och plats för stora middagar, samt ett rymligt vardagsrum med utgång till den inglasade utbyggnaden - ett uppskattat uterum som förlänger säsongen och blir en naturlig samlingsplats stora delar av året. Här finns även badrum och praktiska ytor som förenklar vardagen. På övre plan väntar den mer privata delen med flera sovrum, goda förvaringsmöjligheter och ytterligare ett badrum, perfekt för familjelivet.
Läget i området är mycket bra. Här får du mer sol på husets framsida än många andra i området, samtidigt som baksidan vetter mot en gång- och cykelväg. Närheten till Fjällängsskolan, busshållplats, motionsspår och Odensalafältets öppna ytor gör vardagen både smidig och aktiv. Garage ingår även i avgiften, vilket bidrar till ett bekvämt och ekonomiskt boende.
Torvalla är ett välplanerat och populärt område med eget centrum, flera skolor och förskolor samt god service. Här finns fina strövområden, elljusspår och lekplatser - perfekt för både stora och små. Dessutom tar du dig enkelt till centrala Östersund via goda bussförbindelser.
Här erbjuds ett hem att trivas i länge, med lugnt läge, trevliga grannar och närhet till allt som underlättar vardagen.
Välkommen på visning!
Hall
Ljus och välkomnande hall med gott om plats för avhängning och skoförvaring. Slitstarkt grått vinylklickgolv och väggar i vit panel ger ett trevlig och ombonat intryck. Vidare in nås trappa till övervåningen samt ingång till entréplanets övriga rum.
Kök
Luftigt och rymligt kök, renoverat 2017, med plats för stor matplats och fint ljusinsläpp från tre fönster. Laminatgolv och tapetserade väggar tillsammans med grå köksluckor och mörk laminatbänkskiva ger ett stilrent intryck. Utrustat med induktionshäll, spisfläkt, diskho, integrerad ugn och mikro, fullstor kyl och frys samt diskmaskin i rostfritt utförande.
Tvättstuga
Innanför köket når man en mindre tvättstuga med plastmatta på golvet. Praktisk förvaring i skåp samt utrustad med tvättmaskin och tvättho.
Badrum
Renoverat 2025 med praktisk plastmatta på golv och väggar. Utrustat med dusch med glasväggar, WC, handfat med kommod, spegelskåp samt förvaring i hylla.
Vardagsrum
Stort och flexibelt vardagsrum med plats för generös soffgrupp, TV-möbler och förvaring. Här finns extra yta som idag används som pysselhörna men som enkelt kan anpassas till matplats, kontor eller ytterligare sovrum. Parkett- och laminatgolv samt tapetserade väggar. Utgång till uterum.
Uterum
Fantastiskt uterum om ca 18 kvm, uppfört 2015. En naturlig förlängning av vardagsrummet som förlänger utesäsongen. Glaspartier, trägolv och gott om plats för matgrupp och sittplatser. Genom glaspartierna tar man sig ut på den lilla gräsplätten på baksidan som sedan kan leda dig ut direkt till promenadstråket bland träden.
Sovrum
Tapetserat sovrum med brunt laminatgolv. Gott om plats för stor säng, skrivbord och förvaring.
Klädkammare
Stor klädkammare mellan två av sovrummen med gott om förvaringsutrymme. Här finns även lucka upp till vinden.
Sovrum
Rymligt sovrum med blå tapeter och brunt golv. Här finns två 3-dörrars garderober samt gott om plats för stor säng med tillhörande möblemang.
Sovrum
Väl tilltaget sovrum som idag används som pysselrum. Plastmatta på golvet och äldre tapet på väggarna. Gott om plats för säng, skrivbord och förvaring.
Badrum
Badrummet på övre plan renoverades 2022 med plastmatta på golv och väggar. Utrustat med dusch med glasväggar, WC, handfat med kommod samt hylla längs ena väggen. Vädringsfönster finns.
Uteförråd
Stort uteförråd i direkt anslutning till entrén - perfekt för smidig och praktisk förvaring.



Tunnbrödet 76
*Areauppgifter enligt taxeringsinformationen
Rymligt och trivsamt Inglasat uterum.
Kommunalt vatten, Kommunalt avlopp.
Tomt ut mot skogsglänta och fritt läge
Garageplats i gemensam länga ingår.
Stadsplan (1979-06-21)
Gemensamhetsanläggning: Östersund tunnbrödet ga:1 ändamål: Vattenförsörjning, Avloppsanläggning, Radio- TV och/eller tele, Elledning och/eller belysning, Grönområden, Garage och/eller parkering, Kvartersanläggning
Last: Officialservitut Annat servitut, 23-BRU-1755.48
Förmån: Officialservitut Annat servitut, 23-BRU-1755.49
Grundutbud av TV via Tele2 ingår i samfällighetsavgiften.
Mobilt bredband / KOAX
Mitten/slutet av juni
Det finns 4 st pantbrev uttagna om sammanlagt 800 000 kr
Torvalla är ett välplanerat och familjevänligt område som erbjuder närhet till naturen. Med ett eget centrum och flera förskolor och skolor är det ett perfekt val för barnfamiljer som vill ha allt inom räckhåll.
Här finns gott om gröna strövområden, elljusspår för både promenader och skidåkning, samt många lekplatser som bjuder in till lek och rörelse. I centrum hittar du handel, restaurang, bibliotek och andra vardagsfunktioner – allt samlat på ett och samma ställe.
Med goda bussförbindelser tar du dig snabbt och enkelt till centrala Östersund, vilket gör området attraktivt även för den som pendlar eller vill ha nära till stadens utbud av kultur, shopping och nöjen.
Köpa, sälja eller värdera bostad i Torvalla? Kontakta våra mäklare i Östersund! Passa också på att anmäla dig till vår kostnadsfria söktjänst Boagenten som hjälper dig att hitta ditt drömboende.
Kontakta mäklaren om du behöver hjälp att ta fram en boendekalkyl.
När du köper din bostad genom Bjurfors kan du ansöka om bolån till en förmånlig ränta hos våra banksamarbetspartners Söderberg & Partners och SEB.
Bokad visning. Anmäl dig på bjurfors.se eller ring Bjurfors 072-529 93 04
Ansvarig mäklare