-
Köpa
Köpa -
Sälja
Sälja - Hitta bostad
- Skapa bevakning
- Hitta mäklare
En spektakulär enplanare från Trivselhus med exklusiva tillval. Toppenläge, stillfull & energismart.
Habo - Bränninge , Habo
*Areauppgifter enligt taxeringsinformationen
En familjefullträff på populära Bränninge. Tilltalande enplansvilla med hög standard, påkostade materialval & ett av få hus i området med bergvärme.
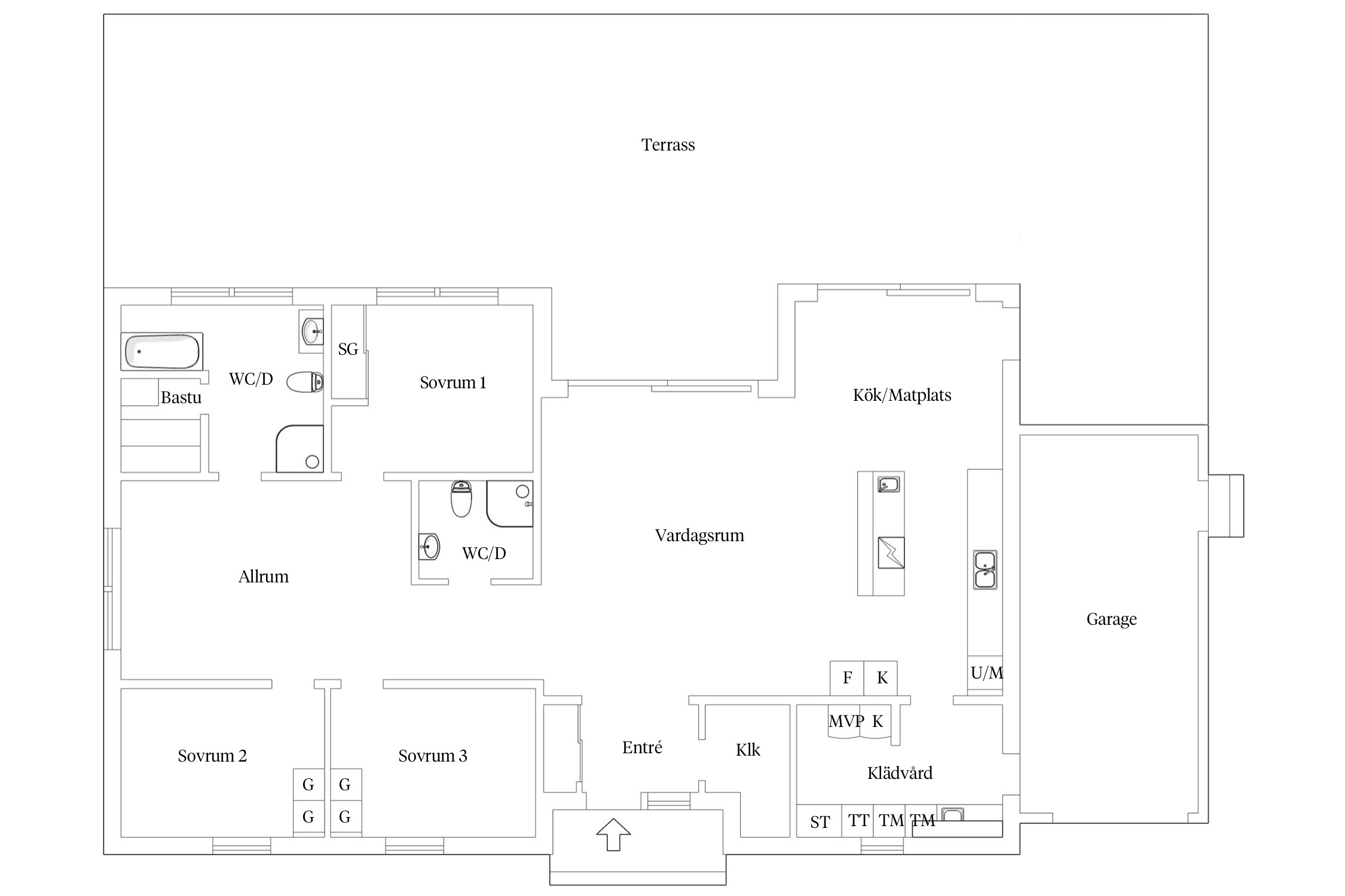
Bjurfors har fått förmånen att bekanta sig med ett av Bränninges finaste hus, dessutom är det ett enplanshus med utökad takhöjd och sömlös planlösning mellan inne och ute. Nuvarande ägare var med i byggprocessen och har format huset precis som de velat vilket inneburit att mycket är förändrat, tillagt och förbättrat utifrån hur ett likande kataloghus hade sett ut (Trivselhus - Östersund). Här har man låtit materialval, finess och funktion stå i centrum vilket gett ett resultat utöver det vanliga. Addera en trädgårdsmiljö utan direkt insyn, gott om sol och frihet så blir det här ett riktigt bra boende. Med tre sovrum, två vardagsrum, två badrum varav ett med bastu och en härligt öppen planering av de sociala ytorna bor familjen såväl rymligt som bekvämt. Dubbla skjutdörrar ut till altandäcket suddar ut gränsen mellan inne och ute och under sommaren flyttar vardagsrummet gärna ut i grönskan. I huset samlas familjen gärna i de centrala och öppna ytorna runt köksön. Här diskuterar man dagens händelser, spelar spel och gör läxor. För den aktiva familjen finns det gott om stuvutrymmen och förvaringsmöjligheter och har barn barn som idrottar flera gånger i veckan är det guld värt att det finns två tvättmaskiner i husets tvättstuga.
Huset är klätt i stående vit träpanel, en klassisk och stilfull layout. På höger sida om huset finns ett garage med elport som också nås inifrån huset. I anslutning till garaget finns elbilsladdare redan installerat, praktiskt för alla er med elbil. Ytterligare en stor fördel stavas bergvärme, ett av få hus på hela Bränninge som har valt att investera i det istället för frånluftsvärmepump. Framför allt en stor fördel för plånboken då driftkostnaderna definitivt blir lägre.
Bränninge i Habo är ett område som vuxit snabbt och numera finns här två förskolor. Blandningen av fristående hus, radhus och bostadsrätter gör området levande och det kryllar av barnfamiljer så det finns alltid någon att leka med för barnen. Det är goda bussförbindelser in till Jönköping och till Habo centrum är det cirka tre kilometer.
Varmt välkomna att höra av er för mer information.
Att insidan i huset är påkostad är något som syns så fort man kliver innanför ytterdörren. Mycket är uppgraderat ett par klasser i jämförelse med standard. Samtliga vitvaror är från Siemens, köket är från Ballingslövs serie Bistro och det finns såväl frihängande takfläkt som en spishäll om 80 cm. I vardagsrummet finns två skjutdörrar från Schuko som sömlöst leder ut på altanen. I de båda badrummen är inredningen från Svedbergs och det ena badrummet är utrustat med såväl badkar som bastu. I tvättstugan har man hämtat inredning från Ballingslöv och den är utrustad med en torktumlare och två tvättmaskiner från Siemens. I tvättstugan (gömda bakom skjutdörrar) finns även bergvärmepumpen och den extra varmvattenberedaren, båda från IVT. Fönstren runt om är från Elitfönster, golvet är klätt med enstavsparkett från Kährs, innerdörrarna är massiva och belysningen styrs via Plejdsystem. Hela huset är uppvärmt av bergvärme och försett med vattenburen golvvärme.



Entréplan.
Bränninge 3:349
*Areauppgifter enligt taxeringsinformationen
Husets tomt är plan och lättskött. Här finns gott om plats för studsmattan, barnens lek och odling men även ett stort altandäck med pergola och vindskydd. Ett altandäck som löper från gavel till gavel och dessutom har en bredd som ger många olika sektioner och användningsområden.
Kommunalt vatten, Kommunalt avlopp.
Bilen ställs antingen på garageuppfarten eller i garaget som är försett med elektrisk port.
Detaljplan (2015-12-10)
Fastigheten är ansluten till fiber.
Observera att i kostnad för el och energiåtgång i kWh ingår även laddning av två elbilar.
Det finns 3 st pantbrev uttagna om sammanlagt 4 457 600 kr
Habo ligger cirka 1,7 kilometer norrut sett från Jönköping. Ett blomstrande samhälle med en mysig stadskärna fullt försedd med allt som behösv för ett bekvämt liv. Här finns matbutiker, kaffé, post, systembolag och restauranger.
Här finns något för alla. Närheten till skogen och naturen, aktiva idrottsföreningar och dessutom är det praktiskt att pendla till både Jönköping och Skövde både via buss och tåg.
Bräninge är ett nytt bostadsområde som växer fram strax söder om Habo. Barnvänligt och försett med skolor och förskolor. Här blandas bostadsrätter med friköpta villor i naturnära miljö.
Köpa, sälja eller värdera bostad i Habo - Bränninge? Kontakta Bjurfors mäklare i Jönköping! Passa också på att anmäla dig till vår kostnadsfria söktjänst Boagenten som hjälper dig att hitta ditt drömboende.
Kontakta mäklaren om du behöver hjälp att ta fram en boendekalkyl.
När du köper din bostad genom Bjurfors kan du ansöka om bolån till en förmånlig ränta hos vår samarbetspartner SEB.
Ansvarig mäklare