-
Köpa
Köpa -
Sälja
Sälja - Hitta bostad
- Skapa bevakning
- Hitta mäklare
Kolonidröm med stor tomt och soligt läge på Fjällvägen 67
Tokarp- Tokarps koloniförening, Jönköping
*Mätningen är uppskattad. Kontroll rekommenderas om uppgiften är av vikt för köparen.
Varmt välkomna att boka in er.
På Förhand ligger bostäder som av olika anledningar inte är ute till försäljning just nu men som kan komma att säljas om förutsättningarna är rätt.
Ett riktigt smultronställe där drömmar om lugn och grönska blir verklighet!
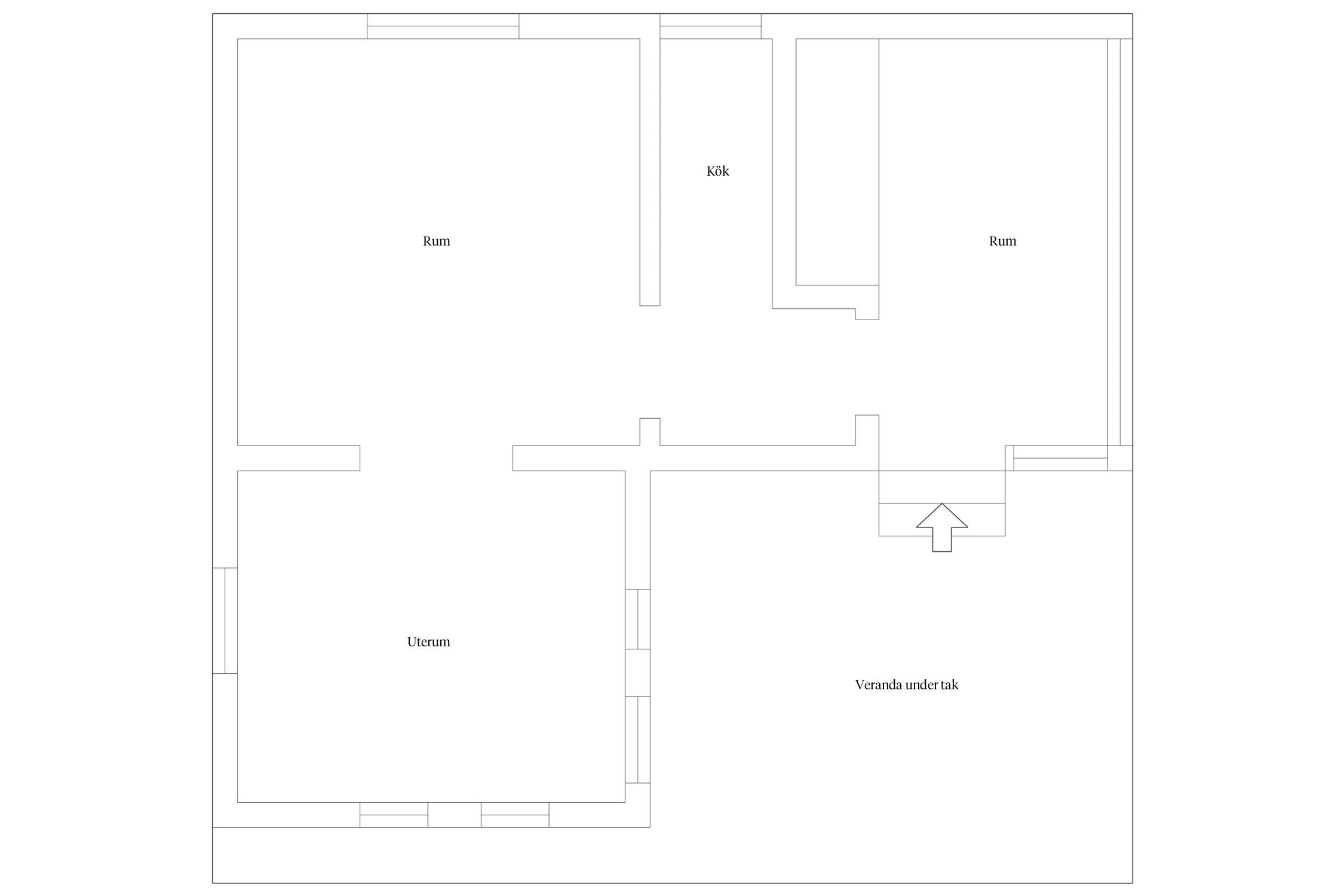
Välkommen till en idyllisk kolonistuga som andas sommar, lugn och livskvalitet. På Fjällvägen 67 har du en av de större tomterna i området, hela 450 kvm, jämfört med de övriga som vanligtvis är cirka 300 kvm. Stugan har ett populärt läge med sol, fin utsikt och en altan i söderläge.
Ett perfekt ställe för dig som längtar efter en fridfull plats att njuta av lediga dagar, läsa en bok i solen eller pyssla med växterna. Stugan erbjuder ett litet kök med indragen el, ett mysigt sällskapsrum och ett sovrum. För den som önskar vatten är det förberett framdraget till huset.
Tomten är en blomstrande oas med ett överflöd av frukt och bär. Här kan du plocka äpplen och plommon direkt från träden, njuta av solmogna amerikanska blåbär och smaka på jordgubbar som vuxit i sommarsolen. Skörda svarta vinbär och gör kanske din egen saft. Här finns även växthus och odlingsland. Förutom allt ätbart bjuder trädgården på riklig blomsterprakt.
Det här är platsen där sommaren känns lite längre, där kaffet smakar bättre utomhus och där kvällarna avslutas med fågelkvitter och utsikt över området från din alldeles egna lilla stuga.
Tokarps koloniområde ligger strax utanför stan, lättillgängligt med cykel, buss eller bil. Förutom den egna stugan får du som innehavare tillgång till områdets gemensamma faciliteter såsom toaletter, duschar och tvättmöjligheter. Här finns även en trivsam samlingslokal och en gäststuga som medlemmarna i föreningen har möjlighet att boka.



Planskis
Jönköping Del av Jönköping Tokarp 7:1
*Mätningen är uppskattad. Kontroll rekommenderas om uppgiften är av vikt för köparen.
2009
Nytt kök samt nya ytskikt i hela stugan med gipsskivor mm
2010
Nytt elskåp, ledningar och uttag överallt.
2011
-Nya rännor och stuprör
-Två inköpta nya oljeelement
-Persienner
- Nybyggt isolerat förråd med plåttak och rännor
2012
-3st nya skjutglasfönster
-6st nya fönster till uterummet
-Nybyggnation av uterummet
-Ny dörr
På tomten finns ett kallförråd, en isolerad bod samt ett växthus.
Kommunalt sommarvatten
Arrendeavgiften innefattar arrende, medlemsavgift, sparfond och vattenavgift.
Du som äger tomtmark som är bebyggd enbart med småhus på ofri grund betalar fastighetsavgift med 0,75 procent av byggnadens taxeringsvärde upp till ett halvt takbelopp (Aldrig mer än 5 037kr). Säljarens senaste fastighetsavgift var på 1507kr.
Enligt överenskommelse
Jönköping ligger vackert beläget längs Vätterns strand. Här kan du njuta av stadspuls, strandliv och naturupplevelser. Det geografiska läget gör det lätt för många att ta sig till Jönköping. Men också härifrån. Läget och enkelheten att ta sig till Sveriges storstäder och vidare ut i Norden och Europa är två av många anledningar till att många väljer att bo, leva och etablera sig här.
Jönköping erbjuder en kulinarisk resa av valmöjligheter. Med restauranger från alla delar av världen är utbudet stort. Delikatessbutiker, kaféer och gårdsbutiker ger en känsla av såväl lyx som av dåtid och gedigenhet. Här kan du uppleva smaken av Smålands natur - alltid nära staden.
Vätterstranden, som är belägen mitt i staden, är en prisad strand och badplats med havskänsla och härifrån har du en fantastisk utsikt. Med sin kilometerlånga strand är Vättern en plats för många. Här kan du njuta av klart och rent vatten med finkornig sandstrand. Spendera dina dagar med att ta det lugnt vid stranden, spela volleyboll eller ta en båttur på sjön.
Jönköping är inte bara en naturskön del av Småland – det är också en plats som vittnar om en svunnen tid. Den tidiga industriverksamheten placerade staden på kartan genom den välkända säkerhetständstickan.
Även konstnären John Bauers berömda sagofigur Tuvstarr återgavs i miljöer hämtade från regionen. Var i Jönköping du än sätter din fot, befinner du dig i en historisk miljö.
Jönköpingsregionen har Sveriges tredje bästa logistikläge och landets fjärde största län inom export. Jönköping ligger i navet mellan Stockholm, Göteborg och Malmö men även Oslo.
Den unika bredden i näringslivet i kombination med läget mitt i södra Sverige skapar goda möjligheter för företag att växa. Traditionell verkstadsindustri samsas med logistik- och handelsverksamheter, serviceföretag och organisationer som utvecklar världsledande spjutspetsteknologi.
I Jönköping finns även flera centrala och regionala myndigheter, organisationer och institutioner, lokaliserade (t.ex. Jordbruksverket, Skogsstyrelsen, Länsstyrelsen, Regionförbundet, Jönköping university, Elmia, Domstolsverket).
Jönköping University är ett modernt lärosäte som kännetecknas av internationalisering och entreprenörsanda. Inom både utbildning och forskning har Jönköping University ett nära samarbete med näringsliv och samhälle.
Jönköping University har cirka 11 000 studenter, varav cirka 1 960 är internationella. Lärosätet har cirka 800 anställda och samarbetar med cirka 350 internationella partneruniversitet och cirka 800 partnerföretag samt 1 000 partnerskolor inom lärarutbildningen. Lärosätet är ett av de främsta inom internationellt studentutbyte.
Köpa, sälja eller värdera bostad i Jönköping? Kontakta Bjurfors mäklare i Jönköping! Passa också på att anmäla dig till vår kostnadsfria söktjänst Boagenten som hjälper dig att hitta ditt drömboende.
Fjällvägen 67-68 (Tokarps koloniförening)
556 28 Jönköping
Visa i Google Maps (öppnas i nytt fönster)Kontakta mäklaren om du behöver hjälp att ta fram en boendekalkyl.
När du köper din bostad genom Bjurfors kan du ansöka om bolån till en förmånlig ränta hos våra banksamarbetspartners Söderberg & Partners och SEB.
Varmt välkomna att boka in er.
Ansvarig mäklare
Extra kontaktperson