-
Köpa
Köpa -
Sälja
Sälja - Hitta bostad
- Skapa bevakning
- Hitta mäklare
Djurängen, Kalmar
*I avgiften ingår värme, vatten, el, tv och internet samt bostadsrättstillägg. Utöver månadsavgiften tillkommer ett obligatoriskt tillägg om 100 kr/månad för cykelförråd.
Bokad visning. Anmäl dig på Bjurfors.se eller kontakta ansvarig fastighetsmäklare.
Bokad visning. Anmäl dig på Bjurfors.se eller kontakta ansvarig fastighetsmäklare.
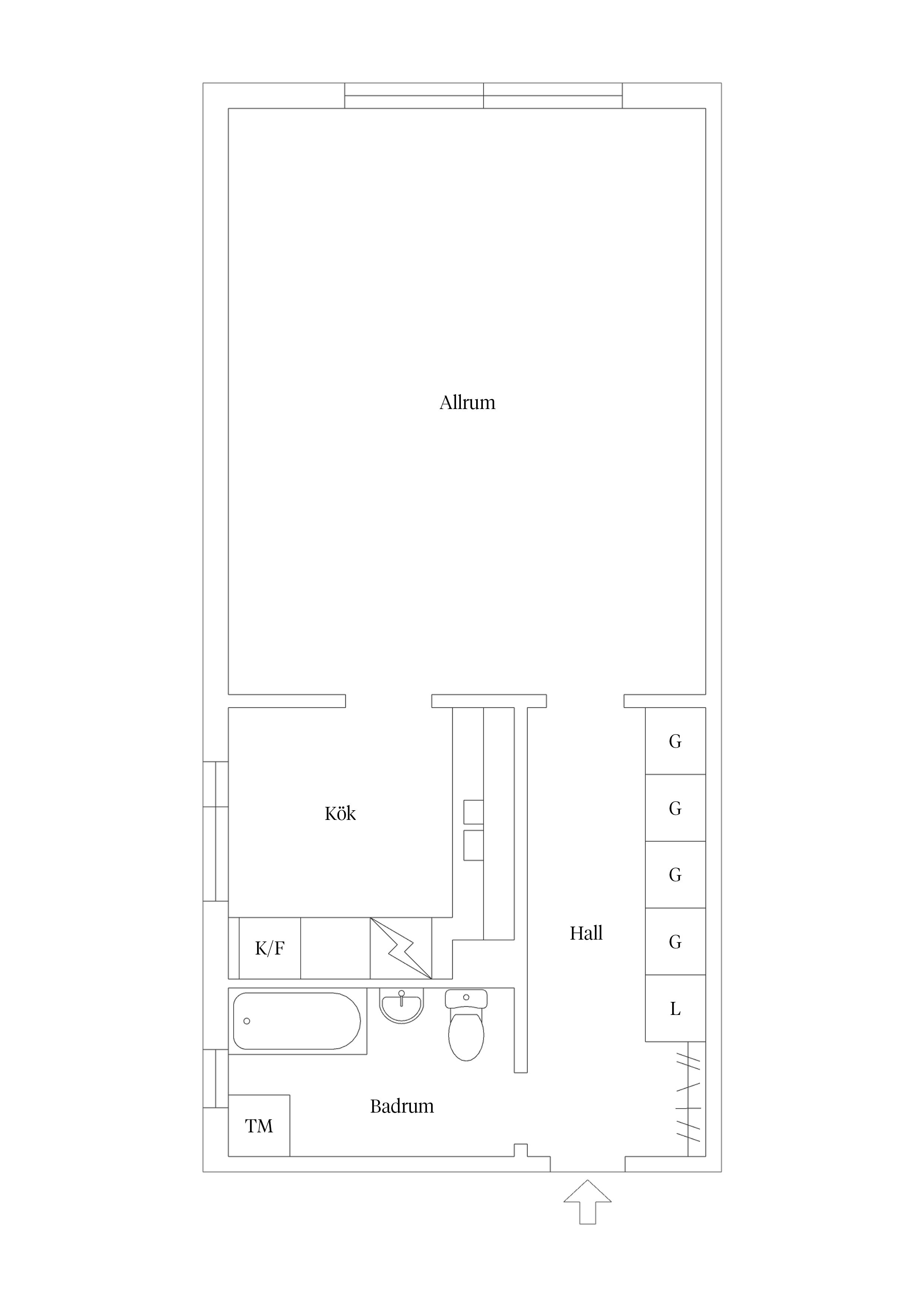
Högst upp i huset välkomnas du till denna kvadratsmarta enrummare på trivsamt hörnläge. Här erbjuds ett bekymmersfritt och bekvämt boende på hela 43,5 kvadratmeter, där det generösa ljusinsläppet bidrar till en luftig och inbjudande atmosfär. Perfekt som första boende, studentlägenhet – eller varför inte som övernattningslägenhet?
Hallen är inbjudande och erbjuder optimal förvaring i flera garderober. Från hallen når du allrummet, som har plats för både en större säng och en rymlig soffgrupp. Köket är stilrent och har goda arbetsytor samt gott om förvaring i skåp. Här finns även plats för en mindre matgrupp vid fönstret, med fin utsikt över föreningens grönskande innergård. Badrummet har ett härligt ljusinsläpp och är utrustat med egna tvättmöjligheter som underlättar vardagen. Ett extra stort plus är att det i den inre reparationsfonden finns över 7 900 kr som kommer vara en trygghet för nästa ägare.
På Lybecksvägen 5C bor du i en stabil och välskött förening med ett utmärkt läge. Utanför porten möts du av grönskande omgivningar och mysiga promenadstråk. I närområdet finns välsorterade livsmedelsbutiker, gym och annan service du kan behöva. Kommunikationerna är goda, med fina cykelvägar in till citykärnan och en busshållplats endast en kort promenad bort.
HALL
Inbjudande och ljus hall med utmärkt förvaring i flertalet garderober.
KÖK
Ljust kök med vit köksinredning och bänkskiva i trä. Köket är utrustat med spis och kyl/frys.
ALLRUM
Rymligt allrum med fint golv och ljusa väggar. Här ges plats för såväl större säng som soffgrupp, eller varför inte matgrupp.
BADRUM
Ljus våtrumsmatta och ljusa väggar samt fint ljusinsläpp från fönster. Badrummet är utrustat med toalett, badkar, handfat och spegel samt tvättmaskin.



I avgiften ingår värme, vatten, el, tv och internet samt bostadsrättstillägg. Utöver månadsavgiften tillkommer ett obligatoriskt tillägg om 100 kr/månad för cykelförråd.
Till bostaden hör ett förråd.
Garageplats går att hyra. Till garageplatsen är det separat kö.
Parkeringsplats går att hyra. Till parkeringsplatsen är det separat kö.
Bostadsrättens indirekta nettoskuldsättning baseras på föreningens skulder/lån minus föreningens räntebärande tillgångar och likvida medel. Beräkningen är gjord och baseras enbart på den senaste tillgängliga årsredovisningen. För mer information kontakta ansvarig fastighetsmäklare.
Driftskostnaderna är uppskattade för 1 person.
*Betalas av köpare
HSB Brf Bruksgården är en äkta bostadsrättsförening och äger samt förvaltar byggnaderna på fastigheten Majsen 1 i Kalmar. I föreningen finns 272 lägenheter, där samtliga är upplåtna med bostadsrätt. Dessutom finns en lokal upplåten med hyresrätt. Adresserna som hör till föreningen är Baltiska vägen 2-8, Lybecksvägen 1-19.
För vidare information gällande föreningen och dess ekonomi vänligen kontakta HSB eller kolla på föreningens hemsida: https://www.hsb.se/sydost/brf/bruksgarden/
Fastigheten är fullvärdesförsäkrad i Länsförsäkringar Kalmar Län
2004 - Byte av varm- och kallvattenkulvertar. Nya ljuddämpande takplattor i trapphusen samt kvartershuset.
2005 - Nybyggnad av 11 garage utmed Djurängsvägen. Samtliga P-platser har breddats.
2006 - Installation av jordfelsbrytare i samtliga lägenheter.
2008 - Energideklaration.
2009 - Byte av takpapp på samtliga hus.
2011 - Utvändig renovering av kvartershus.
2013 - Fläktmotorer är bytta till energisnålare och temperatur reglerade. Värmefotografering utförd av fasaden. Montering av snörasskydd på samtliga tak. Tätningslister bytta i samtliga lägenheter.
2015 - Markarbeten på innegårdar 2-4, 6-8.
2016 - Omplantering av innergårdar Lybecksvägen 5-7.
2017 - Spolning av avlopp, fotografering av stammar. Satt in passagesystem. Asfaltsarbete på parkering utmed Lybecksvägen.
2018 - Miljöförbättring innergård Lybecksvägen 13-15.
2019 -Energideklaration. Miljöförbättring innergård Lybecksvägen 13-15.
2020 - Installerat två laddningsstolpar med uttag för fyra elbilar.Utökat antalet, samt asfalterat, parkeringsplatserna på Lybecksvägen 17-19. Miljöförbättrad innergård Lybecksvägen 17-19.
2022 - Byte till led-lampor i trapphus och på gården.
2024 - Installation solpaneler och sex laddplatser till bil.
Garageplats går att hyra. Till garageplatsen är det separat kö.
Parkeringsplats går att hyra. Till parkeringsplatsen är det separat kö.
TV via Tele2, grundutbud ingår i avgiften.
Bredband via Tele2, 100 Mbit/s bredband ingår i avgiften.
I föreningen finns bastu, festlokal, gästlägenhet, motionsrum, solarium, hundrastgård och ett nybyggt utegym. Det finns även möjlighet att hyra odlingslotter.
Omtyckta Djurängen är ett område med blandad bebyggelse av såväl villor som lägenheter, som blir alltmer central i takt med att Kalmar växer. Läget är trivsamt och lugnt med grönskande natur enbart ett stenkast bort. På kort avstånd når du välsorterade matbutiker och Hansa Citys breda utbud av shopping. Är du fotbollsfantast bor du på perfekt läge med endast en kort promenad ifrån Guldfågeln Arena. Dessutom finns bra förskolor och skolor samt goda kommunikationsmöjligheter med cykelväg in till stan och bra bussförbindelser.
Köpa, sälja eller värdera bostad i Djurängen? Kontakta våra mäklare i Kalmar! Passa också på att anmäla dig till vår kostnadsfria söktjänst Boagenten som hjälper dig att hitta ditt drömboende.
Kontakta mäklaren om du behöver hjälp att ta fram en boendekalkyl.
När du köper din bostad genom Bjurfors kan du ansöka om bolån till en förmånlig ränta hos vår samarbetspartner SEB.
Bokad visning. Anmäl dig på Bjurfors.se eller kontakta ansvarig fastighetsmäklare.
Bokad visning. Anmäl dig på Bjurfors.se eller kontakta ansvarig fastighetsmäklare.