-
Köpa
Köpa -
Sälja
Sälja - Hitta bostad
- Skapa bevakning
- Hitta mäklare
Getingen, Kalmar
*I avgiften ingår värme, vatten, tv och internet.
**Area enligt föreningen.
Bokad visning. Anmäl dig på Bjurfors.se eller kontakta ansvarig fastighetsmäklare.
Med hiss direkt från markplan tar du dig bekvämt upp till fjärde våningen och vidare genom loftgången som välkomnar dig in till detta kvadratsmarta hem på Brändtorpsvägen 24.
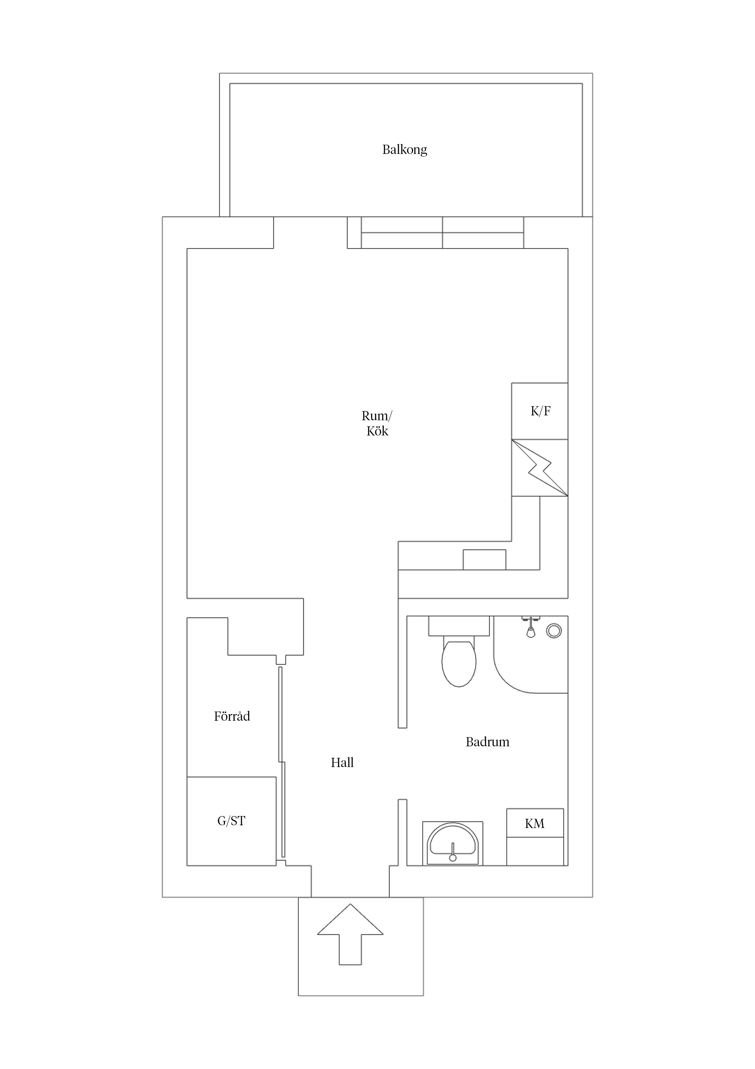
En välplanerad enrummare om 27 kvadratmeter – perfekt som första boende, studentlägenhet eller övernattningsbostad. Ett hem som andas stilsäkerhet och som, tillsammans med den ljusa interiören och de stora fönsterpartierna som ger ett magiskt ljusinsläpp, skapar en luftig och trivsam atmosfär. Här är det bara att flytta rakt in och trivas från första stund.
Hallen välkomnar dig in, och fötterna placerar du på ett vackert parkettgolv som löper genom hela bostaden. Du leds vidare till hemmets hjärta där allrum och kök harmonierar på ett fint sätt, med ett fantastiskt ljusinsläpp från de generösa fönsterpartierna. Köket går i stilrent vitt och är utrustat med allt som behövs för att briljera på matlagningsfronten. I anslutning finns dessutom plats för en matgrupp – perfekt för att samla familj och vänner. Allrummet erbjuder gott om utrymme för en större säng om så önskas. Härifrån når du även den mysiga balkongen, som blir den självklara platsen att umgås på under sommarens ljumma kvällar, med magisk vy över den grönskande och lummiga omgivningen. Därtill erbjuds ett rymligt badrum utrustat med egna tvättmöjligheter samt goda förvaringsutrymmen bakom praktiska skjutdörrar i hallen.
Läget är utmärkt, med närhet till allt du kan tänkas behöva. I området finns fina promenadstråk både vid grönska och vatten. Till city tar du dig smidigt med en kort cykeltur eller med bussen som går endast ett stenkast bort. I närheten finns dessutom en välsorterad livsmedelsbutik, gym och annan service. Varmt välkommen att upptäcka denna bostadspärla på egen hand!
HALL
Välkomnande och ljus hall som ger plats för ytterkläder och goda förvaringsmöjligheter bakom skjutdörrarna.
KÖK
Vit köksinredning med vitt kakel ovan bänkskiva. Köket är utrustat med spis, fläkt samt kyl/frys. Köket går i öppen och social planlösning med allrummet.
ALLRUM
Luftigt och ljust allrum med fint parkettgolv och vita väggar. Här ges plats för möblemang som säng, matgrupp eller soffgrupp om så önskas. Härifrån når du den generösa balkongen som bjuder på härlig eftermiddags- och kvällssol.
BADRUM
Grå våtrumsmatta och vitt kakel på väggar. Badrummet är utrustat med toalett, dusch, handfat med tillhörande kommod, spegelskåp, kombinerad tvättmaskin och torktumlare med ovanpåliggande arbetsbänk samt skåp.



*Area enligt föreningen.
I avgiften ingår värme, vatten, tv och internet.
Via allrummet når du den generösa balkongen i härligt solläge.
Bostadsrättens indirekta nettoskuldsättning baseras på föreningens skulder/lån minus föreningens räntebärande tillgångar och likvida medel. Beräkningen är gjord och baseras enbart på den senaste tillgängliga årsredovisningen. För mer information kontakta ansvarig fastighetsmäklare.
Driftskostnaderna är enligt säljarens uppgifter för 1 person.
*Betalas av säljare
Brf Getingen i Kalmar är en äkta bostadsrättsförening som förvaltar fastigheten Tallbocken 1 i Kalmar kommun. Föreningens hus stod färdigt för inflyttning i augusti 2018 med 38 bostadsrätter och 8 hyresrätter.
För vidare information om föreningen och dess ekonomi, kontakta ansvarig fastighetsmäklare.
Det finns 13 st parkeringsplatser i entréplan. Separat kö tillämpas. P-platser under tak och p-platser delvis under tak, separat kö.
Tv via Telia (fiber), paket Lagom ingår. Internet via Telia (fiber), 100/100 Mbit/s ingår.
I föreningen har medlemmarna tillgång till två plusrum, det ena på våning 3 (gästrum) och det andra i markplan (hobby-/studierum). Att hyra gästrummet kostar 200 kr första natten och därefter 100 kr/natt.
I huset finns också tre gemensamma balkonger i söderläge på våning 3-5 samt en stor takterrass med gemensamma loungemöbler.
Getingen är ett av Kalmars mest eftertraktade område, där stadspulsen möter den rofyllda naturen. Läget är perfekt, med grönskande omgivning, lummiga promenadstråk och fina badplatser på bekvämt avstånd, samtidigt som du med enkelhet når Kalmar city med rikt utbud av butiker, restauranger och caféer. Därtill finns goda kommunikationer med såväl fina cykelvägar som goda bussförbindelser samt smidig access till såväl Ölandsbron som E22:an.
Köpa, sälja eller värdera bostad i Getingen? Kontakta våra mäklare i Kalmar! Passa också på att anmäla dig till vår kostnadsfria söktjänst Boagenten som hjälper dig att hitta ditt drömboende.
Kontakta mäklaren om du behöver hjälp att ta fram en boendekalkyl.
När du köper din bostad genom Bjurfors kan du ansöka om bolån till en förmånlig ränta hos vår samarbetspartner SEB.
Bokad visning. Anmäl dig på Bjurfors.se eller kontakta ansvarig fastighetsmäklare.