-
Köpa
Köpa -
Sälja
Sälja - Hitta bostad
- Skapa bevakning
- Hitta mäklare
Skälby , Kalmar
*I avgiften ingår värme, vatten och nätavgift el samt bostadsrättstillägg. Utöver månadsavgiften tillkommer ett obligatorisk tillägg om 174 kr/månad avseende internet. Föreningen har individuell mätning och debitering av el, där medlemmen debiteras utefter faktisk förbrukning.
**Area enligt föreningen.
Bokad visning. Kontakta mäklaren för anmälan.
Bokad visning.
Nu presenteras äntligen Kungsgårdsvägen 24A, med bekvämt avstånd in till centrum så är det inte svårt att förstå varför detta är ett trivsamt läge.
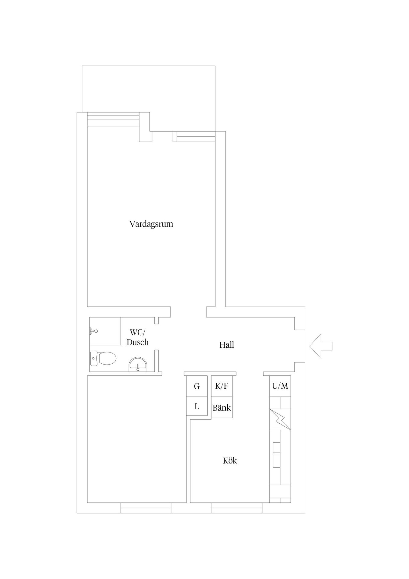
Med hiss direkt från markplan tar du dig bekvämt upp till tredje våningen och välkomnas av denna effektivt planerade tvårummare där varje rum har sin givna funktion och möbleringens möjligheter som i stort sätt sköter sig själv. Lägenheten är i bra skick och är mycket kvadratsmart. Detta är kort sagt en riktig pärla med allt man kan önska sig. Hemmets hela 50 kvadratmeter fördelar sig på ett rymligt sovrum, stort vardagsrum, kök med matplats samt ett fräscht badrum. Därtill erbjuds en ljuvlig inglasad balkong som säljaren haft stor glädje utav under sommarhalvårets alla varma månader.
Välkommen att bosätta dig i ett eftertraktat kvarter samt i en välskött och stabil förening. Här bor du med direkt närhet till vackra naturomgivningar, grönskande promenadstråk, välsorterad livsmedelsbutik och annan service. På Kungsgårdsvägen bor du bekvämt med cykelavstånd in till centrum och dess breda utbud av restauranger, shopping och caféer. Dessutom når du dessutom Hansa city på kort avstånd. Kommunikationerna är utmärkta med fina cykelvägar, bra bussförbindelser och smidig access till motorväg.



*Area enligt föreningen.
I avgiften ingår värme, vatten och nätavgift el samt bostadsrättstillägg. Utöver månadsavgiften tillkommer ett obligatorisk tillägg om 174 kr/månad avseende internet. Föreningen har individuell mätning och debitering av el, där medlemmen debiteras utefter faktisk förbrukning.
Till lägenheten hör ett förråd, matkällarförråd samt cykelförråd.
Via sällskapsrummet nås den stora inglasade balkongen som säljaren haft stor glädje utav.
Parkeringsplats går att hyra för ca 150 kr/mån, separat kö.
Bostadsrättens indirekta nettoskuldsättning baseras på föreningens skulder/lån minus föreningens räntebärande tillgångar och likvida medel. Beräkningen är gjord via Bopedia. För mer information kontakta ansvarig fastighetsmäklare.
*Betalas av köpare
Riksbyggen Brf Hagtorpet är en äkta förening och äger fastigheterna Jägaren 1 och 2, Kruthornet 1 samt Jaktväska 1 i Kalmar Kommun. Föreningen består av 24 st byggnader uppförda år 1954-1957, med 498 lägenheter, 10 hyresrätter, 2 gästlägenheter och 1 uthyrningslokal. Fastigheternas adresser är Kungsgårdsvägen 14-34, Fatabursvägen 1-19 och Stallgärdsgatan 2-4 i Kalmar.
I föreningen finns gästlägenhet vilket underlättar när långväga gäster är på besök. I övrigt finns bastu, gym och samlingslokal. Går att hyra hobbyrum.
För vidare information om föreningens ekonomi, se årsredovisning.
Fastigheterna är fullvärdesförsäkrade i Folksam.
1993-1995 - Stambyte, badrumsrenovering samt köksrenovering.
2004 - Uppförande av 4 miljöhus.
2005 - Utbyggnad och inglasning av balkongerna.
2008 - Ombyggnad av lokal till 3 studentrum.
2010-2011 - Omläggning av yttertak.
2011 - Ombyggnad av källarlokal till lägenhet.
2012 - Passersystem entré- och källardörrar.
2016 - Föreningen bytte namn från Riksbyggen Kalmarhus 10 till Riksbyggen Brf Hagtorpet.
2017 - Fönsterbyte, hissar, markytor, tvättstugeutrustning och bostäder.
2019 - Porttelefon, samt skärm i trapphuset för bokning av föreningens lokaler, bla tvättstuga.
2020 - Belysning.
2021 - Fasader.
2022/2023 - Installation av solceller.
2024-2025 - Renovering av hissar (pågående).
Parkeringsplats går att hyra för ca 150 kr/mån, separat kö.
Tv via Tele2 eller Telia.
Bredband via Telia fiber eller Tele2. Bredband 250/250 Mbit/s samt bredbandstelefoni.
Det finns cykelförråd, matkällare, vindsförråd, tvättstugor och grovtvättstuga. I föreningen finns två övernattningslägenheter, bastu och gym.
Skälby är ett av Kalmars många grönområden. 4H-gårdens djur och byggnader gör att man blir en del av lantgårdens gamla atmosfär. Det är barnvänligt och trafikfritt, med Kalmars största lekplats. I området finns både hus och lägenheter och trivseln är stor bland invånarna. Kommunikationerna till stan är utmärkta och det finns gym, livsmedelsbutiker och köpcenter inom bekvämt avstånd.
Köpa, sälja eller värdera bostad i Skälby? Kontakta våra mäklare i Kalmar! Passa också på att anmäla dig till vår kostnadsfria söktjänst Boagenten som hjälper dig att hitta ditt drömboende.
Kontakta mäklaren om du behöver hjälp att ta fram en boendekalkyl.
När du köper din bostad genom Bjurfors kan du ansöka om bolån till en förmånlig ränta hos vår samarbetspartner SEB.
Bokad visning. Kontakta mäklaren för anmälan.
Bokad visning.
Ansvarig mäklare