-
Köpa
Köpa -
Sälja
Sälja - Hitta bostad
- Skapa bevakning
- Hitta mäklare
Sjönära 30-talsvilla i gott skick!
Hovmantorp, Lessebo
*Areauppgifter enligt taxeringsinformationen
På Vikingagatan 7, med sjön Rottnen bara ett stenkast bort, väntar denna varsamt renoverade 30-talsvilla där tidstypisk charm möter nutida bekvämlighet. Ett hem som präglas av karaktär, harmoni och genomtänkta lösningar – perfekt för er som söker något utöver det vanliga!
Villan erbjuder 134 kvadratmeter boyta fördelat över två plan, kompletterat av ett gårdshus om 31 kvadratmeter som öppnar upp för många möjligheter, oavsett om det används som gästhuset, hemmakontor eller ateljé. Här finns även moderna bekvämligheter såsom solceller, fjärrvärme, fiber och laddbox – ett hem rustat för både nutid och framtid.
Invändigt möts ni av ljusa och inbjudande sällskapsytor där 30-talets själ samsas med moderna materialval. Planlösningen är både funktionell och trivsam med generösa umgängesytor som bjuder in till såväl vardag som fest. Köket är stilrent och välutrustat med gott om arbetsyta – en naturlig plats att samlas kring. En trappa upp återfinns bostadens privata del med rogivande sovrum, ett badrum samt en separat relaxavdelning med bastu – en plats för avkoppling och återhämtning.
Trädgården är lika inbjudande som villans interiör. Här finns ett charmigt växthus för odlingsintresserade och en mysig pergola som lockar till långa sommarkvällar utomhus – perfekt för både avkoppling och sociala stunder.
Här bor ni i ett lugnt och omtyckt område med natur, vatten och rekreation runt knuten, samtidigt som service och kommunikationer nås smidigt. Ett boende som kombinerar själ, komfort och livskvalitet – varmt välkomna hem.
Välkommen att kontakta ansvarig mäklare för mer information!
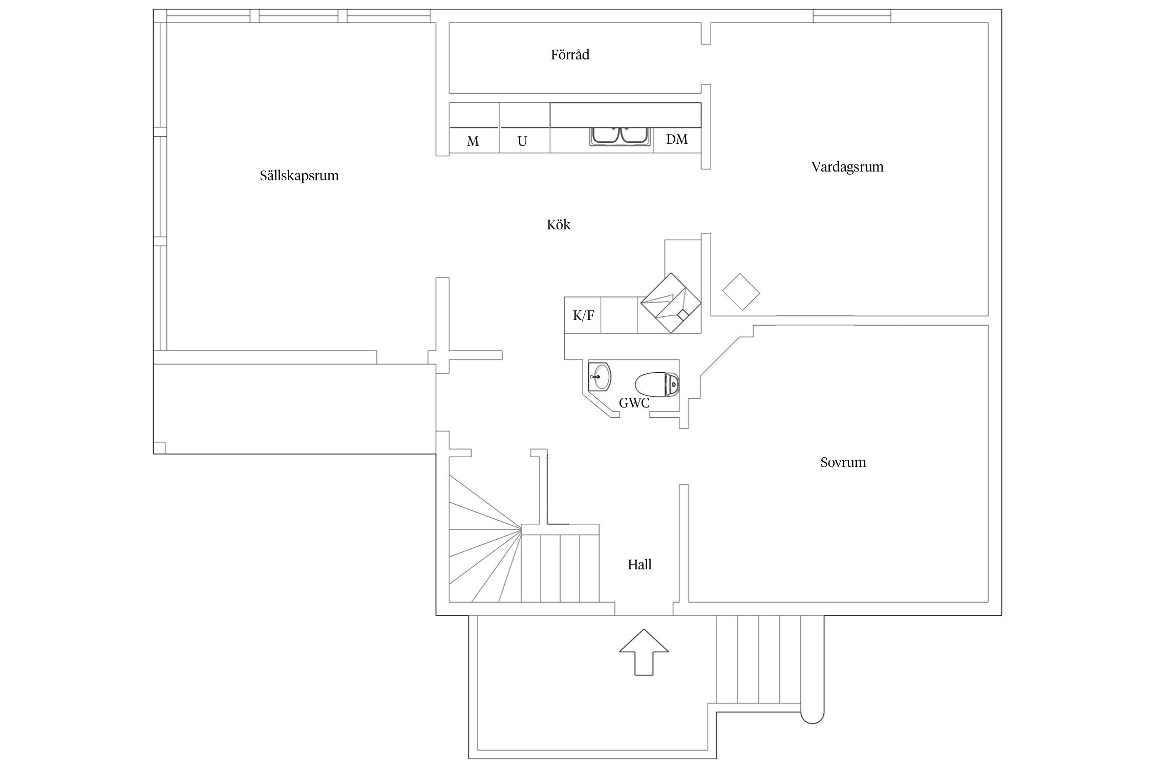
Entréplan
Hall
Inbjudande hall med ljus färgsättning på väggar. Hallen får ett fint ljus från ytterdörren och fönster ovanför ytterdörren. Här finns plats för avhängning och plats åt en mindre fristående förvaringsmöbel. Från hallen nås trappan till övre plan.
Sovrum
Vackert sovrum som ger plats åt en dubbelsäng med tillhörande sängbord.
Gästtoalett
Praktiskt placerad gästtoalett med handfat och WC.
Kök
Trivsamt kök där det erbjuds trevliga ytor för matlagning och umgänge. Köksinredningen består av träluckor och gott om förvaringsmöjligheter. Köket är utrustat med ugn, mikro, spis, spisfläkt, diskmaskin samt kombinerad kyl/frys. Planlösningen är luftig och med ljusinsläpp från två väderstreck. Köket är placerat centralt och ger en härlig kontakt med både vardagsrum och sällskapsrum.
Vardagsrum
Vardagsrum med tilltagna ytor som skapar en social känsla som uppmuntrar till samvaro. Rummet har goda möbleringsalternativ med plats stor soffgrupp. Kaminen skapar både värme och mysfaktor i rummet.
Sällskapsrum
Sällskapsrum: Vidare in i bostaden ligger det ljusa och rymliga sällskapsrummet som genomsyras av underbara ljusinsläpp och goda möbleringsmöjligheter. De stora fönsterpartierna förstärker ljuset ytterligare. Här finns möjlighet att möblera upp med ett stort matbord och ytterligare möblemang om så önskas.
Övre plan
Sovrum
Trivsamt sovrum med smarta ytor. Här finns en platsbyggd säng samt gott om förvaring.
Sovrum
Avkopplande sovrum som kan möbleras med säng och förvaringsmöbler. Fönster skänker fint ljusinsläpp.
Badrum
Badrum som är utrustat med dusch, WC, tvättställ med kommod samt spegelskåp med förvaring.
Relaxavdelning
Generös och tilltagen relaxavdelning med bastu, dusch, handfat, yta för loungemöbler samt tvättmöjligheter. Härifrån har ni fin utsikt över området.



Värend 18
*Areauppgifter enligt taxeringsinformationen
2010
Kommunalt vatten, Kommunalt avlopp.
Vattenskyddsområde (1997-11-28) Tomtindelning (1959-10-21) Stadsplan (1956-06-07)
Last: Ledningsrätt Elektronisk kommunikation, 0761-2017/7.1
Last: Ledningsrätt Fjärrvärme, 0761-16/4.1
Förmån: Officialservitut Väg, 07-HOS-297.1
via fiber
Det finns 12 st pantbrev uttagna om sammanlagt 1 160 000 kr
Vill du köpa, sälja eller värdera bostad i Kronobergs län? Kontakta våra mäklare i Växjö! Passa också på att anmäla dig till vår kostnadsfria söktjänst Boagenten som hjälper dig att hitta ditt drömboende.
Här hittar du alla våra lediga bostäder till salu i Kronobergs län just nu!
Kontakta mäklaren om du behöver hjälp att ta fram en boendekalkyl.
När du köper din bostad genom Bjurfors kan du ansöka om bolån till en förmånlig ränta hos våra banksamarbetspartners Söderberg & Partners och SEB.
Ansvarig mäklare