-
Köpa
Köpa -
Sälja
Sälja - Hitta bostad
- Skapa bevakning
- Hitta mäklare
Elegant och tidlös bostad belägen högst upp i en sekelskiftesfastighet!
Centrum, Växjö
*inkl. värme, VA och sophantering
**Föreningens information
På Förhand ligger bostäder som av olika anledningar inte är ute till försäljning just nu men som kan komma att säljas om förutsättningarna är rätt.
Välkommen till en elegant och tidlös 2,5-rumslägenhet belägen högst upp i en vacker sekelskiftesfastighet mitt i centrala Växjö. Här bor ni i ett hem där klassiska detaljer möter modern komfort – med en lugn, grönskande innergård som kontrast till det levande stadslivet precis utanför porten. Dessutom finns det tillgång till en gemensam balkong mot innergården – en perfekt plats för en stunds avkoppling.
Bostaden är en representativ våning med generös takhöjd och med bevarad sekelskiftescharm såsom takrosetter, stuckatur, öppen spis och vackra dörrfoder. Den naturliga planlösningen skapar ett luftigt flöde mellan rummen, där fönsterpartierna bidrar med rikligt ljusinsläpp och förstärker känslan av rymd.
Lägenheten erbjuder ett charmigt och funktionellt kök med tidstypiska detaljer som harmonierar med bostadens stil – perfekt för såväl vardag som middagar med vänner. Det nyrenoverade badrummet är smakfullt inrett med moderna materialval och har dessutom en integrerad tvättdel med arbetsbänk och tvättmaskin – en praktisk lösning som förenklar vardagen. Den luftiga hallen binder samman bostadens rum på ett naturligt sätt och är tillräckligt stor för att idag fungera som en trevlig matsalsdel, vilket skapar extra sällskapsyta. Det rymliga sovrummet erbjuder gott om förvaring och en rofylld plats för återhämtning.
Det här är ett hem för er som söker något utöver det vanliga – där historisk charm kombineras med nutida bekvämlighet, i ett av stadens mest eftertraktade lägen.
Bostadens cityläge gör att ni har bekvämt avstånd till allt. Som granne finner ni Regionteatern, Kulturskolan och Ringsbergskolan som skapar en kulturell och kreativ miljö. Centrums stora utbud med mysiga butiker och prisbelönta restauranger adderar mervärde och livskvalitet. Naturen njuter ni av genom att ta en promenad runt Växjösjön och endast ett stenkast från boendet ligger Ringsbergs vackra ekar och den grönskande Hovsbergsparken. Dessutom tar ni er enkelt runt till resten av Växjö och andra städer genom pulserande resecentrum.
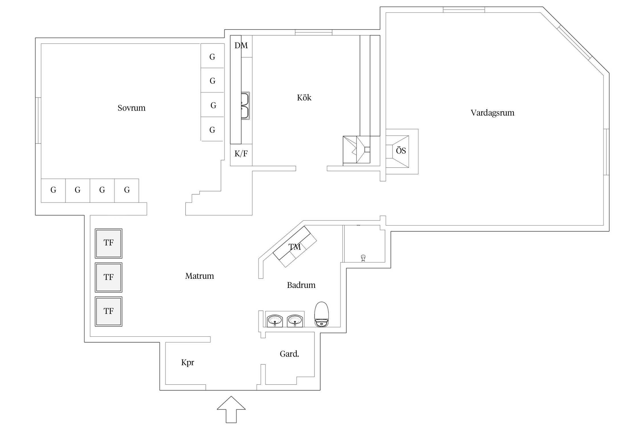
Bostaden är enligt lägenhetsförteckningen 2 rum och kök. Nuvarande säljare använder bostaden som 2,5 rum och kök.
Hall
Välkomnande och rymlig hall med goda avhängningsmöjligheter direkt innanför dörren. Här finns plats för både jackor, skor och vardagens ytterkläder. Från hallen nås även en praktisk klädkammare som erbjuder utmärkta förvaringslösningar. Hallens planlösning skapar en naturlig övergång till bostadens övriga rum.
Matrum
Förlängning av hallen som övergår till den del av bostaden som idag nyttjas som ett matrum. Stämningsfull yta med charmigt snedtak som ger rummet en unik och ombonad känsla. Tre takfönster släpper in vackert ljusinsläpp och skapar en härlig rymd trots det sluttande taket. Här finns plats för ett större matbord – perfekt för både vardagsmiddagar och sociala tillställningar.
Badrum
Stilrent och tidlöst badrum med smakfulla färg- och materialval som skapar en lugn och modern atmosfär. Här finns allt ni behöver i en välplanerad layout: WC, dubbelhandfat med kommod, spegelskåp, dusch och behaglig golvvärme. Den praktiska tvättdelen är utrustad med arbetsbänk, överskåp samt tvättmaskin – en funktionell lösning som förenklar vardagen och ger gott om förvaring. Ett badrum där både design och funktion går hand i hand.
Sovrum
Ljust och trivsamt sovrum med vitmålade väggar och en lugn färgpalett som skapar en rofylld atmosfär. Ett stort fönster släpper in generöst med dagsljus och bidrar till den öppna och luftiga känslan i rummet. Här finns gott om plats för en säng och arbetsplats – perfekt för er som önskar kombinera vila med arbetshörna. Förvaring finns i form av praktiska garderober.
Kök
Charmigt kök med ljusa skåpsluckor och klassiskt vitt kakel som löper över arbetsbänken. Ett takfönster släpper in generöst med ljus och skapar en härlig atmosfär vid den trivsamma matplatsen. Köket är välplanerat med gott om både förvaringsutrymme och arbetsytor. Den maskinella utrustningen består av spis, köksfläkt, ugn, micro, diskmaskin samt kombinerad kyl och frys – allt för att göra vardagen både enkel och funktionell.
Vardagsrum
Ljust och inbjudande vardagsrum med generösa umgängesytor – perfekt för hela familjen att samlas och trivas i. Rummet har en fin rymd och erbjuder gott om plats för både soffgrupp, läshörna eller annan möblering efter behov. De stora fönstren släpper in rikligt med dagsljus och förstärker den ljusa och öppna känslan. En vacker öppen spis blir en naturlig samlingspunkt och bidrar till en varm och ombonad atmosfär. Tidsenliga detaljer som takrosett ger ytterligare karaktär och charm.



*Föreningens information
inkl. värme, VA och sophantering
Till bostaden hör förrådsutrymme i källare samt i gårdsbyggnad.
Bostadsrättsinnehavare är garanterad p-plats med laddstolpe (385kr/månad). Separat kö till garageplats.
Bostadsrättens indirekta nettoskuldsättning baseras på föreningens skulder/lån minus föreningens räntebärande tillgångar och likvida medel. Beräkningen är gjord och baseras på senaste tillgängliga årsredovisningen. För mer information kontakta ansvarig fastighetsmäklare.
Driftkostnaderna är inhämtade från säljaren och bör endast ses som en uppskattning.
Under posten Övrigt finns en fast kostnad om 65 kr/mån för Kabel-TV Comhem och 10 kr/mån för bostadsrättstillägg. Dessa kostnader debiteras av föreningen i samband med månadsavgiften.
Huset byggt 1890 där den tidsenliga arkitekturen har bevarats. 2010 bildades bostadsrättsföreningen.
Det finns i dagsläget inga beslutade månadsavgiftsförändringar.
Yttertak byttes 2012.
Fönsterbyte utfört 2022.
Bostadsrättsinnehavare är garanterad p-plats med laddstolpe (385kr/månad). Separat kö till garageplats.
Bredband via fiber (leverantör väljer man själv). Kabel-TV via Tele2 (65 kr/mån som läggs på månadsavgiften).
Gårdsbyggnad som rymmer garage, cykelrum, soprum och förrådsutrymmen.
Gemensam tvättstuga med tvättmaskin, torktumlare, mangel. och torkytor. I källaren finns hobbyrum och förråd.
Mysig innergård med flera gemensamma sittplatser samt gemensamma odlingslådor.
Föreningen har gemensam vår- och höststädning. Varje medlem ansvarar sedan för trädgården under en veckas tid.
Vill du köpa, sälja eller värdera bostad i Kronobergs län? Kontakta våra mäklare i Växjö! Passa också på att anmäla dig till vår kostnadsfria söktjänst Boagenten som hjälper dig att hitta ditt drömboende.
Här hittar du alla våra lediga bostäder till salu i Kronobergs län just nu!
Kontakta mäklaren om du behöver hjälp att ta fram en boendekalkyl.
När du köper din bostad genom Bjurfors kan du ansöka om bolån till en förmånlig ränta hos våra banksamarbetspartners Söderberg & Partners och SEB.