-
Köpa
Köpa -
Sälja
Sälja - Hitta bostad
- Skapa bevakning
- Hitta mäklare
Lättskött och hemtrevligt med villakänsla – i insynsskyddad trädgårdsmiljö!
Hovshaga, Växjö
*Föreningens information
På Förhand ligger bostäder som av olika anledningar inte är ute till försäljning just nu men som kan komma att säljas om förutsättningarna är rätt.
Välkommen till ett hem som förenar bostadsrättens bekvämlighet med känslan av att bo i eget hus. Här erbjuds en välplanerad bostad i ett plan med genomtänkta ytor, harmoniska färg- och materialval samt en inbjudande atmosfär.
Bostaden omges av en insynsskyddad och grönskande trädgårdsmiljö med flera olika uteplatser – en stenlagd yta på framsidan, en inglasad altan samt en trälagd uteplats på baksidan. Tillsammans skapar de en flexibel och trivsam utemiljö som förlänger säsongen och blir en naturlig del av vardagen.
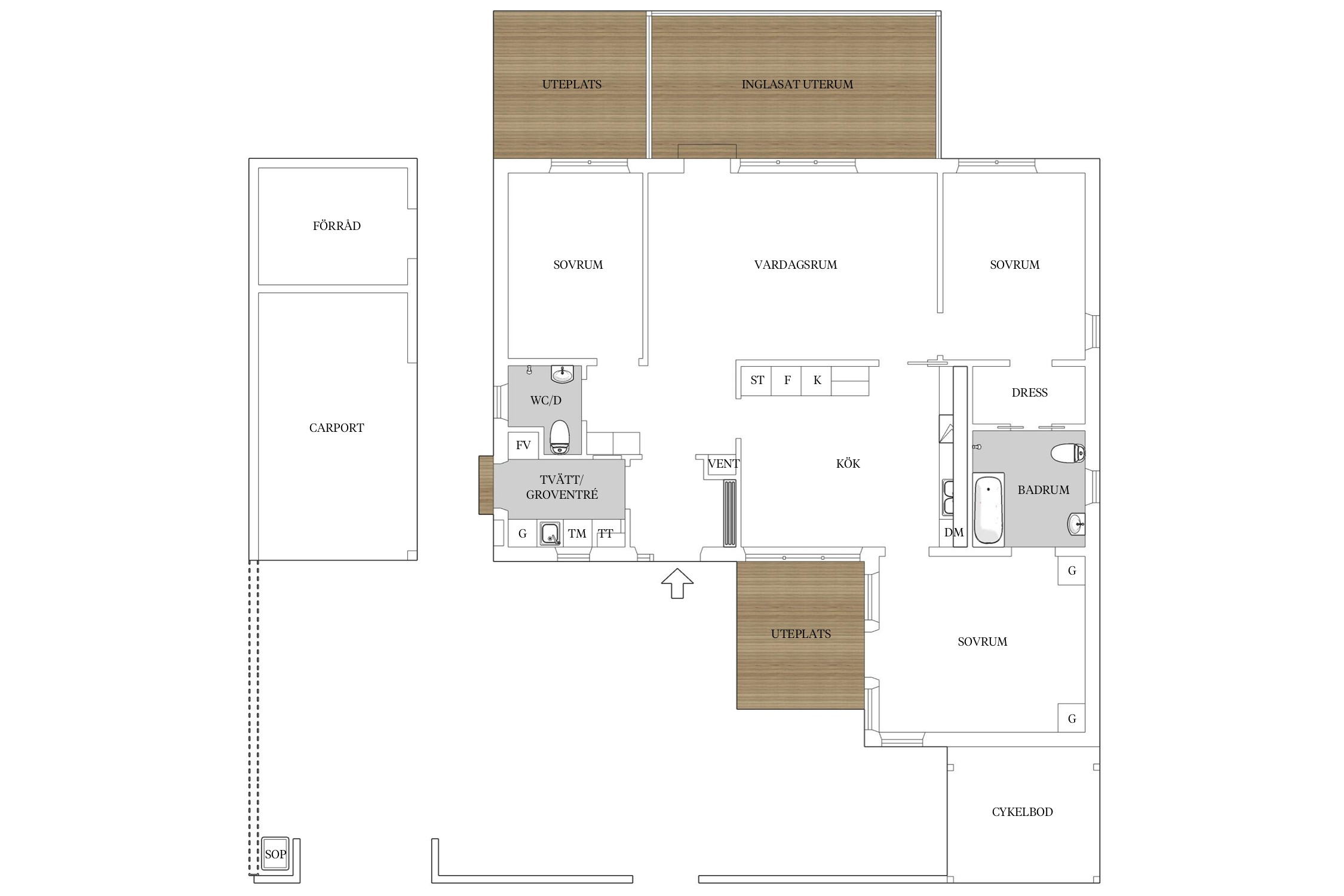
Planlösningen är både praktisk och flexibel med tre sovrum som passar lika bra som barnrum, gästrum eller arbetsrum. Här finns två badrum, en separat groventré med tvättstuga samt ett trevligt kök med plats för matbord – i direkt anslutning till det luftiga vardagsrummet och uterummet. Den lättskötta trädgården ramas in av en lummig häck som skapar en privat och rofylld känsla. Här finns även en generös gräsyta för lek, odling eller trädgårdspyssel. Vid entrén finns förråd, cykelbod och carport – ett stort plus för den som värdesätter ordning och smidighet i vardagen.
En bostad som erbjuder ett bekvämt, ombonat och hemtrevligt liv – perfekt för både barnfamiljen och er som söker något lättskött men med känsla och kvalitet.
Här bor ni på ett lugnt och barnvänligt område. Det finns både förskola och grundskola och goda bussförbindelser in till centrum. Med bra cykelleder och promenadstråk tar ni sig enkelt både till affärer och ut i naturen. Det stora handelsområdet Norremark med all service ligger inom räckhåll och Evedal med Helgasjöns alla aktiviteter inbjuder till fysisk aktivitet och rekreation. På nära cykelavstånd hittar ni både 4H-gården, Hagavallen med fotbolls- och tennisplaner, Växjö Golfklubb, ridstall och bad i Helgasjön. Det finns också underbar natur i närområdet och nyligen bildades Hovshaga naturreservat som bland annat omfattar Arabybadet, Ryttartorpet, Pene och Kronoberg.
Hall
Redan i hallen möts ni av en smakfull interiör med mörkt klinkergolv som harmonierar fint med det eleganta färgvalet på väggarna – en sober och inbjudande helhet. Här erbjuds generösa avhängningsmöjligheter för ytterkläder och skor, vilket skapar både ordning och rymd. Direkt till vänster ligger den praktiskt placerade tvättstugan/groventrén – en smart lösning för den aktiva familjen. Längre in i hallen finns dessutom extra utrymme för förvaringsmöbel eller sittbänk, vilket ytterligare förstärker hallens funktion och användarvänlighet.
Kök
Köket bjuder på en ljus och luftig känsla med sin klassiska inredning i vitt, vilket tillsammans med arbetsbänkar i vackert trä skapar en varm och inbjudande helhet. Här finns gott om förvaring bakom släta luckor samt generösa arbetsytor för den matlagningsintresserade. Maskinellt är köket utrustat med spis, ugn, inbyggd mikrovågsugn, diskmaskin samt kyl och frys i fullhöjd – allt praktiskt integrerat för en enhetlig och stilren känsla. Intill fönstret ryms en trevlig matplats där ljuset flödar in och skapar en härlig miljö för såväl vardagsmåltider som middagar i goda vänners lag.
Sovrum
Ett harmoniskt och rogivande sovrum där väggarna går i en behaglig grön kulör som skapar en lugn atmosfär – perfekt för vila och återhämtning. Ett generöst fönsterparti släpper in gott om naturligt ljus och via altandörren når du bostadens uteplats, vilket förlänger rummet under årets varmare månader. Här finns plats för dubbelsäng, sängbord och ytterligare förvaringsmöbel. Längs ena väggen löper praktiska skjutdörrsgarderober som erbjuder mycket goda förvaringsmöjligheter. Den smarta planlösningen ger dessutom direkt access till badrummet – en vardagslyx som underlättar livets alla rutiner.
Badrum
Badrummet är helkaklat i tidlösa färg- och materialval som andas kvalitet och ger en lugn och fräsch känsla. Här finns både badkar och dusch – ett perfekt komplement för både vardagsrutiner och avkopplande stunder. Utrustningen omfattar även WC, kommod med förvaring, spegelskåp samt ett fönster som ger naturligt ljus och möjlighet till vädring. Ett badrum som kombinerar funktion, komfort och estetik på bästa sätt.
Sovrum
Detta sovrum präglas av en lugn och harmonisk atmosfär, där väggar i en blå kulör bidrar till en ombonad känsla. Ett fönster skänker rummet fint ljusinsläpp och skapar en trivsam miljö. En uppskattad detalj är det tillhörande dressingroom som erbjuder utmärkta förvaringsmöjligheter i direkt anslutning till rummet. Från dressingroom nås dessutom badrummet – en genomtänkt och praktisk lösning som ger en extra nivå av komfort i vardagen.
Vardagsrum
Vardagsrummet utgör bostadens hjärta – ett generöst och ljust rum med plats för soffgrupp och umgänge. Stora fönsterpartier släpper in rikligt med dagsljus och förstärker den öppna och luftiga känslan. Härifrån nås det trivsamma uterummet, som i sin tur leder vidare ut till den grönskande trädgården – en naturlig förlängning av bostaden under årets varmare månader. Ett rum att njuta av i såväl stillhet som i sällskap.
Sovrum
Detta rum präglas av en behaglig och ombonad kulör på väggarna som skapar en lugn och trivsam stämning. Ett fönster ger fint ljusinsläpp och bidrar till en luftig känsla. Rummets storlek och utformning gör det lätt att anpassa efter behov – oavsett om det används som sovrum, gästrum eller kontor.
Badrum
Det andra badrummet är helkaklat i tidlösa färg- och materialval och erbjuder en funktionell och stilren miljö. Här finns dusch, WC, kommod med förvaring samt spegelskåp – allt i en harmonisk och genomtänkt utformning som underlättar vardagen och ger ett enhetligt intryck.
Tvättstuga/groventré
Via en separat groventré nås den funktionella tvättstugan – en genomtänkt yta utrustad med arbetsbänk, diskho, tvättmaskin samt gott om förvaring i både överskåp och skåpslösningar. En idealisk plats för att hantera vardagens bestyr, samtidigt som planlösningen möjliggör smidig hantering av ytterkläder och skor. Praktiskt, lättskött och smart integrerat i bostadens helhet.



*Föreningens information
Bostadsrättens indirekta nettoskuldsättning baseras på föreningens skulder/lån minus föreningens räntebärande tillgångar och likvida medel. Beräkningen är gjord och baseras på senaste tillgängliga årsredovisningen. För mer information kontakta ansvarig fastighetsmäklare.
Driftskostnaderna är personliga och bör endast ses som en uppskattning. I samband med månadsavgiften erläggs en prel. vattenkostnad om 374kr/månad. Samtliga driftkostnader är inhämtade från säljarna.
På fastigheten Kastalen 1 i Växjö färdigställdes 2006 24 st lägenheter i Brf Hovshagakastalen.
Det finns i dagsläget inga beslutade avgiftsändringar.
Fastigheten är försäkrad i DINA Försäkringar Göta.
För utförda renoveringar, se årsredovisningen.
Utvändig ommålning 2027-2028.
Till varje bostad hör en carport med uppfart.
Föreningen har 6 st besöksparkeringar.
Fiber via Wexnet. Bostadsrättsinnehavarna väljer sedan själva leverantör.
Vill du köpa, sälja eller värdera bostad i Kronobergs län? Kontakta våra mäklare i Växjö! Passa också på att anmäla dig till vår kostnadsfria söktjänst Boagenten som hjälper dig att hitta ditt drömboende.
Här hittar du alla våra lediga bostäder till salu i Kronobergs län just nu!
Kontakta mäklaren om du behöver hjälp att ta fram en boendekalkyl.
När du köper din bostad genom Bjurfors kan du ansöka om bolån till en förmånlig ränta hos vår samarbetspartner SEB.