-
Köpa
Köpa -
Sälja
Sälja - Hitta bostad
- Skapa bevakning
- Hitta mäklare
Villa i lugna Ingelstad med flexibilitet för hela familjen!
Ingelstad, Växjö
*Areauppgifter enligt taxeringsinformationen
På Förhand ligger bostäder som av olika anledningar inte är ute till försäljning just nu men som kan komma att säljas om förutsättningarna är rätt.
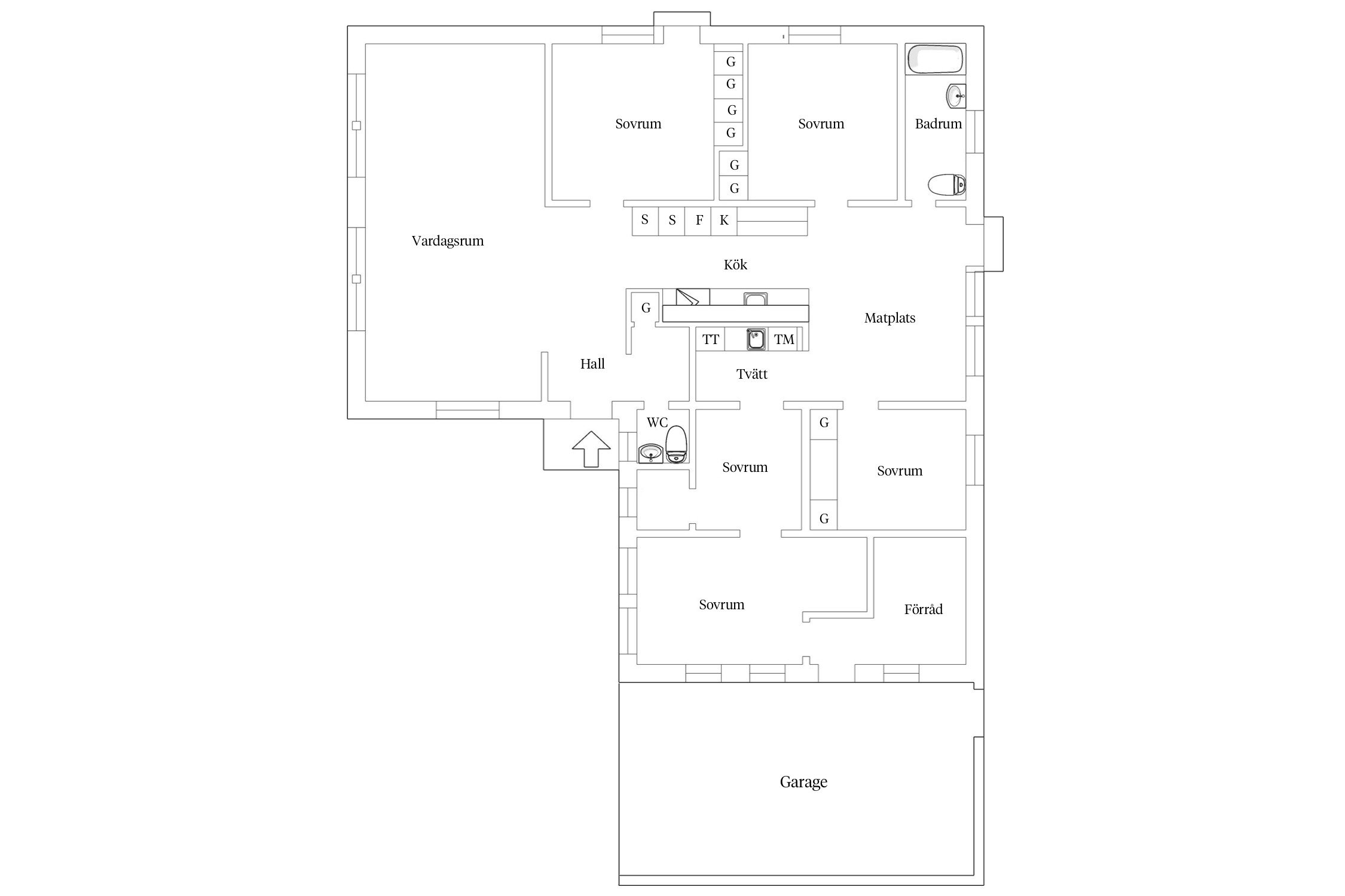
Välkomna till denna rymliga och välplanerade villa på Tallvägen 18, belägen i det lugna och trivsamma Ingelstad. Här erbjuds ett hem med stora, flexibla ytor där ni kan skapa flera olika rum och funktioner efter behov. Denna villa ger er möjlighet att forma ert drömhem med både avskilda och sociala ytor. Allt i ett lättskött och ombonat boende.
Entrén leder in till en praktisk hall med avhängningsyta direkt till höger om dörren. Vidare in i bostaden når ni vardagsrummet som är utformat i vinkel och bjuder på ett ljust och luftigt intryck tack vare stora fönsterpartier mot framsidan. Rummet har ett fint flöde mot köket och ger utrymme för både avkoppling och sociala stunder. Köket är planerat i parallell stil med arbetsytor och förvaringslösningar på båda sidor. Matplatsen erbjuder gott om plats för ett stort matbord. Från köket nås även uteplatsen och trädgården vilket gör det enkelt att ta med vardagslivet utomhus. Villan erbjuder flera sovrum med möjligheten att anpassa rummen efter era behov. Några av rummen kan användas som sovrum, andra som arbetsrum eller lekrum. Bostaden har flera praktiska och lättillgängliga utrymmen som underlättar. Badrummet är rymligt och utrustat med badkar medans tvättstugan erbjuder bra ytor för klädvård. Gästtoaletten som nås från hallen gör det smidigt för både familj och besökare. Tillsammans skapar dessa utrymmen en välplanerad och praktisk bas som kompletterar villans övriga ytor.
Till fastigheten hör även garage samt en lättskött trädgårdstomt med plana och lättillgängliga ytor på både fram- och baksidan, vilket ger goda möjligheter för både avkoppling, lek och trädgårdsaktiviteter.
Ingelstad är en charmig och trivsam ort som erbjuder en härlig kombination av lantlig karaktär och närhet till mer stadsliv. Beläget på ett bekvämt pendlingsavstånd från Växjö där ett rikt utbud av service, restauranger och kultur väntar för den som önskar det. Här bor ni i en miljö präglad av villabebyggelse, gröna omgivningar och närhet till naturen med skogar och sjöar i området som bjuder in till promenader, cykelturer och friluftsliv året runt. Samtidigt finns skola, fritidsverksamhet och goda kommunikationer med bussförbindelser till kringliggande orter.
Hall
Praktisk hall med avhängningsyta direkt till höger. Här finns plats för hatthylla och tillhörande möblemang. I anslutning till hallen finns även en gästtoalett vilket är både smidigt och funktionellt.
Gäst-WC
Gästtoaletten är utrustad med WC och tvättställ. Ett praktiskt komplement till badrummet.
Vardagsrum
Vardagsrummet är utformat i vinkel och erbjuder ett luftigt intryck med ett fint flöde vidare in mot köket. Stora fönsterpartier mot framsidan släpper in gott om ljus och bidrar till en öppen och trivsam känsla. Här finns utrymme att skapa en social yta som passar just era behov.
Kök
Köket är planerat i parallell utformning med arbetsytor och förvaringslösningar på båda sidor. Den vita köksinredningen skapar ett ljust uttryck. Köket öppnar upp mot både vardagsrum och matplatsen där det finns gott om utrymme för ett större matbord. Från matplatsen nås även uteplatsen och baksidan vilket ger en naturlig koppling mellan inne och ute. Den maskinella köksutrustningen består av ugn med spishäll, spisfläkt, diskmaskin samt kyl och frys i fullhöjd.
Sovrum
Detta sovrum nås från vardagsrummet och erbjuder flera inbyggda garderober som ger bra förvaring. Rummet kan enkelt anpassas efter era behov.
Badrum
Badrummet är inrett i ljusa färger och utrustat med badkar. Plastmatta på golvet och ljusa väggar. Vidare finns med WC och tvättställ.
Sovrum
Sovrummet som nås från matplatsen har ett lugnt läge och erbjuder garderober för förvaring.
Sovrum
Även detta sovrum nås från matplatsen. Med garderober för förvaring passar rummet bra som barnrum, gästrum eller arbetsrum.
Tvättstuga
Tvättstugan erbjuder bra utrymme för klädvård och är utrustad med både tvättmaskin och torktumlare. Här finns plats att organisera vardagens bestyr på ett smidigt sätt.
Sovrum
Detta rum kan med fördel användas som arbetsrum eller ett mindre sovrum. Härifrån finns en passage vidare in till bostaden sista sovrum.
Sovrum
Längre in i bostaden finns ett mer avskilt rum som passar bra som lekrum eller ytterligare sovrum. Här finns även tillgång till ett förråd vilket ger extra förvaringsmöjligheter.



Ingelstad 4:164
*Areauppgifter enligt taxeringsinformationen
Kommunalt vatten. Kommunalt avlopp.
Stadsplan (1974-05-02)
Driftkostnader är framtagna enligt schablon och bör endast ses som en uppskattning. Kostnaden kan variera och baseras på förbrukning och avtal.
Det finns 7 st pantbrev uttagna om sammanlagt 400 000 kr
Vill du köpa, sälja eller värdera bostad i Kronobergs län? Kontakta våra mäklare i Växjö! Passa också på att anmäla dig till vår kostnadsfria söktjänst Boagenten som hjälper dig att hitta ditt drömboende.
Här hittar du alla våra lediga bostäder till salu i Kronobergs län just nu!
Kontakta mäklaren om du behöver hjälp att ta fram en boendekalkyl.
När du köper din bostad genom Bjurfors kan du ansöka om bolån till en förmånlig ränta hos våra banksamarbetspartners Söderberg & Partners och SEB.
Ansvarig mäklare