-
Köpa
Köpa -
Sälja
Sälja - Hitta bostad
- Skapa bevakning
- Hitta mäklare
Välplanerad tvåa med balkong på Östra Lugnet!
Östra Lugnet, Växjö
*Inkl. sophantering, kallvatten & förråd
**Föreningens information
På Förhand ligger bostäder som av olika anledningar inte är ute till försäljning just nu men som kan komma att säljas om förutsättningarna är rätt.
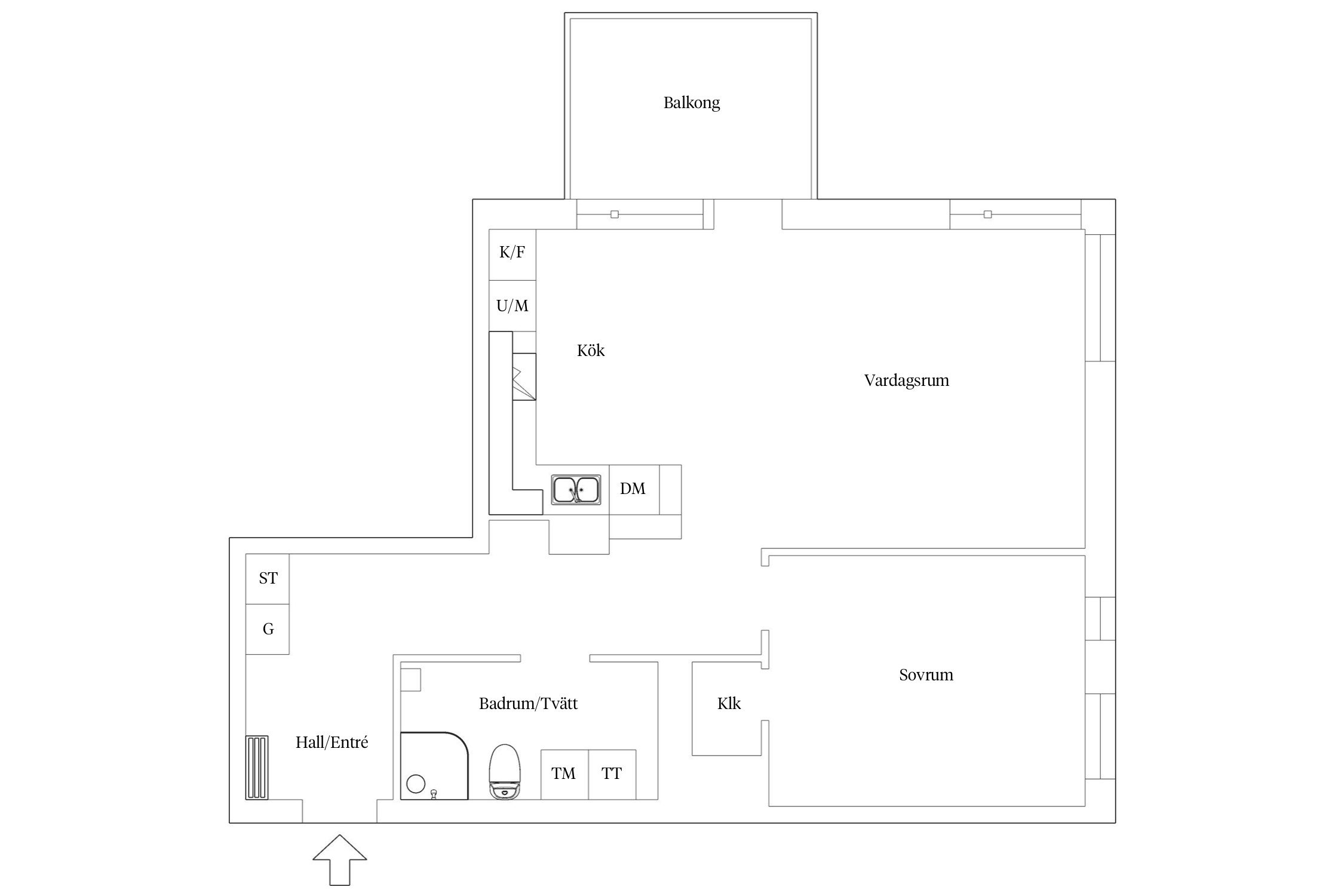
Välkomna till ett ljust och trivsamt hem på Östra Lugnet. Här bor ni på andra våningen i en välplanerad tvåa med genomtänkta ytor, fina ljusinsläpp och en stilren känsla. På Östra Lugnet bor ni i ett lugnt, barnvänligt område med närhet till skolor, goda kommunikationer, härlig natur och vardagsservice.
Hallen ligger avskilt och ger en lugn start på hemmet. Här finns gott om plats för ytterkläder och praktisk förvaring i både garderob och städskåp. Köket har en tidlös vit inredning och öppnar upp mot vardagsrummet vilket skapar en social och inbjudande yta. Här finns plats för ett matbord och kökets smarta utformning gör tillsammans med den maskinella utrustning matlagningen smidig. Vardagsrummet har ett fint fönsterparti i vinkel som ger ett generöst ljusinsläpp och en behaglig rymd. Här ryms soffa och möblering och från rummet nås även balkongen. Balkongen rymmer både sittgrupp eller ett mindre matbord beroende på vad som passar er bäst. Sovrummet är rofyllt och ljust med dubbla fönster och plats för en större säng. I rummet finns en praktisk klädkammare. Badrummet är helkaklat i ljusa färger och utrustat med duschhörna samt en välplanerad tvätthörna. Sammantaget ett hem som kombinerar funktion, ljus och trivsel på ett sätt som gör det lätt att trivas från första stund.
På Östra Lugnet bor ni på ett lugnt och barnvänligt område. Det finns både förskola och grundskola och goda bussförbindelser in till centrum. Med bra cykelleder och promenadstråk tar ni sig enkelt både till affärer och ut i naturen. Det stora handelsområdet Norremark med all service ligger inom räckhåll och Evedal med Helgasjöns alla aktiviteter inbjuder till fysisk aktivitet och rekreation. På nära cykelavstånd hittar ni både 4H-gården, Hagavallen med fotbolls- och tennisplaner, Växjö Golfklubb, ridstall och bad i Helgasjön. Det finns också underbar natur i närområdet och nyligen bildades Hovshaga naturreservat som bland annat omfattar Arabybadet, Ryttartorpet, Pene och Kronoberg.
Hall
Hallen ligger avskilt och skapar en lugn start på hemmet. Här finns plats för både hatthylla och skoställ så att ytterkläder samt skor får sin naturliga plats. En garderob och ett städskåp ger praktisk förvaring.
Kök
Köket har en tidlös vit inredning som skapar en ljus och trivsam atmosfär. De öppna ytorna mot vardagsrummet gör att rummet känns socialt och inbjudande. Här finns även utrymme för ett matbord. Den maskinella utrustningen består av diskmaskin, spishäll, ugn, mikrovågsugn, spisfläkt samt en kombinerad kyl och frys.
Vardagsrum
Vardagsrummet präglas av ljusa färger och ett fint fönsterparti i vinkel som släpper in generöst ljus. Här finns gott om plats för en soffa och övrig möblering samtidigt som rummet knyter samman hemmets sociala ytor mot köket. Från vardagsrummet nås balkongen. Balkongen rymmer en sittgrupp eller ett matbord, beroende på vad som passar er bäst.
Sovrum
Sovrummet är en rofylld plats med dubbla fönster som släpper in ett behagligt ljus under dagen. Här finns gott om utrymme för en större säng och övrig möblering som gör rummet personligt och ombonat. I rummet finns en praktisk klädkammare som ger bra förvaring.
Badrum
Badrummet är helkaklat i ljusa färger. Golvvärmen skapar en behaglig känsla. Här finns en duschhörna med glasväggar samt en välplanerad tvätthörna med både tvättmaskin och torktumlare. Arbetsbänk och skåpsförvaring gör det enkelt att hålla ordning. Vidare finns även tvättställ med kommod, spegelskåp med förvaring samt WC.



*Föreningens information
Inkl. sophantering, kallvatten & förråd
Till lägenheten hör ett utvändigt förråd.
Bostadsrättens indirekta nettoskuldsättning baseras på föreningens skulder/lån minus föreningens räntebärande tillgångar och likvida medel. Beräkningen är gjord och baseras på senaste tillgängliga årsredovisningen. För mer information kontakta ansvarig fastighetsmäklare.
Driftkostnader och förbrukningen är inhämtade från säljaren och bör endast ses som en uppskattning. Kostnaden kan variera och baseras på förbrukning och avtal. I samband med avgiften debiteras en obligatorisk kostnad för uppvärmning om 423 kr/månad.
På fastigheten Janus 15 har HSB Brf Östra Park totalt 29 lägenheter.
Det finns i dagsläget inga beslutade avgiftsändringar.
Fastigheten är fullvärdesförsäkrad i Dina Försäkringar och kollektivt bostadsrättstillägg ingår i föreningens fastighetsförsäkring.
För utförda renoveringar, se årsredovisningen.
Det finns i dagsläget inga planerade renoveringar.
Föreningen har 12 st traditionella p-platser (180 kr/månad) och 19 carportplatser (300kr/månad). Här finns även 5 st gästparkeringar.
Föreningen har totalt 10 st p-platser är utrustade med laddare för EL-bil. Två st gästparkeringar, två st traditionella. Resterande av laddplatserna är placerade på carportplatserna.
Vill du köpa, sälja eller värdera bostad i Kronobergs län? Kontakta våra mäklare i Växjö! Passa också på att anmäla dig till vår kostnadsfria söktjänst Boagenten som hjälper dig att hitta ditt drömboende.
Här hittar du alla våra lediga bostäder till salu i Kronobergs län just nu!
Kontakta mäklaren om du behöver hjälp att ta fram en boendekalkyl.
När du köper din bostad genom Bjurfors kan du ansöka om bolån till en förmånlig ränta hos våra banksamarbetspartners Söderberg & Partners och SEB.
Ansvarig mäklare