-
Köpa
Köpa -
Sälja
Sälja - Hitta bostad
- Skapa bevakning
- Hitta mäklare
Trivsam och välplanerad villa som kombinerar funktionalitet med trivsel i en harmonisk miljö!
Räppe, Växjö
*Areauppgifter enligt taxeringsinformationen
Bokad visning.
På Förhand ligger bostäder som av olika anledningar inte är ute till försäljning just nu men som kan komma att säljas om förutsättningarna är rätt.
Välkommen till denna trivsamma och välplanerade villa på Gamla Räppevägen 55 – ett hem som kombinerar funktionalitet med trivsel i en harmonisk miljö. Under senare år har bostaden uppdaterats med moderna ytskikt som skapar en varm och inbjudande atmosfär.
Redan i hallen möts ni av en charmig eldstad som både bidrar med värme och skapar en hemtrevlig känsla direkt när ni kliver in. Härifrån öppnar huset upp sig mot generösa och ljusa sällskapsytor. En av bostadens stora höjdpunkter är den genomarbetade trädgården. Här finner ni en grönskande oas med vackra planteringar, prunkande växter och en tydlig rumskänsla – perfekt för både avkoppling och sociala tillställningar. Flera uteplatser, en pergola och ett charmigt växthus ger möjligheter att njuta av trädgårdens olika delar under hela dagen.
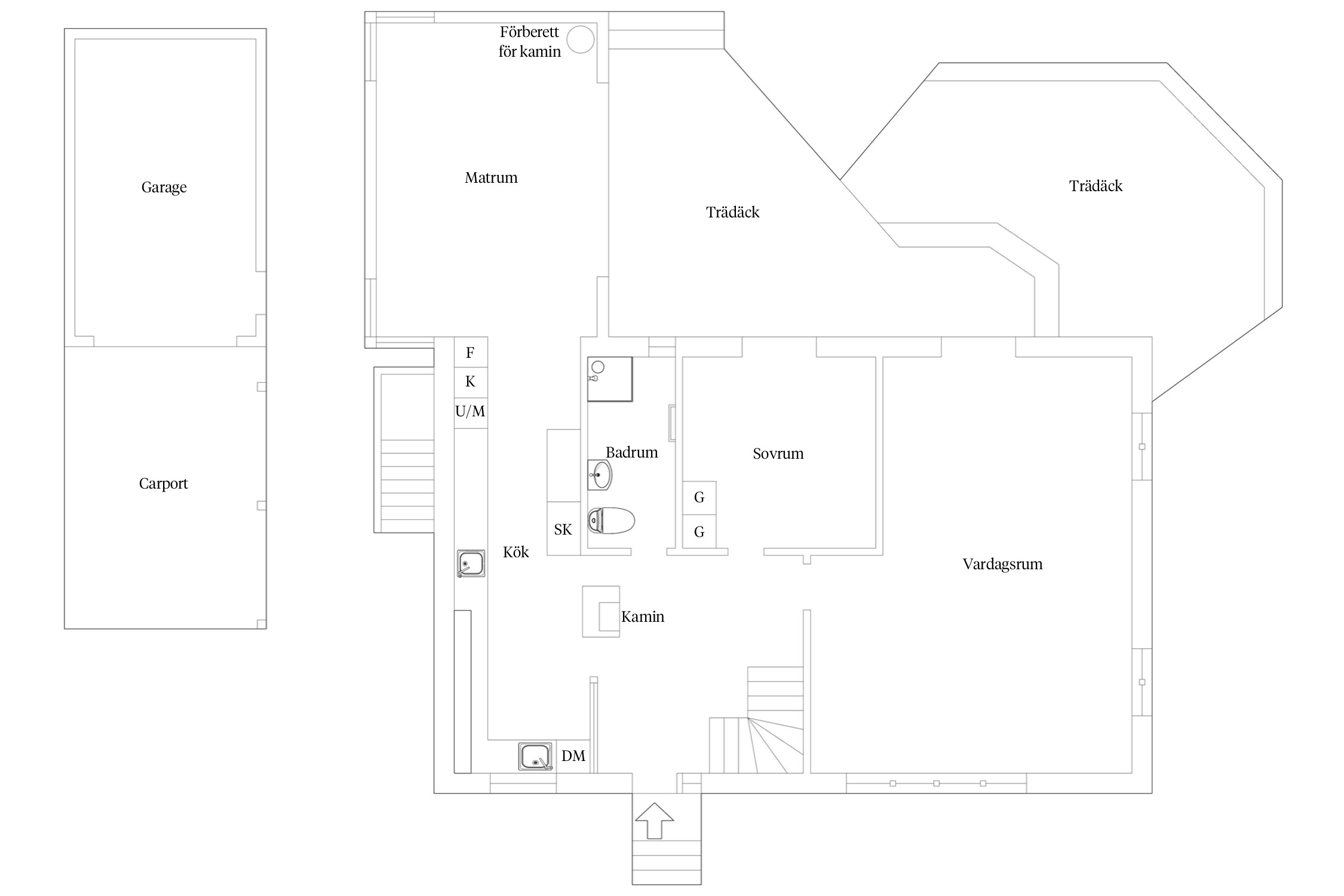
Husets planlösning är genomtänkt och erbjuder både generösa sociala ytor och privata rum. På entréplan finns ett ombonat kök som ligger i öppen anslutning till ett rymligt matrum – ett perfekt utrymme för större sällskap och familjemiddagar. Fönsterpartierna fyller rummet med naturligt ljus och via fönsterpartierna från matrummet nås altanen och trädgården. Här på entréplan återfinns även ett trivsamt vardagsrum med plats för flera möblemang, vilket ger goda möjligheter till såväl avkoppling som umgänge. Även härifrån nås den soliga altanen och den grönskande trädgården – en naturlig förlängning av hemmets sociala ytor under årets varmare månader. Vidare på entréplan finns ett sovrum samt ett helkaklat badrum. Övre plan rymmer ytterligare två mysiga sovrum, ett allrum och en WC. I källarplanet hittar ni en praktisk tvättstuga och förvaringsutrymmen. Till villan hör även ett garage med carport och en rymlig uppfart som ger gott om plats för flera fordon.
Detta är ett hem för er som söker både komfort och en trädgård utöver det vanliga – välkommen att uppleva det på plats!
Tack vare villans trevliga läge är det gångavstånd till två badplatser och en mysig bastu vid ån. Nere vid Räppe kanel finns vackra och omtyckta promenadstråk att nyttja. Den inbjudande naturen lockar alla årstider och det finns flera grillplatser i närheten. Cykelslingan Växjö runt går utanför bostadsområdet och Öjaby med bad och fritidsaktiviteter ligger nära. Räppe och Bredvik med nytt sportfält, skola och bostäder bidrar till lägets attraktivitet samt närheten till Arenastaden. Det finns fina cykelbanor in till centrum och busshållplats nere vid stora vägen som har en frekvent tidtabell till både centrum och Småland airport.
Entréplan
Hall
Redan i hallen möts ni av en inbjudande atmosfär där klassiska materialval och charmiga detaljer samspelar på ett smakfullt sätt. Väggarna är klädda i en mönstrad tapet som ger rummet karaktär, medan det schackrutiga golvet bidrar med en tidlös och lekfull känsla. Direkt till vänster om entrén finns en praktisk avhängningsyta med plats för klädhängare och hallen erbjuder dessutom utrymme för en fristående förvaringsmöbel. Till höger leder den trappan vidare upp till övre plan. Ett extra plus är den stämningsfulla eldstaden som skänker både värme och karaktär till entrén.
Kök
Smakfullt och funktionellt kök med goda förvaringsmöjligheter och generösa arbetsytor som underlättar vardagens matlagning såväl som helgens middagsförberedelser. Den maskinella utrustningen består av spishäll med inbyggd fläkt, ugn, diskmaskin, mikrovågsugn samt kyl och frys i fullhöjd. Köket har en naturlig kontakt med matrum vilket skapar ett socialt flöde.
Matrum
I öppen och social planlösning med köket ligger matsalen – ett inbjudande rum med plats för ett större matsalsmöblemang, perfekt för långa middagar i goda vänners lag. De stora fönsterpartierna ger ett fantastiskt ljusinsläpp och suddar ut gränsen mellan inne och ute. Härifrån nås altanen och den vackert anlagda trädgården, vilket gör rummet till en naturlig samlingspunkt under årets alla årstider.
Vardagsrum
Vardagsrummet är generöst tilltaget och erbjuder flexibla möbleringsmöjligheter med gott om plats för en större soffgrupp och ytterligare möblemang. De stora fönsterpartierna i kombination med rummets färgsättning skapar en varm och inbjudande atmosfär – en plats att trivas i året om.
Sovrum
Rofyllt och rymligt sovrum med plats för dubbelsäng och tillhörande sängbord. En praktisk garderobsvägg erbjuder generös förvaring och bidrar till en välorganiserad känsla i rummet – perfekt för er som vill kombinera komfort med funktion.
Badrum
Helkaklat badrum med smakfulla färg- och materialval som skapar en tidlös och harmonisk känsla. Utrustat med WC, dusch med glasvägg, kommod med god förvaring samt handdukstork för extra komfort. Ett fönster släpper in naturligt ljus och bidrar till en ljus och luftig atmosfär.
Övre plan
Allrum
På övre plan möts ni av ett charmigt allrum med snedtak som ger rummet karaktär och en ombonad känsla. Här finns platsbyggda garderober som erbjuder gott om förvaring. Rummet nyttjas idag som klädförvaring, men lämpar sig utmärkt som exempelvis hemmakontor, läshörna eller ett extra allrum
Sovrum
Mysigt sovrum på övre plan med snedtak som skapar en varm och ombonad atmosfär. Ett fönster släpper in fint ljus och ger rummet en luftig känsla. Rummet kan med lätthet inredas med säng, förvaringsmöbel och personliga detaljer – perfekt som barnrum, gästrum eller kontor beroende på behov
Sovrum
Även detta sovrum på övre plan bjuder på snedtak och ett fönster som ger ett behagligt ljusinsläpp. Rummets charmiga takvinkel skapar en rofylld och inbjudande känsla. Här finns plats för säng, förvaring och annat som gör rummet till en personlig och funktionell del av hemmet – oavsett om det används som barnrum, gästrum eller arbetsrum.
WC
Praktisk WC på övre plan, utrustad med toalett och handfat. Ett lättillgängligt komplement till bostadens badrum, perfekt för såväl familj som gäster
Källarplan
Det rymliga källarplanet erbjuder flera praktiska utrymmen såsom förvaringsutrymmen och tvättmöjligheter. Här finns en funktionell tvättstuga med plats för både tvätt och tork samt goda arbetsytor. Det finns även rum som med fördel kan nyttjas som kontor eller hobbyrum ger extra flexibilitet för familjens behov.



Kofferten 12
*Areauppgifter enligt taxeringsinformationen
2023
Kommunalt vatten, Kommunalt avlopp.
Stadsplan (1974-03-18)
Fiber
Driftkostnader är inhämtade från säljaren och bör endast ses som en uppskattning. Kostnaden kan variera och baseras på förbrukning och avtal. Driftkostnad El är enligt schablon.
Det finns 14 st pantbrev uttagna om sammanlagt 3 177 000 kr
Vill du köpa, sälja eller värdera bostad i Kronobergs län? Kontakta våra mäklare i Växjö! Passa också på att anmäla dig till vår kostnadsfria söktjänst Boagenten som hjälper dig att hitta ditt drömboende.
Här hittar du alla våra lediga bostäder till salu i Kronobergs län just nu!
Kontakta mäklaren om du behöver hjälp att ta fram en boendekalkyl.
När du köper din bostad genom Bjurfors kan du ansöka om bolån till en förmånlig ränta hos våra banksamarbetspartners Söderberg & Partners och SEB.
Bokad visning.
Ansvarig mäklare