-
Köpa
Köpa -
Sälja
Sälja - Hitta bostad
- Skapa bevakning
- Hitta mäklare
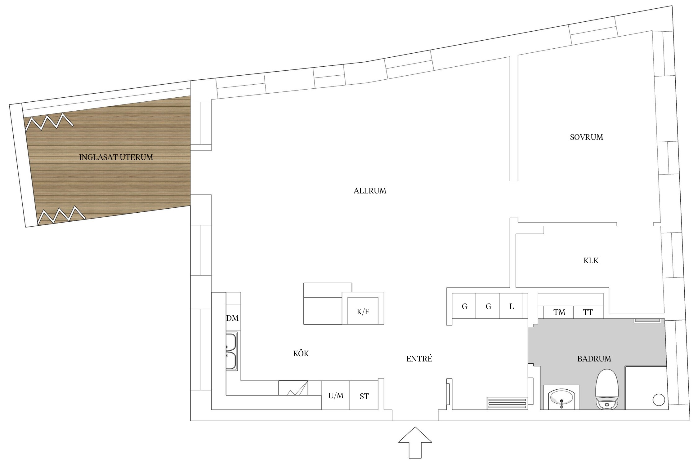
Härligt boende i markplan!
Söder, Växjö
*Föreningens information
Fyll i formuläret nedan så hjälper vi dig!



Vill du köpa, sälja eller värdera bostad i Kronobergs län? Kontakta våra mäklare i Växjö! Passa också på att anmäla dig till vår kostnadsfria söktjänst Boagenten som hjälper dig att hitta ditt drömboende.
Här hittar du alla våra lediga bostäder till salu i Kronobergs län just nu!
Ansvarig mäklare