-
Köpa
Köpa -
Sälja
Sälja - Hitta bostad
- Skapa bevakning
- Hitta mäklare
Villa med bra balans och kombination mellan funktionalitet och komfort!
Teleborg, Växjö
*Areauppgifter enligt taxeringsinformationen
På Förhand ligger bostäder som av olika anledningar inte är ute till försäljning just nu men som kan komma att säljas om förutsättningarna är rätt.
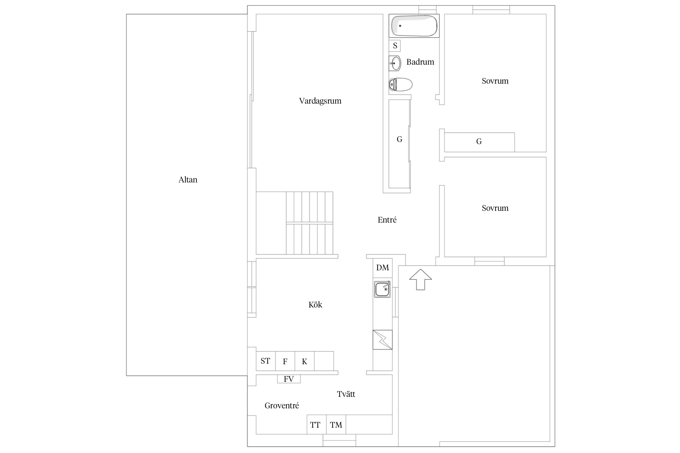
På en lugn återvändsgata på Teleborg finns ni detta 1 1/2-plans hus som erbjuder en bra balans och kombination mellan funktionalitet och komfort. Husets genomtänkta planlösning sträcker sig över två våningsplan och erbjuder både flera sovrum och sociala ytor. För extra bekvämlighet är huset utrustat med två badrum, ett på varje våning. Med en trevlig trädgård, generösa utrymmen och närhet till både natur och bekvämligheter är detta ett inbjudande hem som erbjuder en praktisk vardag.
Bostaden välkomnar med ett klassiskt kök. Här finner ni både rikligt med skåpsutrymme samt bra med arbetsytor. Köket ligger även i direkt anslutning till den härliga uteplatsen med trätrall vilket öppnar upp för sociala stunder. Det generösa vardagsrummet erbjuder plats för både soffgrupp och ett matsalsmöblemang. Vidare på våningsplanet finns två sovrum, ett badrum samt en praktisk tvättstuga med groventré. På övre plan finns ytterligare en samvaroyta med bostadens allrum som erbjuder stor flexibilitet i användingsmöjligheter. Här finns även ett sovrum med tillhörande klädkammare samt ett badrum.
Exteriört finner ni en lättskött trädgårdstomt på populärt hörnläge. På tomten finns det stora ytor, både för lek, odling och avkoppling. För bilen finns ett garage samt ytterligare plats på uppfarten.
På Husarvägen 12 bor ni på ett praktiskt läge med närhet både till förskolor och skolor med närhet till busshållplatser och bra cykelleder in till centrum. Det finns flera grönområden, skogspartier och lekplatser i området. Här finns även stora mataffärer, gym och matstället. För den aktive och naturintresserade har ni de tre sjöarna Bergundasjön, Trummen och Växjösjön på idealiskt avstånd. Längs vackra promenadstråken finner ni Linnés arboretum, mysiga utsiktsplatser och Teleborgs slott som erbjuder en vacker och historisk miljö för rekreation och lugn.



Planritning
Planritning
Lugnadal 12
*Areauppgifter enligt taxeringsinformationen
Kommunalt vatten, Kommunalt avlopp.
Stadsplan (1976-08-19)
Driftkostnader och elförbrukning är inhämtade från säljaren och bör endast ses som en uppskattning. Kostnaden kan variera och baseras på förbrukning och avtal.
Det finns 8 st pantbrev uttagna om sammanlagt 2 856 000 kr
Vill du köpa, sälja eller värdera bostad i Kronobergs län? Kontakta våra mäklare i Växjö! Passa också på att anmäla dig till vår kostnadsfria söktjänst Boagenten som hjälper dig att hitta ditt drömboende.
Här hittar du alla våra lediga bostäder till salu i Kronobergs län just nu!
Kontakta mäklaren om du behöver hjälp att ta fram en boendekalkyl.
När du köper din bostad genom Bjurfors kan du ansöka om bolån till en förmånlig ränta hos våra banksamarbetspartners Söderberg & Partners och SEB.