-
Köpa
Köpa -
Sälja
Sälja - Hitta bostad
- Skapa bevakning
- Hitta mäklare
Villa som erbjuder elegant design och praktisk funktionalitet!
Teleborg, Växjö
*Areauppgifter enligt taxeringsinformationen
På Förhand ligger bostäder som av olika anledningar inte är ute till försäljning just nu men som kan komma att säljas om förutsättningarna är rätt.
Välkommen till Londonvägen 14 och denna villa om 153 kvadratmeter som erbjuder en elegant design och praktisk funktionalitet. Planlösningen ger flera sovrum väl avvägda i storlek, ett välplanerat kök med köksinredning från HTH samt generösa sällskapsdelar med stora fönsterpartier som ger en härlig och inbjudande känsla. Bostadens takterrass ger bostaden extra karaktär och bjuder in till umgänge under årets varmare delar. Bostaden är attraktivt belägen omringad av fin natur och på ett bekvämt avstånd in till stadskärnan.
Detta hem erbjuder en stilren och modern design där ni med enkla medel kan skapa en inbjudande och trivsam bostad. På nedre plan hittar ni ett välutrustat kök med tillhörande matplats. Från köket når ni även uteplatsen och den skyddade gräsytan på baksidan. Vardagsrummet är rymligt med stora fönster som ger generöst med ljus. På samma våningsplan finner ni en praktisk tvättstuga, ett badrum samt ett sovrum att inreda efter behov. Det andra våningsplanet erbjuder tre sovrum, ett allrum och ett helkaklat badrum med snygga val. Det utsträckta soldäcket mot söder nås från allrummet. Här kan ni njuta av solen under årets varma delar och terrassen passar lika väl som en avkopplande lounge som middagsplats. Här kan man följa solens strålar stora delar av dagen. På bostadens tredje våningsplan erbjuds stora ytor som kan anpassas efter behov. Rummet kan möbleras som antingen sovrum eller som ett allrum för sociala stunder.
Villan erbjuder en uteplats på både fram- och baksidan. Uteplatsen på framsidan ligger i solsäkert söderläge och här finns även en gräsyta samt ett förråd att tillgå. I direkt anslutning till entrén finns även en stenlagd bilplats som rymmer flera fordon. Baksidan nås både från köket och tvättstugan. Här har ni en skyddad miljö med stor uteplats och en lättskött gräsyta. Närheten till köket gör att ni enkelt kan duka för härliga middagar och stunder på uteplatsen.
På Londonvägen 14 bor ni på ett praktiskt läge med närhet både till förskolor och skolor med närhet till busshållplatser och bra cykelleder in till centrum. Det finns flera grönområden, skogspartier och lekplatser i området. Här finns även stora mataffärer, gym och matstället. För den aktive och naturintresserade har man de tre sjöarna Bergundasjön, Trummen och Växjösjön på idealiskt avstånd. Längs vackra promenadstråken finner man Linnés arboretum, mysiga utsiktsplatser och Teleborgs slott som erbjuder en vacker och historisk miljö för rekreation och lugn.
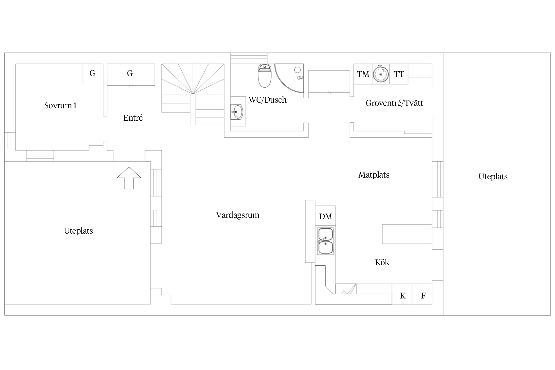
Våning 1
Hall
Välkomnande och luftig hall med klinker lagt på golv och ljust målade väggar. I hallen finns en praktisk skjutdörrsgarderob med spegeldörrar som ger goda avhängning- och förvaringsmöjligheter. Från hallen når ni trappan till övre plan.
Sovrum
Sovrummet på nedre plan erbjuder goda möbleringslösningar och kan användas som ett sovrum eller andra alternativ som kan passa. Rummet nås från hallen och har två fönsterpartier som ger ett fint ljusinsläpp.
Vardagsrum
En trivsam atmosfär skapas i det sociala rummet där kök, matplats och vardagsrum angränsar till varandra. Rymden i rummet ger goda möbleringsmöjligheter och öppnar upp för en härlig loungegrupp med soffa och fåtöljer. Dubbeldörrarna leder ut till uteplatsen som under sommarhalvåret fungerar extra väl som en förlängning av rummets sociala ytor.
Kök
Välplanerat kök från HTH med moderna materialval där köksinredningen går i ett snyggt grått utförande. Köket har goda arbetsytor, bra skåpsförvaring och praktiska lösningar. Köket är komplett utrustat med maskinell utrustning i rostfritt utförande i form av induktionshäll, spisfläkt, ugn och inbyggnadsmikro samt kyl och frys i fullhöjd. I anslutning till köket finns en avskild matplats med plats för ett matbordsmöblemang. Från köket nås bostadens baksida och uteplatsen. Vidare från uteplatsen har ni även en enkel access till den fina trädgårdsytan.
Tvättstuga
Funktionell tvättstuga med klinkergolv och vitmålade väggar. Tvättstugan erbjuder generösa ytor som passar bra för praktisk klädvård. Här finner ni en modern utrustning som består av arbetsbänk med tvättho, skåp för förvaring samt tvättmaskin och torktumlare. Här finns även en utgång till bostadens baksida. Mellan badrummet och tvättstugan finns en skjutdörrsgarderob att tillgå.
Badrum
Badrummet på entréplan har försetts med snygga färgval och en modern inredning. Det helkaklade badrummet är utrustat med tvättställ med kommod, spegelskåp med förvaring, handdukstork, WC samt en duschhörna med vikbara duschväggar.
Våning 2
Allrum
Allrummet genomsyras av fina ljusinsläpp och i kombination med takhöjden skapas här en trivsam atmosfär. Från rummet nås takterrassen. Här kan ni njuta av solen under årets varma delar och terrassen passar lika väl som en avkopplande lounge som middagsplats. Terrassen är belägen i fint söderläge.
Sovrum
Rymligt och fint sovrum som med enkelhet kan möbleras med en större säng med tillhörande sängbord. Stort fönsterparti ger ett härligt ljus. Rummet har en tillhörande klädkammare som ger goda förvaringsmöjligheter.
Sovrum
Sovrum med plats för en säng samt annan inredning efter smak och tycke. Här finns en skjutdörrsgarderob som ger goda förvaringsalternativ.
Sovrum
Sovrum som nås från allrummet och erbjuder fint ljusinsläpp från fönsterpartiet i söderläge. Rummet kan möbleras efter behov som antingen sovrum eller arbetsrum. Här finns även möjlighet att ta ner väggen mellan allrummet och sovrummet och på så sätt göra en större sällskapsyta.
Badrum
Snyggt och helkaklat badrum. Badrummet är utrustat med tvättställ med kommod, badrumsspegel, WC samt en duschhörna. Här finns även plats för en förvaringslösning.
Våning 3
Sovrum
Härligt sovrum med stor rymd och ljusinsläpp i tre väderstreck. Ena väggen är klädd i vitmålad träpanel vilket ger en extra karaktär åt rummet. Rummet är idag möblerat som sovrum men lämpar sig även som allrum om behovet finns.



Planritning
Planritning
Planritning
Knatten 4
*Areauppgifter enligt taxeringsinformationen
Kommunalt vatten. Kommunalt avlopp.
Detaljplan (2017-01-26)
Gemensamhetsanläggning: Växjö Knatten GA:1 ändamål: Vägar, Samfällighet: Växjö Knatten S:1
Last: Ledningsrätt Fjärrvärme, 0780K-2017/55.2
Last: Ledningsrätt Tele, 0780K-2017/55.1
Driftkostnader och elförbrukning är inhämtade från säljaren och bör endast ses som en uppskattning. Kostnaden kan variera och baseras på förbrukning och avtal. I driftskostnad så har vi avräknat kostnaden för laddningen av bil.
Det finns 1 st pantbrev uttaget om sammanlagt 3 780 000 kr
Vill du köpa, sälja eller värdera bostad i Kronobergs län? Kontakta våra mäklare i Växjö! Passa också på att anmäla dig till vår kostnadsfria söktjänst Boagenten som hjälper dig att hitta ditt drömboende.
Här hittar du alla våra lediga bostäder till salu i Kronobergs län just nu!
Kontakta mäklaren om du behöver hjälp att ta fram en boendekalkyl.
När du köper din bostad genom Bjurfors kan du ansöka om bolån till en förmånlig ränta hos våra banksamarbetspartners Söderberg & Partners och SEB.