-
Köpa
Köpa -
Sälja
Sälja - Hitta bostad
- Skapa bevakning
- Hitta mäklare
Charmig etta, i populära Östra Berga, på andra våningen med balkong, nära natur och Linköping city
Berga, Linköping
*Inkl. Vatten, värme och Basutbud-TV. El mäts genom en IMB (individuell mätning som debiteras varje kvartal).
**Bostadsrättsföreningen
Arean kan vara felaktig. Köpare som anser arean vara av betydelse bör därför vidta uppmätning.
På Förhand ligger bostäder som av olika anledningar inte är ute till försäljning just nu men som kan komma att säljas om förutsättningarna är rätt.
Stabil Bostadsrättsförening med en engagerad styrelse som sköter om fastigheterna och grönytorna.
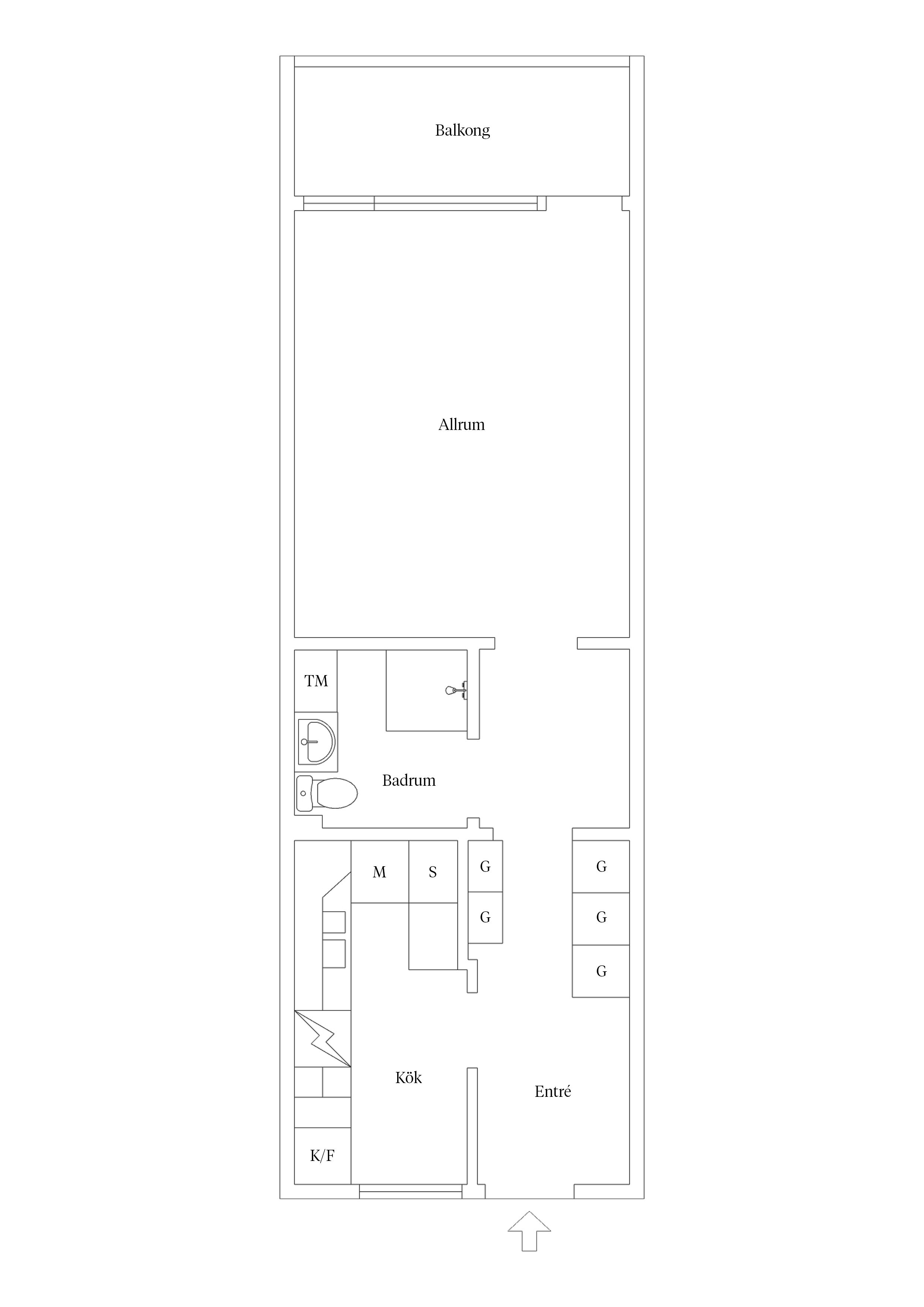
Välkommen till denna välplanerade etta om 43 kvadratmeter. Lägenheten ligger i mysiga Östra Berga där många bor länge, med närhet till citypulsen, US och naturområden.
Här bor du i en förening med god ekonomi och låg avgift. Lägenheten erbjuder välkomnande och rymlig hall, helkaklat badrum, bra möjligheter till förvaring samt ett stort allrum med plats för soffgrupp, tv-bänk och säng. Allrummet genomsyras av ljus och rymd tack vare de härliga fönsterparitet och från detta rum når du balkong i sydväst läge. Trevlig balkong som ger utsikt till sköna och lummiga utemiljöer. Ett rymligt kök men gott om förvaring och plats för mindre matbord.
I Berga bor du med närhet till goda kommunikationer, grönområden och promenadstråk. Med cykelavstånd nås Linköpings stadspuls, resecentrum, SAAB, Universitetet och Mjärdevi på bara några minuter. Berga centrum ligger i närheten där bland annat vårdcentral, folktandvård, livsmedelsbutik, postutlämning och apotek finns. Intilliggande stadsdelen Hagaberg erbjuder en välsorterad livsmedelsbutik, Stora Coop. Förskolor, fritidsgård och skolor för årskurs 1-9 finns i området.
Varmt välkommen att anmäla ditt intresse till mäklaren.
Hall
Välkomnande hall med avhängning vid hatthylla och gott om förvaring i garderober. Ljust laminatgolv och målade väggar.
Kök
Charmigt kök med luckor i grön kulör och beslag i trä. Bänkskiva i rostfritt stål vid diskbänk och träskiva på andra sidan. Vitt kakel med mörk fog ger snygg kontrast.
REDA hylla för skafferivaror på vägg. Maskinell utrustning i form av kombinerad kyl och frys samt spishäll och ugn. Köket har plats för mindre matgrupp vid fönstret mot innergården. Ljust laminatgolv och målade väggar.
Badrum
Helkaklat badrum i grå-vita toner som renoverades i samband med stambytet 2005. Vägghängd wc, handfat, spegelskåp för förvaring, dusch och handdukstork.
Liten frontmatad tvättmaskin med ca 5-7 kg kapacitet.
(Brf har även bokningsbara tvättstugor.)
Allrum
Stort allrum med parkettgolv och målade väggar i vitt. Gott om utrymme för diverse möblemang såsom säng, soffa, bokhylla, skrivbord och tv-bänk. Stora fönsterpartier ger ljus och rymd.
Balkong
Balkongen nås från allrummet och blickar ut över grönområdet och föreningens gårdar. Med sitt sydvästläge erbjuder balkongen många soltimmar att njuta av. Möblering med både soffa och bord möjlig.



Labyrinten 1
*Loftgång med spiraltrapp under tak utomhus
**Bostadsrättsföreningen
Arean kan vara felaktig. Köpare som anser arean vara av betydelse bör därför vidta uppmätning.
Inkl. Vatten, värme och Basutbud-TV. El mäts genom en IMB (individuell mätning som debiteras varje kvartal).
Brf Berga har 3 st områden för parkering. Västra parkeringen vid Lillgårdsgatan 35 samt parkeringsdäcket och parkeringsgaraget vid Hovetorpsgatan 66-72
Bostadsrättens indirekta nettoskuldsättning baseras på föreningens skulder/lån minus föreningens räntebärande tillgångar och likvida medel. Beräkningen är gjord och baseras enbart på den senaste tillgängliga ingen. För mer information kontakta ansvarig fastighetsmäklare.
Driftkostnaden är uppskattad. Driftkostnaden är individuell och köparen uppmanas själv göra en bedömning över sin kostnad.
*Betalas av köpare
Föreningen bildades 1961 och föreningens hus var inflyttningsklara åren 1963-1964 och omfattar 145 lägenheter.
2005 Stambyte
2011 Byte av ytterdörr till lägenheterna och loftgångshusen
2015 Fönsterbyte
2015 Nya brevlådor till lägenheterna
2016 Breddning och målning av parkeringsplatserna
2016 Målning av trapphusen
2017 Utbyte av armaturer på stolpbelysning, loftgångar och fasader till
201 Nya brevlådor i loftgångshusen
2017-2018 Lagning av alla källartrappor
2018 Energideklaration
2019 Installation av temperaturgivare
2019 Stångå Rörservice AB har slutfört arbetet med bytet av kulverten mellan Lillgårdsgatan 21-23
2019 Införandet av gemensamhetsel är klart
2019 Hobbylokalen på Lillgårdsgatan 11 är nu upprustad. Golv, väggar och tak är ommålade samt en ny dammsugare inköpt
2019 Isolering av våra vindar
Brf Berga har 3 st områden för parkering. Västra parkeringen vid Lillgårdsgatan 35 samt parkeringsdäcket och parkeringsgaraget vid Hovetorpsgatan 66-72
Föreningens alla lägenheter är försedda med anslutningsmöjligheter till TV och bredband.
Tele2 (koaxial/tv-nätet) och Telenor (fiber) är tjänsteleverantörer.
Gemensamt i föreningen finns samlingslokal, bastu, gym, hobbylokal och boulabana.
Det finns fem tvättstugor i föreningen:
Två stycken Lillgårdsg. 1-5 (används av 1-5, 66-68, 70-72)
Två stycken Lillgårdsg.15-21 (används av 7-9, 15-21, 11-13, 23-25)
En Lillgårdsgatan 27-29 (används av 27-29, 31-35)
Brf. Berga har ett bostadsrättstillägg som gäller för alla bostadsrättshavare. Du som bostadsrättshavare behöver alltså inte själv teckna denna försäkring.
Det finns möjligtvis en kommande avgiftshöjning för år 2022 för att balansera en del större åtgärder som ska göras kommande åren.
Vill du köpa, sälja eller värdera bostad i Berga, Linköping? Kontakta Bjurfors mäklare i Linköping! Passa också på att anmäla dig till vår kostnadsfria söktjänst Boagenten som hjälper dig att hitta ditt drömboende.
Kontakta mäklaren om du behöver hjälp att ta fram en boendekalkyl.
När du köper din bostad genom Bjurfors kan du ansöka om bolån till en förmånlig ränta hos vår samarbetspartner SEB.
Ansvarig mäklare
Extra kontaktperson