-
Köpa
Köpa -
Sälja
Sälja - Hitta bostad
- Skapa bevakning
- Hitta mäklare
Ljus etta på bästa cityläge!
Centrum, Linköping
*I avgiften ingår värme, kallvatten och sophantering. Obligatorisk kostnad för bredband 100 kr/mån.
**Areauppgifter enligt bostadsrättsföreningen.
Arean kan vara felaktig. Köpare som anser arean vara av betydelse bör därför vidta uppmätning.
På Förhand ligger bostäder som av olika anledningar inte är ute till försäljning just nu men som kan komma att säljas om förutsättningarna är rätt.
Välkommen till Linnégatan 10!
Här erbjuds en smart planerad etta i centrala city, i ett skick som nästan motsvarar nyproduktion. Perfekt för dig som söker en bekväm övernattningslägenhet, din första bostad eller ett prisvärt boende under studietiden. Här bor du nära allt — universitetssjukhus, mataffärer, bussförbindelser samt stadens restauranger och butiker.
Lägenheten är praktiskt utformad och utrustad med diskmaskin, mikro, spis, ugn samt tvätt- och torktumlare. Köket från Ballingslöv är öppet mot ett ljust allrum med fransk balkong som vetter mot en lugn innergård. Badrummet är stilrent med klinkergolv, kaklade väggar, wc, tvättställ, duschhörna och en kombinerad tvättmaskin och torktumlare.
Föreningen erbjuder en takterrass med utemöbler och fin utsikt över staden – en gemensam plats för avkoppling och umgänge, med gott om plats både för egna stunder och sociala träffar med grannar.
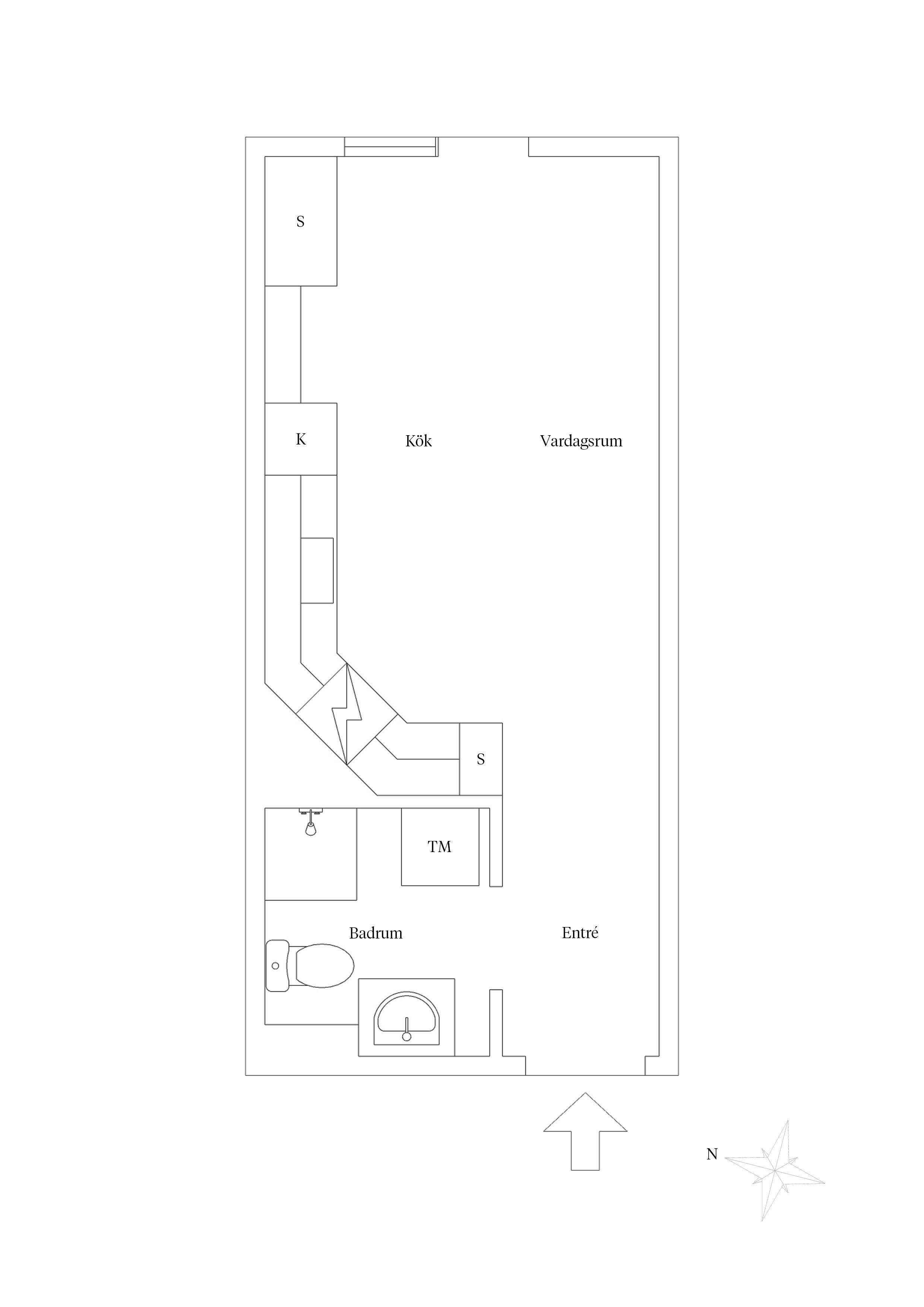
Hall:
En ljus och välkomnande hall med plats för avhängning. Golvet är belagt med vinyl och väggarna är vitmålade.
Kök:
Ett funktionellt kök från Ballingslöv, utrustat med kyl/frys, spis, integrerad diskmaskin, ugn, inbyggd mikrovågsugn och fläkt. Golvet är parkett och väggarna är vitmålade.
Vardagsrum:
Vardagsrummet har ett härligt ljusinsläpp från den franska balkongen och är öppet mot köket. Parkettgolv och vitmålade väggar.
Duschrum:
Duschrummet är fräscht och utrustat med wc, tvättställ i kommod, dusch med vikbara duschväggar samt tvättmaskin i kombination. Klinkergolv och kaklade väggar.



*Areauppgifter enligt bostadsrättsföreningen.
Arean kan vara felaktig. Köpare som anser arean vara av betydelse bör därför vidta uppmätning.
I avgiften ingår värme, kallvatten och sophantering. Obligatorisk kostnad för bredband 100 kr/mån.
*Ombyggt 2021
Parkering på innergården. Kostar 1 000 kr / mån. Det finns totalt 21 parkeringsplatser.
Bredband Telenor 1000/1000 Mbit/s.
Obligatorisk tilläggsavgift 100 kr/mån.
Bostadsrättens indirekta nettoskuldsättning baseras på föreningens skulder/lån minus föreningens räntebärande tillgångar och likvida medel. Beräkningen är gjord och baseras enbart på den senaste tillgängliga årsredovisningen. För mer information kontakta ansvarig fastighetsmäklare. Uträkningen är eventuellt baserad på fel andelstal och kan därför vara felaktig.
Driftkostnaden är uppskattad. Driftkostnaden är individuell och köparen uppmanas själv göra en bedömning över sin kostnad.
*Betalas av säljare
Bostadsrättstillägg ingår i avgiften.
Parkering på innergården. Kostar 1 000 kr / mån. Det finns totalt 21 parkeringsplatser.
Fiber via Utsikt, eget abonnemang.
Gemensam terrass på plan 5.
Bostadsinnehavaren har eget abonnemang för hushållsel och bredband.
Ett förråd per lägenhet finns.
Centrum består av stadskärnan med Trädgårdsföreningen, sportanläggningar vid Tinnerbäcksbadet, Stångån med promenadstråk och nybebyggelse av bostäder, den tidigare stadsdelen Hunneberg med kullerstensgator som gränsar till Linköpings stadsbibliotek och slottsparken där landshövdingen huserar i Linköpings slott. Innerstaden är stadens kulturella och kommersiella centrum. Där återfinns också Konserthuset med sitt utsmyckade entrétorg.
Bebyggelse från tiden före förra sekelskiftet finns främst runt Domkyrkan, slottet och Stora Torget. Trädgårdsföreningen som anlades 1859 är stadens oas och Linköpings stadspark.
Bostadsbebyggelsen i innerstaden består nästan bara av flerbostadshus. Tillväxten av handels- och kontorsytor har varit stor. Under slutet av 1970-talet började en omfattande bostadssanering och under 2000-talet har det tillkommit närmare 800 nya lägenheter, bl.a. Magasinstorget, Kanberget, gamla ”Slöjdis” och Drottningtornet vid Stångån. Förnyelse och komplettering av bebyggelsen pågår med byggnation av 110 lägenheter på Tinnerbäcks-parkeringen.
Vid Stora torget finns flerbostadshus, kontor, restauranger, affärer och hotell med mysiga restauranger som sommartid sjuder av liv och rörelse. Strax intill Stora torget ligger Trädgårdstorget som också har mysiga caféer.
Vill du köpa, sälja eller värdera bostad i Linköping centrum? Kontakta Bjurfors mäklare i Linköping! Passa också på att anmäla dig till vår kostnadsfria söktjänst Boagenten som hjälper dig att hitta ditt drömboende.
Kontakta mäklaren om du behöver hjälp att ta fram en boendekalkyl.
När du köper din bostad genom Bjurfors kan du ansöka om bolån till en förmånlig ränta hos vår samarbetspartner SEB.
Ansvarig mäklare