-
Köpa
Köpa -
Sälja
Sälja - Hitta bostad
- Skapa bevakning
- Hitta mäklare
Stilren villa på hörntomt i populära Hjulsbro!
Hjulsbro, Linköping
*Areauppgifter enligt taxeringsinformationen.
Den köpare som anser att den exakta arean är av betydelse bör mäta upp bostaden före köpet.
På Förhand ligger bostäder som av olika anledningar inte är ute till försäljning just nu men som kan komma att säljas om förutsättningarna är rätt.
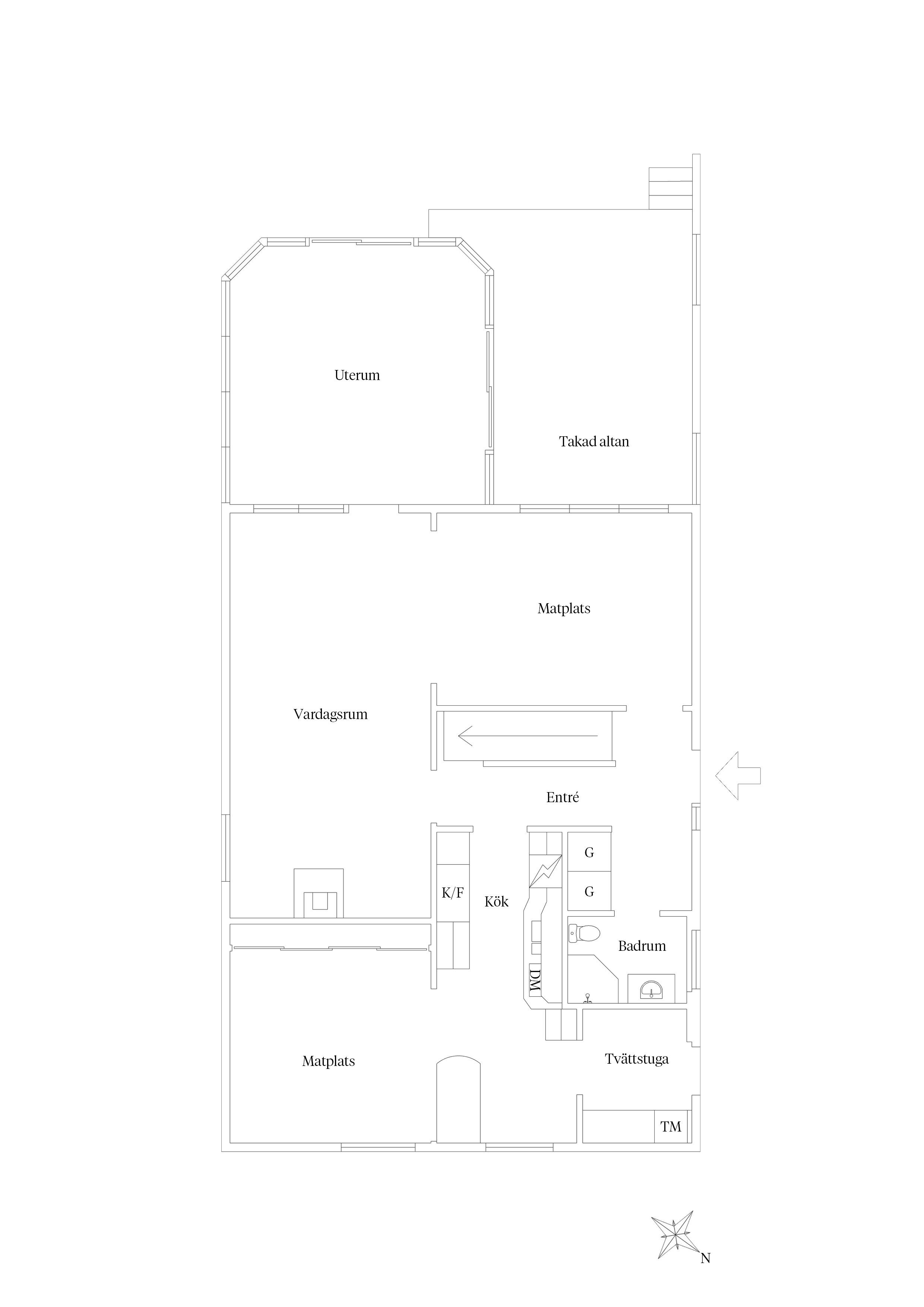
Välkommen till denna trevliga villa på hörntomt i populära Hjulsbro – ett hem som erbjuder både sociala ytor och fina möjligheter för hela familjen.
Bostaden har en välkomnande asfalterad uppfart med plats för två bilar i bredd. På baksidan finns en trivsam uteplats i sydvästläge med sol större delen av dagen och kvällen. Här erbjuds dessutom ett inglasat uterum som förlänger utesäsongen samt gräsytor för lek och aktivitet.
Invändigt möts ni av en inbjudande entréhall. Till vänster nås köket som leder vidare till matsal i vinkel – perfekt för middagar och umgänge. Matsalen har tidigare använts som sovrum och kan enkelt delas av igen för den som önskar fler sovrum. Vidare finns ett generöst vardagsrum i vinkel som med fördel kan disponeras som både vardagsrum och matsal. Här skapar braskaminen extra trivsel och från rummet nås både det inglasade uterummet och uteplatsen på baksidan. Entréplanet erbjuder även ett badrum samt tvättstuga med praktisk groventré.
På övre plan finns tre sovrum, varav ett föräldrasovrum med direkt utgång till balkong, samt ytterligare ett badrum.
Hjulsbro är ett populärt och familjevänligt område med närhet till skolor, mataffärer och restauranger. Här finns också en badplats, vackra promenadstråk och utmärkta cykelvägar. Området erbjuder både lugn och närhet till stadens bekvämligheter, med smidiga bussförbindelser och närhet till friluftsaktiviteter.
Välkommen att kontakta mäklaren för mer information om försäljningen!



Entréplan
Övre plan
Namnskylten 3
*Areauppgifter enligt taxeringsinformationen.
Den köpare som anser att den exakta arean är av betydelse bör mäta upp bostaden före köpet.
- Kök 2002
- Badrum och tvättstuga 2007
- Uterum 2010
- Kakelugn 2005
- Byte av träpanel på huset 2022
- Tvätt, behandling, målning takpannor 2022
- Byte ventilation 2024
Vidbyggt garage
Kommunalt vatten, Kommunalt avlopp.
Vattenskyddsområde (2018-03-15) Stadsplan (1971-09-06)
Last: Avtalsservitut Vattenavrinning mm, 05-IM3-73/7726.1
Förmån: Avtalsservitut Vattenavrinning mm, 05-IM3-73/7728.1
Fiber
Avtalsservitut Vattenavrinning mm
Säljaren är borta ca 6 månader/år.
Det finns 12 st pantbrev uttagna om sammanlagt 1 997 000 kr
Vill du köpa, sälja eller värdera bostad i Hjulsbro, Linköping? Kontakta Bjurfors mäklare i Linköping! Passa också på att anmäla dig till vår kostnadsfria söktjänst Boagenten som hjälper dig att hitta ditt drömboende.
Kontakta mäklaren om du behöver hjälp att ta fram en boendekalkyl.
När du köper din bostad genom Bjurfors kan du ansöka om bolån till en förmånlig ränta hos vår samarbetspartner SEB.
Ansvarig mäklare
Extra kontaktperson