-
Köpa
Köpa -
Sälja
Sälja - Hitta bostad
- Skapa bevakning
- Hitta mäklare
Ramshäll, Linköping
*Areauppgifter enligt taxeringsinformationen
Om ytan är av vikt för er uppmanas ni göra egen mätning
På Förhand ligger bostäder som av olika anledningar inte är ute till försäljning just nu men som kan komma att säljas om förutsättningarna är rätt.
Exklusivt hörnradhus med hög standard, solceller, renoveringar i toppklass och perfekt läge!



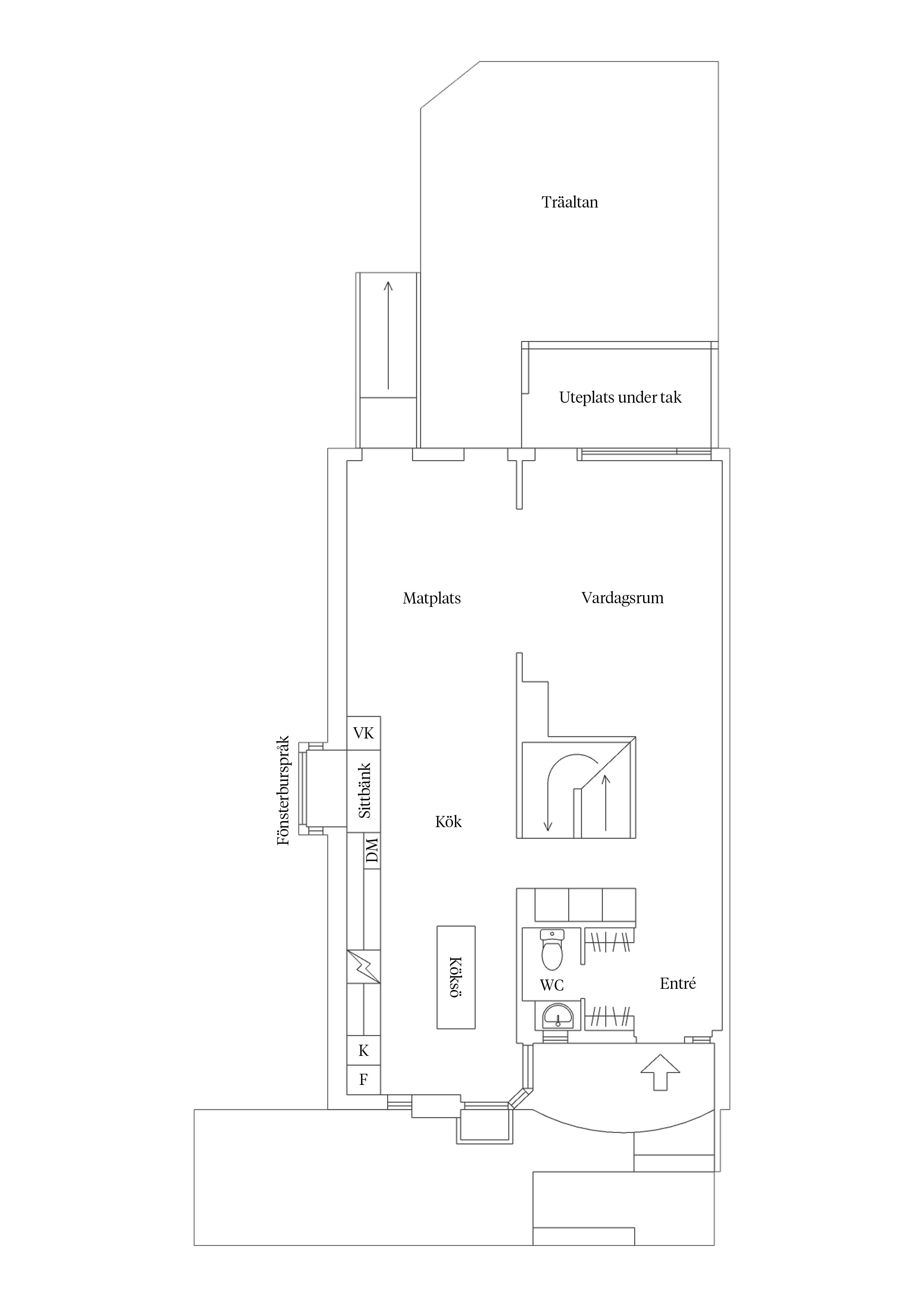
Entréplan
Övre plan
Nedre plan
Lärkan 12
*Areauppgifter enligt taxeringsinformationen
Om ytan är av vikt för er uppmanas ni göra egen mätning
Renoveringar och förbättringar – Bergdalsgatan 18
2020:
- Ytskikt väggar och tak (entréplan + övervåning): Målning utförd av MKAB Måleri & Kakel AB.
- Kök: Nytt Ballingslövkök installerat. Nya rördragningar och avlopp. Vitvaror: Cylinda kyl, frys och fläkt. Spis: SMEG.
- Luftvärmepumpar (entréplan och källare): Installerade av IVT.
- Tak: Omlagt av Takkedjan Linköping.
- Frånluftsfläkt på tak: Installerad för förbättrad ventilation.
- Tvättmaskin och torktumlare: Installerade.
2022:
-Badrum (övervåning): Renoverat av Stångåhantverkarna. Nya rördragningar från varmvattenberedare. Vattenburen golvvärme. Kommod från Ballingslöv, blandare från Tapwell. Öppningsbart takfönster för ljus och ventilation.
- WC (entréplan): Ny WC-stol, kommod från Ballingslöv, blandare från Tapwell.
- Fönster: Restaurerade och målade.
2023:
- Trapphus: Målning och iläggning av matta.
2024:
- Solpaneler: Installerade av PPM Solkraft. Kvalitetsprodukter från Österrike. Växelriktare från SMA.
- Tvättstuga: Renoverad.
- Gillestuga (källare): Väggar och tak renoverade.
Övrigt (årtal ca):
- Tralldäck (baksidan): Byggt 2022.
- Heltäckningsmatta (övervåning): Ullmatta från Ogeborg (2020).
Kommunalt vatten och avlopp.
Garageplats i länga samt en uteplats mittför garage.
Stadsplan (1977-12-09)
Gemensamhetsanläggning: Linköping lärkan ga:1 ändamål: Vattenförsörjning, Avloppsanläggning, Elledning och/eller belysning, Grönområden, Garage och/eller parkering
Fiber via utsikt för tv och bredband.
Gemensamhetsanläggning: Linköping Lärkan GA:1 ändamål: Vattenförsörjning, Avloppsanläggning, Elledning och/eller belysning, Grönområden, Garage och/eller parkering
Enligt överenskommelse
Det finns 8 st pantbrev uttagna om sammanlagt 3 300 000 kr
Vill du köpa, sälja eller värdera bostad i Ramshäll, Linköping? Kontakta Bjurfors mäklare i Linköping! Passa också på att anmäla dig till vår kostnadsfria söktjänst Boagenten som hjälper dig att hitta ditt drömboende.
Kontakta mäklaren om du behöver hjälp att ta fram en boendekalkyl.
När du köper din bostad genom Bjurfors kan du ansöka om bolån till en förmånlig ränta hos vår samarbetspartner SEB.