-
Köpa
Köpa -
Sälja
Sälja - Hitta bostad
- Skapa bevakning
- Hitta mäklare
Stor enplansvilla med 4-5 sovrum och fina tillval med härligt läge i populära Mantorp.
Mantorp, Mjölby
*Areauppgifter enligt taxeringsinformationen
Bokad visning. Anmäl ditt deltagande. Passar inte tiden? Kontakta mäklaren. Varmt välkommen.
Välkomna till Lansgatan 14 - ett mycket smakfullt vinkelhus om 146 kvm fördelat på 6 rok i lugna och familjära Mantorp.
Bli först med att flytta in i denna välplanerade enplansvilla med trevligt läge i det uppbyggda villaområdet. Bostaden erbjuder generösa ytor med tre till fem sovrum och bra sällskapsytor som binder samman huset. Här kommer ni hem till ett påkostat Ballingslövskök i toppskick med högkvalitativa rostfria vitvaror för högsta vardagskomfort. Vardagsrummet genomsyras av ljus och rymd tack vare de härliga fönsterpartierna. Härifrån nås bostadens uteplats med en nylagd altantrall och matchande räcke. Färdigt att inreda.
Vidare finns allrum, två helkaklade badrum med kalksten på golv. Groventré kombinerat med tvättstuga. I hela huset finns vattenburen golvvärme genomgående. Enhetliga golvval och smakfull färgsättning på väggarna gör villan helt inflyttningsredo.
I nyetablerade villaområdet i Mantorp bor ni bekvämt med närhet till skola, förskola, lekplats och elljusspår. I området finns Citygross med dess välsorterade utbud och skola upp till årskurs 9. Mantorp ligger i nära anslutning till E4:an vilket gör det enkelt att fort ta sig både norr- och söderut. Goda kommunikationer med buss och pendeltåg. Med pendel tar det ca 14 minuter till Linköping och med bil ca 20 minuter.
Promenadavstånd 1,4 km till Mantorp station med pendeltåg.
Avstånd med bil:
Citygross matbutik 5 min
Mantorp park 8 min
Mjölby centrum 14 min
IKEA 18 min
Linköping 23 min
Varmt välkomna att boka er till visning av denna pärla!
Entréhall
Välkomnande hall med plats för avhängning av ytterkläder samt för enklare möblering. Klinkergolv och mönstrad tapet.
Vardagsrum
Vardagsrum med öppen planlösning mot kök och stora fönsterpartier ger ett härligt ljusinsläpp till hela huset. Den välplanerade ytan mellan kök och vardagsrum gör det enkelt att möblera för både matgrupp och soffgrupp.
Högtryckslaminerad Ek (Köpenhamn) i samtliga rum.
Kök
Kök från Ballingslöv och rostfria vitvaror. Den maskinella utrustningen med högkvalitativa vitvaror från Siemens består utav induktionshäll, varmluftsugn, fläkt, mikro, diskmaskin samt fullhöjds kyl och frys. I köket ligger i vinkel med bardel vilket utgör bra arbetsytor och skapar en social atmosfär.
Sovrum x4
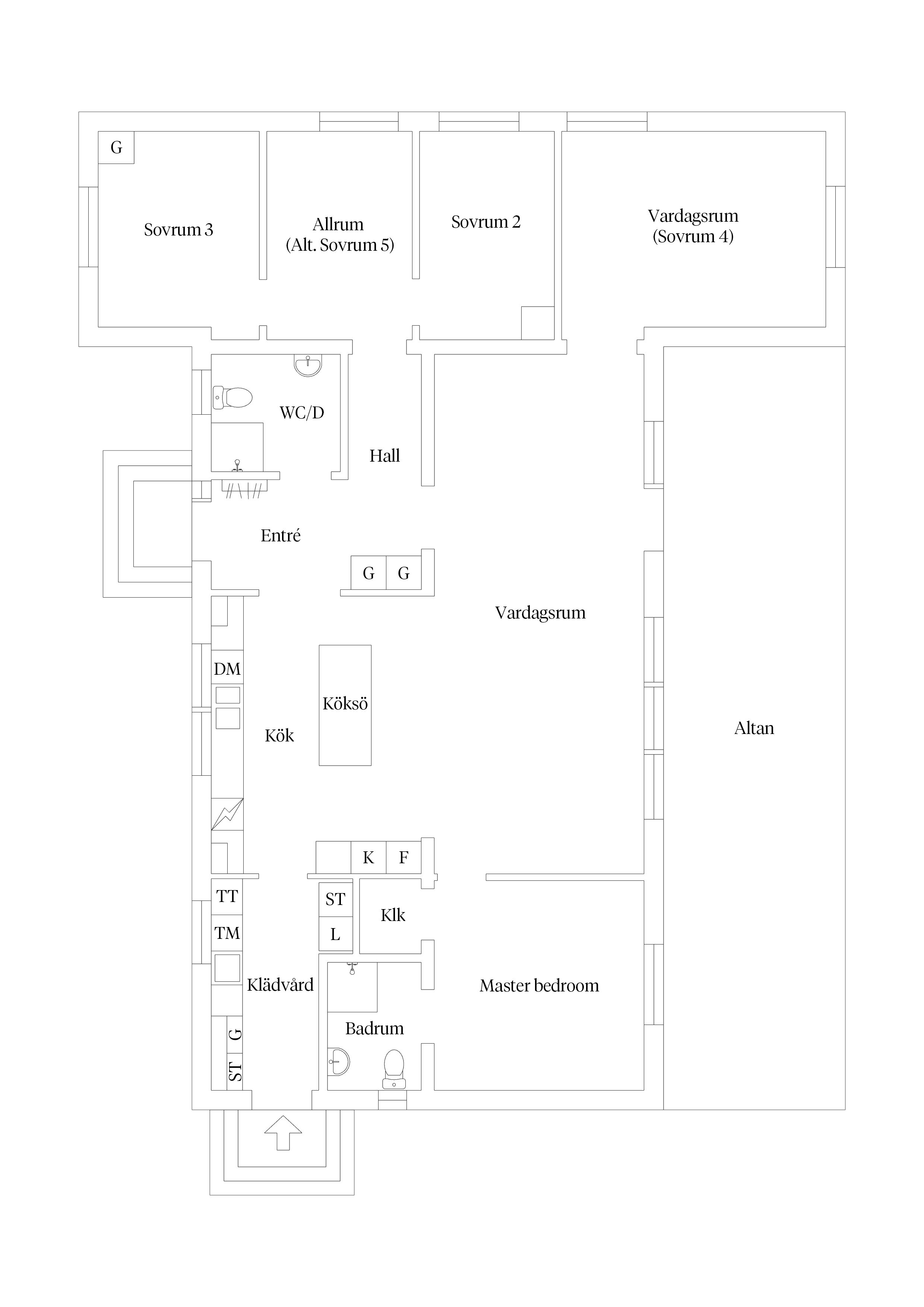
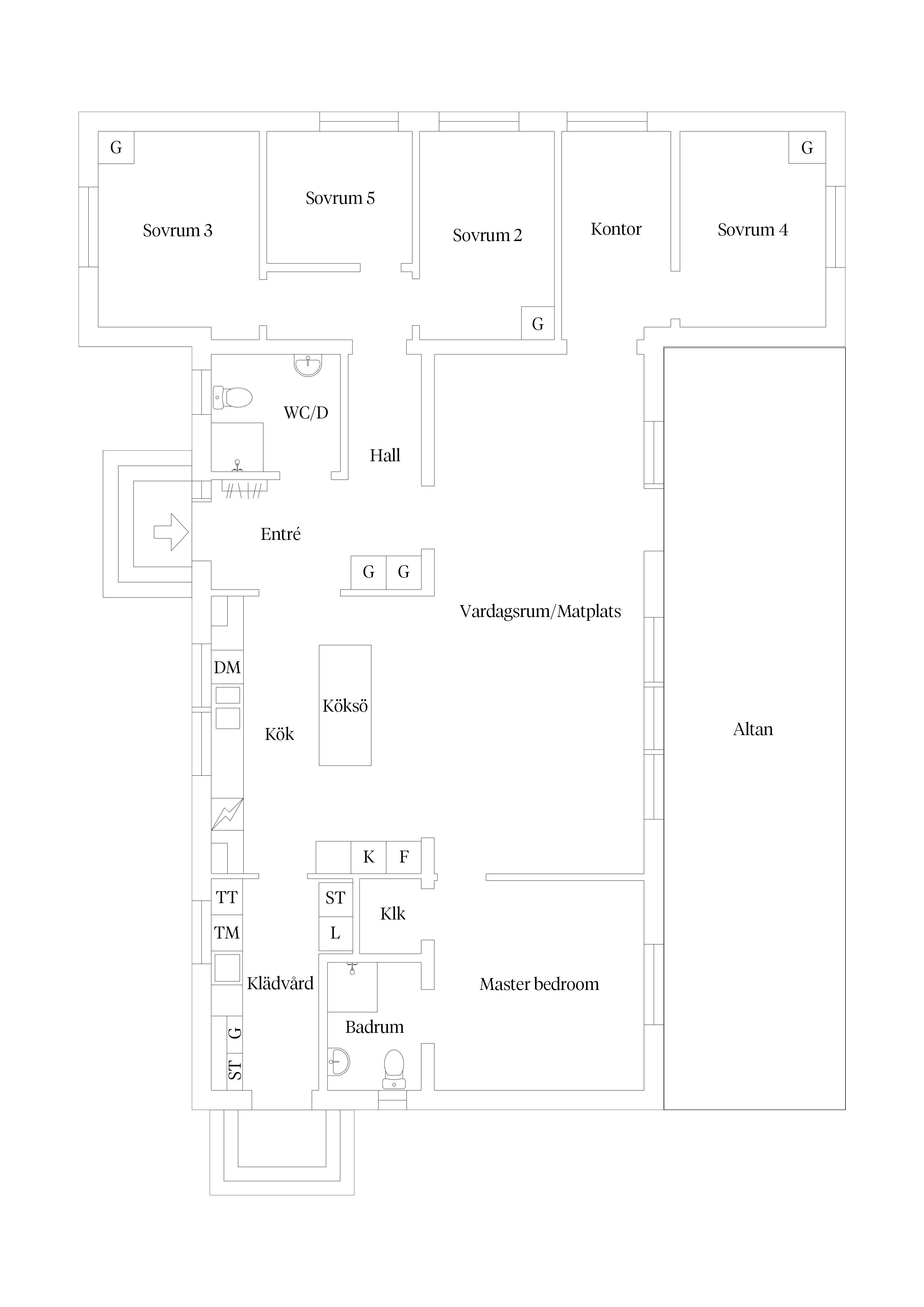
Villan erbjuder fyra-fem sovrum varav ett större föräldrasovrum. Bra storlekar som rymmer både säng, skrivbord/leksaker och klädförvaring. möjligt att bygga om utifrån behov. Se alternativ planritning.
Allrum
Allrum (eller sovrum) med fönster i två väderstreck. Utrymme för soffa, soffbord och tv-bänk. Mönstrad tapet.
Badrum x2
Två Stilrena och helkaklade badrum som är utrustade med kommod, Spegelskåp, wc och dusch med glasvägg. Vattenburen golvvärme.
Kalksten på golv och upp till bröstnivå i ena våtrummet. På väggar i övrigt vit keramik stilfull mönstersättning.
Groventré/tvättstuga
Generös tvättstuga med bra arbetsytor utrustad med tvättmaskin, torktumlare och tvättho. Vinylgolv och målade väggar. Belägen intill köket där du praktiskt lastar in matkassarna från bilplatsen.



Nuvarande planritning - översikt ej skalenlig
Alternativ planritning - översikt ej skalenlig
Borgen 3
*Areauppgifter enligt taxeringsinformationen
Altan byggd 2025
Kommunalt vatten och avlopp.
Trädgårdsjord av fin kvalitet samt gräsfrön i hela trädgården anlagt 2025
Bygglov för garage finns
Detaljplan
Förberett för Fiber
Driftkostnad är individuell och varierar utifrån användande och abonnemang
Enligt överenskommelse
Vill du köpa, sälja eller värdera bostad i Östergötland? Kontakta våra mäklare i Linköping! Passa också på att anmäla dig till vår kostnadsfria söktjänst Boagenten som hjälper dig att hitta ditt drömboende.
Här hittar du alla våra lediga bostäder till salu i Östergötlands län just nu!
Kontakta mäklaren om du behöver hjälp att ta fram en boendekalkyl.
När du köper din bostad genom Bjurfors kan du ansöka om bolån till en förmånlig ränta hos vår samarbetspartner SEB.
Bokad visning. Anmäl ditt deltagande. Passar inte tiden? Kontakta mäklaren. Varmt välkommen.
Ansvarig mäklare
Extra kontaktperson