-
Köpa
Köpa -
Sälja
Sälja - Hitta bostad
- Skapa bevakning
- Hitta mäklare
Lantlig elegans med generösa ytor och orangeri – nära Ängelholm
Höja, Ängelholm
*Areauppgifter enligt taxeringsinformationen
Bokad visning.
Med utrymme för många
Välkommen till en charmfull och rymlig fastighet i herrgårdsstil, vackert belägen i lantliga och rofyllda Kyrkbyn Höja – endast cirka 7 minuter med bil till Ängelholm. En ståtlig allé leder fram till huset som ligger lätt upphöjt, med vidsträckt utsikt över åkerlandskap och hästhagar.
Bostaden präglas av generösa ytor och en inbjudande atmosfär med fem sovrum, tre badrum samt sällskapsrum på både entréplan och övre plan och rymmer såväl familjeliv som sociala tillställningar. Huset är inflyttningsklart där flera större renoveringar har genomförts under senare år.
Den klassiskt inramade trädgården (ritad av trädgårdsarkitekt) skapar en grön och harmonisk miljö runt huset. Här finns utöver en terrass i söderläge även ett stort, imponerande orangeri med uppvärmd pool, murad eldstad och generösa sällskapsytor, en imponerande favoritplats med utrymme för många.
På fastigheten finns dessutom garage med förråd, samt moderna inslag som solceller på taket och laddbox, för ett bekvämt och mer hållbart boende i en lantlig idyll.
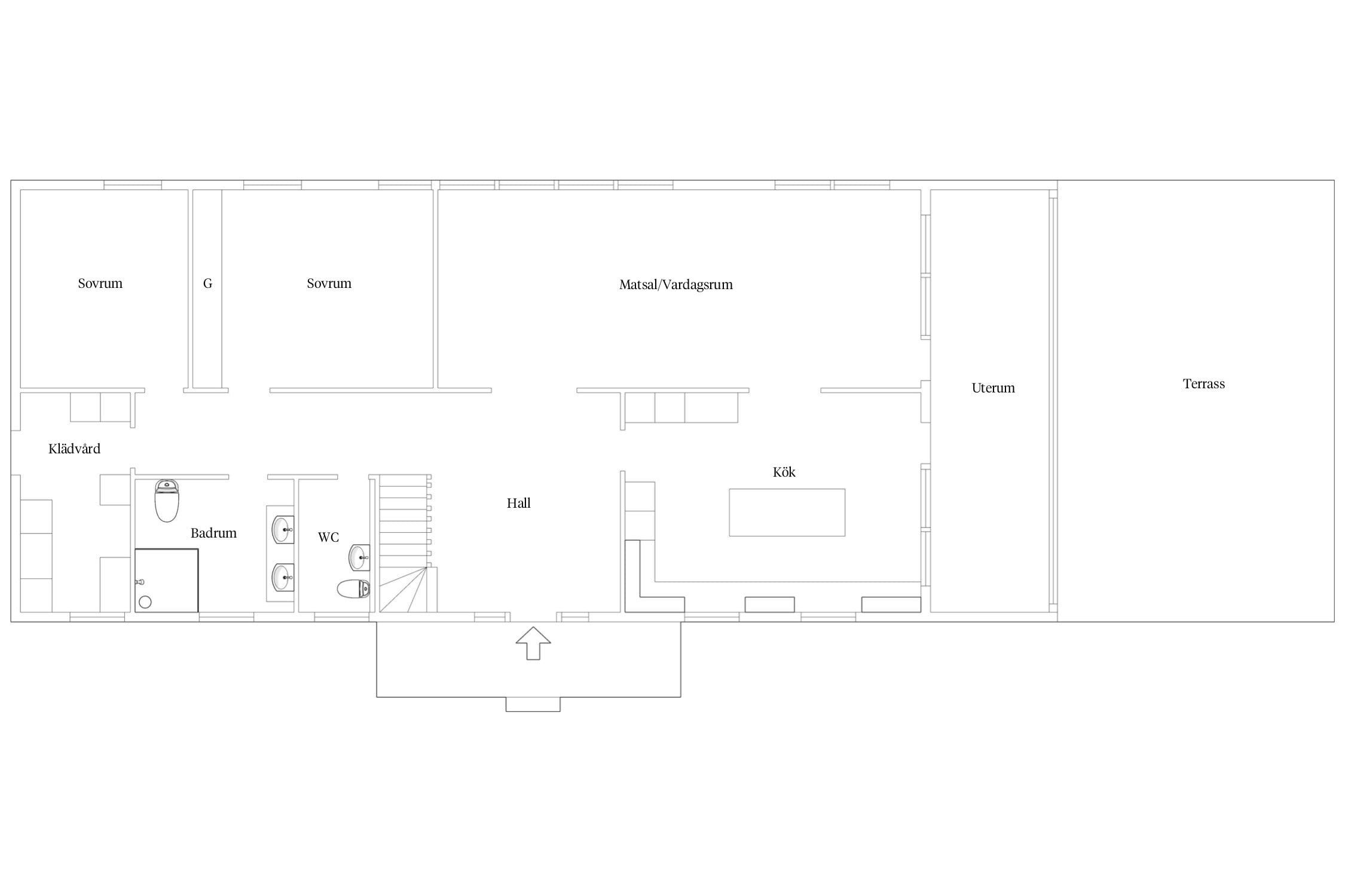
ENTRÉPLAN
HALL & KÖK
Genom en mindre veranda välkomnas man in i entrén. En rymlig hall som öppnar upp mot närliggande rum. Fungerande kakelugn. Uppvärmt klinkergolv som sträcker sig vidare in mot köket och i korridoren. Stilfullt kök i lantlig stil med grå skåpsinredning och fonvägg med tegel. Stor köksö med bra bänkytor och vask. Spis med ugn i äldre stil, köksfläkt, kyl, frys, inbyggd microvågsugn samt kaffemaskin.
VARDAGSRUM & MATSAL
Ett stort sällskapsrum med plats för både matsalsmöblemang och soffhörna. Fint ljusinsläpp. Slipat parkettgolv. Dubbelinnerdörrar mot hallen.
BADRUM
Helkaklat badrum med stora kakel- och klinkerplattor. Duschhörna med glasväggar och takdusch, dubbel tvättställskommod och spegel med belysning. Handdukstork.
GÄSTTOALETT
Rymlig helkaklad gästtoalett med vägghängd tvättställskommod och wc.
SOVRUM 1 & 2
Det ena sorvummet används idag som kontor. Rummet har behandlad och slipad ekparkett och fondvägg med panel. Det andra sovrummet är större och har garderobsvägg och samma fina golv.
TVÄTTSTUGA/GROVENTRÉ
Praktiskt groventré med access från uppfart. Klinker på golv samt skåpsinredning och garderober i svart. Tvättmaskin, torktumlare samt vask.
ÖVRE PLAN
ALLRUM
När man kommer upp från trappan möts man av ett stort luftigt allrum med fantastiskt ljus från fönsterna. Här är barnens självklara favoritplats med utrymme för både soffhäng och lek. Ekparkett på golvet och synliga takbjälkar. Braskamin och fondvägg i wood-on-wall. Balkong mot väster som ej används.
MASTER BEDROOM
I husets södra gavel ligger ett stort sovrum med egen balkong. En variant av walk-in-closet där skiljevägg gränsar av mot garderobsraden bakom. Skiljeväggen är klädd i wood-on-wall och har plats för vägghängd tv om man så önskar. Samma ekparkett på golvet som i allrummet. Dubbelskjutdörrar i rustik stil.
BADRUM
Badrummet är klätt i microcement på väggar och golv. Duschkabin, vägghängd tvättställskommod och bastu.
SOVRUM 4 & 5
Ytterligare två stycken generösa sovrum - ett målat i blått och ett i rosa. Samma ekparkett på golven som i övriga rum på övre plan.



Höja 1:17
*Areauppgifter enligt taxeringsinformationen
Solcellsanläggning:
11,34 kWp
28 paneler
Beräknad produktion 9541 kwh/år
2017 - Bytt all vatten- och avloppsinstallation löpande vid renoveringar, utfört av fackman. Bytt all elinstallation löpande vid renoveringar, utfört av fackman.
2018 - Renoverat kök
2019 - Gjutit ny betongplatta med underliggande isolering (ej i vardagsrum)
2019 - Renoverat tvättstuga
2020 - Renoverat toalett på entréplan
2022 - Renoverat duschrum på entréplan med fotodokumentation
2023 - Ny microcement på golv och väggar i duschrum på övre plan (befintligt tätskikt)
2023 - Inspekterat tak samt tvättat och behandlat takpannor
2023 - Installerat solceller
2023 - Bytt panel som varit i behov av byte samt målat
2025 - Renoverat uterum
Kommunalt vatten, Enskilt avlopp. Trekammarbrunn.
En generös och inbjudande tomt som erbjuder stora, öppna gräsytor på både fram- och baksidan. Perfekt för lek, umgänge och avkoppling. Här finns även flaggstång.
I söderläge väntar en härlig terrass i anslutning till uterummet, med vacker utsikt över den grönskande trädgården och det omgivande landskapet. Fastighetens orangeri blir snabbt en favoritplats, med uppvärmd pool, murad eldstad (ej besiktigad men ska gå att elda i) och stora fönster som suddar ut gränsen mellan inne och ute.
Den grusade uppfarten rymmer flera bilar och kompletteras av laddbox samt ett äldre garage/förråd.
Gemensamhetsanläggning: Ängelholm höja ga:4 ändamål: Vägar
Förmån: Officialservitut Avlopp, 1182-115.1
Förmån: Officialservitut Väg, 1182-115.2
Fiber
I kostnaden för el ingår uppvärmning av huset samt poolen under maj-september. Kostnaden och kwh är exklusive elbilsladdning.
Önskemål juli och framåt
Det finns 9 st pantbrev uttagna om sammanlagt 2 776 171 kr
Den vackra kuststaden Ängelholm är centralorten i Kulla- och Bjärebygden. För dig som söker bostad här finns alla möjligheter. I Ängelholms kommun är avstånden små till vad du än söker. Du möter vacker natur, djupa skogar och landskapsidyll samtidigt som du har en stadskärna med ett stort utbud av butiker och restauranger. På sommaren är Ängelholm en riktig turiststad. Inom kommunen finns en rad fantastiska sandstränder. För att nämna några finns Sibirien, Råbocka, Skälderviken och Vejbystrand på kort avstånd från Ängelholms centrum.
Genom Ängelholm flyter också vackra Rönneån, vilket också har satt sin prägel på staden. Tidigt var segling uppför Rönneån viktigt och även en av anledningarna till att staden grundades. Idag firas varje år ljusfestivalen just vid Rönneåns kant.
Det går knappast att prata om Ängelholm utan att nämna lergöken. Kommunen kallas i folkmun för just Lergökastan. Det är den långa trenden av keramiker och tillverkningen av Ängelholmsgökar som lever kvar än idag. Till exempel finns världens enda lergöksorkester i Ängelholm.
Kommunens placering med tillgänglighet till motorvägen för vidare färd söder- och norrut gör kommunen väldigt lämplig för pendlare. Ängelholm har även Ängelholms flygplats med dagliga turer till bland annat Stockholm.
Vill du köpa, sälja eller värdera bostad i Ängelholm? Kontakta våra mäklare i Ängelholm! Passa också på att anmäla dig till vår kostnadsfria söktjänst Boagenten som hjälper dig att hitta ditt drömboende.
Kontakta mäklaren om du behöver hjälp att ta fram en boendekalkyl.
När du köper din bostad genom Bjurfors kan du ansöka om bolån till en förmånlig ränta hos våra banksamarbetspartners Söderberg & Partners och SEB.
Bokad visning.
Ansvarig mäklare