-
Köpa
Köpa -
Sälja
Sälja - Hitta bostad
- Skapa bevakning
- Hitta mäklare
Liten lantlig pärla med generös tomt, verkstad, bra värmesystem och enskilt läge i Ekeröd
Munka Ljungby, Ängelholm
*Areauppgifter enligt taxeringsinformationen
Bokad visning. Anmäl dig på bjurfors.se eller ring Bjurfors 0704-979953
Ett litet men trivsamt hem för dig som söker ett naturnära boende med själ och utrymme att leva fritt
En liten idyll med lantligt och naturnära läge. Det rara huset är litet, men perfekt för ett par eller den lilla familjen som söker lugn och livskvalitet. Här finns en stor trädgård med gott om plats att leva, odla och andas. Huvudbyggnaden har renoverats under 2024 och bjuder på en fin kombination av gammalt och nytt där entréplanet har nyrenoverat kök och badrum, medan den lilla övervåningens äldre ytskikt ger en nostalgisk känsla. Bergvärme och en ny kamin håller huset varmt året runt. Ny avloppsanläggning 2026. Välkommen hem till ett liv närmare naturen.
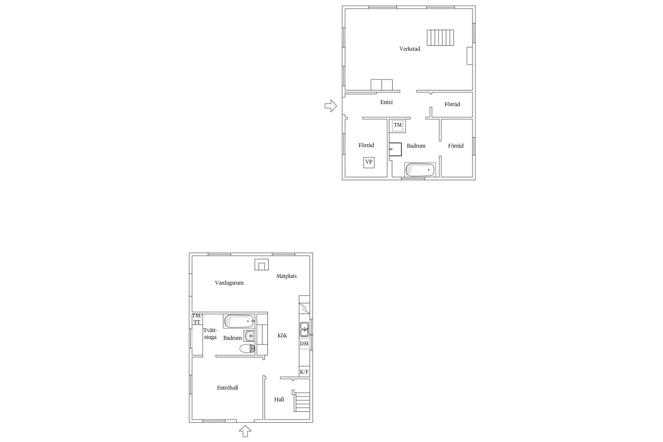
Välkommen in i detta trivsamma hus som nyligen renoverats till stora delar. Här finns en rymlig entréhall med nytt badrum, inre hall med trappa upp till nätt övervåning. Stort kök med plats för matbord och öppen planlösning mot vardagsrum. I centrum tronar en ny kamin med bra effekt.
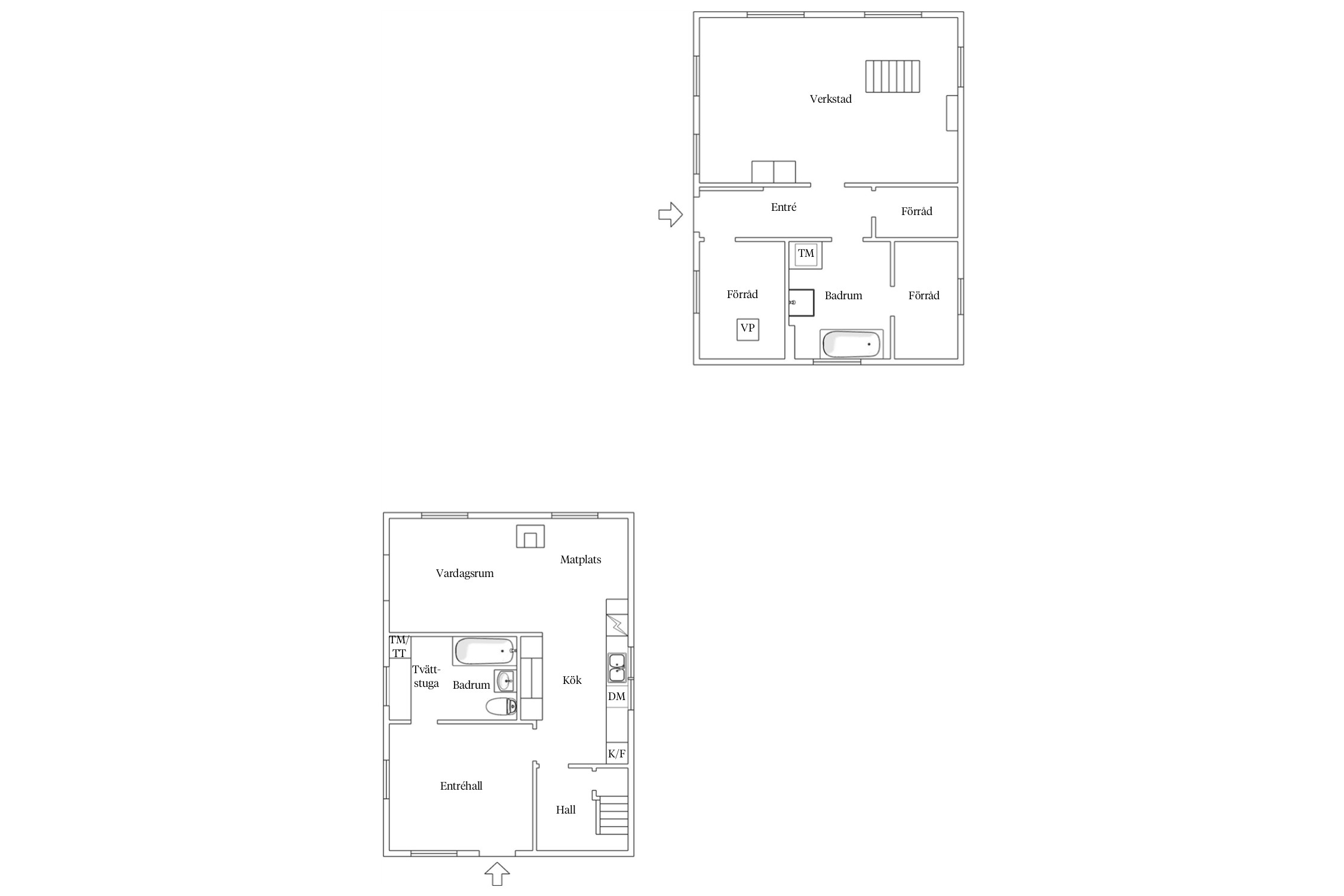
Den lilla övervåningen borde nästan kulturminnesmärkas. Här möts du av snedtak och välbekanta originaltapeter från en annan tidsepok. Tre sovrum varav två med plats för dubbelsäng och ett litet rum som är perfekt till dressingroom, gästrum eller kontor. Inbyggda vindsgarderober.
Utrustning kök: Renoverat 2024. Köksinredning i vitt från IKEA, kombinerad kyl/frys, diskmaskin, spisfläkt, elspis (äldre), rart handmålat kakel över köksbänkarna som är i ek. Laminatgolv.
Utrustning badrum: Renoverat 2024. Våtrumsintyg finns. Badkar med dusch, WC, tvättställ, tvättmaskin och torktumlare. Fönster. Väggmatta, plastmatta på golv.



Planlösning entréplan huvudbyggnad och verkstad
Planlösning övervåning huvudbyggnad och verkstad
Vill du ha större? Förslag till ombyggnation och ändrad planlösning
Bassholma 33:1
*Areauppgifter enligt taxeringsinformationen
Om du istället för en rymlig hall vill ha ett sovrum med badrum en suite på entréplanet så är det relativt enkelt att fixa till. Bygg en veranda till ytterkläderna istället.
2024 - nytt kök, badrum, yttertak.
Ändrad planlösning på entréplan.
Nytt golv i hall och kök.
Ny kamin.
Ny ytterdörr.
Nya fönster övervåning.
Ny avloppsanläggning installeras juni 2026
Praktisk jordkällare som bevarar det du skördar
Stallbyggnad/verkstad med äldre, vackra fönster, betonggolv. Här finns pannrum (med värmekulvert in till huvudbyggnad), äldre badrum, verkstadslokal (som kan bli något annat) och trappa till ett fint, rymligt loft.
Garage i plåt med stengolv
Trädgårdsförråd
Växthus (ett i bättre och ett i sämre skick)
Enskilt vatten via borrad brunn med gott om vatten. Vattenprov finns. Flera bevattningsbrunnar. Ny avloppsanläggning installeras i juni 2026.
Trivsam och naturnära tomt med gräsytor och fin inhägnad odling med fruktträd, bär- och hasselbuskar. Två växthus varav ett i dåligt skick.
Plats för flera bilar på uppfarten samt ett garage
Gemensamhetsanläggning: Ängelholm bassholma ga:1 ändamål: Vägar
Avtalsservitut D-2016-00337103:1
Last: Avtalsservitut Elledning, D201600337103:1.1
Internet: Ansluten till fibernät
I kostnaden för uppvärmning ingår hushållsel. Kostnaden under övrigt är slamtömning av avloppsbrunn
Naturen är ständigt närvarande och skogens djur är dina närmsta grannar på den stora tomten där det tidigare odlats frukt, bär och hasselnötter. Fortfarande finns både fruktträd, hassel- och bärbuskar kvar och jordmånen är fin. Ett av växthusen kan både vara uterum och växtplats. En fika bland ljuvligt doftande tomatplantor lockar ju vem som helst. Här finns även en rejäl verkstad med stort loft, garage, jordkällare och trädgårdsförråd. Två historiska, ståtliga träd ramar in fastigheten på var sida om det söta boningshuset som nyligen renoverats med nytt kök, badrum och yttertak så att du bara kan flytta rätt in. Läget är enskilt utan att vara ensligt. Välkommen på visning!
Efter överenskommelse
Det finns 5 st pantbrev uttagna om sammanlagt 1 623 000 kr
Den vackra kuststaden Ängelholm är centralorten i Kulla- och Bjärebygden. För dig som söker bostad här finns alla möjligheter. I Ängelholms kommun är avstånden små till vad du än söker. Du möter vacker natur, djupa skogar och landskapsidyll samtidigt som du har en stadskärna med ett stort utbud av butiker och restauranger. På sommaren är Ängelholm en riktig turiststad. Inom kommunen finns en rad fantastiska sandstränder. För att nämna några finns Sibirien, Råbocka, Skälderviken och Vejbystrand på kort avstånd från Ängelholms centrum.
Genom Ängelholm flyter också vackra Rönneån, vilket också har satt sin prägel på staden. Tidigt var segling uppför Rönneån viktigt och även en av anledningarna till att staden grundades. Idag firas varje år ljusfestivalen just vid Rönneåns kant.
Det går knappast att prata om Ängelholm utan att nämna lergöken. Kommunen kallas i folkmun för just Lergökastan. Det är den långa trenden av keramiker och tillverkningen av Ängelholmsgökar som lever kvar än idag. Till exempel finns världens enda lergöksorkester i Ängelholm.
Kommunens placering med tillgänglighet till motorvägen för vidare färd söder- och norrut gör kommunen väldigt lämplig för pendlare. Ängelholm har även Ängelholms flygplats med dagliga turer till bland annat Stockholm.
Vill du köpa, sälja eller värdera bostad i Ängelholm? Kontakta våra mäklare i Ängelholm! Passa också på att anmäla dig till vår kostnadsfria söktjänst Boagenten som hjälper dig att hitta ditt drömboende.
Kontakta mäklaren om du behöver hjälp att ta fram en boendekalkyl.
När du köper din bostad genom Bjurfors kan du ansöka om bolån till en förmånlig ränta hos våra banksamarbetspartners Söderberg & Partners och SEB.
Bokad visning. Anmäl dig på bjurfors.se eller ring Bjurfors 0704-979953
Ansvarig mäklare