-
Köpa
Köpa -
Sälja
Sälja - Hitta bostad
- Skapa bevakning
- Hitta mäklare
Ett fynd! Trevlig fastighet med utvecklingspotential, goda kommunikationer och ett taktiskt läge
Strövelstorp, Ängelholm
Gör en god affär! Trevlig fastighet med utvecklingspotential, goda kommunikationer och ett taktiskt läge. Se Objektvision nr 240027280.
Passa på och gör en god affär! Se mer om fastigheten på Objektvision nr 240027280.
Den vackra huvudbyggnaden i klassiskt rött tegel med byggår 1898 har omsorgsfullt renoverats och bevarats av de nuvarande ägarna. En vacker veranda välkomnar och det är bara fantasin som sätter gränserna för nyttjandet. Det taktiska läget invid Ängelholm e-handelscentrum ger utmärkta förutsättningar för att inrymma en affärsverksamhet eller logistikcentrum. I dagsläget finns fyra uthyrda lägenheter varav en i komplementbyggnad. Här finns även lagerutrymmen, lastbrygga och garage. Huvudbyggnaden har tidigare använts som kontor och hela entréplanet är omgående tillgängligt för köparen. En väl tilltagen gårdsplan har plats för parkering och på baksidan finns en fin trädgård. Goda kommunikationer via E6, väg 107 och så både buss och cykelväg utanför dörren. Välkommen på visning!



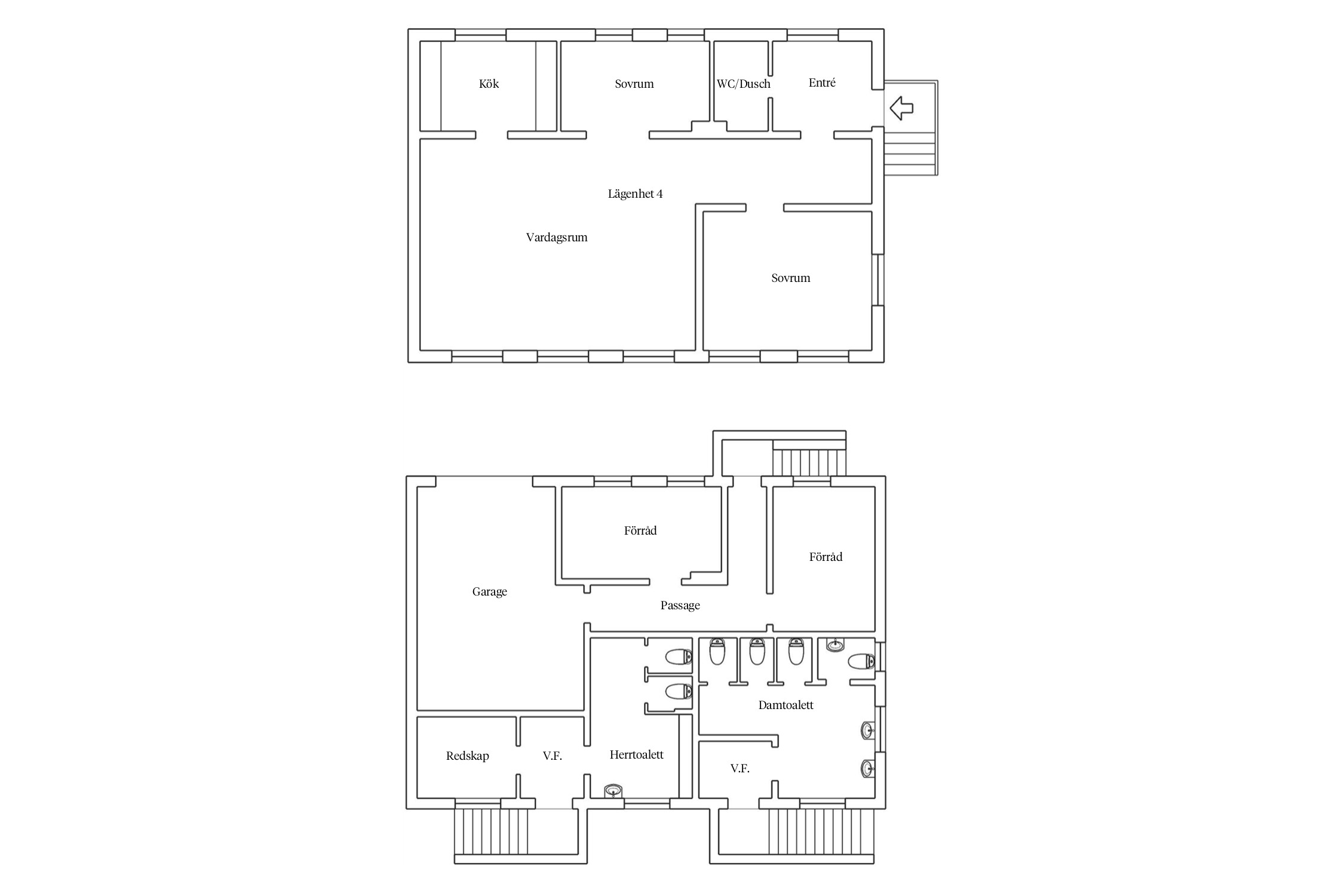
Planlösning huvudbyggnadens entréplan inkl lgh 1
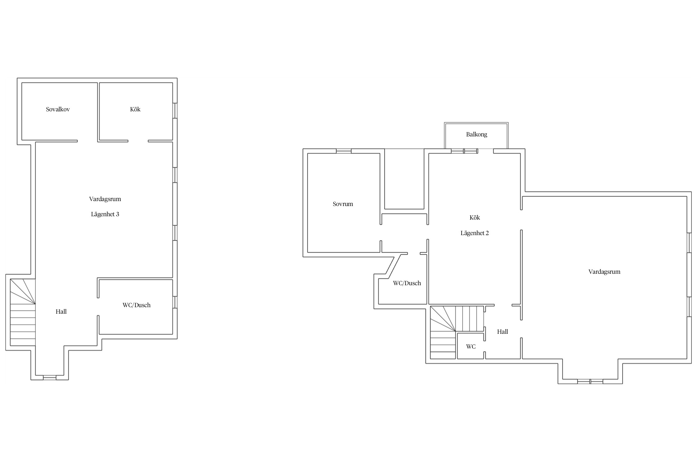
Planlösning lägenhet 2 och 3 i huvudbyggnadens övervåning
Planlösning källare i huvudbyggnad
Planlösning komplementbyggnad, lägenhet 4
Sandåkra 10:1
Gott om parkering på egen mark
Last: Avtalsservitut Gång-och cykelväg, 11-IM5-95/11590.1
Last: Officialservitut Väg, 1292-1310.1
Avtalsservitut Gång- och cykelväg
Respektive hyresgäst svarar för sin egen förbrukning av hushållsel. Den el som anges ovan avser kontorslokaler och tidigare hyresgäst.
4 798 kvm
<a href="https://crownwood.club/">https://crownwood.club/</a>
Omgående om så önskas
Det finns 2 st pantbrev uttagna om sammanlagt 2 700 000 kr
Tomtarea 2000 m².
Tomtarea 2000 m².
Den vackra kuststaden Ängelholm är centralorten i Kulla- och Bjärebygden. För dig som söker bostad här finns alla möjligheter. I Ängelholms kommun är avstånden små till vad du än söker. Du möter vacker natur, djupa skogar och landskapsidyll samtidigt som du har en stadskärna med ett stort utbud av butiker och restauranger. På sommaren är Ängelholm en riktig turiststad. Inom kommunen finns en rad fantastiska sandstränder. För att nämna några finns Sibirien, Råbocka, Skälderviken och Vejbystrand på kort avstånd från Ängelholms centrum.
Genom Ängelholm flyter också vackra Rönneån, vilket också har satt sin prägel på staden. Tidigt var segling uppför Rönneån viktigt och även en av anledningarna till att staden grundades. Idag firas varje år ljusfestivalen just vid Rönneåns kant.
Det går knappast att prata om Ängelholm utan att nämna lergöken. Kommunen kallas i folkmun för just Lergökastan. Det är den långa trenden av keramiker och tillverkningen av Ängelholmsgökar som lever kvar än idag. Till exempel finns världens enda lergöksorkester i Ängelholm.
Kommunens placering med tillgänglighet till motorvägen för vidare färd söder- och norrut gör kommunen väldigt lämplig för pendlare. Ängelholm har även Ängelholms flygplats med dagliga turer till bland annat Stockholm.
Vill du köpa, sälja eller värdera bostad i Ängelholm? Kontakta våra mäklare i Ängelholm! Passa också på att anmäla dig till vår kostnadsfria söktjänst Boagenten som hjälper dig att hitta ditt drömboende.
Kontakta mäklaren om du behöver hjälp att ta fram en boendekalkyl.
När du köper din bostad genom Bjurfors kan du ansöka om bolån till en förmånlig ränta hos vår samarbetspartner SEB.
Ansvarig mäklare