-
Köpa
Köpa -
Sälja
Sälja - Hitta bostad
- Skapa bevakning
- Hitta mäklare
Lättlevd villa i toppskick med allt du behöver för ett bekvämt liv i Torekov
Torekov, Båstad
*Areauppgifter enligt taxeringsinformationen
Lättlevd villa i toppskick med allt du behöver och med det bästa Torekov har att erbjuda på gångavstånd
Den här fina enplansvillan har allt du vill ha och lite till. Lättlevt i ett plan med gångavstånd till både bykärnan och stranden. När du inte njuter av Torekovs härliga sommarmyller tar du det sannolikt lugnt vid poolen eller påtar i växthuset. Livet är till för att njutas!
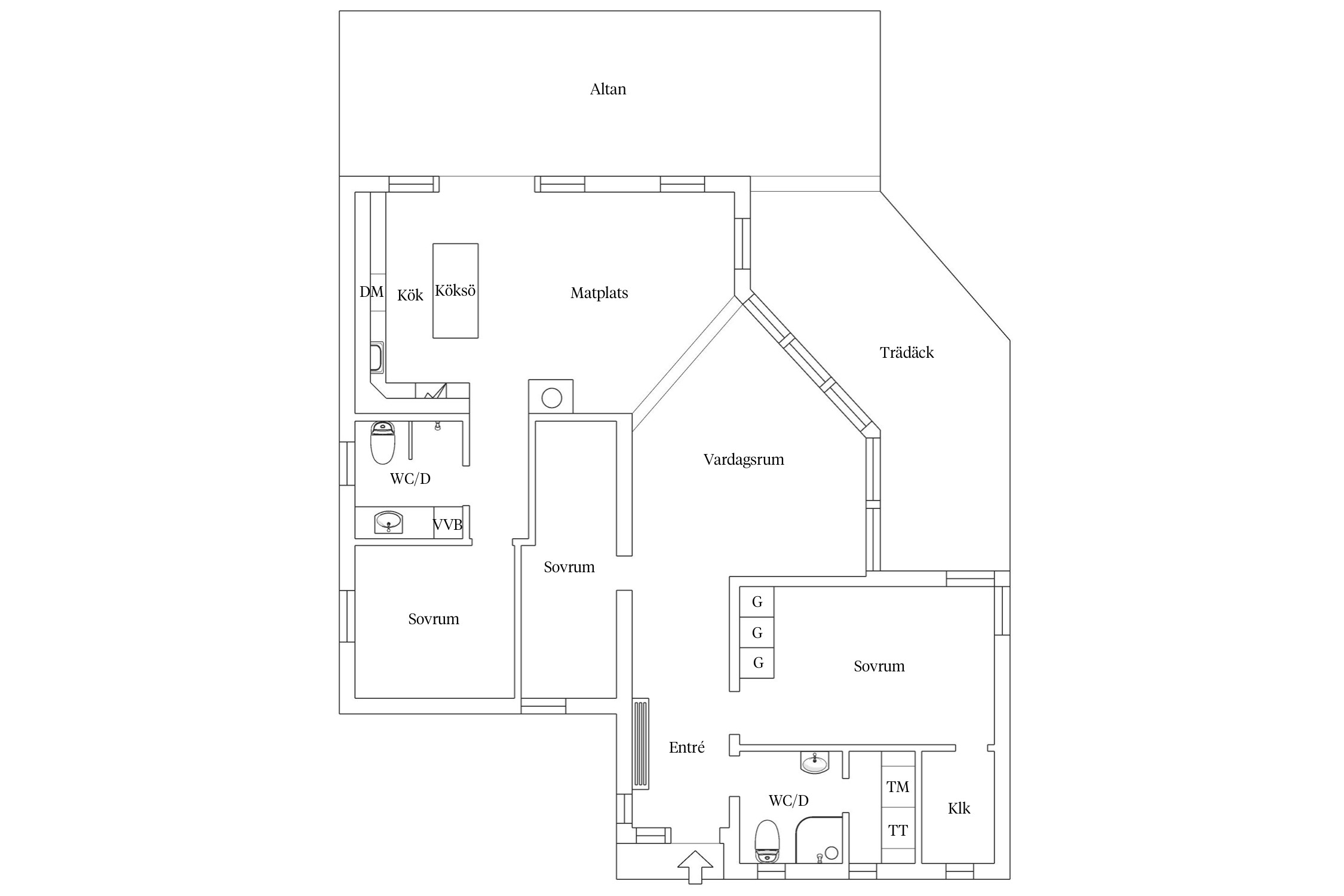
Entréhall med klinker på golv och förvaring. I anslutning finns duschrum med WC och klädvård. Rymligt sovrum med härlig takhöjd och fönster mot trädgården. Här finns både garderober och en klädkammare.
Ett trappsteg upp finns kök och vardagsrum som flödar av ljus med stora skjutpartier och dörrar mot trädgård och altandäck. Den öppna planlösningen gör det lätt att umgås och vid matbordet finns plats för många. Kaminen är en extra mysfaktor. Strax utanför sällskapsytorna finns både spabad och pool att njuta av i det tempererade vattnet.
Innanför köket finns ytterligare ett duschrum med WC samt två fina sovrum varav ett med plats för dubbelsäng.
Ett lättlevt hus med allt du behöver inom räckhåll.
Utrustning kök: Elspis med induktionshäll, köksfläkt, integrerad kyl, bänkskivor i massiv ek, diskmaskin (Grundig 2022)it. Vitvaror och köksinredning med vita profilerade luckor och vitrinskåp från IKEA. Köksö med el och belysning. Frys i fullhöjd samt kombinerad kyl/frys i förrådet. Köket renoverades och byttes ut 2017.
Utrustning badrum 1: Duschplats med glasdörrar, kakel på väggar, klinkers på golv med elburen värme. Tvättställ med skåp samt spegelskåp. Mekanisk ventilation. WC. Renoverat 2006.
I den f.d. bastun finns sedan ett år tillbaka plats för klädvård med tvättmaskin och torktumlare (båda från Samsung) i bekväm arbetshöjd. Förvaring. Målad träpanel på väggar. Klinkers med elburen golvvärme.
Utrustning badrum 2: Duschrum med ny duschkabin (2022). WC, VVB, tvättställ med bra ytor vid sidan. Ventilation via fuktstyrd fläkt. Målad plastmatta på väggar, äldre plastmatta i bra skick på golv. Renoverat och uppfräschat 2022.



Planlösning
Tumlaren 5
*Areauppgifter enligt taxeringsinformationen
*Tillbyggt 2006
Automower i trädgården
Tillbyggt 2006
Duschrum 2006
Fönster 2006
Kök 2017
Loggia 2019
Dubbeldörr kök 2021
Nytt papptak på förråd 2020
Diskmaskin 2022
Bastu omgjord till rum för klädvård 2022
Duschrum nr 2 uppdaterat 2022
Uterum 2022
Carport 2023
Växthus 2023
Värmepump 2023
Solpaneler, 24 st i april 2023
Carport med elbilsladdare
Isolerat förråd
Växthus
Uterum med glasade skjutpartier, isolerat golv och infravärme invid kök
Skyddad loggia mellan vardagsrum och förråd. Isolerat golv, infravärme och tak av isolerplast.
Stort trädäck som binder ihop huvudbyggnaden med pool och spabad samt övriga byggnader såsom växthus, uterum, loggia och förråd.
Kommunalt vatten och avlopp
Välkomnande entré via carport med prydlig stenläggning och planteringar med sjösten. Lättskött tomt med stort trädäck och välskött gräsmatta för kubbspel. Insynsskyddat och omgärdat av staket och en grönskande Thujahäck.
Poolen är 1,70 m djup på djupaste stället med tre trappsteg i ena änden. Storlek 3,70x7,4 m. Liner utbytt ca 1,5 år sedan.
Nybyggd carport som bildar en portal vid entrén. Plats för flera bilar på den asfalterade uppfarten. Elbilsladdare.
Detaljplan (1995-08-14)
Gemensamhetsanläggning: Båstad varan ga:1 ändamål: Vägar
Förmån: Officialservitut Avlopp, 1168-191.1
Mobilt bredband används. Fiber finns i gatan.
Elkostnaden baseras på permanentboende och här ingår både uppvärmning och hushållsel. Den el som säljs tack vare de 24 solpanelerna har inte räknats av. Solpanelerna ger 400-450 W.
Det finns 6 st pantbrev uttagna om sammanlagt 2 841 632 kr
Längst ut på Bjärehalvöns spets, där Kattegatt slår in mot den skånska kusten, ligger den charmiga lilla byn Torekov. En mysig kustpärla för både semesterfirare och året-runt-boende. Denna karaktäristiska badort växte en gång fram ur ett präglat fiskesamhälle och idag erbjuder byn ett trivsamt liv med goda kommunikationer, bra service samt förskola.
Torekov andas verkligen historia! Detta är något som slår en vid första mötet och förstärks när vi vandrar runt i båthamnen och längs de idylliska gatorna. Strax ovanför hamnen låg en gång den första medeltida kyrkan, Sankta Thoras kyrka, där ett visst antal gravstenar kvarstår än idag sedan den ursprungliga kyrkogården.
Flera väljer att uppleva den här byn till fots och därför har Torekov blivit lite av en slags knutpunkt för den omtalade Skåneleden. Förutom de vackra kuststräckorna bjuder vandringsleden på allt från sagolika skogspartier och öppna grönskande fält till storslagna platser, som till exempel Hovs hallar i norr.
Dagliga dopp från morgonbryggan är en tradition som utförs av de boende året om, men vill man ha lite mer avslappnat solbad så finns också en sandstrand strax norr om hamnen eller fina badmöjligheter ute på Hallands Väderö, samt på de sandstränder som finns både norrut och söderut längs Bjärehalvöns kust.
Trots att torekov ligger precis vid kusten får ni även närhet till stadsliv, då ni enkelt kan pendla med bil eller buss till Båstad, Ängelholm, Halmstad och Helsingborg. Tågstationer finns även i Båstad och Förslöv, medan närmsta flygplats ligger i Ängelholm. Något som öppnar upp för bra och smidiga jobbmöjligheter på annan ort.
Tack vare det stora antalet fritidsboende och besökare har de permanentboende ett överraskande bra utbud av service och fritidsaktiviteter. Här finns förskola med bra rykte, närmaste F-6 skola ligger i Västra Karup som trafikeras med skolbuss. Ett aktivt föreningsliv växer och Torekovs IK erbjuder bland annat fotboll, boule, badminton, motionsgymnastik och bordtennis. Goda möjligheter till tennis och padel finns, samt havets friska vindar som lockar hit surfare från hela Sverige. Värt att nämna är såklart även golfbanan Torekov Links med en slående havsutsikt från alla vinklar.
I byn hittar ni även en matbutik, konditori, caféer och fina restauranger. Värt att känna till är att mycket av det som serveras på restaurangerna i Torekov hämtas från de lokala gårdsbutikerna, där även du som privatperson kan inhandla fina och närproducerade råvaror.
Köpa, sälja eller värdera bostad i Torekov? Kontakta våra mäklare i Båstad! Passa också på att anmäla dig till vår kostnadsfria söktjänst Boagenten som hjälper dig att hitta ditt drömboende.
Kontakta mäklaren om du behöver hjälp att ta fram en boendekalkyl.
När du köper din bostad genom Bjurfors kan du ansöka om bolån till en förmånlig ränta hos vår samarbetspartner SEB.
Ansvarig mäklare