-
Köpa
Köpa -
Sälja
Sälja - Hitta bostad
- Skapa bevakning
- Hitta mäklare
Revstigen 1
Åmanäs, Hässleholm
*Areauppgifter enligt taxeringsinformationen
Underbar bostad på hörntomt med helrenoverat inre i smakfull och stilren design med sjön glimtande som en tavla utanför fönstret.
Sjön som glimtar, stilfullt renoverad insida och en underbar trädgård med både spabad och pool - ja listan kan göras lång på alla härligheter denna bostad bjuder på! Dessutom stora sociala ytor, två helkaklade badrum, ljust kök och ett underbart uterum. Fiber och stor asfalterad uppfart. Här är det bara att flytta in och börja trivas!
Välkomna hem!
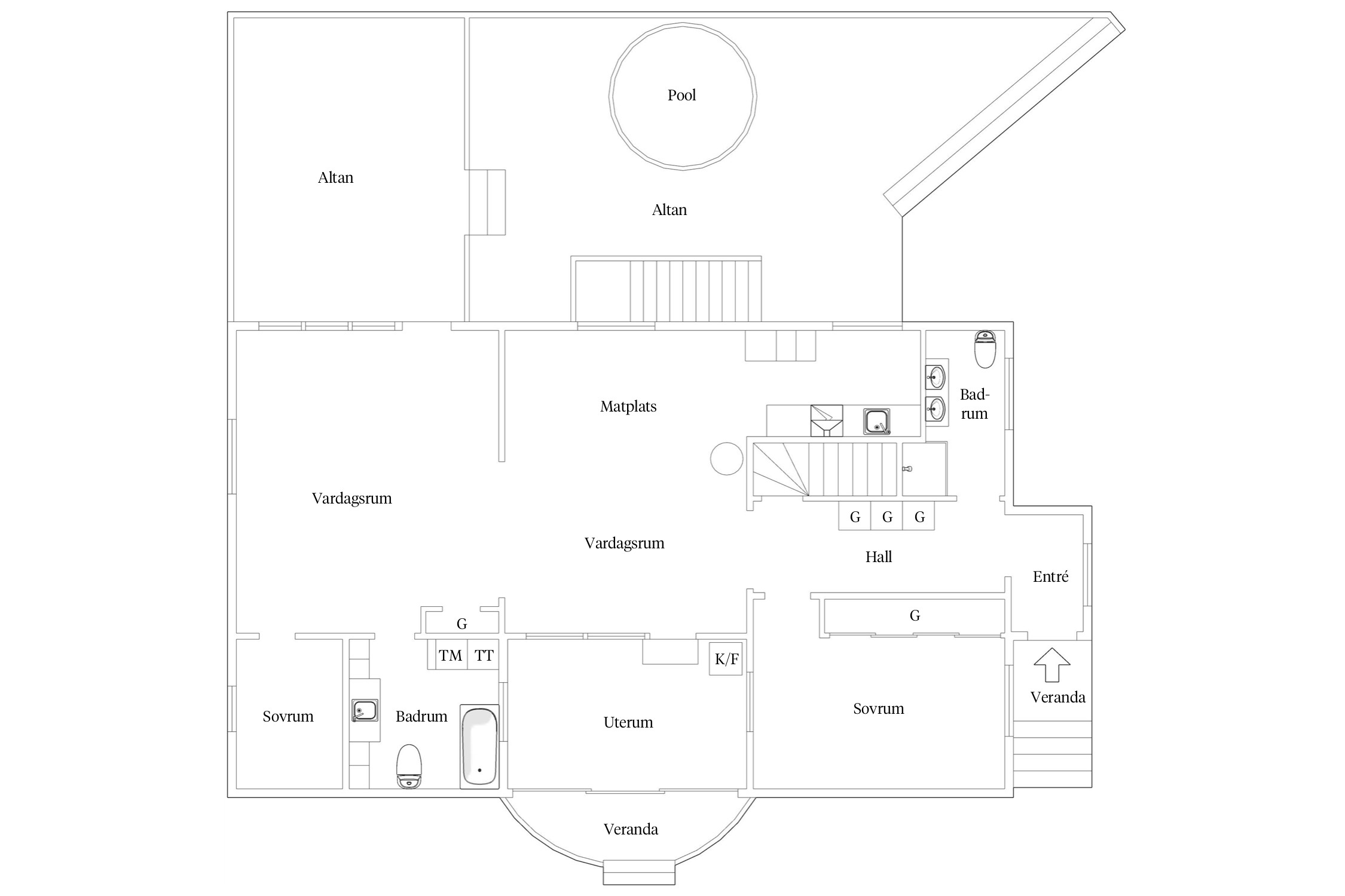
Ni välkomnas in på gaveln av huset där vi stiger in i hallen med plats att hänga av ytterkläder och länge in i hallen även flera garderober. Stilrent med ljusa väggar och klinkergolv med golvvärme. Härifrån når vi ett av två badrum med dubbelhandfat, spegel, dusch och toalett. Kakel och klinkers i gråa toner samt målade väggar i ljus kulör som ger en perfekt bas att sätta din egen stil därtill. I denna del finner vi även masterbeedroom med god plats för dubbelsäng och förvaringsmöjligheter i gardrober med skjutdörrar. Där hallen tar slut öppnar huset upp sig med stora härliga sociala ytor som bjuder på både öppen planlösning in till kök och en värmande kamin de kallare delarna på året. Här finns plats för många!
Köket är placerat i gaveln av rummet och har vita luckor, beige bänkskiva och vitt stänkskydd. Här finns det som önskas så som inbyggnads ugn samt mikro, spishäll, fläkt och kyl/frys. Matbord precis bredvid köket med plats för många och från detta rum kommer vi även ut till uterummet som vetter ut mot baksidan av huset. Ett underbart rum som förlänger den svenska sommaren. Härifrån kommer vi även ut i trädgården där trädäck finns och ett varmt och skönt spabad.
Tillbaka in i huset kommer vi vidare in till vardagsrummet med en lugn grön färg på väggarna. Utgång till trädäcket på framsidan som vetter ut mot sjön. Här kan ni grilla, njuta av sjön och ta ett dopp i husets pool - dröm!
Från vardagsrummet kommer vi in till det andra badrummet med kombinerad tvättstuga. Helkaklat och med klinkergolv. Utrustat med handfat, toalett, badkar, högskåp samt tvättmaskin och torktumlare. Bredvid finner vi det andra sovrummet som lämpar sig väl till kontor alternativt barnrum.
Välkomna på visning!



Tormestorp 5:27
*Areauppgifter enligt taxeringsinformationen
Uterum och trädäck
Kommunalt vatten, Kommunalt avlopp.
Hörntomt
Stor asfalterad uppfart
Ändring Av Detaljplan (2019-04-17) Ändring Av Detaljplan (2005-01-18) Detaljplan (1994-04-12)
Last: Officialservitut Vägslänt, 1293-1563.9
Förmån: Officialservitut Bad-Och Båtplats, 11-BRS-474.2
Förmån: Officialservitut Gångväg, 11-BRS-474.1
Fiber
Driftkostnaderna är individuella och kan komma att ändras beroende på avtal/användning.
Det finns 7 st pantbrev uttagna om sammanlagt 2 041 000 kr
Redan i slutet på 1800-talet blev Hässleholm en viktig järnvägsknutpunkt i Skåne. Idag tar man sig lätt och smidigt mellan storstäder som Stockholm och Köpenhamn. Inne i centrum finns ett stort av kultur, restauranger och butiker. Utanför stadskärnan finns det gott om natursköna platser att upptäcka.
Tack vare expanderingen av järnvägen under 1860–1870-talen på Hässleholmsgårdens mark, fick Hässleholm en viktig roll i Skåne. På den tiden färdades man främst mellan Helsingborg och Kristianstad. Idag tar man sig smidigt till Köpenhamn på cirka 1 timme och Stockholm på 3–4 timmar.
Hässleholms centrum har byggts upp intill järnvägsstationen, där största delen av bebyggelsen består av hus från efterkrigstiden. Några få äldre byggnader från tidigt sekelskifte finns kvar men mycket har rivits. Inne i centrum finns allt man behöver inom service, butiker, kaféer och restauranger. Kulturhuset är en populär, social mötesplats mitt i centrum med bibliotek, utställningshall, konsertsalar och biograf. För barn och unga arrangeras det löpande konserter, teater, workshops och pyssel.
Sport- och föreningslivet är rikt i Hässleholm. Q-poolen är en idrottsanläggning med både idrottshall, träningscenter och simhall med rekreationsavdelning. På Österås finns padel, tennis – och ishall samt fotbollsplaner. Alldeles i utkanten av centrum ligger Hässlegårdens golfklubb. Det rika aktivitetsutbudet uppskattas inte minst av barnfamiljerna som också har bekvämt nära till flera förskolor och skolor både inne i centrum och utanför.
Hembygdsparken ligger nära Hässleholms kyrka och bildades på 1930-talet. Här, mitt i centrum, erbjuds en vacker och nostalgisk miljö med gröningar, dammar, äldre röda trähus och en Ölandskvarn. Hela området är en perfekt utgångspunkt för att samlas för picknick och utomhuslek. Utöver detta finns ett flertal lekplatser, museum och en utomhusscen. Varje år anordnas det midsommarfirande i parken.
För större naturupplevelser behöver man inte åka långt. Ett flertal vandringsleder, promenadslingor och strövområden i varierande landskap finns nära tillhands. Hovdala, Lursjöleden, Möllerödssjö, Vedema och Vieåleden är några av dessa. Finjasjön med fiske och badplats ligger endast 5 km bort. Inte långt från FInjasjön ligger ett av Hässleholms mest besökta utflyktsmål, inte minst av turister; Hovdala slott.
Slottet har anor från 1600-talet och omges av en vacker park och trädgård samt ett orangeri från 1700-talet, som är en populär vigselplats. Här kan man också ta del av projektet Boketorp som är en samling hus som varsamt restaurerats. Runt slottet finns ett fint naturområde med möjlighet för att vandra, fiska, rida på islandshästar och fördjupa sig i den historiska miljön med minnesmärken.
Vill du köpa, sälja eller värdera bostad i Hässleholm? Välkommen att kontakta Bjurfors mäklare i Hässleholm. Passa också på att anmäla dig till vår kostnadsfria söktjänst Boagenten som hjälper dig att hitta ditt drömboende.
Kontakta mäklaren om du behöver hjälp att ta fram en boendekalkyl.
När du köper din bostad genom Bjurfors kan du ansöka om bolån till en förmånlig ränta hos vår samarbetspartner SEB.
Ansvarig mäklare