-
Köpa
Köpa -
Sälja
Sälja - Hitta bostad
- Skapa bevakning
- Hitta mäklare
Värpatorparens väg 1B
Centrum, Hässleholm
*I månadsavgiften ingår värme, VA, renhållning och Tv (grundutbud)
**Enligt bostadsrättsföreningens mäklarbild/utdrag ur lägenhetsregister
Bokad visning.
Nu finns en tvåa till salu i ett av de få husen i Hässleholm med hiss! Helkaklat badrum, fräscht kök och balkong ut mot Hembygdsparken.
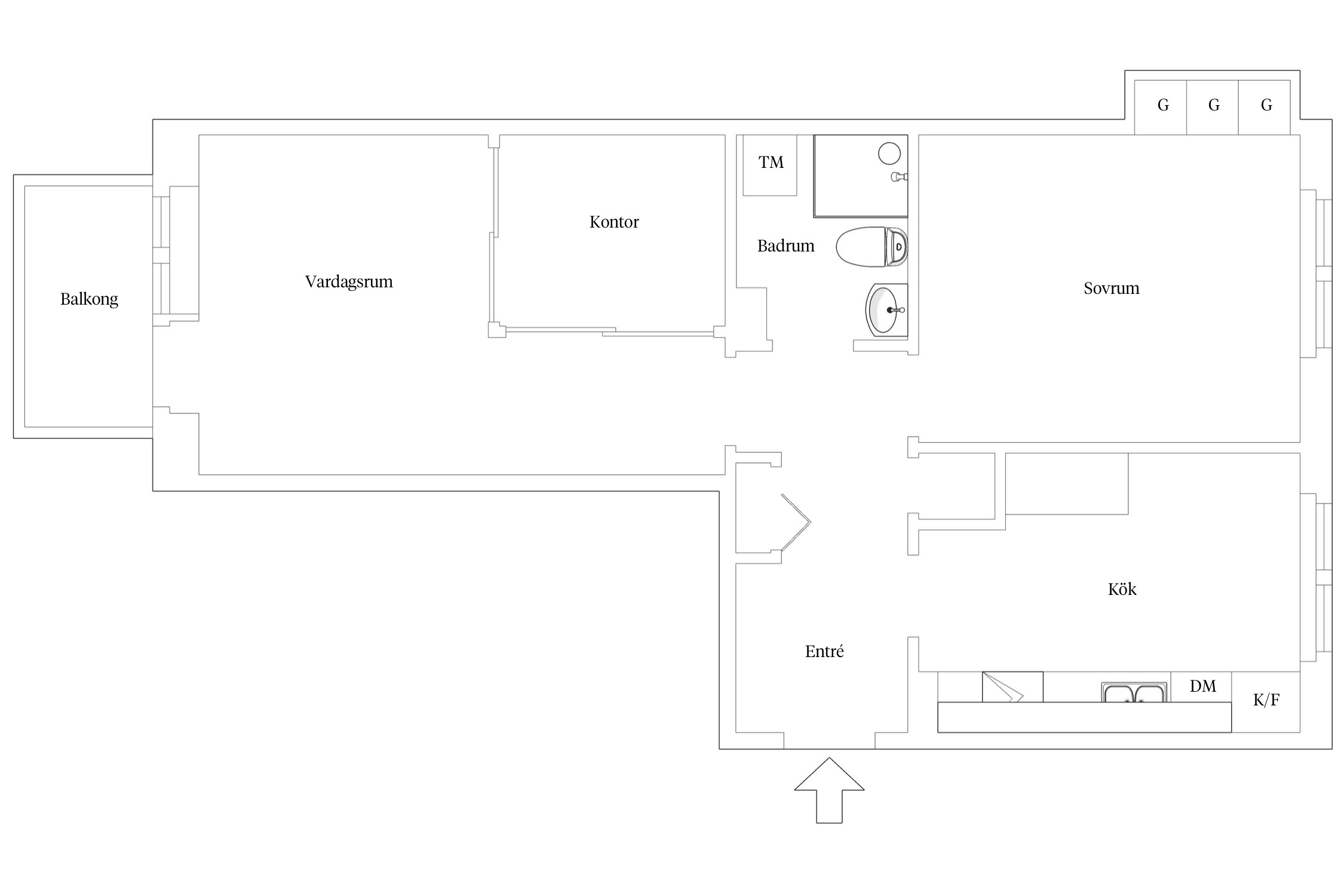
För dig som länge letat efter en central lägenhet med hiss så finns nu denna fina lägenhet till salu. Mysig tvåa varav en av få i denna förening med balkong som vetter ut mot Hembygdparken gör denna lägenhet till något extra. Bostaden har kök med vita luckor, helkaklat badrum med egen tvättmaskin, vardagsrum därifrån ni når balkongen som smakfullt delats av med snygga industriväggar samt rymligt sovrum. Ett perfekt boende för dig som vill bo nära kommunikationer, de centrala delarna men samtidigt lugnt och trivsamt.
Välkomna att boka en tid för visning!
Välkomna upp till lägenheten antingen via trapporna eller hissen. Väl inne i lägenheten öppnar bostaden upp sig med en möblerbar hall där vi till vänster hänger av oss ytterkläderna. Går vi vidare till höger kommer vi in till köket från IKEA med vita luckor, rostfri vask och stort skafferi. Vid fönstret finns den naturliga matplatsen med plats för köksbord. Köket är vidare utrustat med kyl/frys, spis, fläkt och diskmaskin.
Vidare in i lägenheten bredvid köket ligger sovrummet med fasta garderober, ljusa väggar och fönster ut mot framsidan av huset. Praktiskt finner vi vägg i vägg badrummet som renoverades år 2019 med kakel och klinkers. Här har man lyxen med egen tvättmaskin! Vidare utrustat med handfat, spegelskåp, dusch och toalett.
Sist men inte minst vardagsrummet som delats av med extra kontor/sovrum med stilrena industriväggar - snyggt! Från vardagsrummet tar ni er ut till balkongen i soligt läge med utsikt över Hembygdsparken.
Välkomna på visning!



Spetsen 2
*Enligt bostadsrättsföreningens mäklarbild/utdrag ur lägenhetsregister
I månadsavgiften ingår värme, VA, renhållning och Tv (grundutbud)
Bostadsrättsföreningen äger inga egna parkeringsplatser eller garage.
Det finns parkeringsplatser för 125 kr/mån i anslutning till föreningens fastighet tomt som ägs av extern aktör. Kösystem gäller.
Tele2
Tele2
Bostadsrättens indirekta nettoskuldsättning baseras på föreningens skulder/lån minus föreningens räntebärande tillgångar och likvida medel. Beräkningen är gjord och baseras på senaste tillgängliga årsredovisningen. För mer information kontakta ansvarig fastighetsmäklare.
Driftkostnaderna är individuella och kan komma att ändras beroende på avtal/användning.
*Betalas av säljare
HSB Brf Spetsen är en bostadsrättsförening med säte i Hässleholm.
Föreningens byggnader uppfördes 1944 på fastigheten Spetsen 2 som föreningen innehar med äganderätt. Bostadsrättsföreningens adresser är Värpatorparens väg 1 A-B i Hässleholm.
Ekonomisk förvaltare är HSB.
Köparen/köparna måste vara medlemmar i HSB innan beslut om medlemskap i föreningen tas. Ansökan om medlemskap görs på https://blimedlem.hsb.se/
Föreningen hade en avgiftshöjning på 2% den 1/1-2023.
Föreningen hade en avgiftshöjning på 3% den 1/1-2024.
Föreningen hade en avgiftshöjning på 5% den 1/1-2025.
I föreningens fastighetsförsäkring via Länsförsäkringar. Kollektivt bostadsrättstillägg ingår i föreningens fastighetsförsäkring.
Hemförsäkring tecknas och bekostas individuellt av bostadsrättsinnehavarna.
De senaste åren har föreningen gjort följande större underhållsåtgärder och investeringar i fastigheten:
2008 - Byte hiss.
2015 - OVK.
2018 - Byte fjärrvärmeväxlare.
2018 - Målat om trapphus.
2019 - Radonmätning för inomhusluft.
2020 - Fasadtvätt, Rensning av avloppsledningar.
Inga större renoveringar gjorde 2021-2022, utan löpande underhåll.
2022 - Fastighetsbesiktning.
2022 - Målning av soprum och cykelförråd.
2024 - Renovering av yttertak.
2024 - Installerat en ny tryckstyrd frånluftsfläkt.
Föreningen utför och planerar följande åtgärder under de närmaste 5 åren:
2025 - Hiss.
2026 - Översyn av utvändiga dag- och spillvattenledningar.
Bostadsrättsföreningen äger inga egna parkeringsplatser eller garage.
Det finns parkeringsplatser för ca 125 kr/mån i anslutning till föreningens fastighet tomt som ägs av extern aktör. Kösystem gäller.
Kabel-TV (grundutbudet) och bredband via Tele2.
Kabel-tv (grundutbudet) ingår i månadsavgiften.
Gemensam gårdsplats där föreningen ställer ut möbler på sommaren.
Finns två lekplatser i närheten där de små kan leka av sig.
Föreningen har gemensam tvättstuga och cykelförråd som är beläget på bottenplan.
Gemensamt soprum.
Ett källarförråd tillhör respektive lägenhet.
Föreningen har ingen avsättning till inre fond.
All information om föreningen har inhämtats genom årsredovisningen, stadgar och kontakt med föreningen (kontrollerat 2025-01-26). Avvikelser kan förekomma och slutgiltig köpare uppmanas att kontakta representant från föreningen för att stämma av föreningsinformationen.
Redan i slutet på 1800-talet blev Hässleholm en viktig järnvägsknutpunkt i Skåne. Idag tar man sig lätt och smidigt mellan storstäder som Stockholm och Köpenhamn. Inne i centrum finns ett stort av kultur, restauranger och butiker. Utanför stadskärnan finns det gott om natursköna platser att upptäcka.
Tack vare expanderingen av järnvägen under 1860–1870-talen på Hässleholmsgårdens mark, fick Hässleholm en viktig roll i Skåne. På den tiden färdades man främst mellan Helsingborg och Kristianstad. Idag tar man sig smidigt till Köpenhamn på cirka 1 timme och Stockholm på 3–4 timmar.
Hässleholms centrum har byggts upp intill järnvägsstationen, där största delen av bebyggelsen består av hus från efterkrigstiden. Några få äldre byggnader från tidigt sekelskifte finns kvar men mycket har rivits. Inne i centrum finns allt man behöver inom service, butiker, kaféer och restauranger. Kulturhuset är en populär, social mötesplats mitt i centrum med bibliotek, utställningshall, konsertsalar och biograf. För barn och unga arrangeras det löpande konserter, teater, workshops och pyssel.
Sport- och föreningslivet är rikt i Hässleholm. Q-poolen är en idrottsanläggning med både idrottshall, träningscenter och simhall med rekreationsavdelning. På Österås finns padel, tennis – och ishall samt fotbollsplaner. Alldeles i utkanten av centrum ligger Hässlegårdens golfklubb. Det rika aktivitetsutbudet uppskattas inte minst av barnfamiljerna som också har bekvämt nära till flera förskolor och skolor både inne i centrum och utanför.
Hembygdsparken ligger nära Hässleholms kyrka och bildades på 1930-talet. Här, mitt i centrum, erbjuds en vacker och nostalgisk miljö med gröningar, dammar, äldre röda trähus och en Ölandskvarn. Hela området är en perfekt utgångspunkt för att samlas för picknick och utomhuslek. Utöver detta finns ett flertal lekplatser, museum och en utomhusscen. Varje år anordnas det midsommarfirande i parken.
För större naturupplevelser behöver man inte åka långt. Ett flertal vandringsleder, promenadslingor och strövområden i varierande landskap finns nära tillhands. Hovdala, Lursjöleden, Möllerödssjö, Vedema och Vieåleden är några av dessa. Finjasjön med fiske och badplats ligger endast 5 km bort. Inte långt från FInjasjön ligger ett av Hässleholms mest besökta utflyktsmål, inte minst av turister; Hovdala slott.
Slottet har anor från 1600-talet och omges av en vacker park och trädgård samt ett orangeri från 1700-talet, som är en populär vigselplats. Här kan man också ta del av projektet Boketorp som är en samling hus som varsamt restaurerats. Runt slottet finns ett fint naturområde med möjlighet för att vandra, fiska, rida på islandshästar och fördjupa sig i den historiska miljön med minnesmärken.
Vill du köpa, sälja eller värdera bostad i Hässleholm? Välkommen att kontakta Bjurfors mäklare i Hässleholm. Passa också på att anmäla dig till vår kostnadsfria söktjänst Boagenten som hjälper dig att hitta ditt drömboende.
Kontakta mäklaren om du behöver hjälp att ta fram en boendekalkyl.
När du köper din bostad genom Bjurfors kan du ansöka om bolån till en förmånlig ränta hos våra banksamarbetspartners Söderberg & Partners och SEB.
Bokad visning.
Ansvarig mäklare