-
Köpa
Köpa -
Sälja
Sälja - Hitta bostad
- Skapa bevakning
- Hitta mäklare
Hästveda, Hässleholm
*Areamätning 2025, se bilaga
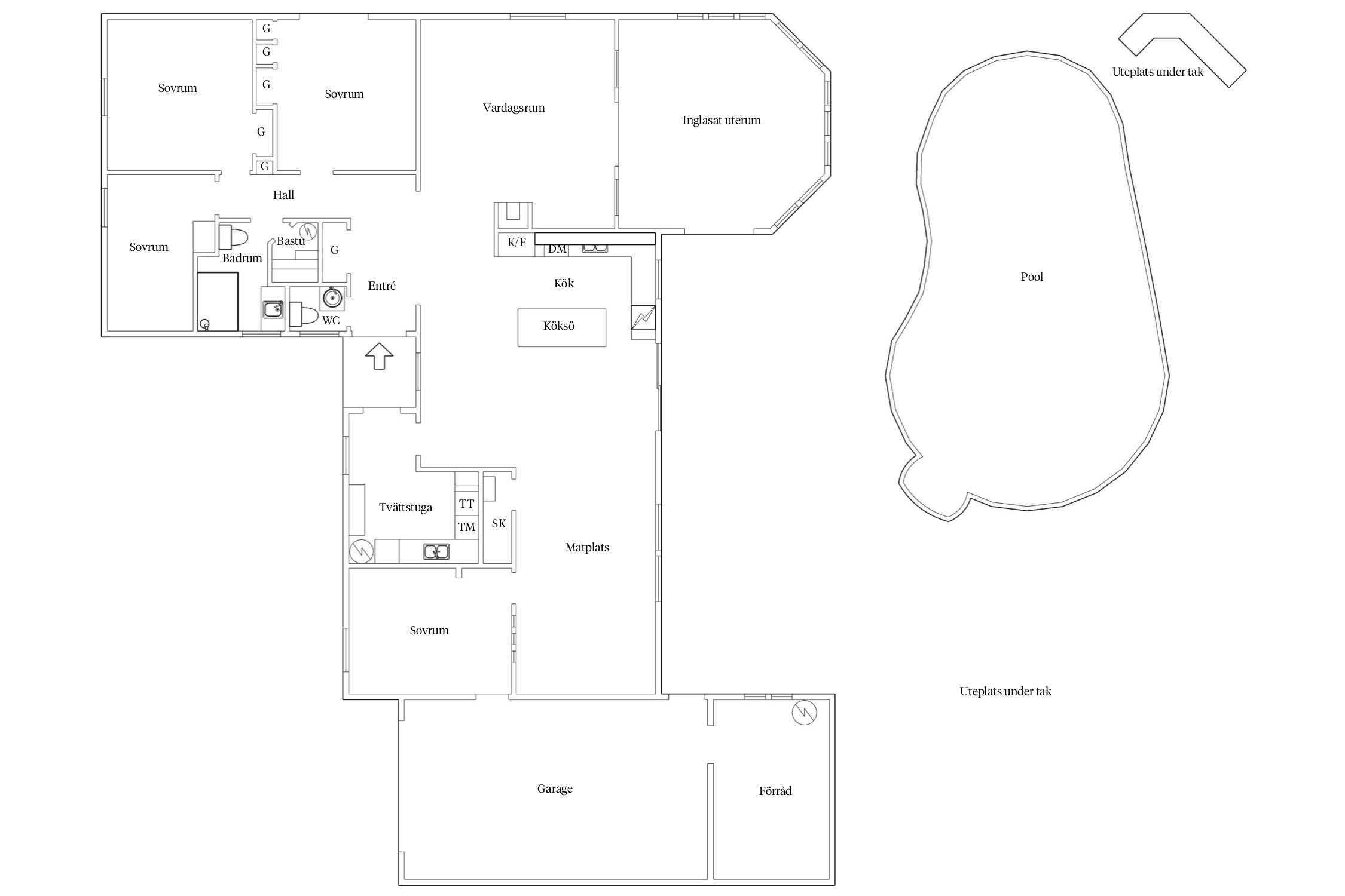
Ljuvlig enplansvilla med härligt poolområde
Välkommen till Ardennervägen 5 – en plats där vardagen känns som semester. Här möts du av ett välskött hem i ett plan med hela 160 kvm smart disponerade ytor, omsorgsfulla materialval och ett fantastiskt poolområde som för tankarna till Medelhavet. Ett hem för dig som älskar harmoni, ljus och sociala ytor – men också för dig som söker en bekväm livsstil med allt på ett och samma plan.
Den vita träfasaden med ockraröda spröjsade fönster och svart tak ger huset sin charmiga karaktär redan vid första anblick. En låg vit mur ramar vackert in den stenlagda uppfarten, och den generösa tomten på drygt 1 000 kvm bjuder både lättskötta ytor. Här finns dessutom garage, förråd och plats för flera bilar.
Invändigt är huset genomgående fräscht och välhållet, med nymålade väggar och tak (2025) och ett elegant helhetsintryck. Planlösningen är öppen och social – perfekt för såväl vardag som fest. Här får du en rymlig känsla, samtidigt som varje rum har sin egen atmosfär.
Köket från Ballingslöv är ett riktigt hjärta i hemmet – stilrent och smakfullt med vita släta luckor, svart bänkskiva och rostfria vitvaror. Den stora köksön inbjuder till samtal under matlagningen och fungerar lika bra som frukostplats. Härifrån når du via stora Hajom-skjutdörrar poolområdet – en sömlös övergång mellan ute och inne under sommarhalvåret. Matplatsen intill har fint ljus från fönstren mot poolen och rymmer hela familjen.
I vardagsrummet flödar ljuset in från flera håll. Här finns både ett runt fönster, altandörr till uterummet och inbyggda spotlights som förstärker den ljusa och moderna känslan. Det angränsande uterummet är något alldeles extra – med rutigt golv, spröjsade fönster och tak klätt i tyg som ger rummet en varm och ombonad atmosfär. En perfekt plats för middagar, läsning eller sena kvällar med utsikt över det glittrande vattnet i poolen.
Fyra sovrum ger gott om plats för både familj och gäster. Master bedroom har altandörrar mot trädgården, tre garderober och väggar i varm nougatton – ett rum att riktigt koppla av i. De övriga rummen går i mjuka grå och rosa toner, med vit bröstpanel och stora fönster. Här kan du enkelt skapa barnrum, kontor eller hobbyrum beroende på behov.
Det större badrummet har en exklusiv känsla med grått klinkergolv, vitt kakel, stor dusch med glasvägg och rund spegel ovanför kommoden. Från badrummet når du den härliga bastun – ett självklart ställe att varva ner efter en simtur. Gästtoaletten renoverades 2023 och går i ljusa toner med klinker, spotlights och frostat fönster. Tvättstugan är både praktisk och snygg, med klinkergolv, förvaringsskåp i ljus ek och groventré.
Den ljuvliga trädgården är uppdelad i två delar – en plan gräsyta för lek och aktivitet, och ett fulländat poolområde med sydvästläge. Här finns en ny pool (2025) med blått terassokakel, vit mur runtom och gott om plats för både solstolar och matgrupp. Den sandfärgade stenläggningen, pergolan med tak och de harmoniska färgerna skapar en känsla av lugn och lyx – året om.
Här har inget lämnats åt slumpen. Under de senaste åren har både pool, pergola, innerväggar, ventilation, värmesystem och tak fått ny omsorg. De tidigare ägarna genomförde dessutom en större renovering 2016–2018 med nytt kök, nya badrum, nytt tak och anlagt poolområde. Resultatet är ett bekvämt, välskött och energisnålt boende där du kan flytta in direkt och börja njuta.
Ardennervägen 5 ligger i ett lugnt villaområde i Hästveda – ett samhälle med stark gemenskap, god service, förskolor, skola, affär och station med tågförbindelser mot både Hässleholm och Kristianstad. Naturen finns alltid nära till hands, med sjöar, skog och vandringsleder runt hörnet.
Ett stilrent och välplanerat hem med allt på ett plan – och ett poolområde som gör vardagen till ett nöje. Här bor du bekvämt, modernt och med semesterkänsla året om.



Hästveda 14:112
*Areamätning 2025, se bilaga
2025 Ny pool
2025 målat innerväggar och innertak
2024 gjordes pergolan på uteplatsen
2024 ny luft/luft, ny diskmaskin
2023 renoverade lilla toaletten
2023 ny varmvattenberedare
2021 nytt ventilationssystem
2020 ny kassett till kaminen
2020 nytt tak på uterummet och skorstenen plåtades om.
Tidigare ägare byggde om mycket mellan 2016-2018: nytt kök ifrån Ballingslöv, nytt tak 2015, nytt badrum, lyfte baksidan av trädgården och anlade poolen.
Garage för en bil, manuell port
Förråd
Kommunalt vatten, Kommunalt avlopp.
Stadsplan (1973-08-29)
Fiber indraget
Driftskostnaderna är individuella och kan komma att ändras med användning/avtal. Kostnaden för hushållsel ingår i kostnaden för uppvärmning.
Det finns 8 st pantbrev uttagna om sammanlagt 1 922 000 kr
Redan i slutet på 1800-talet blev Hässleholm en viktig järnvägsknutpunkt i Skåne. Idag tar man sig lätt och smidigt mellan storstäder som Stockholm och Köpenhamn. Inne i centrum finns ett stort av kultur, restauranger och butiker. Utanför stadskärnan finns det gott om natursköna platser att upptäcka.
Tack vare expanderingen av järnvägen under 1860–1870-talen på Hässleholmsgårdens mark, fick Hässleholm en viktig roll i Skåne. På den tiden färdades man främst mellan Helsingborg och Kristianstad. Idag tar man sig smidigt till Köpenhamn på cirka 1 timme och Stockholm på 3–4 timmar.
Hässleholms centrum har byggts upp intill järnvägsstationen, där största delen av bebyggelsen består av hus från efterkrigstiden. Några få äldre byggnader från tidigt sekelskifte finns kvar men mycket har rivits. Inne i centrum finns allt man behöver inom service, butiker, kaféer och restauranger. Kulturhuset är en populär, social mötesplats mitt i centrum med bibliotek, utställningshall, konsertsalar och biograf. För barn och unga arrangeras det löpande konserter, teater, workshops och pyssel.
Sport- och föreningslivet är rikt i Hässleholm. Q-poolen är en idrottsanläggning med både idrottshall, träningscenter och simhall med rekreationsavdelning. På Österås finns padel, tennis – och ishall samt fotbollsplaner. Alldeles i utkanten av centrum ligger Hässlegårdens golfklubb. Det rika aktivitetsutbudet uppskattas inte minst av barnfamiljerna som också har bekvämt nära till flera förskolor och skolor både inne i centrum och utanför.
Hembygdsparken ligger nära Hässleholms kyrka och bildades på 1930-talet. Här, mitt i centrum, erbjuds en vacker och nostalgisk miljö med gröningar, dammar, äldre röda trähus och en Ölandskvarn. Hela området är en perfekt utgångspunkt för att samlas för picknick och utomhuslek. Utöver detta finns ett flertal lekplatser, museum och en utomhusscen. Varje år anordnas det midsommarfirande i parken.
För större naturupplevelser behöver man inte åka långt. Ett flertal vandringsleder, promenadslingor och strövområden i varierande landskap finns nära tillhands. Hovdala, Lursjöleden, Möllerödssjö, Vedema och Vieåleden är några av dessa. Finjasjön med fiske och badplats ligger endast 5 km bort. Inte långt från FInjasjön ligger ett av Hässleholms mest besökta utflyktsmål, inte minst av turister; Hovdala slott.
Slottet har anor från 1600-talet och omges av en vacker park och trädgård samt ett orangeri från 1700-talet, som är en populär vigselplats. Här kan man också ta del av projektet Boketorp som är en samling hus som varsamt restaurerats. Runt slottet finns ett fint naturområde med möjlighet för att vandra, fiska, rida på islandshästar och fördjupa sig i den historiska miljön med minnesmärken.
Vill du köpa, sälja eller värdera bostad i Hässleholm? Välkommen att kontakta Bjurfors mäklare i Hässleholm. Passa också på att anmäla dig till vår kostnadsfria söktjänst Boagenten som hjälper dig att hitta ditt drömboende.
Kontakta mäklaren om du behöver hjälp att ta fram en boendekalkyl.
När du köper din bostad genom Bjurfors kan du ansöka om bolån till en förmånlig ränta hos vår samarbetspartner SEB.