-
Köpa
Köpa -
Sälja
Sälja - Hitta bostad
- Skapa bevakning
- Hitta mäklare
Rejält suterränghus i ett lugt område
Ljungdala, Hässleholm
*Areauppgifter enligt taxeringsinformationen
Bokad visning.
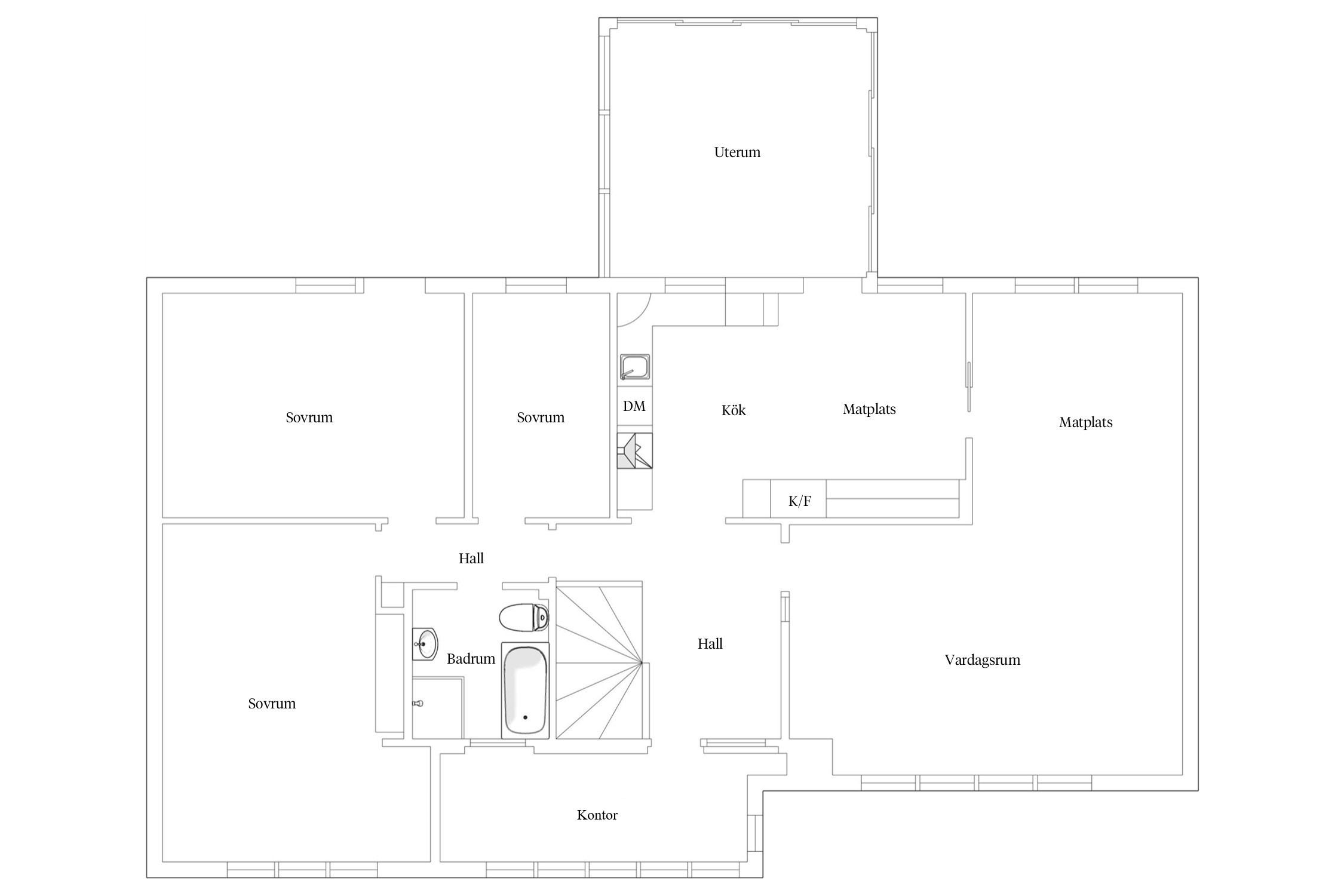
I ett lugnt och attraktivt villakvarter på Novavägen i Hässleholm ligger detta påkostade sutteränghus med ett diskret men självsäkert uttryck. Redan vid ankomsten förmedlar bostaden en känsla av kvalitet och genomtänkt design, där arkitektur, materialval och funktion samspelar på ett naturligt sätt. Det upphöjda läget ger både avskildhet och en behaglig överblick över omgivningen.
Invändigt öppnar sig generösa och ljusfyllda ytor där varje rum är utformat med omsorg. De sociala delarna bjuder in till både representativa middagar och avslappnade kvällar, med stora fönsterpartier som ramar in utsikten och låter dagsljuset flöda genom huset. Planlösningen är elegant och flexibel, skapad för ett modernt liv med plats för familj, gäster och arbete i hemmiljö.
Det stilrena köket från Ballingslöv kök är en självklar mittpunkt i bostaden, med exklusiva materialval och gott om utrymme för både matlagning och umgänge.
Vardagsrummet präglas av ett vackert ljusinsläpp, där det upphöjda läget ger en känsla av frihet och lugn. Här skapas en självklar inramning för både vardag och avslappning, med plats för större sällskap utan att tumma på hemmets intima känsla.
Sutterängplanet erbjuder en mer privat och avkopplande del av huset. Här finns rogivande sovrum, stilfulla badrum samt en exklusiv relaxavdelning med bastu och gym som förhöjer vardagen och skapar en känsla av hotellkomfort i det egna hemmet. Praktiska utrymmen och direkt access till garage bidrar till en smidig och bekväm livsstil.
Tomten är insynsskyddad och inramad av grönska, med närhet till skog och natur samtidigt som stadens utbud finns inom bekvämt räckhåll. Läreda handelsplats nås på några minuter och erbjuder ett brett serviceutbud, medan Hässleholms centrum och tågstation snabbt nås med bil eller cykel.
Detta är ett hem för den som söker något utöver det vanliga – ett exklusivt och representativt boende där komfort, läge och kvalitet samverkar i perfekt balans.



Galaxen 2
*Areauppgifter enligt taxeringsinformationen
Tillbyggnad 2024 med två nya bostadsytor om ca 20kvm (ett sovrum) inklusive nya fönster, golv, el- och värmeinstallationer. rivit balkongen och byggt kontor.
2023 anlades en ny tappa utomhus
Nytt tak, ny plåt och nya hängrännor (2022)
Ny el central 2022
Ny fjärrvärmecentral med APP styrning
Nytt trädäck
Nytt takfönster i köket
Uppfräschning av kök
Nya golv i vissa sovrum
Nya utskick
Nya innerdörrar
Ny diskmaskin
Installerat dieseldriven reservkraft om 2200 watt med elstart och möjlighet till inkoppling mot husets elsystem vid strömavbrott
Två garage
Uterum
Kommunalt vatten, Kommunalt avlopp.
Två garage, varav ett uppvärmt med appstyrd port
Stadsplan (1977-05-13)
Internet: Fiber
*Preliminärt
Driftkostnader och elförbrukning är inhämtade från säljaren och bör endast ses som en uppskattning. Kostnaden kan variera och baseras på förbrukning och avtal.
Det finns 8 st pantbrev uttagna om sammanlagt 1 915 000 kr
Redan i slutet på 1800-talet blev Hässleholm en viktig järnvägsknutpunkt i Skåne. Idag tar man sig lätt och smidigt mellan storstäder som Stockholm och Köpenhamn. Inne i centrum finns ett stort av kultur, restauranger och butiker. Utanför stadskärnan finns det gott om natursköna platser att upptäcka.
Tack vare expanderingen av järnvägen under 1860–1870-talen på Hässleholmsgårdens mark, fick Hässleholm en viktig roll i Skåne. På den tiden färdades man främst mellan Helsingborg och Kristianstad. Idag tar man sig smidigt till Köpenhamn på cirka 1 timme och Stockholm på 3–4 timmar.
Hässleholms centrum har byggts upp intill järnvägsstationen, där största delen av bebyggelsen består av hus från efterkrigstiden. Några få äldre byggnader från tidigt sekelskifte finns kvar men mycket har rivits. Inne i centrum finns allt man behöver inom service, butiker, kaféer och restauranger. Kulturhuset är en populär, social mötesplats mitt i centrum med bibliotek, utställningshall, konsertsalar och biograf. För barn och unga arrangeras det löpande konserter, teater, workshops och pyssel.
Sport- och föreningslivet är rikt i Hässleholm. Q-poolen är en idrottsanläggning med både idrottshall, träningscenter och simhall med rekreationsavdelning. På Österås finns padel, tennis – och ishall samt fotbollsplaner. Alldeles i utkanten av centrum ligger Hässlegårdens golfklubb. Det rika aktivitetsutbudet uppskattas inte minst av barnfamiljerna som också har bekvämt nära till flera förskolor och skolor både inne i centrum och utanför.
Hembygdsparken ligger nära Hässleholms kyrka och bildades på 1930-talet. Här, mitt i centrum, erbjuds en vacker och nostalgisk miljö med gröningar, dammar, äldre röda trähus och en Ölandskvarn. Hela området är en perfekt utgångspunkt för att samlas för picknick och utomhuslek. Utöver detta finns ett flertal lekplatser, museum och en utomhusscen. Varje år anordnas det midsommarfirande i parken.
För större naturupplevelser behöver man inte åka långt. Ett flertal vandringsleder, promenadslingor och strövområden i varierande landskap finns nära tillhands. Hovdala, Lursjöleden, Möllerödssjö, Vedema och Vieåleden är några av dessa. Finjasjön med fiske och badplats ligger endast 5 km bort. Inte långt från FInjasjön ligger ett av Hässleholms mest besökta utflyktsmål, inte minst av turister; Hovdala slott.
Slottet har anor från 1600-talet och omges av en vacker park och trädgård samt ett orangeri från 1700-talet, som är en populär vigselplats. Här kan man också ta del av projektet Boketorp som är en samling hus som varsamt restaurerats. Runt slottet finns ett fint naturområde med möjlighet för att vandra, fiska, rida på islandshästar och fördjupa sig i den historiska miljön med minnesmärken.
Vill du köpa, sälja eller värdera bostad i Hässleholm? Välkommen att kontakta Bjurfors mäklare i Hässleholm. Passa också på att anmäla dig till vår kostnadsfria söktjänst Boagenten som hjälper dig att hitta ditt drömboende.
Kontakta mäklaren om du behöver hjälp att ta fram en boendekalkyl.
När du köper din bostad genom Bjurfors kan du ansöka om bolån till en förmånlig ränta hos våra banksamarbetspartners Söderberg & Partners och SEB.
Bokad visning.