-
Köpa
Köpa -
Sälja
Sälja - Hitta bostad
- Skapa bevakning
- Hitta mäklare
Modern villa med närhet till sjö, skolor och natur. Villan ligger precis utanför centrum.
Sjörröd, Hässleholm
*Areauppgifter enligt taxeringsinformationen
Stilfull villa med modern planlösning, generösa ytor och vacker utemiljö med attefallshus!
Välkommen till Knogvägen 2 – en rymlig och välskött villa i hjärtat av Sjörröd.
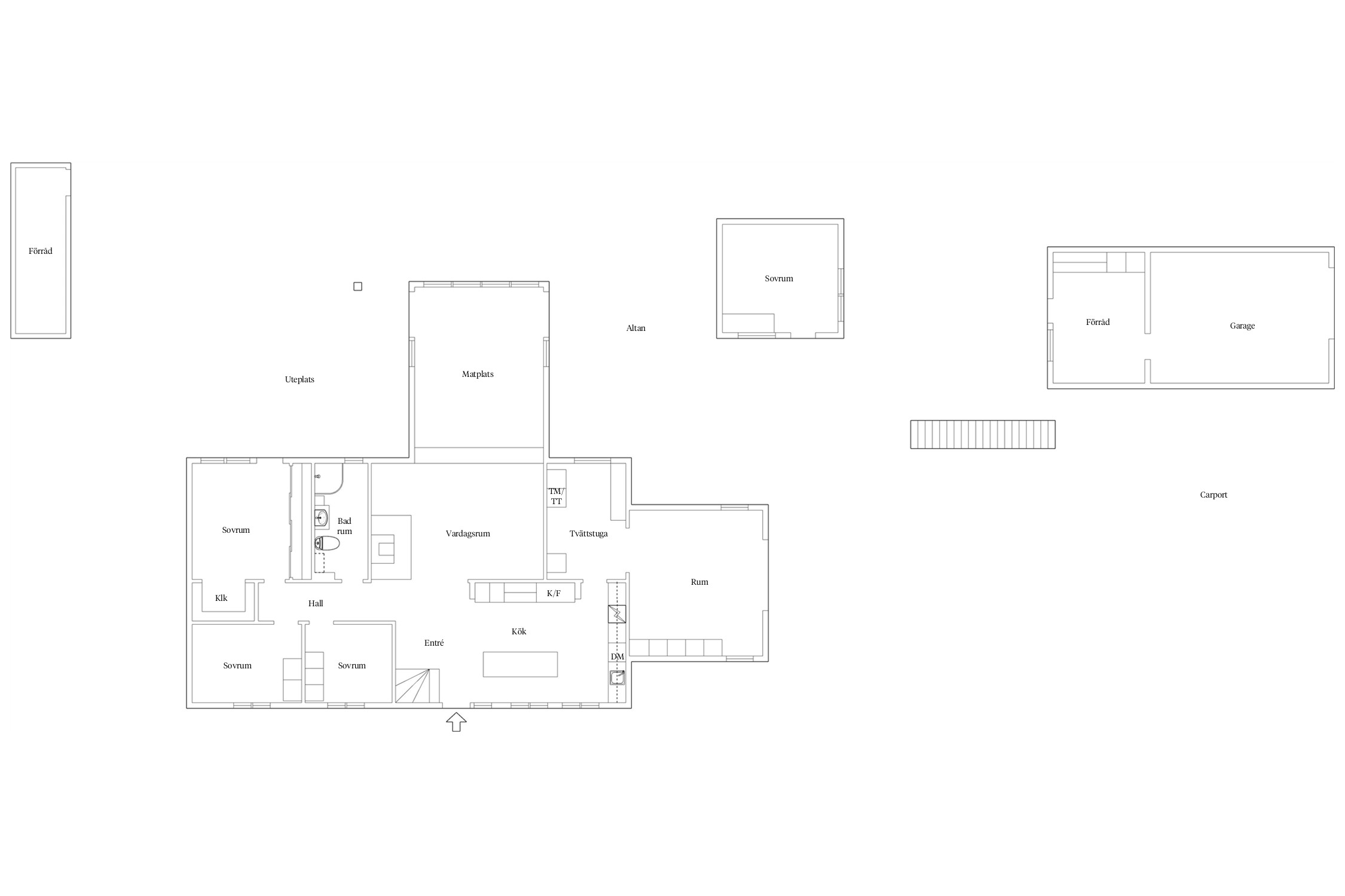
Här bor du i ett modernt hem som löpande renoverats och byggts ut för att möta familjens behov. Med sina 183 kvm boarea (ej inräknat tillbyggnaderna) och 6 rum, varav 4–5 möjliga sovrum, erbjuder huset generösa ytor där både vardag och umgänge får gott om plats.
Planlösningen är ljus och väl genomtänkt, med öppna ytor för samvaro och flera rum som kan anpassas efter livets olika skeden. Den stora utbyggnaden av vardagsrummet 2014 skapar en härlig social yta. Båda badrummen är fräscha, köket renoverades 2015 och huset värms effektivt upp med vattenburen golvvärme via frånluftsvärmepump – allt för att ge ett bekvämt och funktionellt boende.
Löpande underhåll har prioriterats: taket tvättades och målades 2019, nya entrédörrar sattes in 2025 och fönstren på övre plan byttes ut till moderna 3-glasfönster 2024. Här finns även en kamin för extra trivsel under årets kallare dagar.
Utomhus väntar en härlig tomt om 939 kvm med gott om plats för både lek och avkoppling. Här finns garage, carport och dessutom ett nybyggt attefallshus som öppnar upp för gästrum eller hemmakontor.
Läget är lika praktiskt som naturnära – med sjöar, grönområden och skolor inom räckhåll, samtidigt som Hässleholms centrum finns bara några minuter bort.
Huset är besiktigat och dolda fel försäkran tecknad.
Ett hem för dig som söker utrymme, modern komfort och ett boende som är redo för framtiden – varmt välkommen till Knogvägen 2!



Tofflan 14
*Areauppgifter enligt taxeringsinformationen
*Utbyggt 2001 samt 2014
2025 - Nya Entrédörrar, Målat om delar av huset , attefallshuset
2024 - Nya 3-glas fönster ovan plan.
2023 - Diskmaskin
2022 - Attefallshus, Kyl, frys samt tvätt- och torktumlare
2019 - Taket tvättades och målades
2015 - Nytt kök,
2014 - Utbyggnad av vardagsrum om ca 30kvm.
2003 - Kamin
2001 - Utbyggnad av hall om ca 20kvm samt badrum nedan plan
1999 - Badrum ovanplan
Attefallshus
Garage
Carport
Kommunalt vatten, Kommunalt avlopp.
Stadsplan (1983-09-19)
Samfällighet: Hässleholm hässleholm s:22
Samfällighet: Hässleholm hässleholm s:24
Skattetal: mantal 1/4000
Fiber
*Preliminärt
Driftskostnaderna är individuella och varierar
Det finns 21 st pantbrev uttagna om sammanlagt 2 222 000 kr
Alldeles intill Finjasjön, 3 km söder om Hässleholm, ligger Sjörröd. Ett äldre sommarstugeområde med frodig lövskog, strövområden och badplatser som har vuxit till en tätort. Den natursköna miljön och närheten till centrum gör det till ett attraktivt ställe att bosätta sig på.
Sjörröd är en lugn tätort vackert beläget vid Finjasjöns östra strand och består främst av villabebyggelse och naturmark. Området bestod till en början endast av fritidshus, men har under åren utvecklats till ett område med permanenta bostäder. De flesta husen byggdes under 1970-talet och framåt, men det finns även inslag av äldre hus och moderna. Arkitekturen är kraftigt varierad. Villagatorna ringlar sig ner mot sjön där det finns fina vandringsleder, strövområden och cykelstigar. Sjön är ett bra utgångsläge för fiske, kanotpaddling och bad.
Finjasjön och Sjörröd tillhör ett av länsstyrelsens områden som benämns som ”riksintresse för frilufsliv”. Stranden är ett av de värdefulla områdena, liksom de två naturområdena Mölleröd och Hovdala. I dessa områden har det visat sig finnas ett spännande djurliv på både land och vatten såsom fladdermöss, fåglar, insekter, fiskar och vattensalamander. Av dessa hittades runt 80 st rödlistade arter. Genom Hovdala och Mölleröd går de två vandringslederna Finjasjöleden och I Posta-Nillas spår som tillhör Skåneleden.
Hässleholm är känt för sina många dansbanor, där även Sjörröd har varit starkt representerad. Från 1914 fram till 1950-talet fanns det en sommardansbana som kallades Bellevue nere vid Finjasjön. Ytterligare tre banor fanns också vid Hovdala slott, Mölleröd och Björkviken. Under 1940-talet öppnades den mest kända dansbanan som kallades Sjöstugan som var igång i drygt fyrtio år innan det blev bingolokal. Sjöstugan låg i en av de nuvarande villagatorna i Sjörröd.
I Sjörröd bor man i vacker natur samtidigt som det tar få minuter att ta sig in till centrala Hässleholm som endast ligger 3 kilometer norrut. Det är lätt att ta cykeln in eller lokalbussen som har hållplatser längs Sjövägen. Strax norrut finns Hässlegårdens golfklubb med restaurang som bland annat erbjuder lunch och take away. Barnfamiljerna har nära till förskolor och skola i närliggande Garnisonen.
Vill du köpa, sälja eller värdera bostad i Sjörröd? Välkommen att kontakta Bjurfors mäklare i Hässleholm. Passa också på att anmäla dig till vår kostnadsfria söktjänst Boagenten som hjälper dig att hitta ditt drömboende.
Kontakta mäklaren om du behöver hjälp att ta fram en boendekalkyl.
När du köper din bostad genom Bjurfors kan du ansöka om bolån till en förmånlig ränta hos vår samarbetspartner SEB.