-
Köpa
Köpa -
Sälja
Sälja - Hitta bostad
- Skapa bevakning
- Hitta mäklare
Stort hus som är väl omhändertaget!
Stattena, Hässleholm
*Areauppgifter enligt taxeringsinformationen
Här har man ett hus att bara flytta rakt in i. Huset har stora sociala ytor såväl invändigt som utvändigt och huset har även härligt pool område!
Här behöver inga pengar på renovering läggas ut på många år! Här är huset för dig som bara vill flytta in och lägga din dyrbara tid på annat!
Välkommen till ett fint renoverat och modernt hem som andas lugn och avkoppling.
Från huset har man bara en kort promenad till stadskärnan men även till skog och natur.
Huset ligger även nära till skolor och förskolor för familjen med barn.
Njut av en morgonkaffe på verandan medan du på eftermiddagen sätter dig ner vid poolkanten för att svalka dig. Till huset finns även ett garage för att ställ in bilen eller bara förvara möbler mm.
Huset är besiktigat genom Anticimex.
Kontakta mäklaren för mer info.
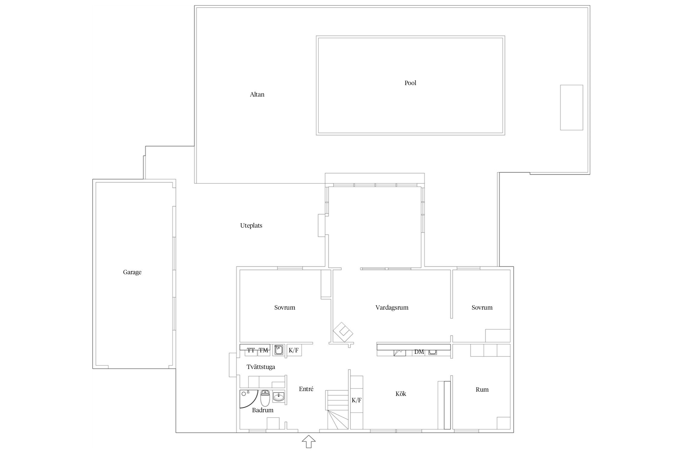
Hall
Välkomnande hall med möjlighet att ställa skorna till vänster och hänga av sig kläderna. Innanför dörren är golvet belagt med gråa klinkerplattor och väggarna målade i en ljus kulör.
Badrum
Till vänster om hallen finner vi entréplans badrum som är beklätt med ljust kakel och grå klinker. Inredning finns i form av kommod, spegelskåp, duschdörrar, wc och elektrisk golvvärme.
Groventré/tvättstuga
Vägg i vägg med badrummet finns huset groventré som har ingång från parkeringen. Här är golvet belagt med plastmatta och väggarna har våtrumstapet. Här finns förvaring i form av garderob. Tvättmaskin, torktumlare och rostfri vask.
Sovrum 1
När vi tar ett steg ut från tvättstugan ligger husets största sovrum på vänster hand. Här finns plats för stor säng och förvaring finns i forma av platsbyggd garderob. Golvet är belagt med träliknande golv och väggarna är målade i en ljus kulör.
Vardagsrummet
Tillbaka ut i hallen och till vänster kommer vi till huset vardagsrum som har plats för stor soffa om så önskas. Här finns även en kamin som värmer de kalla dagarna på året. Golvet är belagt med ett träliknande golv och väggarna är målade i en ljus kulör. Från vardagsrummet når man även uterummet som är väl tilltaget och har direkt anslutning till husets stora altan. Här finns även den stora poolen som förgyller de varma sommardagarna.
Sovrum 2
Innanför vardagsrummet finns även entréplans andra sovrum som har plats för säng och här finns även en platsbyggd garderob. Golvet är belagt med träliknande golv och väggarna är målade i en ljus kulör.
Kök
Tillbaka genom vardagsrummet och till vänster har vi huset kök som är väl tilltaget med gott om förvaring och plats för ett stort matbord i mitten av rummet. Köket går i grå-ljus ton och har följande utrustning ugn, mikro, kyl, frys, diskmaskin, fläkt, vask och kran med exklusiv vattenautomat som via egen elektronisk kran ger förädlat kranvatten i form av renat , kylt kolsyrat vatten och renat naturellt kylt vatten. Ett kök med mycket förvaring. Golvet är belagt med ett mörk golv och väggarna är målade i en ljus kulör.
Sovrum 3
Innanför köket finner vi entréplans tredje sovrum som har plats för säng och förvaring finns i forma av platsbyggd garderob. Golvet är belagt med ett träliknande golv och väggarna är målade i en grå kulör.
Sovrum 4
En trappa upp och till vänster om trappan finner vi övre plans första sovrum som har plats för stor säng om så önskas. Här finns gott om plats för förvaring. Golvet är belagt med ett grått träliknande golv och väggarna är målade i en ljus kulör.
Badrum 2
Precis utanför sovrummet finns övre plans badrum som även det är beklätt med kakel och klinker. Här finns badkar, wc och vask.
Allrum/passage
Efter badrummet finns det plats för en mindre soffa och ett bord om så önskas. Golvet är belagt med ett träliknande golv och väggarna är målade i en ljus kulör.
Sovrum 5
Vidare ner finner vi huset sista sovrum som har plats för en stor säng om så önskas och här finns även en stor walk in closet. Golvet är belagt med ett mörk träliknande golv och väggarna är tapetserade.



Maglegården 11
*Areauppgifter enligt taxeringsinformationen
Invändiga renoveringar:
Köket, totalrenoverat och ombyggt inkl. alla vitvaror och exklusiv vattenautomat kopplad på kranledningen 2018
Sovrummet innanför Köket, totalrenoverat 2018
Allrummet uppe, totalrenoverat 2018
Sovrummet uppe längst bort till höger från trappan, totalrenoverat + nybyggd walkincloset 2018
Värmepanna NIBE ny 2018
Torktumlare 2019
Hallen inklusive trappan upp, renoverad 2020
Nytt badrummet entréplan kakel och klinker 2020
Sovrummet innanför vardagsrummet, totalrenoverat 2020
Tvättmaskin 2022
Stora sovrummet, totalrenoverat 2023
Sovrummet uppe till vänster om badrummet, totalrenoverat 2023
Vardagsrummet, totalrenoverat 2023
Renovering av ytskikt invändigt och uterum 2024
Utvändiga renoveringar:
Helt ombyggd entré 2020
Alla ytterdörrar + automatisk garageport nytt 2020
Hela fasaden på huset och garaget grundligt och noggrant renoverat med nya vindskivor, plåtar, hängrännor, all gammal färg bortskrapad, alla spruckna klädselbrädor utbytta och ny grundfärg + målat två gånger, hela huset och garaget.
Nybyggd Pool 8x4 meter med uppvärmning och poolrobot + poolområde med 142m2 solid komposittrall Bamboodeck med belysning runt poolen, plank runt poolområdet med belysning. All el från egen elcentral i poolens teknikrum, allt 2021
Solceller 34 st. som genererar ca 12000kwh/år installerat av E-ON 2021
Gräsmatta anlagd ny på rulle ca 300m2 2022. Hustak och garagetak är behandlat mot påväxt med Grön-Fri 2024
Kommunalt vatten, Kommunalt avlopp.
Stadsplan (1981-04-10)
Gemensamhetsanläggning: Hässleholm Maglegården GA:1 ändamål: Vägar, Grönområden
Förmån: Officialservitut Väg, 1183-1248.1
Fiber
Solceller 34 st som genererar ca 12000kwh/år installerat av E-ON 2021
Det finns 5 st pantbrev uttagna om sammanlagt 3 485 000 kr
Redan i slutet på 1800-talet blev Hässleholm en viktig järnvägsknutpunkt i Skåne. Idag tar man sig lätt och smidigt mellan storstäder som Stockholm och Köpenhamn. Inne i centrum finns ett stort av kultur, restauranger och butiker. Utanför stadskärnan finns det gott om natursköna platser att upptäcka.
Tack vare expanderingen av järnvägen under 1860–1870-talen på Hässleholmsgårdens mark, fick Hässleholm en viktig roll i Skåne. På den tiden färdades man främst mellan Helsingborg och Kristianstad. Idag tar man sig smidigt till Köpenhamn på cirka 1 timme och Stockholm på 3–4 timmar.
Hässleholms centrum har byggts upp intill järnvägsstationen, där största delen av bebyggelsen består av hus från efterkrigstiden. Några få äldre byggnader från tidigt sekelskifte finns kvar men mycket har rivits. Inne i centrum finns allt man behöver inom service, butiker, kaféer och restauranger. Kulturhuset är en populär, social mötesplats mitt i centrum med bibliotek, utställningshall, konsertsalar och biograf. För barn och unga arrangeras det löpande konserter, teater, workshops och pyssel.
Sport- och föreningslivet är rikt i Hässleholm. Q-poolen är en idrottsanläggning med både idrottshall, träningscenter och simhall med rekreationsavdelning. På Österås finns padel, tennis – och ishall samt fotbollsplaner. Alldeles i utkanten av centrum ligger Hässlegårdens golfklubb. Det rika aktivitetsutbudet uppskattas inte minst av barnfamiljerna som också har bekvämt nära till flera förskolor och skolor både inne i centrum och utanför.
Hembygdsparken ligger nära Hässleholms kyrka och bildades på 1930-talet. Här, mitt i centrum, erbjuds en vacker och nostalgisk miljö med gröningar, dammar, äldre röda trähus och en Ölandskvarn. Hela området är en perfekt utgångspunkt för att samlas för picknick och utomhuslek. Utöver detta finns ett flertal lekplatser, museum och en utomhusscen. Varje år anordnas det midsommarfirande i parken.
För större naturupplevelser behöver man inte åka långt. Ett flertal vandringsleder, promenadslingor och strövområden i varierande landskap finns nära tillhands. Hovdala, Lursjöleden, Möllerödssjö, Vedema och Vieåleden är några av dessa. Finjasjön med fiske och badplats ligger endast 5 km bort. Inte långt från FInjasjön ligger ett av Hässleholms mest besökta utflyktsmål, inte minst av turister; Hovdala slott.
Slottet har anor från 1600-talet och omges av en vacker park och trädgård samt ett orangeri från 1700-talet, som är en populär vigselplats. Här kan man också ta del av projektet Boketorp som är en samling hus som varsamt restaurerats. Runt slottet finns ett fint naturområde med möjlighet för att vandra, fiska, rida på islandshästar och fördjupa sig i den historiska miljön med minnesmärken.
Vill du köpa, sälja eller värdera bostad i Hässleholm? Välkommen att kontakta Bjurfors mäklare i Hässleholm. Passa också på att anmäla dig till vår kostnadsfria söktjänst Boagenten som hjälper dig att hitta ditt drömboende.
Kontakta mäklaren om du behöver hjälp att ta fram en boendekalkyl.
När du köper din bostad genom Bjurfors kan du ansöka om bolån till en förmånlig ränta hos vår samarbetspartner SEB.