-
Köpa
Köpa -
Sälja
Sälja - Hitta bostad
- Skapa bevakning
- Hitta mäklare
Brovägen 20
Tormestorp, Hässleholm
*Areauppgifter enligt taxeringsinformationen
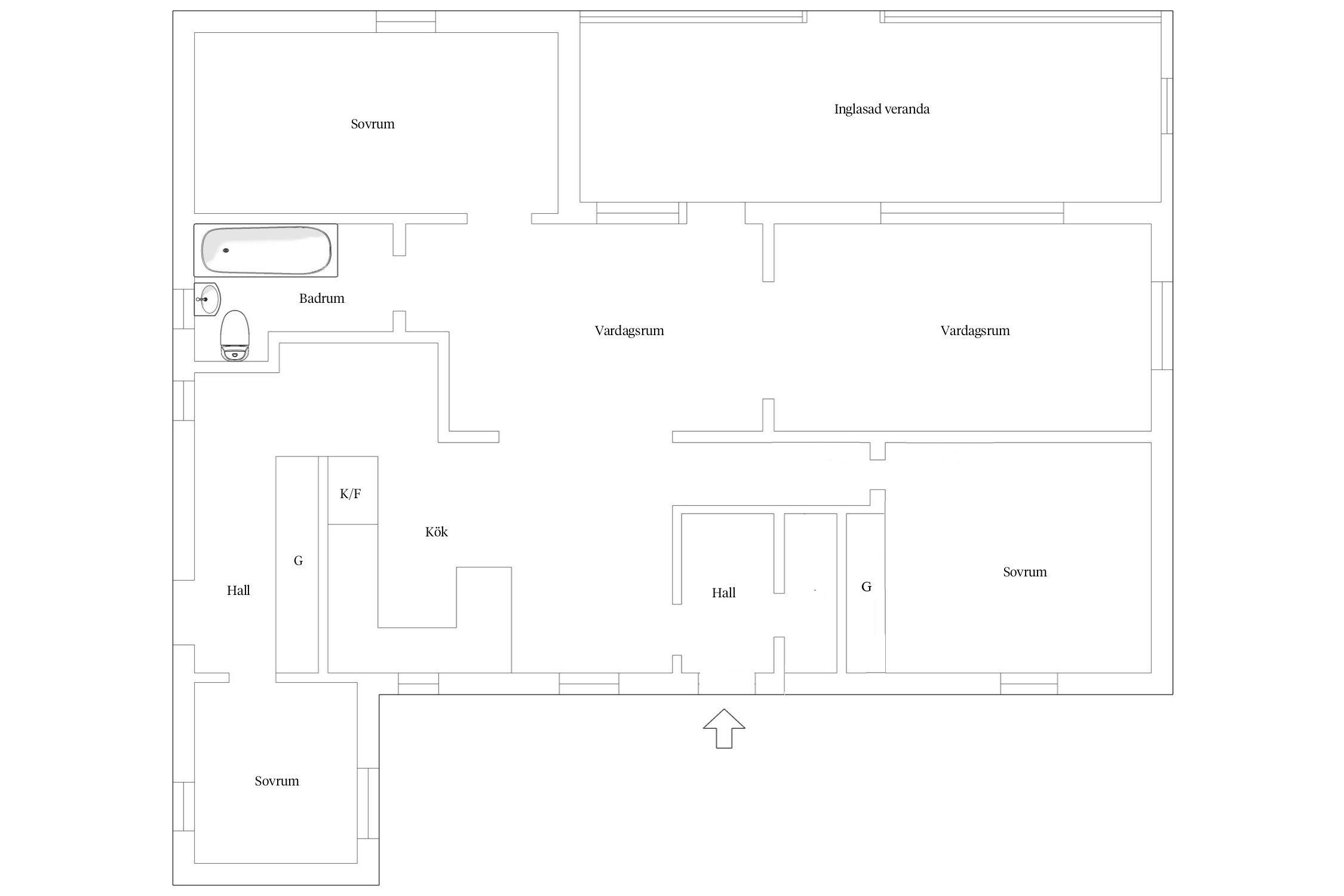
Enplansvilla med sjön och öppna fält som vy - ett läge du inte vill missa!
Välkommen till ett möjligheternas boende där livskvalitet står i centrum – ett trivsamt och lättillgängligt enplanshus med genomtänkt planlösning, stora sociala ytor och ett läge som verkligen imponerar. Här bor du med fantastisk utsikt över både vackra Finjasjön och natursköna Hovdala – en miljö som bjuder in till avkoppling, naturupplevelser och harmoni året runt. Ett hem som passar lika bra som permanentbostad som ett ombonat och trivsamt fritidshus.
Bakom entrén öppnar huset upp sig i en social och inbjudande planlösning där kök, matplats och vardagsrum knyts samman på ett naturligt sätt. Här finns plats för både vardag och fest, och med direkt anslutning till det rymliga uterummet förlängs säsongen så att du kan njuta av utsikten och omgivningarna även när vädret skiftar.
Huset erbjuder flera sovrum i bra storlek samt ett äldre badrum utrustat med plastmatta, badkar, toalett och handfat – funktionellt som det är men även med stor potential för den som vill sätta sin egen prägel och uppgradera efter smak och stil. Vidare en praktisk tvättstuga med god förvaring och arbetsytor där även pannan fått sin plats. Ett extra rum med egen ingång ger dessutom många möjligheter, exempelvis som gästrum, hemmakontor, hobbyrum eller tonårsrum.
På tomten finns carport och generösa förrådsutrymmen, perfekt för dig med intressen, utrustning och fritidsprylar. För den som drömmer större kan även själva tomten vara av stort intresse – här finns potential att utveckla vidare, skapa drömboendet eller göra en klok framtidsinvestering.
Här får du ett boende med närhet till natur, vatten, rekreation och en miljö som är lika vacker året om – ett hem att trivas i, växa med och njuta av länge.
Varmt välkommen att uppleva känslan på plats!



Tormestorp 7:95
*Areauppgifter enligt taxeringsinformationen
Fastigheten säljes med friskrivningsklausul eftersom det säljs av ett dödsbo.
Stort uterum med utsikt över sjön.
Kommunalt vatten, Kommunalt avlopp.
Carport och garage/förråd.
Ändring av detaljplan (2019-04-17) Ändring av detaljplan (2005-01-18) Stadsplan (1981-06-11) Fornlämning (1 st)
Förmån: Officialservitut Väg, 11-BRS-378.1
Driftkostnaderna är individuella och kan komma att ändras beroende på avtal/användning.
Det finns 3 st pantbrev uttagna om sammanlagt 188 600 kr
Redan i slutet på 1800-talet blev Hässleholm en viktig järnvägsknutpunkt i Skåne. Idag tar man sig lätt och smidigt mellan storstäder som Stockholm och Köpenhamn. Inne i centrum finns ett stort av kultur, restauranger och butiker. Utanför stadskärnan finns det gott om natursköna platser att upptäcka.
Tack vare expanderingen av järnvägen under 1860–1870-talen på Hässleholmsgårdens mark, fick Hässleholm en viktig roll i Skåne. På den tiden färdades man främst mellan Helsingborg och Kristianstad. Idag tar man sig smidigt till Köpenhamn på cirka 1 timme och Stockholm på 3–4 timmar.
Hässleholms centrum har byggts upp intill järnvägsstationen, där största delen av bebyggelsen består av hus från efterkrigstiden. Några få äldre byggnader från tidigt sekelskifte finns kvar men mycket har rivits. Inne i centrum finns allt man behöver inom service, butiker, kaféer och restauranger. Kulturhuset är en populär, social mötesplats mitt i centrum med bibliotek, utställningshall, konsertsalar och biograf. För barn och unga arrangeras det löpande konserter, teater, workshops och pyssel.
Sport- och föreningslivet är rikt i Hässleholm. Q-poolen är en idrottsanläggning med både idrottshall, träningscenter och simhall med rekreationsavdelning. På Österås finns padel, tennis – och ishall samt fotbollsplaner. Alldeles i utkanten av centrum ligger Hässlegårdens golfklubb. Det rika aktivitetsutbudet uppskattas inte minst av barnfamiljerna som också har bekvämt nära till flera förskolor och skolor både inne i centrum och utanför.
Hembygdsparken ligger nära Hässleholms kyrka och bildades på 1930-talet. Här, mitt i centrum, erbjuds en vacker och nostalgisk miljö med gröningar, dammar, äldre röda trähus och en Ölandskvarn. Hela området är en perfekt utgångspunkt för att samlas för picknick och utomhuslek. Utöver detta finns ett flertal lekplatser, museum och en utomhusscen. Varje år anordnas det midsommarfirande i parken.
För större naturupplevelser behöver man inte åka långt. Ett flertal vandringsleder, promenadslingor och strövområden i varierande landskap finns nära tillhands. Hovdala, Lursjöleden, Möllerödssjö, Vedema och Vieåleden är några av dessa. Finjasjön med fiske och badplats ligger endast 5 km bort. Inte långt från FInjasjön ligger ett av Hässleholms mest besökta utflyktsmål, inte minst av turister; Hovdala slott.
Slottet har anor från 1600-talet och omges av en vacker park och trädgård samt ett orangeri från 1700-talet, som är en populär vigselplats. Här kan man också ta del av projektet Boketorp som är en samling hus som varsamt restaurerats. Runt slottet finns ett fint naturområde med möjlighet för att vandra, fiska, rida på islandshästar och fördjupa sig i den historiska miljön med minnesmärken.
Vill du köpa, sälja eller värdera bostad i Hässleholm? Välkommen att kontakta Bjurfors mäklare i Hässleholm. Passa också på att anmäla dig till vår kostnadsfria söktjänst Boagenten som hjälper dig att hitta ditt drömboende.
Kontakta mäklaren om du behöver hjälp att ta fram en boendekalkyl.
När du köper din bostad genom Bjurfors kan du ansöka om bolån till en förmånlig ränta hos våra banksamarbetspartners Söderberg & Partners och SEB.
Ansvarig mäklare