-
Köpa
Köpa -
Sälja
Sälja - Hitta bostad
- Skapa bevakning
- Hitta mäklare
Hallonslingan 1
Tyringe, Hässleholm
*Areauppgifter enligt taxeringsinformationen
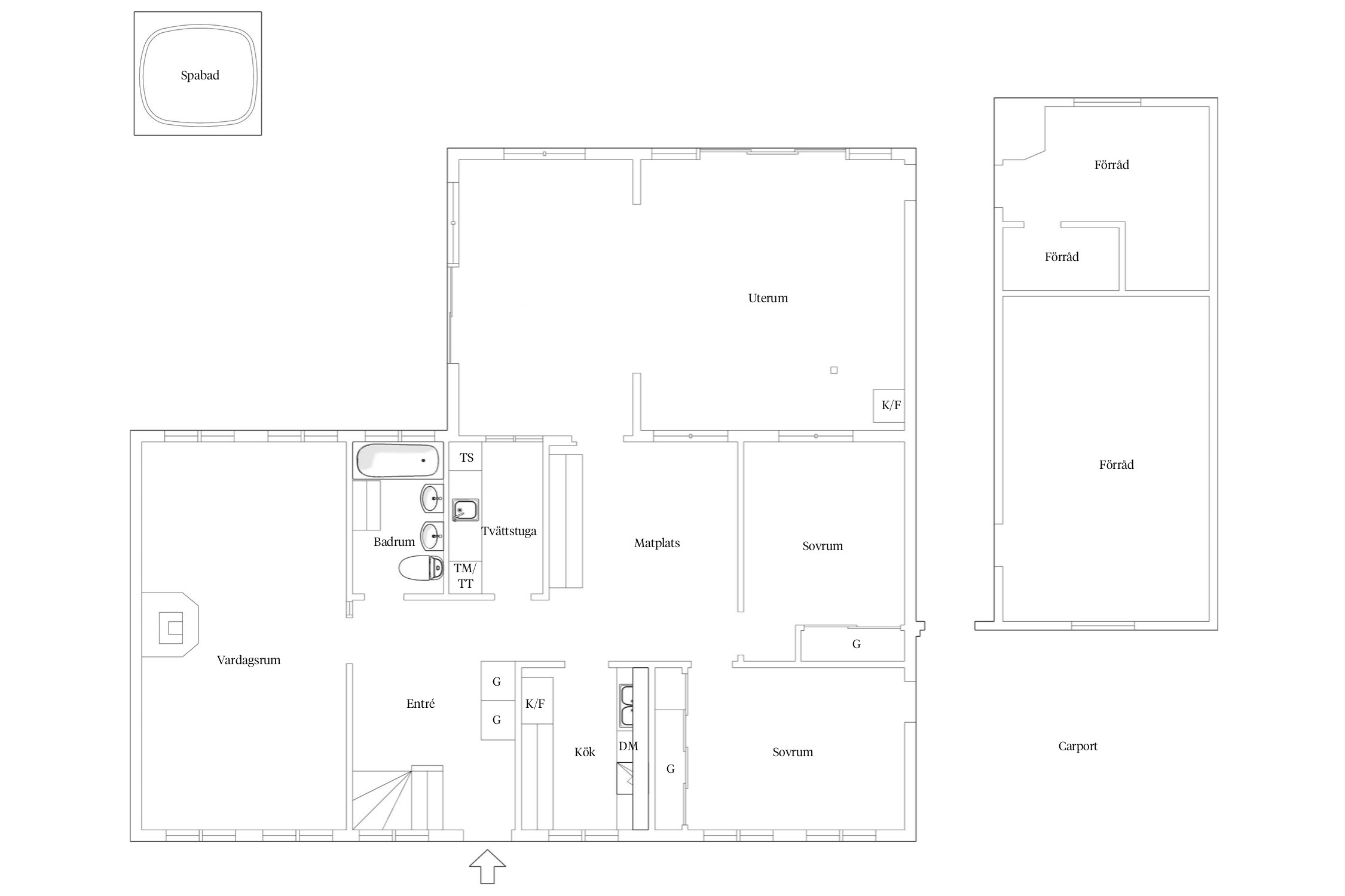
Stor familjevilla på hörntomt med god plats för den större familjen. Stor härligt uterum, carport och på ett trevligt hörnläge!
På Hallonslingan 1 finns nu detta stora härliga hus till salu med stora social ytor, fem sovrum, stort underbart uterum med tillhörande trädäck där den varma jacuzzin finns och ett badrum på var plan. Ett Trivsamt hus för dig som önskar god plats eller för den stora familjen. Carport och förrådsdel. Välkomna på visning!
Ni välkomnas in på framsidan och stiger direkt in i den möblerbara hallen med plats att hänga av er ytterkläderna in till höger. Till vänster stiger ni in i vardagsrum med charmiga bjälkar i tak och den värmande kaminen i rummets mitt. Här finns plats för både större soffa och matbord. Bredvid ligger badrummet med badkar, toalett, bidé och handfat. Kakel, plastmatta samt fint ljusinsläpp från stort fönster som vetter ut mot baksidan. Vidare tvättstugan med torktumlare, tvättmaskin och vask. Utgång till uterummet och vidare ut i trädgården där ni på somrarna hänger ut tvätten på tork.
Nu går vi vidare in till köket med ljusgröna luckor, laminatbänkskiva och kaklat stänkskydd. Utrustat med fläkt, spis, kyl/frys samt diskmaskin. Precis bredvid har vi ett trevligt matrum där middagarna avnjutes i eller varför inte gå vidare ut till det stora härliga uterummet som även det nås härifrån. Enkelt och underbart! Längst in i huset på entréplan finner vi två sovrum i bra storlek och både med praktiska skjutdörrsgarderober.
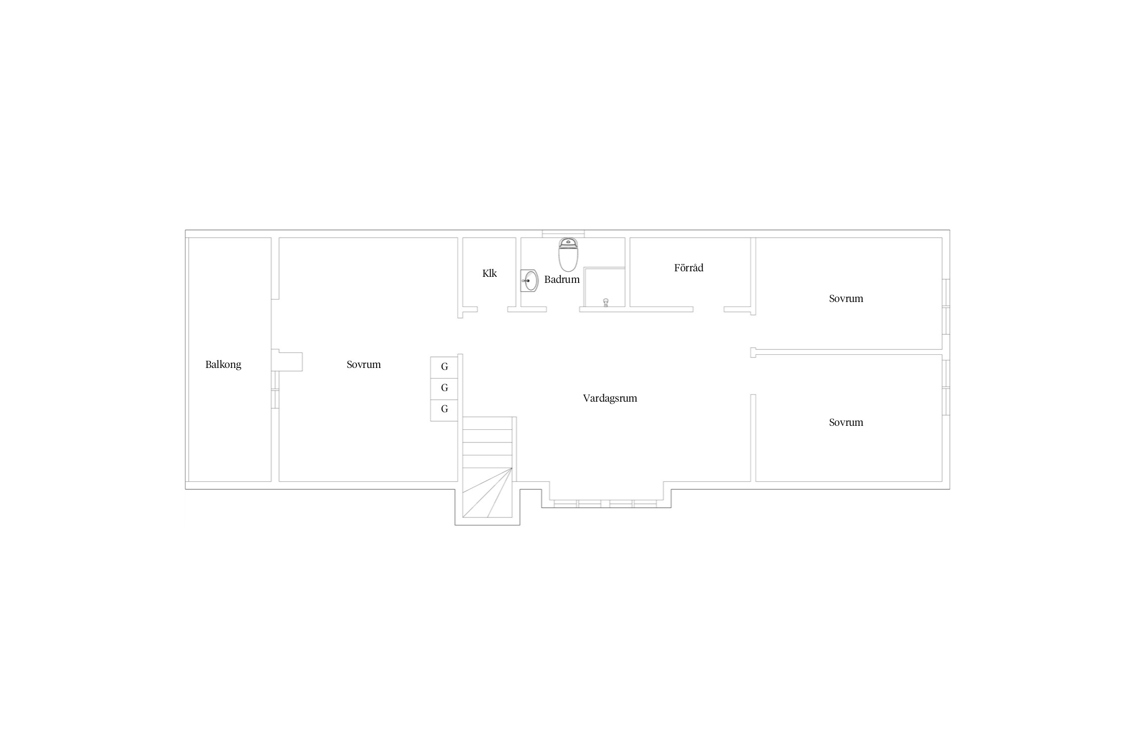
Plan två når vi via hallen där vi kommer upp i stort allrum med plast för extra vardagsrum eller varför inte spelrum till barnen? Tre bra sovrum finns även det på detta plan varav ett med utgång till balkongen som vetter ut mot ena gaveln av huset. Badrum med dusch, wc och handfat samt bra förvaring i två klädkammare finner vi även här.
Välkomna hem!



Musseronen 1
*Areauppgifter enligt taxeringsinformationen
2025 - Behandling av tak
Förrådsdel och carport.
Trädäck och uterum
Kommunalt vatten, Kommunalt avlopp.
Carport
Stadsplan (1974-06-05)
Fiber
I uppvärmningskostnaden ingår även hushållström.
Det finns 8 st pantbrev uttagna om sammanlagt 1 652 000 kr
Redan i slutet på 1800-talet blev Hässleholm en viktig järnvägsknutpunkt i Skåne. Idag tar man sig lätt och smidigt mellan storstäder som Stockholm och Köpenhamn. Inne i centrum finns ett stort av kultur, restauranger och butiker. Utanför stadskärnan finns det gott om natursköna platser att upptäcka.
Tack vare expanderingen av järnvägen under 1860–1870-talen på Hässleholmsgårdens mark, fick Hässleholm en viktig roll i Skåne. På den tiden färdades man främst mellan Helsingborg och Kristianstad. Idag tar man sig smidigt till Köpenhamn på cirka 1 timme och Stockholm på 3–4 timmar.
Hässleholms centrum har byggts upp intill järnvägsstationen, där största delen av bebyggelsen består av hus från efterkrigstiden. Några få äldre byggnader från tidigt sekelskifte finns kvar men mycket har rivits. Inne i centrum finns allt man behöver inom service, butiker, kaféer och restauranger. Kulturhuset är en populär, social mötesplats mitt i centrum med bibliotek, utställningshall, konsertsalar och biograf. För barn och unga arrangeras det löpande konserter, teater, workshops och pyssel.
Sport- och föreningslivet är rikt i Hässleholm. Q-poolen är en idrottsanläggning med både idrottshall, träningscenter och simhall med rekreationsavdelning. På Österås finns padel, tennis – och ishall samt fotbollsplaner. Alldeles i utkanten av centrum ligger Hässlegårdens golfklubb. Det rika aktivitetsutbudet uppskattas inte minst av barnfamiljerna som också har bekvämt nära till flera förskolor och skolor både inne i centrum och utanför.
Hembygdsparken ligger nära Hässleholms kyrka och bildades på 1930-talet. Här, mitt i centrum, erbjuds en vacker och nostalgisk miljö med gröningar, dammar, äldre röda trähus och en Ölandskvarn. Hela området är en perfekt utgångspunkt för att samlas för picknick och utomhuslek. Utöver detta finns ett flertal lekplatser, museum och en utomhusscen. Varje år anordnas det midsommarfirande i parken.
För större naturupplevelser behöver man inte åka långt. Ett flertal vandringsleder, promenadslingor och strövområden i varierande landskap finns nära tillhands. Hovdala, Lursjöleden, Möllerödssjö, Vedema och Vieåleden är några av dessa. Finjasjön med fiske och badplats ligger endast 5 km bort. Inte långt från FInjasjön ligger ett av Hässleholms mest besökta utflyktsmål, inte minst av turister; Hovdala slott.
Slottet har anor från 1600-talet och omges av en vacker park och trädgård samt ett orangeri från 1700-talet, som är en populär vigselplats. Här kan man också ta del av projektet Boketorp som är en samling hus som varsamt restaurerats. Runt slottet finns ett fint naturområde med möjlighet för att vandra, fiska, rida på islandshästar och fördjupa sig i den historiska miljön med minnesmärken.
Vill du köpa, sälja eller värdera bostad i Hässleholm? Välkommen att kontakta Bjurfors mäklare i Hässleholm. Passa också på att anmäla dig till vår kostnadsfria söktjänst Boagenten som hjälper dig att hitta ditt drömboende.
Kontakta mäklaren om du behöver hjälp att ta fram en boendekalkyl.
När du köper din bostad genom Bjurfors kan du ansöka om bolån till en förmånlig ränta hos vår samarbetspartner SEB.
Ansvarig mäklare