-
Köpa
Köpa -
Sälja
Sälja - Hitta bostad
- Skapa bevakning
- Hitta mäklare
Malmövägen 24
Tyringe, Hässleholm
*Areauppgifter enligt taxeringsinformationen
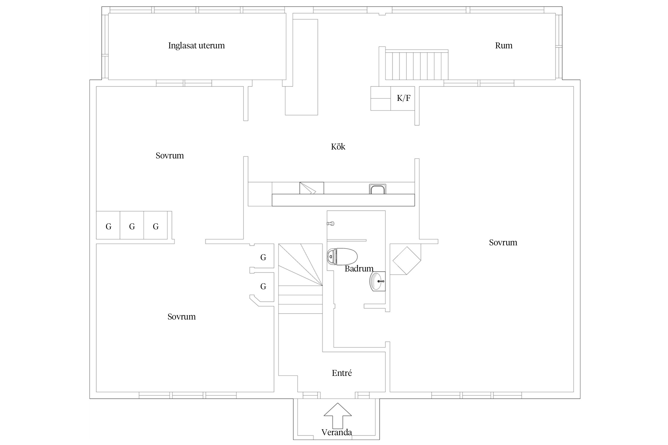
Hyresfastighet med två lägenheter, generations boende eller ett stort härligt boende - vad drömmer du om?
Här finns möjligheternas hus med många användningsområden helt efter dina önskemål och behov. Idag rymmer huset två lägenheter, en trerumslägenhet och en fyrarumslägenhet, som kan hyras ut var för sig. Stor källare, fristående uterum och god plats på baksidan för parkering av bilar samt garage. Ett färdigrenoverat hus som direkt kan börja användas för önskat behov.
Välkomna att boka en tid för visning!
Lägenhet 1:
På bottenplan finner vi den andra lägenheten med smakfullt kök som är utrustat med kyl/frys, mikro, ugn, spishäll och fläkt. Från köket kommer vi ut till balkongen som vetter ut mot baksidan av huset. Vidare två sovrum och ett stort vardagsrum med kakelugn även här som rummets mittpunkt. Badrum med kakel och klinkers i jordnära toner. Utrustat med handfat, toalett och dusch.
Lägenhet 2:
På andra plan finner vi den första lägenheten med med genomgående vita väggar och grå golv. Kök i vitt utförande med spis, fläkt, ugn och kyl/frys. Vit kakel mellan över och underskåp samt silvriga beslag. Vidare bjuder denna bostad på tre sovrum och ett vardagsrum med en underbar kakelugn samt gästtoalett. Badrum med kakel och klinkers i samma stilrena toner. Utrustat här med toalett, handfat och dusch.
Källarplan:
Här finns det tvättstuga med tvättmaskin och torktumlare samt goda förvaringsmöjligheter. Här finns även ett garage.



Backsvalan 13
*Areauppgifter enligt taxeringsinformationen
Fristående uterum.
Kommunalt vatten, Kommunalt avlopp.
Garage och bra med uppställningsplats på husets baksida.
Stadsplan (1968-09-13) Tomtindelning (1955-09-08) Stadsplan (1947-02-28)
Fiber
Driftkostnaderna är individuella och kan komma att ändras beroende på avtal/användning. Driften är en uppskattning eftersom inga definitiva siffror har kunnat tas fram.
Det finns 6 st pantbrev uttagna om sammanlagt 680 000 kr
Redan i slutet på 1800-talet blev Hässleholm en viktig järnvägsknutpunkt i Skåne. Idag tar man sig lätt och smidigt mellan storstäder som Stockholm och Köpenhamn. Inne i centrum finns ett stort av kultur, restauranger och butiker. Utanför stadskärnan finns det gott om natursköna platser att upptäcka.
Tack vare expanderingen av järnvägen under 1860–1870-talen på Hässleholmsgårdens mark, fick Hässleholm en viktig roll i Skåne. På den tiden färdades man främst mellan Helsingborg och Kristianstad. Idag tar man sig smidigt till Köpenhamn på cirka 1 timme och Stockholm på 3–4 timmar.
Hässleholms centrum har byggts upp intill järnvägsstationen, där största delen av bebyggelsen består av hus från efterkrigstiden. Några få äldre byggnader från tidigt sekelskifte finns kvar men mycket har rivits. Inne i centrum finns allt man behöver inom service, butiker, kaféer och restauranger. Kulturhuset är en populär, social mötesplats mitt i centrum med bibliotek, utställningshall, konsertsalar och biograf. För barn och unga arrangeras det löpande konserter, teater, workshops och pyssel.
Sport- och föreningslivet är rikt i Hässleholm. Q-poolen är en idrottsanläggning med både idrottshall, träningscenter och simhall med rekreationsavdelning. På Österås finns padel, tennis – och ishall samt fotbollsplaner. Alldeles i utkanten av centrum ligger Hässlegårdens golfklubb. Det rika aktivitetsutbudet uppskattas inte minst av barnfamiljerna som också har bekvämt nära till flera förskolor och skolor både inne i centrum och utanför.
Hembygdsparken ligger nära Hässleholms kyrka och bildades på 1930-talet. Här, mitt i centrum, erbjuds en vacker och nostalgisk miljö med gröningar, dammar, äldre röda trähus och en Ölandskvarn. Hela området är en perfekt utgångspunkt för att samlas för picknick och utomhuslek. Utöver detta finns ett flertal lekplatser, museum och en utomhusscen. Varje år anordnas det midsommarfirande i parken.
För större naturupplevelser behöver man inte åka långt. Ett flertal vandringsleder, promenadslingor och strövområden i varierande landskap finns nära tillhands. Hovdala, Lursjöleden, Möllerödssjö, Vedema och Vieåleden är några av dessa. Finjasjön med fiske och badplats ligger endast 5 km bort. Inte långt från FInjasjön ligger ett av Hässleholms mest besökta utflyktsmål, inte minst av turister; Hovdala slott.
Slottet har anor från 1600-talet och omges av en vacker park och trädgård samt ett orangeri från 1700-talet, som är en populär vigselplats. Här kan man också ta del av projektet Boketorp som är en samling hus som varsamt restaurerats. Runt slottet finns ett fint naturområde med möjlighet för att vandra, fiska, rida på islandshästar och fördjupa sig i den historiska miljön med minnesmärken.
Vill du köpa, sälja eller värdera bostad i Hässleholm? Välkommen att kontakta Bjurfors mäklare i Hässleholm. Passa också på att anmäla dig till vår kostnadsfria söktjänst Boagenten som hjälper dig att hitta ditt drömboende.
Kontakta mäklaren om du behöver hjälp att ta fram en boendekalkyl.
När du köper din bostad genom Bjurfors kan du ansöka om bolån till en förmånlig ränta hos vår samarbetspartner SEB.
Ansvarig mäklare