-
Köpa
Köpa -
Sälja
Sälja - Hitta bostad
- Skapa bevakning
- Hitta mäklare
Lantligt läge med stallbyggnad, 3.500 kvm tomt – ostört läge i Fleninge
Fleninge, Helsingborg
*Areauppgifter enligt säljaren, egen uppmätning
Anmäl dig till mäklaren för visningstid
Välkommen till denna friliggande villa om c:a 90 kvm, belägen på en härlig trädgårdstomt om cirka 3 500 kvm i idylliska Fleninge. Här bor du i ett ostört och lantligt läge, med grannar på behörigt avstånd men ändå närhet till service, skolor och goda kommunikationer mot både Helsingborg och Ängelholm.
Bostaden erbjuder en ljus och trivsam planlösning med två sovrum – och möjlighet att enkelt skapa ett tredje för den som önskar. Köket är öppet mot vardagsrummet och bjuder in till umgänge och gemenskap. Från vardagsrummet finns utgång till en rymlig altan i soligt läge, perfekt för lata sommardagar och middagar i kvällssolen. Det helkaklade badrummet är stilrent och praktiskt, och hela villan genomgick en renovering 2018 vilket ger en modern och inflyttningsklar känsla.
På fastigheten finns även en rejäl stallbyggnad om c:a 90 kvm med tillhörande loge – ett utmärkt komplement för dig med hästintresse, egen verksamhet eller behov av extra förvaring.
Den stora tomten ger gott om utrymme för odling, lek, hobbyverksamhet eller bara njutning av den fria känslan. Här finns alla möjligheter att skapa ditt eget drömboende i en lantlig och avskild miljö.
Fleninge är ett trivsamt samhälle med charmig bykänsla, omgiven av öppna landskap och åkrar. Här får du det bästa av två världar – lugnet och grönskan på landet, samtidigt som du snabbt når stadens utbud.
En fastighet som sällan dyker upp – både charmig och funktionell med stora utvecklingsmöjligheter!
-
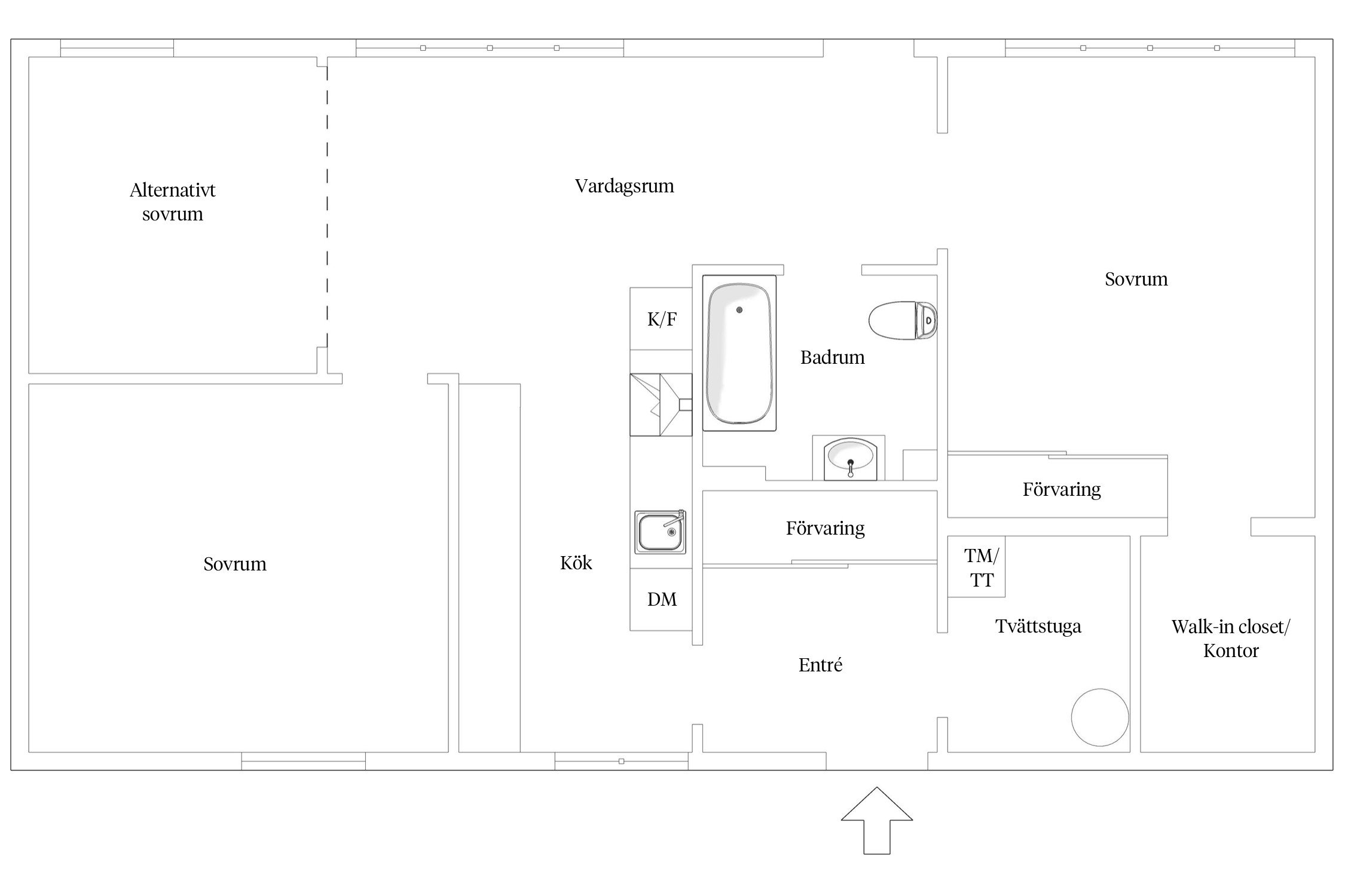
Hall
Välkomnade hall med förvaring bakom praktiska skjutdörrar i glas. I anslutning till hallen finns en tvättstuga med tvättpelare.
Kök
Kök med praktisk, öppen planlösning mot vardagsrummet. I köket finns kyl/frys, integrerad diskmaskin, ugn, spishäll, köksfläkt och matplats.
Vardagsrum
Rymligt vardagsrum i öppen planlösning mot köket, med stora fönster som släpper in dagsljus och möjligheten att skapa ett tredje sovrum – perfekt för både umgänge och avskildhet. Från vardagsrummet är det utgång till altanen.
Sovrum 1
Större sovrum med utrymme för dubbelsäng och förvaring i form av garderob med skjutdörrar. I anslutning till rummet finns en walk-in-closet alternativt kontor.
Sovrum 2
I anslutning till vardagsrummet finns det andra sovrummet. Sovrummet har utrymme för två sängar alternativt en dubbelsäng.
Badrum
Helkaklat badrum med klinkergolv (golvvärme), wc, tvättställ, skåp och badkar.



Planlösning
Fleninge 31:5
*Areauppgifter enligt säljaren, egen uppmätning
Tidigare ägare har isolerat vinden
2011
Nya fönster
2018
Ny elcentral
Ny el
Nya ytskikt
Huset dränerades med platonmatta
Nytt kök
Målning av den putsade fasaden
Nytt tak, nya läkt, ny papp, nya betongpannor
Nya hängrännor och stuprör
Renovering av badrummet
Luft/luftvärmepump
Ny varmvattenberedare
2020
Oljefyllda element
2024
Ny vattenpump till den egna brunnen
2024
Målades väggar i huset
Ny el i stallbyggnaden
Stallbyggnad (golvyta 90 kvm) med loge och tillhörande förrådsdel om 40 kvm.
Ny el i byggnaden 2024 då även takstolarna på halva golvytan byggdes om för att ge högre takhöjd. Energiglasfönster (2011).
Altan (2018) om c:a 30 kvm med härligt solläge
Borrad brunn med ny vattenpump (2024), Enskilt avlopp (3-kammarbrunn)
Trädgårdstomt som omgärdas av bokhäckar, det finns flera fruktträd. Från tomten har man utsikt över landskapet runtomkring. Kvällssol på tomten.
Fiber
I posten "uppvärmning" ingår även hushållselen.
Helsingborg är en av Nordens äldsta städer. Redan i slutet av 900-talet har det troligtvis funnits en mindre befästning uppe på landborgen. Staden tillhör Öresundsregionen och är Skånes andra största stad. Här befinner du dig endast 4 km från Helsingör i Danmark. Fram till mitten 1800-talet betecknades Helsingborg som småstad men antal invånare ökade explosionsartat i samband med att industrialismen i staden tog fart. Helsingborg växer fortfarande och efterfrågan på nya bostäder blir allt större.
Helsingborg är förutom den breda kustremsan omgivet av parker, grönområden och skog för ett aktivt liv. Här finns naturreservat, vandringsleder, lekplatser, badplatser och cykelleder i varierande miljöer. Helsingborgs centrum ligger alldeles intill havet och är den äldsta delen av staden. Här sjuder det av liv året om. Restauranger, caféer och barer ligger tätt både inne bland husen och nere vid Öresundskusten.
På sommaren solar och badar du mitt i centrum. Här finns det ett flertal badplatser att välja på utifrån väder och humör. Gröningen är en populär plats för folk i alla åldrar med stora gräsytor, lekplats, promenadstråk, trädäck och badbrygga. Fria bad är en bred sandstrand med tre badbryggor och en trevlig fiskrestaurang som vetter mot havet.
Köpa, sälja eller värdera bostad i Helsingborg? Välkommen att kontakta Bjurfors mäklare i Helsingborg City eller Bjurfors mäklare i Helsingborg Norr. Passa också på att anmäla dig till vår kostnadsfria söktjänst Boagenten som hjälper dig att hitta ditt drömboende.
Kontakta mäklaren om du behöver hjälp att ta fram en boendekalkyl.
När du köper din bostad genom Bjurfors kan du ansöka om bolån till en förmånlig ränta hos vår samarbetspartner SEB.
Anmäl dig till mäklaren för visningstid
Ansvarig mäklare