-
Köpa
Köpa -
Sälja
Sälja - Hitta bostad
- Skapa bevakning
- Hitta mäklare
Husensjö, Helsingborg
*Areauppgifter enligt taxeringsinformationen
Biarea – uppgift enligt säljare
På Förhand ligger bostäder som av olika anledningar inte är ute till försäljning just nu men som kan komma att säljas om förutsättningarna är rätt.
Välrenoverad familjevilla med solsäker, insynsskyddad trädgård, altan, braskamin och garage.
Välkommen till denna trivsamma och välrenoverade 1½-plansvilla med källare och garage, belägen på barnvänliga och populära Husensjö. Huset har genom åren genomgått omfattande och påkostade renoveringar – se mer under renoveringar i bostadsfaktan. Här finns även installerad elbilsladdare för ett bekvämt och framtidssäkert boende.
Den insynsskyddade och grönskande trädgården är något alldeles extra. Tomten ligger på ett solsäkert läge och erbjuder en generös altan med gott om plats för matgrupp, loungemöbler, spabad och utekök. På tomten finns även en praktisk och lyxig utedusch – perfekt under sommarhalvåret.
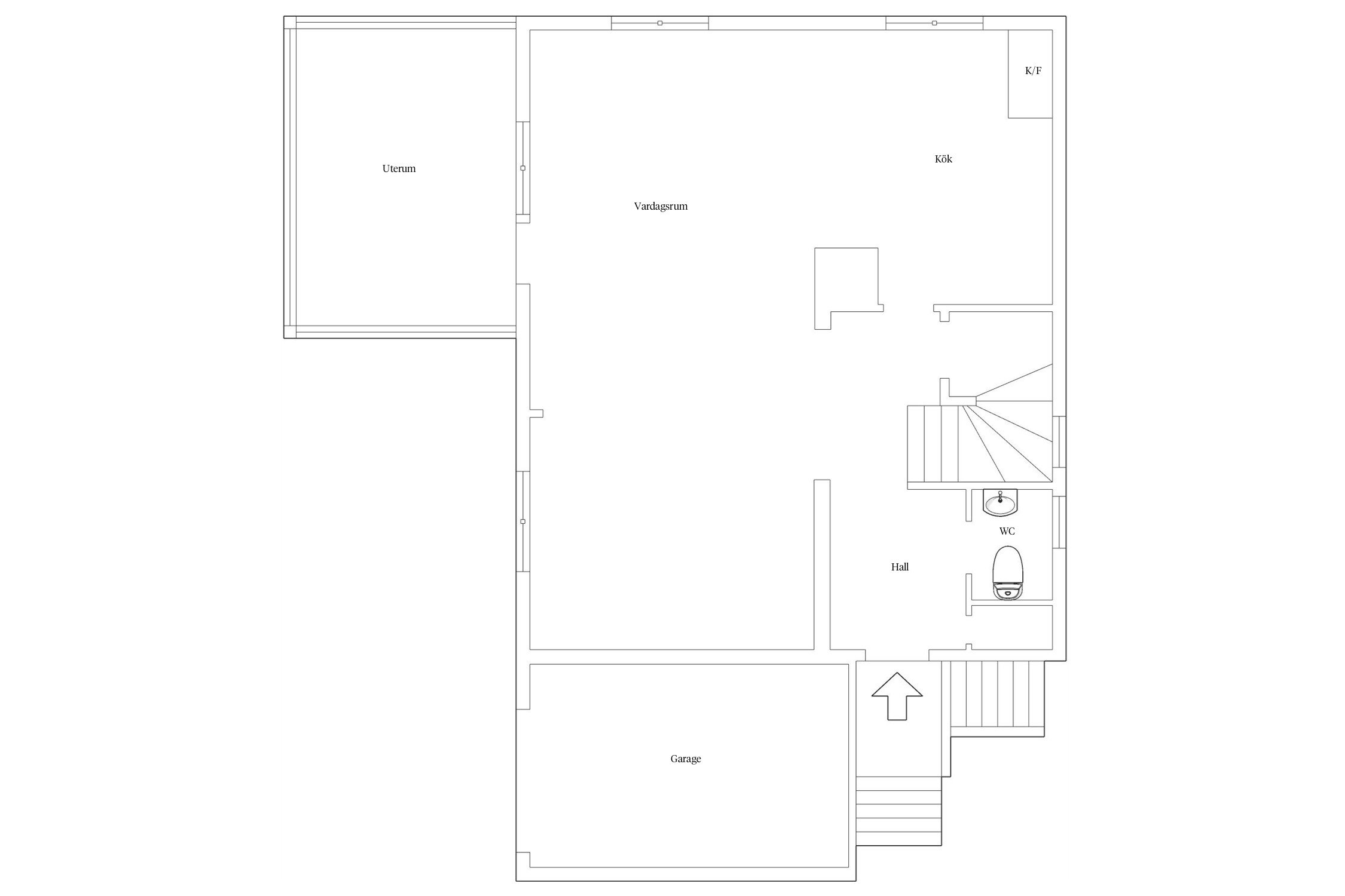
Boytan är fördelad över två plan. På entréplanet välkomnas du av en inbjudande hall med goda avhängningsmöjligheter samt stilrent klinkergolv med vattenburen golvvärme. I anslutning till hallen finns en renoverad gäst-wc.
Längre in i bostaden öppnar vardagsrum, kök och matplats upp sig i en modern och social öppen planlösning. Här skapar braskaminen extra trivsel och värme under årets kallare månader. Från vardagsrummet nås den härliga altanen och trädgården i soligt läge.
En trappa upp finns två rogivande sovrum samt ett modernt, helkaklat badrum med golvvärme.
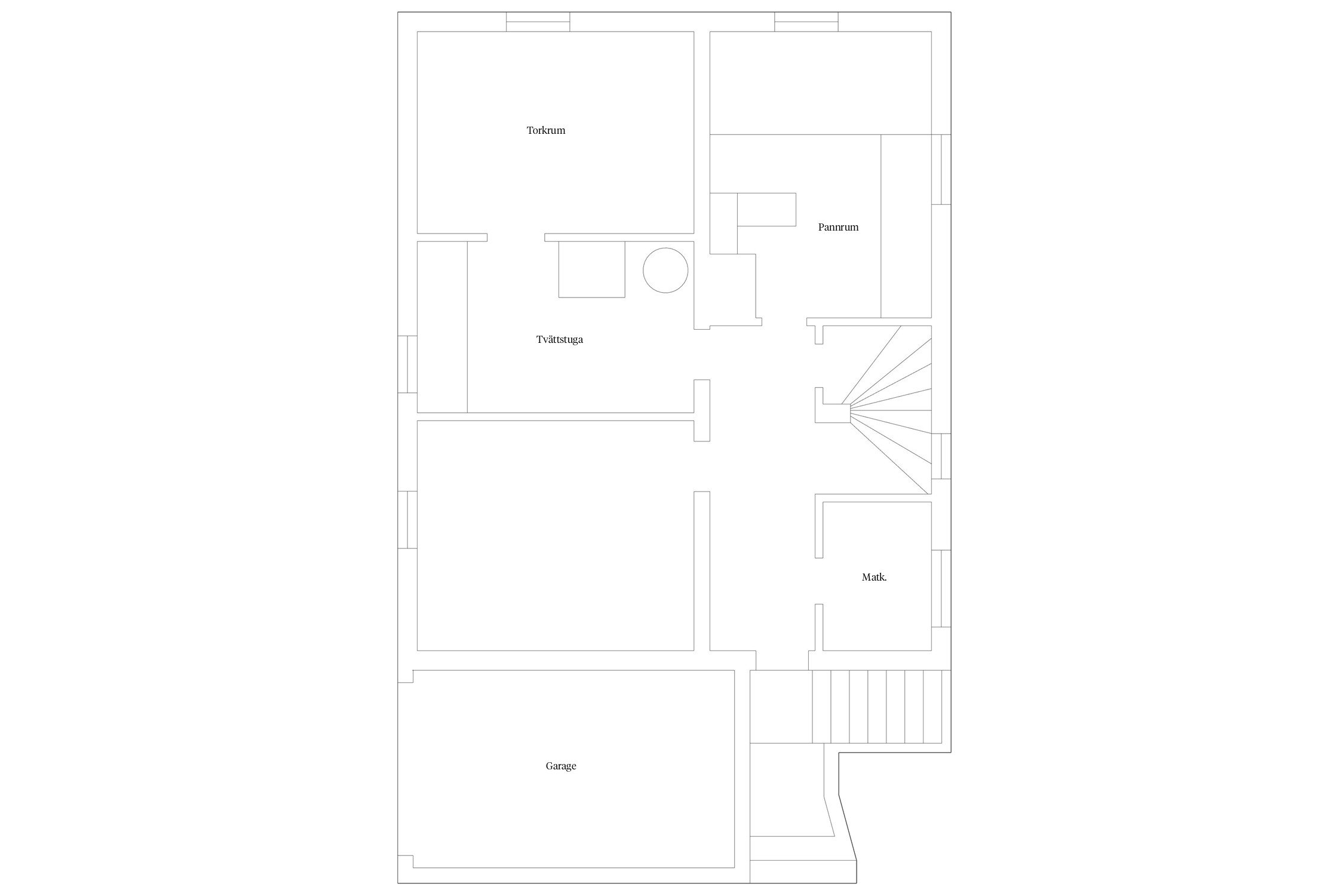
I källarplanet finns en renoverad tvättstuga med bastu, gott om förvaringsutrymmen samt ett rum som idag används som sovrum – perfekt som gästrum, tonårsrum eller hemmakontor.
Ett genomtänkt och välskött hem i ett tryggt och omtyckt område.
På Husensjö bor du fint i ett lugnt och grönskande område med nära till både service, kommunikationer och allt vad vackra Helsingborg har att erbjuda. Det omtyckta och trivsamma området består av härliga promenadstråk, vacker natur och blandad bebyggelse. I närområdet finns det förskola, skola samt ett mindre centrum med mataffär, cykel butik, frisörsalong, konditori, pizzeria och mycket mer.
Välkommen att kontakta mäklare Bob Kjellsson för visning.



Elna 10
*Areauppgifter enligt taxeringsinformationen
Biarea – uppgift enligt säljare
2022
Ny garageport
2021
Spa-bad
2019
Elbilsladdare
2016
Renovering av tvättstuga och bastu
2013
Braskamin
Altan och trädgård anlades
2012
Matning av el och VA från gatan in i huset.
Dränering
2011
Byte av tak ink takfönster och plåtarbete.
Målning av huset.
Större delen av VA utbytt förutom lite i bottenplan.
Ny el ( i större delen av huset) och ny el-central.
Värmeåtervinning (FTX) installerades.
Renovering av alla ytskikt.
Kök.
Gäst-WC.
Badrum.
Garage
Kommunalt vatten, Kommunalt avlopp.
Stadsplan (1950-04-21) Tomtindelning (1943-11-25)
Samfällighet: Helsingborg ramlösa s:14
Samfällighet: Helsingborg ramlösa s:16
Samfällighet: Helsingborg ramlösa s:17
Skattetal: mantal 45/100000
Fiber
Radonmätning utförd 2025 - Resultat 80 Bq/m³
Det finns 6 st pantbrev uttagna om sammanlagt 2 543 000 kr
I Husensjö bor man alldeles utanför stan med närhet till det mesta. Området är lugnt, barnvänligt och det är endast en kvarts promenadavstånd från stadskärnans stora utbud. Här finns det mataffär, konditori, vårdcentral och bibliotek. I området finns många parkområden. På vissa platser finns det äldre fruktträd bevarade från tiden då det fanns ett har det koloniområde.
Husensjös bebyggelse består främst av friliggande villor från början av 1900-talet, men det förekommer även nyare flerbostadshus. Här finns en fin park med tennisbana, fotbollsplan och skateboardramp. De finns också ett litet koloniområde.
Norr om Husensjö ligger området Rosengården, som fått sitt namn efter ett lantbruk som låg här. Bebyggelsen består av både sekelskiftesvillor och flerbostadshus från 1960–70-talet.
Ovanför landborgen öster om centrum ligger Wilson Park som är en lugn stadsdel med nära avstånd till både innerstan och flera parkområden.
Sofieberg har fått namn från ett landeri som låg på platsen på 1800-talet. Här bedrevs från början lantbruk som sedan utvecklades till handelsträdgård och plantskola med fokus på syrener. I början på 1900-talet var detta Sveriges största anläggning med 24 växthus.
Intill det öppna grönområdet Viskängsstråket ligger Helsingborgs minst befolkade stadsdel Fältabacken, med många villor från början av 1900-talet av kraftigt varierande utseende eftersom många ritade och uppförde dessa på egen hand.
Mellan Wilson Park och Fältabacken ligger Sundspärlan, med anor från slutet av 1800-talet som både folkpark och djurpark. Numera är det en välbesökt nöjespark som erbjuder teater, konserter, restaurang och företagsevents.
Köpa, sälja eller värdera bostad i Husensjö? Välkommen att kontakta Bjurfors mäklare i Helsingborg City. Passa också på att anmäla dig till vår kostnadsfria söktjänst Boagenten som hjälper dig att hitta ditt drömboende.
Kontakta mäklaren om du behöver hjälp att ta fram en boendekalkyl.
När du köper din bostad genom Bjurfors kan du ansöka om bolån till en förmånlig ränta hos vår samarbetspartner SEB.
Ansvarig mäklare