-
Köpa
Köpa -
Sälja
Sälja - Hitta bostad
- Skapa bevakning
- Hitta mäklare
Kvadratsmart lägenhet och billigt boende.
Oceanhamnen, Helsingborg
*I avgiften ingår värme, vatten och bostadsrättstillägg.
**1 ROK enligt föreningens lägenhetsregister.
På Förhand ligger bostäder som av olika anledningar inte är ute till försäljning just nu men som kan komma att säljas om förutsättningarna är rätt.
Detta är en bostad som kombinerar genomtänkta lösningar, modern design och ett oslagbart läge – helt enkelt ett hem att trivas i från dag ett
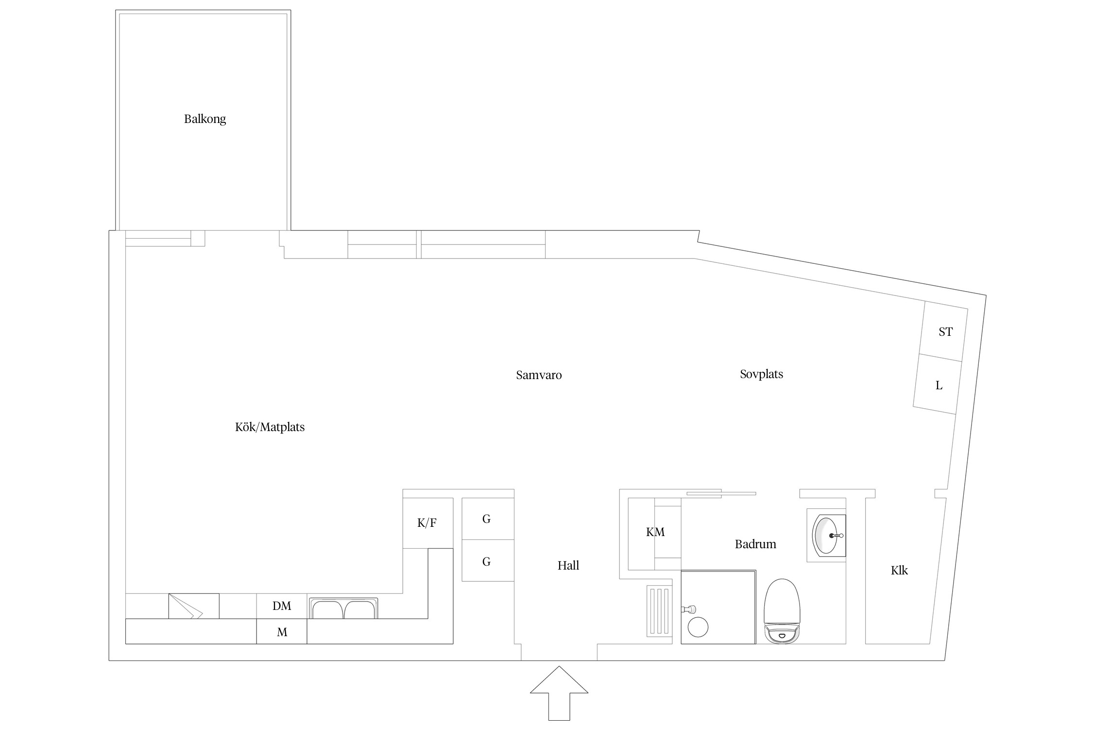
Välkommen till denna ljusa och välplanerade bostad där smarta lösningar och stilrena materialval möts i en härlig kombination. Här får du ett hem som känns både luftigt och funktionellt, med en planlösning som utnyttjar varje kvadratmeter på bästa sätt.
Det stora helkaklade badrummet går i vitt med ljusbeige klinkergolv och bjuder på det lilla extra. Här finns både tvättmaskin och torktumlare med arbetsbänk ovanför samt vägghängt skåp för förvaring – en praktisk lösning som underlättar vardagen. Badrummet är komplett med vit kommod och spegelskåp, vägghängd toalett, handdukstork samt en stilfull dusch med exklusiva glasväggar.
Sovrumsdelen är smart avskärmad och ger en rofylld känsla. Idag skiljs den av med gardiner, men här finns möjlighet att sätta upp en industriglasvägg med gardin för en mer distinkt avdelning. Rummet rymmer dubbelsäng, har två garderober och dessutom direkt ingång till en klädkammare.
Hallens praktiska planlösning erbjuder plats för avhängning samt ytterligare garderober. Genomgående parkettgolv och ljusa väggar förstärker känslan av rymd och ljus i hela lägenheten. Från vardagsrummet nås den mysiga balkongen – en riktig oas med hög trivselfaktor. Här kan du njuta av solen, en kopp kaffe eller en bok i lugn och ro.
Köket och matplatsen ligger i öppen planlösning med samvarodelen och bjuder på en ljus, fräsch och social yta – perfekt för både vardag och umgänge.
Läget i Oceanhamnen är något alldeles extra. Här bor du precis vid kanalen och den populära bryggan där många tar sig ett dopp på sommaren. Området bjuder på flera uppskattade restauranger och mötesplatser – Zushi för sushiälskaren, Benchwarmers för pizza och öl, Brasseriet för klassiska rätter eller hotellets rooftop för Helsingborgs kanske bästa utsikt. På bara fem minuter promenerar du över den vackra bron och står mitt i Helsingborgs centrum, med närhet till shopping, kultur och goda pendlingsmöjligheter vidare ut i Skåne.
Detta är en bostad som kombinerar genomtänkta lösningar, modern design och ett oslagbart läge – helt enkelt ett hem att trivas i från dag ett.



Hamlet 1
*1 ROK enligt föreningens lägenhetsregister.
I avgiften ingår värme, vatten och bostadsrättstillägg.
Källare
Balkong i västläge
Fiber
Bostadsrättens indirekta nettoskuldsättning baseras på föreningens skulder/lån minus föreningens räntebärande tillgångar och likvida medel. Beräkningen är gjord via Bopedia. För mer information kontakta ansvarig fastighetsmäklare.
*Betalas av köpare
Brf Trevågor är en äkta bostadsrättsförening som bildades 2017. Föreningen äger fastigheten Hamlet 1 med 49 lägenheter och 2 lokaler (som i dagsläget är uthyrda 2025-09-17).
Ekonomisk förvaltning via Riksbyggen.
Föreningen höjde avgiften senast med 2,5 % 2024-01-01 (enligt årsredovisning 2024). I dagsläget finns inga planerade avgiftsförändringar. (Kontrollerat 2025-09-17)
Fastigheten är fullvärdesförsäkrad hos Trygg-Hansa och bostadsrättstillägg ingår för föreningens medlemmar.
Huset var inflyttningsklart i mars -20 så inga renoveringar är nödvändiga. Föreningen har fått bygglov för inglasning av balkonger mot Smugglargränd och är nyttjat av en del. Obs lägenhetsinnehavare bestämmer själv om de vill glasa in. Lägenhetsinnehavare betalar själv en eventuell inglasning.
I dagsläget finns det inget planerat underhåll. (kontrollerat 2025-09-17)
Det finns 29 garageplatser som går att hyra för 1479 kr/mån. Det finns även fyra platser för elbil som kostar 1479 kr/mån plus en fast avgift om 350 kr/mån plus 2,50 kr/kWh. I dagsläget är det 10-20 personer i kö. (Kontrollerat 2025-09-19)
På Helsingborgs stad så kan man sätta upp sig i kö på parkeringsplatser vid Redaregatan det finns 60 och dessa kostar 600 kr/mån. https://helsingborg.se/trafik-och-stadsplanering/parkering/hyra-parkeringsplats/privatpersoner-2/. Det finns även fler parkeringsmöjligheter i närheten som kostar 1200 kr/mån. (Kontrollerat 2025-09-17)
Från och med 2026-02-01 kommer alla hushåll att anslutas till Bredband2 och kommer kosta 150 kr/mån. Avtal för digital-TV får boende teckna själva.
Det finns en trevlig innergård med planteringar, pergola och lekplats.
I huset finns barnvagns-/rullstolsrum, gästlägenhet som går att hyra för 400 kr/natt samt ett miljörum. Det finns källarförråd. Lägenheterna har egna tvättmöjligheter.
Information som berör föreningen är inhämtad via årsredovisning, stadgar och kontakt med föreningen. Avvikelser kan förekomma och som köpare uppmanas du att själv kontrollera samtliga uppgifter, framförallt om något är av extra stor betydelse för dig som köpare.
Helsingborg är en av Nordens äldsta städer. Redan i slutet av 900-talet har det troligtvis funnits en mindre befästning uppe på landborgen. Staden tillhör Öresundsregionen och är Skånes andra största stad. Här befinner du dig endast 4 km från Helsingör i Danmark. Fram till mitten 1800-talet betecknades Helsingborg som småstad men antal invånare ökade explosionsartat i samband med att industrialismen i staden tog fart. Helsingborg växer fortfarande och efterfrågan på nya bostäder blir allt större.
Helsingborg är förutom den breda kustremsan omgivet av parker, grönområden och skog för ett aktivt liv. Här finns naturreservat, vandringsleder, lekplatser, badplatser och cykelleder i varierande miljöer. Helsingborgs centrum ligger alldeles intill havet och är den äldsta delen av staden. Här sjuder det av liv året om. Restauranger, caféer och barer ligger tätt både inne bland husen och nere vid Öresundskusten.
På sommaren solar och badar du mitt i centrum. Här finns det ett flertal badplatser att välja på utifrån väder och humör. Gröningen är en populär plats för folk i alla åldrar med stora gräsytor, lekplats, promenadstråk, trädäck och badbrygga. Fria bad är en bred sandstrand med tre badbryggor och en trevlig fiskrestaurang som vetter mot havet.
Köpa, sälja eller värdera bostad i Helsingborg? Välkommen att kontakta Bjurfors mäklare i Helsingborg City eller Bjurfors mäklare i Helsingborg Norr. Passa också på att anmäla dig till vår kostnadsfria söktjänst Boagenten som hjälper dig att hitta ditt drömboende.
Kontakta mäklaren om du behöver hjälp att ta fram en boendekalkyl.
När du köper din bostad genom Bjurfors kan du ansöka om bolån till en förmånlig ränta hos vår samarbetspartner SEB.
Ansvarig mäklare