-
Köpa
Köpa -
Sälja
Sälja - Hitta bostad
- Skapa bevakning
- Hitta mäklare
Charmig korsvirkesvilla med pool, uterum och gästhus – privat oas nära Snogeröd och Ringsjön!
Snogeröd, Höör
*Areauppgifter enligt taxeringsinformationen
Kontakta mäklaren för mer information gällande budgivningen.
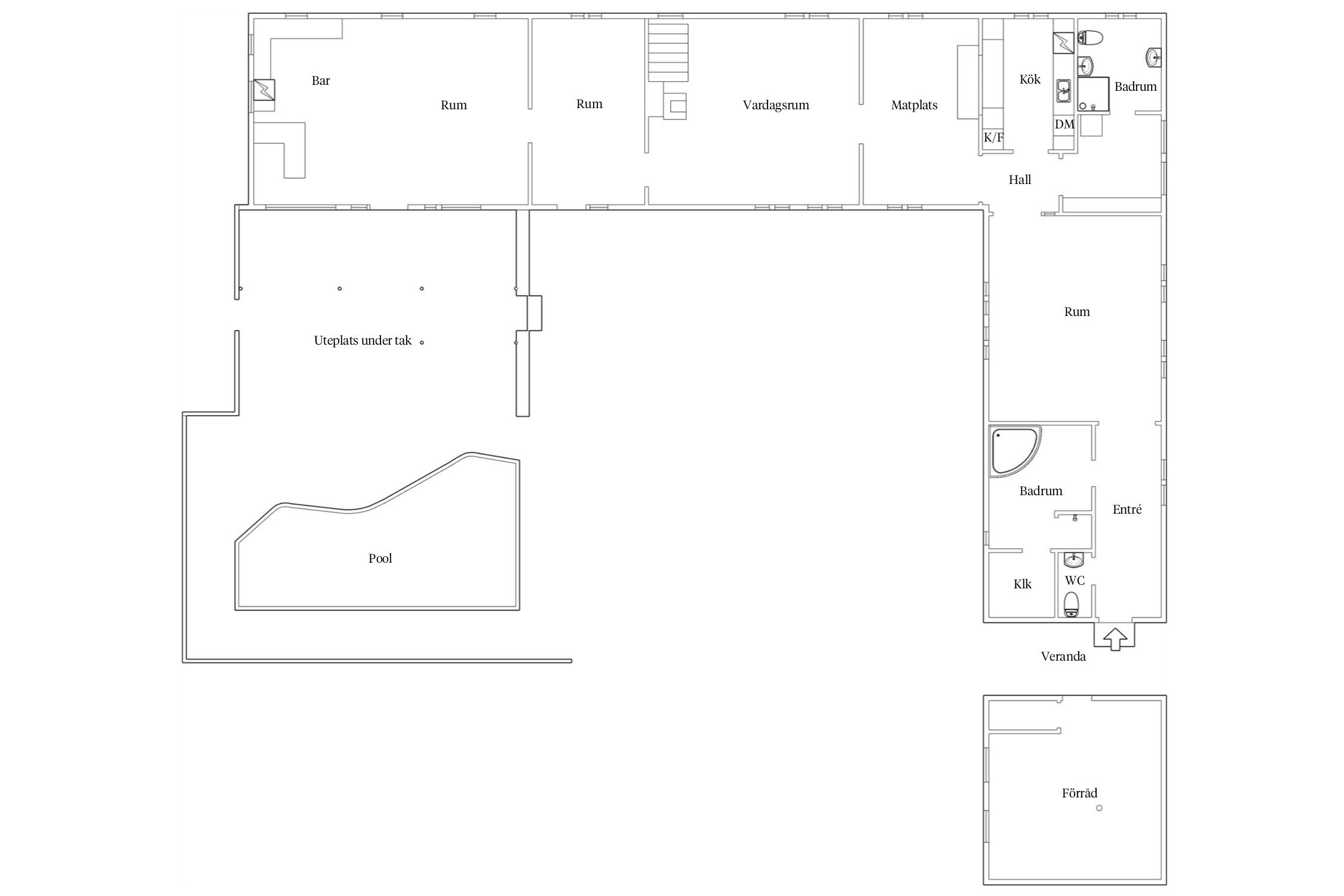
Välkommen till en charmig korsvirkesvilla i 1½ plan med en boarea om 173 kvm fördelat på sex rum och kök, varav tre rymliga sovrum. Här kombineras det lantliga lugnet med närhet till service och kommunikationer, i en miljö som präglas av grönska, avskildhet och livskvalitet. Huset bjuder på öppna gemensamma ytor som inbjuder till umgänge, med en varm och trivsam atmosfär genom hela bostaden.
Trädgården är en grönskande oas med fruktträd, prunkande växter och gott om plats för både vila och odling på den generösa tomten om 1 893 kvm. När du kliver in genom ett vackert valv från bilparkeringen möts du av en privat och insynsskyddad utemiljö med murar och tät häck, där uteplatsen med terrass och pool i sydvästläge blir en naturlig samlingsplats under soliga dagar. Ett inglasat uterum förlänger utesäsongen och skapar ytterligare en plats att njuta av året runt.
På tomten finns även ett separat gästhus om 111 kvm, perfekt som generationsboende, för långväga gäster eller som uthyrningsbostad för den som söker en extra inkomstkälla. Den avskilda trädgården ger även utrymme för odlingsintresserade att skapa sin egen köksträdgård eller blomstrande grönsaksland.
Läget är både naturnära och praktiskt. I Gudmuntorp finns både skola och en förskola nås i Snogeröd, bara en kort cykeltur bort. För pendlaren finns busshållplatser inom rimligt avstånd med förbindelser mot Lund, Malmö och Kristianstad, dit restiden ligger på omkring 35 minuter åt vardera håll. Inom cirka 10–15 minuter med bil når du Höörs tätort med dess breda utbud av service, butiker och tågstation.
Omgivningen präglas av vackra vyer och levande landsbygd. Ringsjön ligger inom kort cykelavstånd och erbjuder bland annat bad, friluftsliv och ett fågelskådningstorn. I Snogeröd finns både förskola och en aktiv fotbollsklubb, vilket gör området idealiskt för barnfamiljer.
Det här är ett hem där både vardag och fritid får utrymme – ett ställe att slå rot på, med plats för livets alla faser. Välkommen till ett boende som bjuder på harmoni, möjligheter och ett unikt lugn
Fastigheten säljes med friskrivningsklausul.
Kök: Utrustat med spisfläkt, spishäll, diskmaskin, ugn, kyl och fryst. Laminat på golv och rostfri bänkskiva
Badrum: Plastmatta på golv och vägg, dusch, handfat, toalett. badrumsskåp. Elgolvvärme på golv.
Badrum: Klinker på plastmatta, bubbelbadkar och dusch. Elgolvvärme på golv.
Tvättstuga: Plastmatta på golv samt målade väggar och utrustade med hyllor.
Kök
Utrustat med spisfläkt, spishäll, diskmaskin, ugn, kyl och fryst. Laminat på golv och rostfri bänkskiva
Badrum
Plastmatta på golv och vägg, dusch, handfat, toalett. badrumsskåp. Elgolvvärme på golv.
Badrum
Klinker på plastmatta, bubbelbadkar och dusch. Elgolvvärme på golv.
Tvättstuga
Plastmatta på golv samt målade väggar och utrustade med hyllor.



Kråkarp 2:2
*Areauppgifter enligt taxeringsinformationen
EL delvis utbytt 2011.
Pool från 1975 i sydvästligt läge, djup 1,2 m
1968
2018 Totalrenoverat badrum
Extrahus, lämpligt för uthyrning, generationsboende om ca 111 kvm.
Uterum och terrass i sydväst, i skyddad trädgårdsmiljö med häckar, murar och en privat pool om 1.2 m djup, byggt 1975.
Borrad brunn. Vattenporov finns. trekammarbrun/sluten infiltration
I den lummiga trädgården finns plats för hopp och lek under fruktträd.
Carport om ca 35 kvm
Förmån: Officialservitut Väg, 12-GUD-272.1
Fiber
Uppvärmningen är endast baserat på det stora huset - korsvirkeslängan om 18.000 kwh/år, baserat på ett schablon på 2kr /kwh inkl nätavgifter och hushållsström.
OBS! Driftskostnader och elförbrukning är inhämtade från säljaren och bör endast ses som en uppskattning. Kostnaden kan variera och baseras på förbrukning och avtal.
Elförbrukning bara stora bostaden 16-20 000kwh totalt
Elförbrukning B&B vid uthyrning året runt ca 18 000 kwh
Förbrukningen och kostnaden är osäkert då huset varit uthyrt.
Total kostnad för el 2024 68965:-
total elförbrukning 37 000kwh
4 personer i stora bostaden
1,5 personer i B&B
Osmosfilter(vattenrening) installerat i bostad och B&B i köken.
Tillkommer kundförsäkringar om man ska driva B&B.
Det finns 10 st pantbrev uttagna om sammanlagt 1 525 000 kr
Goda kommunikationsmöjligheter, ett rikt kultur- och fritidsliv samt vacker skiftande natur har gjort Höör till en mycket eftertraktad kommun att bo i. Kommunen sträcker sig från Norra Rörum och Tjörnarp i norr till Gudmundtorp i söder. I väster ligger Hallaröd och Munkarp, dessutom ingår Bosjökloster och Höörs tätort i området.
För den som vill bo lantligt men ändå ha nära till storstadens puls är Höör ett utmärkt alternativ, Öresundsregionen ligger bara en knapp timmes tågresa bort. Var du än bor i kommunen har du nära till bad och till fina strövområden. Ett besök på Bosjökloster golfklubb kan också rekommenderas. Även kulturlivet i kommunen är aktivt och Höör är ett centrum för musik.
Även handeln bjuder på rik variation. Höör är en blomstrande småföretagarkommun med turism och hälsa som profilnäringar. Här kan du shoppa i mysiga små butiker i centrum eller köpa färska gourmetprodukter hos gårdshandlare.
I Höörs kommun finns populära turistmål som skid- och friluftsanläggningen Frostavallen, Skånes djurpark och Bosjökloster Slott. I Ringsjön ligger också halvön Lillö där man funnit vulkanrester. Lillön är även känd för sitt naturreservat med jätteaspar.
Vill du köpa, sälja eller värdera bostad i Höörs kommun? Kontakta Bjurfors mäklare i Höör! Passa också på att anmäla dig till vår kostnadsfria söktjänst Boagenten som hjälper dig att hitta ditt drömboende.
Kontakta mäklaren om du behöver hjälp att ta fram en boendekalkyl.
När du köper din bostad genom Bjurfors kan du ansöka om bolån till en förmånlig ränta hos vår samarbetspartner SEB.
Kontakta mäklaren för mer information gällande budgivningen.
Kontakta mäklareAnsvarig mäklare