-
Köpa
Köpa -
Sälja
Sälja - Hitta bostad
- Skapa bevakning
- Hitta mäklare
Återvändsgata och med sjöutsikt.
Tjörnarp, Höör
*Areauppgifter enligt taxeringsinformationen
På idylliska Badstigen, där sjön glimmar mellan träden, hittar du denna trivsamma enplansvilla med källare – ett hem som bjuder på både charm, ytor och potential.
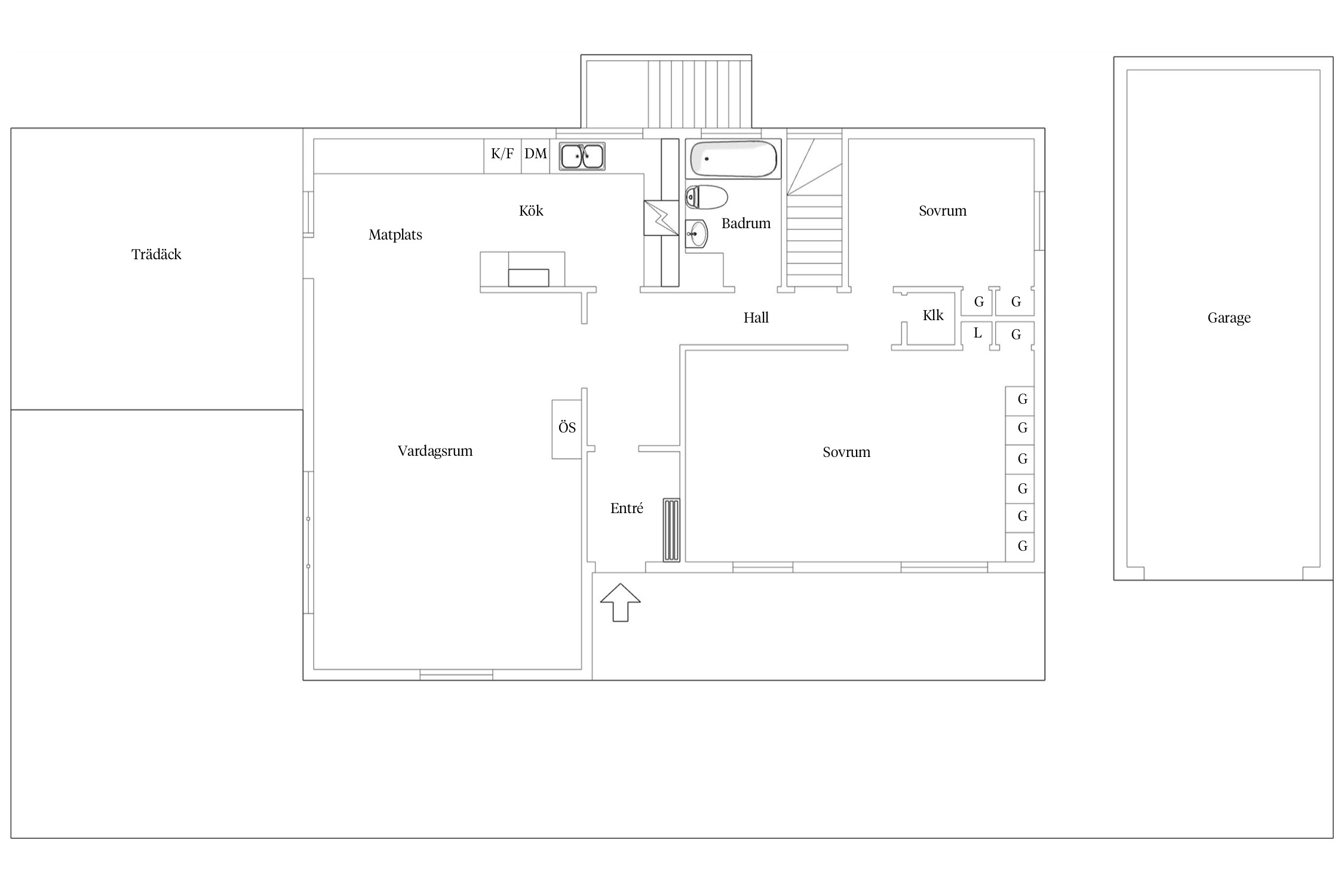
Entréplanet erbjuder en välplanerad planlösning med två sovrum, ett ljust och luftigt vardagsrum öppet med köket samt badrum. Från flera rum skymtar sjön och den grönskande trädgården.
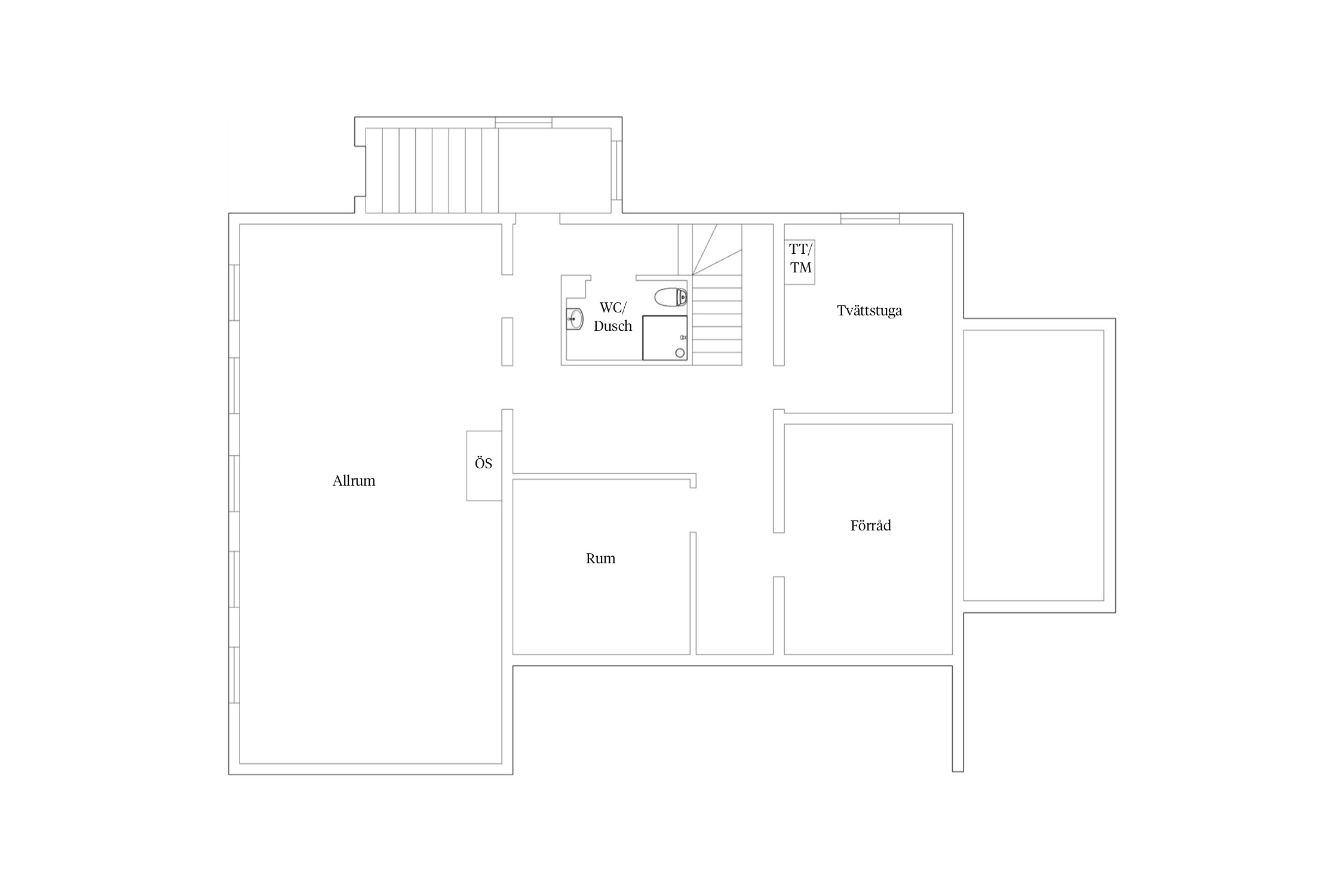
I det generösa källarplanet finns ett stort helkaklat allrum perfekt för mysiga filmkvällar eller tonårshäng, samt möjlighet att inreda ytterligare ett sovrum. Här finns även gott om förvaring, tvättstuga och ett extra badrum – praktiskt och bekvämt för hela familjen. Möjlighet med egen ingång att skapa en egen lägenhet.
Den lättskötta trädgården bjuder in till både avkoppling och umgänge. Här finns altan, uterum och ett rymligt nyrenoverat garage på ca 45 kvm med egen smörjgrop – perfekt för dig som gillar bilar, hobbyprojekt eller bara vill ha extra utrymme.
Badstigen har fått sitt namn av den lilla vägen som förr ledde ner till badbryggan vid sjön. Idag är gatan en stillsam återvändsgränd, men bryggan och badplatsen nås fortfarande enkelt via en kort promenad från huset.
Ett välplanerat och flexibelt boende som passar både den lilla familjen och den som behöver extra utrymme – här bor du lugnt och naturnära, med närhet till både sjö och service.
Varmt välkommen på visning – kanske är detta ditt nästa hem!
Hall
Via det inglasade uterummet når man hallen. Här finns plats att hänga av ytterkläder. Golvet har klinkers och väggarna är kaklade.
Vardagsrum
Rymligt vardagsrum med plats för både soffa och matbord, i rummets centrum finns en vedkamin. Golvet har laminat i vitt och väggarna är tapetserade. Här finns även utgång till trädäcket i sydöst med härligt utsikt mot sjön. Vardagsrummet ligger öppet med köket som har gjort en omfattande ombyggnad senaste åren där det öppnats upp och byggt till köket.
Rymligt kök med nyare vitvaror.
Badrum
Nytt helkaklat badrum
Sovrum
Väl tilltaget sovrum som tidigare var avgränsat till två mindre rum. Golvet har laminat och väggarna är tapetserade.
Sovrum
Det mindre av sovrummen har även detta ett laminatgolv och tapetserade väggar.
Källarplan, Badrum
Direkt nedanför trappen till källaren finns ett helkaklat badrum. Här finns dusch, toalett och handfat med kommod.
Källarplan, Rum
Rum som idag används som sovrum men kan även användas som förråd eller hobbyrum.
Källarplan, Allrum
Stort härligt rum som kan användas som egen avdelning/lägenhet med vedkamin. Kakel både på golv och väggar.
Källarplan, Tvättstuga
Kaklad tvättstuga här finns möjlighet att återställa tvättsuga.
Källarplan
I källaren finns även två förrådsutrymmen.



Bottenvåning
Källarvåning
Komministern 5
*Areauppgifter enligt taxeringsinformationen
2024 Tilläggsisolerat vind
2024 Renoverat badrum
2024 Garaget renoverat med smörjgrop
2024 Ny dränering
2022 Kök bitvis renoverat,
2022 Kaklat väggar i källaren mm
Kommunalt vatten, Kommunalt avlopp.
Tomtindelning (1965-08-11) Stadsplan (1963-03-07)
Fiber
Fiber
Det finns 9 st pantbrev uttagna om sammanlagt 1 785 000 kr
Goda kommunikationsmöjligheter, ett rikt kultur- och fritidsliv samt vacker skiftande natur har gjort Höör till en mycket eftertraktad kommun att bo i. Kommunen sträcker sig från Norra Rörum och Tjörnarp i norr till Gudmundtorp i söder. I väster ligger Hallaröd och Munkarp, dessutom ingår Bosjökloster och Höörs tätort i området.
För den som vill bo lantligt men ändå ha nära till storstadens puls är Höör ett utmärkt alternativ, Öresundsregionen ligger bara en knapp timmes tågresa bort. Var du än bor i kommunen har du nära till bad och till fina strövområden. Ett besök på Bosjökloster golfklubb kan också rekommenderas. Även kulturlivet i kommunen är aktivt och Höör är ett centrum för musik.
Även handeln bjuder på rik variation. Höör är en blomstrande småföretagarkommun med turism och hälsa som profilnäringar. Här kan du shoppa i mysiga små butiker i centrum eller köpa färska gourmetprodukter hos gårdshandlare.
I Höörs kommun finns populära turistmål som skid- och friluftsanläggningen Frostavallen, Skånes djurpark och Bosjökloster Slott. I Ringsjön ligger också halvön Lillö där man funnit vulkanrester. Lillön är även känd för sitt naturreservat med jätteaspar.
Vill du köpa, sälja eller värdera bostad i Höörs kommun? Kontakta Bjurfors mäklare i Höör! Passa också på att anmäla dig till vår kostnadsfria söktjänst Boagenten som hjälper dig att hitta ditt drömboende.
Kontakta mäklaren om du behöver hjälp att ta fram en boendekalkyl.
När du köper din bostad genom Bjurfors kan du ansöka om bolån till en förmånlig ränta hos våra banksamarbetspartners Söderberg & Partners och SEB.
Ansvarig mäklare