-
Köpa
Köpa -
Sälja
Sälja - Hitta bostad
- Skapa bevakning
- Hitta mäklare
Charmig villa med generös utemiljö, ljusa rum och plats för hela familjen.
Everöd, Kristianstad
*Areauppgifter enligt taxeringsinformationen
Bokade visningar. Vänligen kontakta mäklaren för att boka tid.
På Förhand ligger bostäder som av olika anledningar inte är ute till försäljning just nu men som kan komma att säljas om förutsättningarna är rätt.
Ett hemtrevligt boende med ljusa sociala ytor, flera sovrum, uteplats under tak och gott om plats för fordon, fritidsintressen och framtidsplaner.
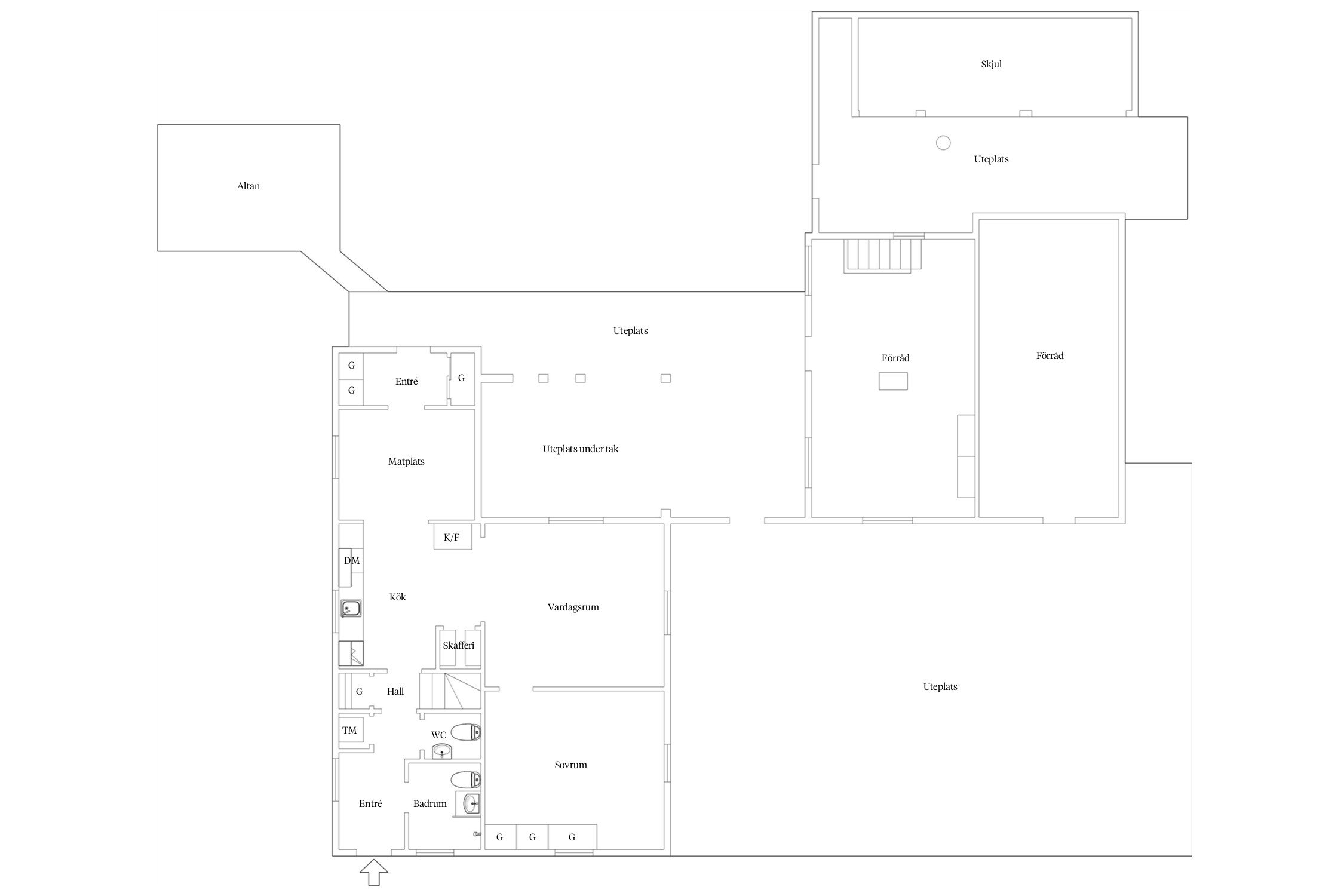
Redan när man svänger in på den generösa uppfarten vid Stora vägen 45 möts man av en fastighet som erbjuder något utöver det vanliga. Här finns gott om yta för flera fordon, vilket gör bostaden särskilt attraktiv för familjen med flera bilar, husbil, släp, arbetsfordon eller för den som driver en mindre verksamhet och behöver praktiska ytor i anslutning till hemmet. Förmedlingen avser även fastigheten intill, vilket ytterligare förstärker känslan av rymd, flexibilitet och framtida möjligheter.
Utemiljön är en av bostadens tydliga styrkor. Den öppna gårdsbilden ger ett luftigt och välkomnande intryck, samtidigt som tomten ramas in av grönska och skapar en behaglig känsla av avskildhet. Här finns plats för barnens lek, sociala sammankomster, odling eller andra intressen som kräver utrymme. Den stora uppfarten knyter samman bostadshuset med de praktiska förrådsbyggnaderna och ger fastigheten en funktionell karaktär där vardagens behov enkelt kan mötas.
På baksidan väntar en trivsam uteplats under tak, perfekt för sommarens måltider, fikastunder eller lugna kvällar även när vädret är mer omväxlande. Intill finns en altan som skapar ytterligare en social yta, mer privat placerad och väl lämpad för grillkvällar, loungemöbler eller avkoppling i solen. I direkt anslutning till uteplatsen finns förråd som ger goda förvaringsmöjligheter för trädgårdsredskap, utemöbler, cyklar eller verksamhetsrelaterad utrustning. Kombinationen av uteplats, altan, förråd och stora fria ytor gör att bostaden erbjuder en ovanligt praktisk och användbar utemiljö.
Via huvudentrén kliver man in i en välkomnande hall med goda avhängningsmöjligheter. Här finns plats för ytterkläder, skor och vardagens tillhörigheter, vilket ger ett ordnat och funktionellt första intryck. Bostaden präglas invändigt av ett ljust och behagligt uttryck, där väggar, golv och materialval samspelar på ett harmoniskt sätt. Direkt till höger från entrén nås badrum, praktiskt placerat för både familj och gäster.
Vidare in i bostaden öppnar planlösningen upp sig mot kök, matplats och vardagsrum. Köket har en naturlig placering i hemmet och erbjuder god kontakt med den intilliggande matplatsen. Här finns utrymme för familjens vardagsmåltider, läxläsning vid bordet och middagar med vänner. Matplatsen får ett fint ljusinsläpp och blir en självklar samlingspunkt i bostaden.
Vardagsrummet är rymligt, trivsamt och lättmöblerat. Här finns plats för en större soffgrupp och naturliga ytor för umgänge, filmkvällar och avkoppling. Rummets ljusa karaktär förstärks av stora fönsterpartier, samtidigt som stilfulla detaljer skapar en varm och ombonad känsla. Intill vardagsrummet ligger bostadens Master bedroom, ett rofyllt sovrum med bra placering och närhet till hemmets sociala delar. Rummet lämpar sig väl som föräldrarnas privata del, med plats för dubbelsäng och förvaring.
Bostaden erbjuder dessutom flera sovrum på övre plan, vilket gör planlösningen särskilt väl anpassad för barnfamiljen. Här finns möjlighet till barnrum, gästrum, arbetsrum eller hobbyrum beroende på familjens behov. Den praktiska planlösningen ger flexibilitet över tid och gör att huset kan anpassas efter olika livsskeden.
Förbi kök och matplats nås groventrén, en mycket uppskattad funktion i ett familjehem. Här finns en praktisk väg in från trädgård och uteplats, perfekt efter lek utomhus, trädgårdsarbete eller när man kommer hem med matkassar. Groventrén binder på ett naturligt sätt samman husets inomhusmiljö med de generösa utemiljöerna.
Stora vägen 45 är sammanfattningsvis ett hem för den som söker mer än bara en bostad. Här erbjuds en ljus och trivsam villa med välplanerade rum, flera uteplatser, goda förvaringsmöjligheter och ovanligt generösa ytor utomhus. En fastighet som passar familjen som vill växa, leva och utvecklas – med plats för både vardag, arbete, fritid och framtida drömmar.
Varmt välkommen att uppleva möjligheterna på plats.



Lyngby 20:26
*Areauppgifter enligt taxeringsinformationen
Huset förvärvades 2021 av nuvarande ägare.
- Väggen mellan kök och vardagsrum har öppnats upp, nytt kök har utförts, en del golv har bytts ut och nya fönster har monterats.
- Husets takbeklädnad av eternit är äldre men har rengjorts och målats 2022. Osäkert årtal på takpapp och gummiduk.
- Wc/dusch och gästtoalett har renoverats i egen regi med hjälp av fackman. Kvalitetsdokument finns ej.
Kommunalt vatten, Kommunalt avlopp.
Byggnadsplan (1965-10-26)
Fiber
*Preliminärt
Det finns 4 st pantbrev uttagna om sammanlagt 1 062 000 kr
Sydväst om Kristianstad breder bokskogarna ut sig avbrutna av ett öppet odlingslandskap. Här ligger flera orter med ett bekvämt avstånd till såväl Kristianstad som Hanöbuktens vita stränder. Flera av samhällena och byarna är bruksorter från 1800-talet eller gamla stationssamhällen. Här livet lite tryggare och skolorna små.
Tollarp har 3 400 invånare och ligger omfamnad av Linderödsåsens vilda natur. Vramsån slingrar sig genom skir bokskog och rinner rakt igenom samhället. Service, skolor och kommunikationer är väl utbygga. Tollarp har flera stora arbetsgivare och är en av kommunens sex basorter med utbyggd service.
Degeberga med 1 300 invånare har medeltida rötter som tingsställe och handelsplats. Samhället är känt för sina natursköna omgivningar. Degeberga backar lockar turister precis som naturreservatet kring Skånes högsta vattenfall Forsakar. Bra service och skolor som en av kommunens basorter.
Andra populära orter sydväst om Kristianstad är Gärds Köpinge, Vittskövle, Östra Sönnarslöv och Everöd där Kristianstad Airport ligger.
En av fördelarna är självklart närheten till Kristianstad – som mest bara någon enstaka mil bort. Där finns arbetstillfällen, högskola och fullt utbyggd service. Stadens handelstraditioner är starka. Du hittar två stora köpcenter och alla betydande handelskedjor. Kristianstad har även ett rikt kultur-, nöjes- och restaurangliv samt stolta idrottstraditioner.
Vill du köpa, sälja eller värdera bostad i Everöd? Kontakta Bjurfors mäklare i Kristianstad! Passa också på att anmäla dig till vår kostnadsfria söktjänst Boagenten som hjälper dig att hitta ditt drömboende.
Kontakta mäklaren om du behöver hjälp att ta fram en boendekalkyl.
När du köper din bostad genom Bjurfors kan du ansöka om bolån till en förmånlig ränta hos våra banksamarbetspartners Söderberg & Partners och SEB.
Bokade visningar. Vänligen kontakta mäklaren för att boka tid.
Ansvarig mäklare