-
Köpa
Köpa -
Sälja
Sälja - Hitta bostad
- Skapa bevakning
- Hitta mäklare
Charmig och ljus bostadsrätt i centralt läge – nära allt!
Kristianstad - Centrum, Kristianstad
*I månadsavgiften ingår värme, VA, fastighetsskötsel samt sophämtning.
**Enligt bostadsrättsföreningens mäklarbild/utdrag ur lägenhetsregister
Bokade visningar. Vänligen kontakta mäklaren för att boka tid.
Centralt belägen bostadsrätt nära centrum, affärer, restauranger, kollektivtrafik och park.
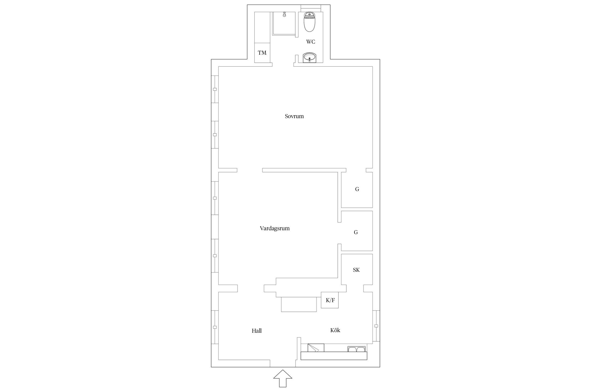
Välkommen in i denna ljusa och charmiga bostadsrätt, där du direkt möts av en inbjudande hall. Från hallen leder en praktisk gångväg vidare till lägenhetens hjärta – ett funktionellt kök. Här har du gott om plats att förbereda måltider och samtidigt njuta av det naturliga ljuset som strålar in genom fönstret.
Från köket öppnar sig det stora och luftiga vardagsrummet, där ett generöst ljusflöde ger en härlig känsla av rymd. De stora fönstren släpper in dagsljuset och skapar en trivsam atmosfär, perfekt för både avkoppling och sociala tillfällen. Här finns gott om plats för både soffa och matplats, och rummet erbjuder en naturlig känsla av sammanhang för den som älskar att umgås eller koppla av i en lugn miljö.
Från vardagsrummet nås sovrummet, som är både rymligt och rofyllt. Här kan du skapa ditt eget privata utrymme för avkoppling, med gott om plats för en stor säng och förvaring. Det stora fönstret bidrar även här till ett behagligt ljusflöde, och den lugna känslan i rummet gör det till en perfekt plats för vila.
Vidare från sovrummet når du det fräscha badrummet, utrustat med både tvättmaskin och torktumlare – en praktisk lösning för att göra vardagen enklare. Badrummet har en modern känsla med stilrena materialval, och det finns gott om utrymme för både dusch och förvaring.
Lägenheten bjuder på en genomtänkt planlösning där varje kvadratmeter är väl utnyttjad. Kombinationen av ljus, funktionalitet och de stilrena detaljerna gör detta till ett perfekt hem för den som söker ett bekvämt och praktiskt boende i ett av stadens mest attraktiva lägen. Här har du nära till allt – från shopping och restauranger till grönområden och kollektivtrafik.
Välkommen på visning!



Hovrätten 3
*Ingen hiss
**Enligt bostadsrättsföreningens mäklarbild/utdrag ur lägenhetsregister
I månadsavgiften ingår värme, VA, fastighetsskötsel samt sophämtning.
Finns parkeringsmöjligheter i området.
Bostadsrättens indirekta nettoskuldsättning baseras på föreningens skulder/lån minus föreningens räntebärande tillgångar och likvida medel. Beräkningen är gjord och baseras enbart på den senaste tillgängliga årsredovisningen. För mer information kontakta ansvarig fastighetsmäklare.
*Betalas av köpare
Bostadsrättsföreningen Västra Storgatan 3 bildades 2018. Föreningen äger fastigheten Hovrätten 3. Huset som ursprungligen byggdes 1880 har de senaste åren genomgått stora renoveringar.
Ekonomisk förvaltare är HSB.
Köparen/köparna måste vara medlemmar i HSB innan beslut om medlemskap i föreningen tas.
Ansökan om medlemskap görs på https://blimedlem.hsb.se/
Föreningen höjde avgiften med 10% 2025-01-01. Föreningen höjde avgiften med 5% 2026-01-01. Inga avgiftshöjningar är planerade i nuläget (kontrollerat 2026-02-25).
Föreningen har ett gemensamt vattenabonnemang som läses av varje månad.
Fastigheten är fullvärdesförsäkrad i Länsförsäkringar Göinge-Kristianstad. I försäkringen ingår styrelseansvar. Hemförsäkring tecknas och bekostas individuellt av bostadsrättsinnehavarna, kollektivt bostadsrättstillägg ingår i föreningens fastighetsförsäkring
Utförda renoveringar:
2019 Installation av porttelefon
2020 Dränering av källare
2021 Målning av tak, installerat fiber
2024 Statuskontroll av alla lägenheter, OVK.
2025 Undersökt möjligheten till renovering/restaurering av trappa
Planerade renoveringar:
2026 Byte av fjärrvärmecentral
Kommande: Underhåll av fasad (baksida). Undersöka möjligheten till byte av radiatorer.
Föreningen följer en underhållsplan som uppdateras efter hand (Kontrollerat 2026-02-25).
Finns parkeringsmöjligheter i området.
Fiber. Man tecknar eget bredband samt TV.
Föreningen har två stycken innergårdar med gemensamma möbler.
Föreningen har ett cykelförråd som är beläget utomhus.
Till varje lägenhet hör ett källarförråd.
Alla lägenheter har egen tvättmaskin och torktumlare.
Juridisk person som köpare måste diskuteras.
Information som berör föreningen är inhämtad via årsredovisning, stadgar och kontakt med föreningen. Avvikelser kan förekomma och som köpare uppmanas du att själv kontrollera samtliga uppgifter, framförallt om något är av extra stor betydelse för dig som köpare.
Kristianstad ligger omfamnad av vildmark, sjöar, skir bokskog och kustnära natur. Stadskärnan präglas av breda sekelskiftesboulevarder, grönskande parker, gågator och torg. Här förenas den stora handelsstadens alla möjligheter med småstadens sköna atmosfär.
Stadens handelstraditioner är starka och det strategiska läget har gjort Kristianstad till något av en huvudstad för denna del av landet. Innerstadens galleria lockar många besökare precis som det nybyggda köpcentrumet C4. Där andra gamla garnisonsstäder tvingats till reträtt har Kristianstad tvärtom utvecklat ett ständigt växande näringsliv.
Kvällssolen faller mjukt över stadens gågator. Atmosfären en varm sommarkväll känns nästan lite kontinental. Ibland kallas staden faktiskt för Lilla Paris. Varför inser du när du strosar på de breda, grönskande boulevarderna, kantade av ståtliga sekelskiftepalats. Helge å är stadens blygsamma svar på Seine, där den rinner längs den lummiga Tivoliparken.
Den klassiska Tivoliparken är stadens berömda stadspark. Parken lever från tidiga hundpromenader och picknickluncher under höga trädkronor, till eftermiddagarnas brännbollsspel och kvällarnas nöjesarrangemang. Mitt i stan ligger också det aktiva kulturkvarteret med teater, konserter, muséer, bibliotek mm.
Kristianstad ligger mitt i Vattenriket. De omgivande våtmarkerna, med bland annat Sveriges lägsta punkt, erbjuder unika biotoper samt frilufts- och vildmarksliv. Vattenrikets fascinerande besökscentrum Naturum ligger i centrum och har blivit en av stadens främsta turistattraktioner. Till vattenriket hör självklart även kommunens 4,2 mil långa kust – till Åhus klassiska stränder har du exempelvis bara en kvart i bilen.
Att bo och leva i Kristianstad gör livet enkelt. Du har absolut närhet till skolor för alla åldrar och all tänkbar service. Kristianstad är en aktiv och sportintresserad stad som kretsar mycket runt den nybyggda arenan och stolta handbollstraditioner. Det strategiska läget vid E22:an placerar dig på Öresundsbron eller en bra bit upp i landet på under en timme.
Vill du köpa, sälja eller värdera bostad i Centrala Kristianstad? Kontakta Bjurfors mäklare i Kristianstad! Passa också på att anmäla dig till vår kostnadsfria söktjänst Boagenten som hjälper dig att hitta ditt drömboende.
Kontakta mäklaren om du behöver hjälp att ta fram en boendekalkyl.
När du köper din bostad genom Bjurfors kan du ansöka om bolån till en förmånlig ränta hos vår samarbetspartner SEB.
Bokade visningar. Vänligen kontakta mäklaren för att boka tid.
Ansvarig mäklare