-
Köpa
Köpa -
Sälja
Sälja - Hitta bostad
- Skapa bevakning
- Hitta mäklare
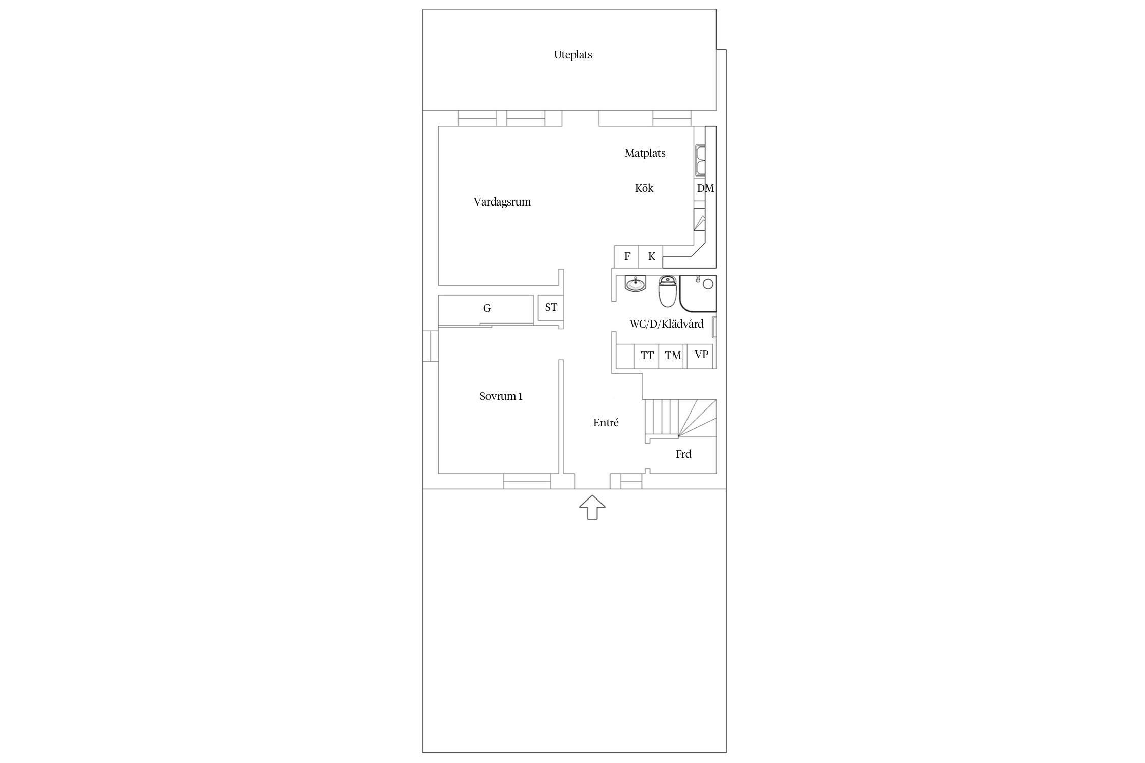
Stilrent radhus i trivsamt kvarter med utsikt över åkrar och hagar.
Öllsjö, Kristianstad
*Obligatoriska avgifter utöver månadsavgiften: - Gemensamt vattenavtal som kostar 350 kr/mån enligt schablon. Verklig kostnad stäms av mot förbrukning 2 ggr/år. - Bostadsrättstillägg 30 kr/mån.
**Enligt bostadsrättsföreningens mäklarbild/utdrag ur lägenhetsregister
Fyll i formuläret nedan så hjälper vi dig!



De västra delarna av Kristianstad präglas av öppet jordbrukslandskap, lövskogsängar, djupa bokskogar och inslag av ren vildmark. Trakten är känd för sina natursköna omgivningar. Här ligger flera bostadsområden bara några kilometer utanför stan, samt flera tätorter och byar med bara en dryg mil in till city.
Öllsjö, Vä och Skepparslöv ligger alla cirka åtta kilometer från city. Öllsjö är ett trivsamt bostadsområde nära skog och natur och med service, skola och bra kommunikationer. Detsamma gäller Vä som dessutom har en rik och dramatisk historia. Vä var en betydelsefull stad på 1200-talet men brändes ner flera gånger under medeltiden. Även Skepparslöv har medeltida historia som viktig försvarsanläggning under 1600-talet. Samhället ligger vid foten av Nävlingeåsen med en enastående utsikt över slätten.
I Önnestad ligger stationen mitt i samhället. Här stannar Pågatågen mellan Malmö och Karlskrona. Önnestad är en av kommunens sex basorter med utbyggd service och bra kommunikationer. Utöver skolan med åk 0–9 och ett naturbruksgymnasium finns här Sveriges äldsta folkhögskola.
Vinslöv är den största tätorten väster om Kristianstad med sina 4 100 invånare. Vinslöv växte fram som stationssamhälle i mitten på 1800-talet och även här stannar Pågatågen med flera förbindelser till bland annat Malmö, Kristianstad och Helsingborg. Samhället har väl utbyggd service och flera skolor. Vinslöv har ett livligt idrotts-, kultur- och föreningsliv.
Närheten och snabba kommunikationer till Kristianstad betyder mycket för dessa orter. Där finns arbetstillfällen, högskola och fullt utbyggd service. Stadens handelstraditioner är starka. Du hittar två stora köpcenter och alla betydande handelskedjor. Kristianstad har även ett rikt kultur-, nöjes- och restaurangliv samt stolta idrottstraditioner.
Vill du köpa, sälja eller värdera bostad i Öllsjö? Kontakta Bjurfors mäklare i Kristianstad! Passa också på att anmäla dig till vår kostnadsfria söktjänst Boagenten som hjälper dig att hitta ditt drömboende.
Ansvarig mäklare