-
Köpa
Köpa -
Sälja
Sälja - Hitta bostad
- Skapa bevakning
- Hitta mäklare
Familjevilla med hög boendestandard
Bjärred - Centralt, Lomma
*Areauppgifter enligt taxeringsinformationen
På Förhand ligger bostäder som av olika anledningar inte är ute till försäljning just nu men som kan komma att säljas om förutsättningarna är rätt.
Välkommen till denna stilrena familjevilla med hög boendestandard och med trädgård i bästa sydväst läge! Barnvänliga kvarter centralt i Bjärred.
Välkommen till Myntavägen 12 i Bjärred, en stilren och modern familjevilla belägen i ett barnvänligt och centralt läge! Detta friliggande hus från 2003 erbjuder 121 kvm boarea på en lättskött tomt om 301 kvm och har genomgående hög boende standard. Med vattenburen golvvärme på bottenvåningen, en ny ventilerad fasad från 2015, uppdaterad interiör samt en välplanerad planlösning är detta ett hem som kombinerar komfort, stil och funktionalitet.
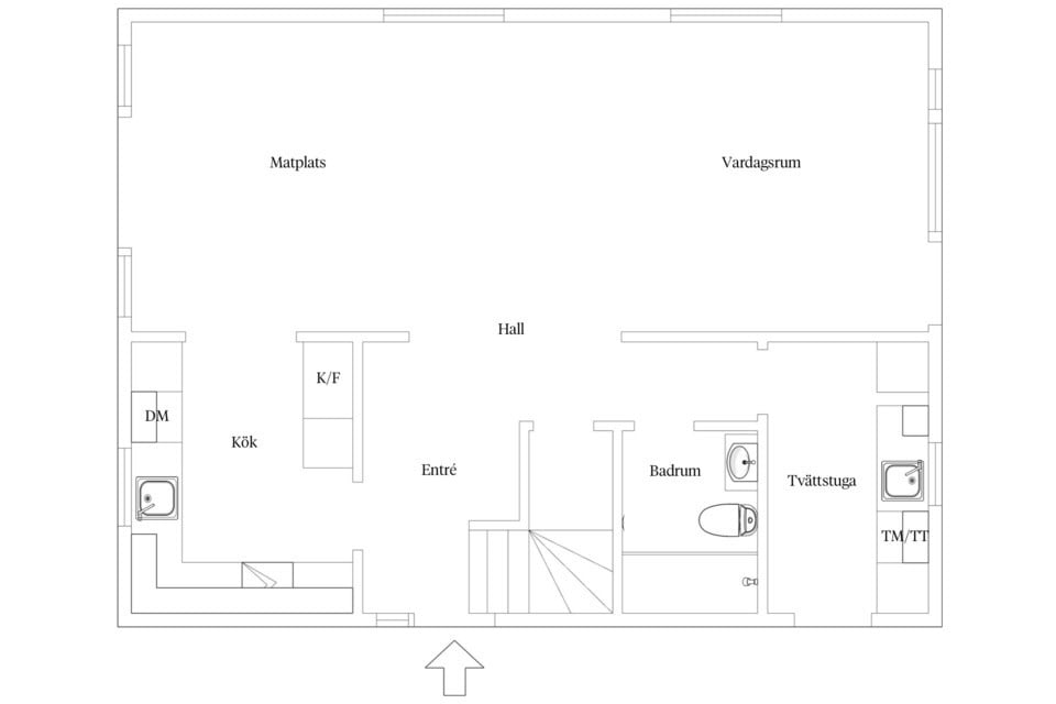
Vid entrén möts du av en välkomnande hall med gott om plats för avhängning. Direkt till vänster ligger det fullutrustade köket som erbjuder bra arbetsytor, generös förvaring och en stor matplats där hela familjen kan samlas. Härifrån når du en uteplats i öster, perfekt för morgonkaffet i solen. Vidare in i huset öppnar vardagsrummet upp sig i en ljus och trivsam atmosfär med stora fönsterpartier som släpper in rikligt med ljus. Här finns plats för både soffgrupp och sociala ytor. Från vardagsrummet kliver du ut i den härliga trädgården i väster, där ett stort trädäck breder ut sig, en perfekt plats för sommarens grillkvällar och middagar utomhus. Här finns även ett lyxigt utespa som förhöjer boendekvaliteten ytterligare. En fjärrstyrd markis ger skugga under soliga dagar, och den lummiga och insynsskyddade trädgården ger en känsla av avskildhet. På husets södra sida finns en generös gräsyta, idealisk för barnens lek, en studsmatta eller en fotbollsplan för de aktiva i familjen.
Entréplanet rymmer också ett helkaklat badrum med dusch samt en praktisk tvättstuga med groventré, en smidig lösning för vardagens bestyr.
En stilren trappa leder upp till den övre våningen där en installerad AC för att säkerställa en behaglig temperatur året om. Här finns två rymliga sovrum med smarta förvaringslösningar och har en härlig takhöjd som förstärker känslan av rymd och ljus. Allrummet är både rymligt och ljust. Vid behov av ett sovrum till kan man med lätthet göra ett sovrum till. Tidigare ägare hade avdelat allrummet med en elegant industriglasvägg och som nuvarande ägare har kvar och ingår i köpet av huset. På ovanvåningen finns också en praktisk klädkammare och plats för en arbetsplats vid trappan, en perfekt hörna för dig som jobbar hemifrån. Det helkaklade badrummet med badkar gör denna våning komplett.
Utöver bostadens inre kvaliteter erbjuder huset även en carport med tillhörande förråd, vilket ger gott om plats för bil och förvaring av trädgårdsredskap eller fritidsutrustning.
Läget på Myntavägen 12 är svårslaget, här bor den moderna familjen mycket bra centralt i Bjärred med promenadavstånd till skolor, förskolor, matbutiker och service. Kommunikationen till både Lund och Malmö är utmärkt, vilket gör området idealiskt för både barnfamiljer och pendlare. Bjärred är en idyllisk ort med närhet till havet, vackra promenadstråk och ett aktivt föreningsliv som ger en hög livskvalitet.
Ett välplanerat och inflyttningsklart hem i ett eftertraktat område. Välkommen på visning!



Entréplan
Övre plan
Bjärred 9:16
*Areauppgifter enligt taxeringsinformationen
Under 2025–2026 har ett flertal renoveringar och uppdateringar genomförts. Väggarna har slät spacklats och målats, taket har målats om, och alla fönster och ytterdörrar har målats invändigt. Trappan, lister och karmar har också målats. Innerdörrarna har sprutlackerats och kompletterats med nya handtag, och ytterdörren har uppgraderats med ett elektroniskt kodlås från Yale Doorman. Nya vägg- och tak uttag samt nya fösterventiler har installerats. Golven har slipats och behandlats, och hallen samt köket har fått nytt klinkergolv.
Köket har dessutom genomgått en total uppfräschning med ny bänkskiva, vask och blandare, stilrent stänkskydd i samma klinker som golvet, nya handtag samt uppgraderad mikro och ugn.
Tidigare år har huset genomgått flera betydande uppgraderingar. År 2024 installerades en luft-luftvärmepump med både kyl- och värme funktion för komfort året runt. Samma år målades även förråd och carport om, och träpanelen på förrådet byttes ut.
2022 tillfördes ett SPA-bad, 2021 installerades en ny frånluftsvärmepump (IVT), och 2015 fick fastigheten en ny ventilerad fasad.
Förråd och carport.
Uteplats 1: Trädäck med spabad och fjärrstyrd terrassmarkis, läge sydväst.
Uteplats 2: Stenlagd på framsidan, läge nord/ost.
Kommunalt vatten, Kommunalt avlopp.
Insynsskyddad och lättskött hörntomt med staket och häckar.
Carport och uppfart med plats för för två bilar.
Detaljplan (2001-04-09) Fornlämning (1 st)
Gemensamhetsanläggning: Lomma bjärred ga:18 ändamål: Vägar, Vattenförsörjning, Avloppsanläggning, Radio- TV och/eller tele, Elledning och/eller belysning, Grönområden, Garage och/eller parkering
Samfällighet: Lomma bjärred s:29
Last: Ledningsrätt Avlopp, 1262-552.6
Last: Ledningsrätt Starkström, 1262-552.4
Last: Ledningsrätt Tele, 1262-552.3
Last: Officialservitut Utrymme, 1262-552.1
I driftkostnad för hushållsel ingår i driftkostnad för uppvärmning. I driftkostnader för samfälligheten ingår VA och avsättning till gemensam el samt reparationsfond. Driftkostnaderna är beräknade enligt nuvarande ägares avtal och kan variera för nästa ägare.
Det finns 5 st pantbrev uttagna om sammanlagt 6 120 000 kr
Bjärred är en tätort i Lomma kommun drygt en mil väster om Lund. Bjärred delas in i tre områden; den norra delen Löddenäs, Centrum och den södra delen som kallas Gamla Bjärred.
Längs stranden i Löddenäs finns ett naturreservat med det så kallade Gyllins ängar. I detta ängsområde finns bland annat ett fågeltorn samt den natursköna Trollsjöparken. Parken är ett mycket populärt ställe för rekreation och omtyckt lekområde för barn från skolor och förskolor i närheten. Området söder om parkallén är bebyggt med villor, medan den norra delen har förblivit en naturpark. Här finns planteringar kvar från den ursprungliga parken, främst bok som nu utgör ett ståtligt bestånd. Vissa av träden är över hundra år gamla.
Bjärred var från början en badort som hörde till Lund. Under slutet av 1800-talet byggdes här restaurang och hotell. I Bjärred finns också en av Sveriges längsta badbryggor med ett fint kallbadhus. I badhuset kan man förutom att bada eller svettas i bastun även besöka den fina restaurangen och vissa dagar också få musikunderhållning under måltiden.
I Borgeby finns Borgeby slott som har sitt ursprung i en av vikingakungen Harald Blåtands så kallade trelleborgar. Under medeltiden var Borgeby en av ärkebiskopen av Lunds borgar men vid reformationen kom det i privat ägo. I dag ägs slottet av en stiftelse och här finns ett museum över de förra ägarna Hanna Larsdotter och hennes make, konstnären och författaren Ernst Norlind. Strax söder om slottet ligger Borgeby kyrka.
Berga kyrka ligger mitt inne i Bjärred. Kyrkan invigdes i mitten av 1970-talet och den är skapad av Bengt och Kristina Hellborg i ren stram arkitektur. Den är byggd helt i naturmaterial och räknas till en av de förnämsta i nutid. I kyrkans inredning finns ett flertal mycket fina detaljer, bland annat ett krucifix från 1400-talet.
Vill du köpa, sälja eller värdera bostad i centrala Bjärred? Kontakta Bjurfors mäklare i Bjärred! Passa också på att anmäla dig till vår kostnadsfria söktjänst Boagenten som hjälper dig att hitta ditt drömboende.
Kontakta mäklaren om du behöver hjälp att ta fram en boendekalkyl.
När du köper din bostad genom Bjurfors kan du ansöka om bolån till en förmånlig ränta hos våra banksamarbetspartners Söderberg & Partners och SEB.
Ansvarig mäklare