-
Köpa
Köpa -
Sälja
Sälja - Hitta bostad
- Skapa bevakning
- Hitta mäklare
Renoverad oas
Bjärred - Gamla Bjärred, Lomma
*Areauppgifter enligt taxeringsinformationen
På Förhand ligger bostäder som av olika anledningar inte är ute till försäljning just nu men som kan komma att säljas om förutsättningarna är rätt.
Välkommen till en exklusiv familjevilla i hjärtat av gamla Bjärred – endast ett stenkast från havet.
På en av Bjärreds mest eftertraktade adresser finner du denna renoverade och mycket fräscha 1,5-plansvilla med en generös boyta om hela 249 kvm. Ett hem som kombinerar smakfull design, genomtänkta lösningar och ett fantastiskt läge nära hav, natur och byliv.
Villan uppfördes ursprungligen 1969 och byggdes till 2001. Under de senaste åren har huset renoverats löpande med stor omsorg och känsla för kvalitet. Resultatet är ett hem i mycket gott skick, både invändigt och utvändigt, med bland annat nytt kök, nya ytbeklädnader och nytt yttertak (Se bilagd renoveringslista).
Planlösningen erbjuder luftiga och sociala sällskapsytor med fint ljusinsläpp samt totalt 6 rum, varav 4–5 sovrum – perfekt för den större familjen eller för dig som önskar gott om plats för arbete och gäster.
Den insynsskyddade tomten om 1 096 kvm i soligt västerläge är något utöver det vanliga. Trädgården omgärdas av en vacker handgjord mur med unika detaljer och bjuder på flera härliga uteplatser, lummig grönska och en rofylld atmosfär – en sann oas för både vardag och fest.
På fastigheten finns även dubbelcarport samt ett isolerat förråd som ger gott om förvaringsmöjligheter.
Detta är ett hem som verkligen måste upplevas. Kontakta fastighetsmäklaren för visning!
Välkommen till denna renoverade och trivsamma familjevilla som är utmärkt belägen i Bjärreds gamla del ett stenkast från havet.
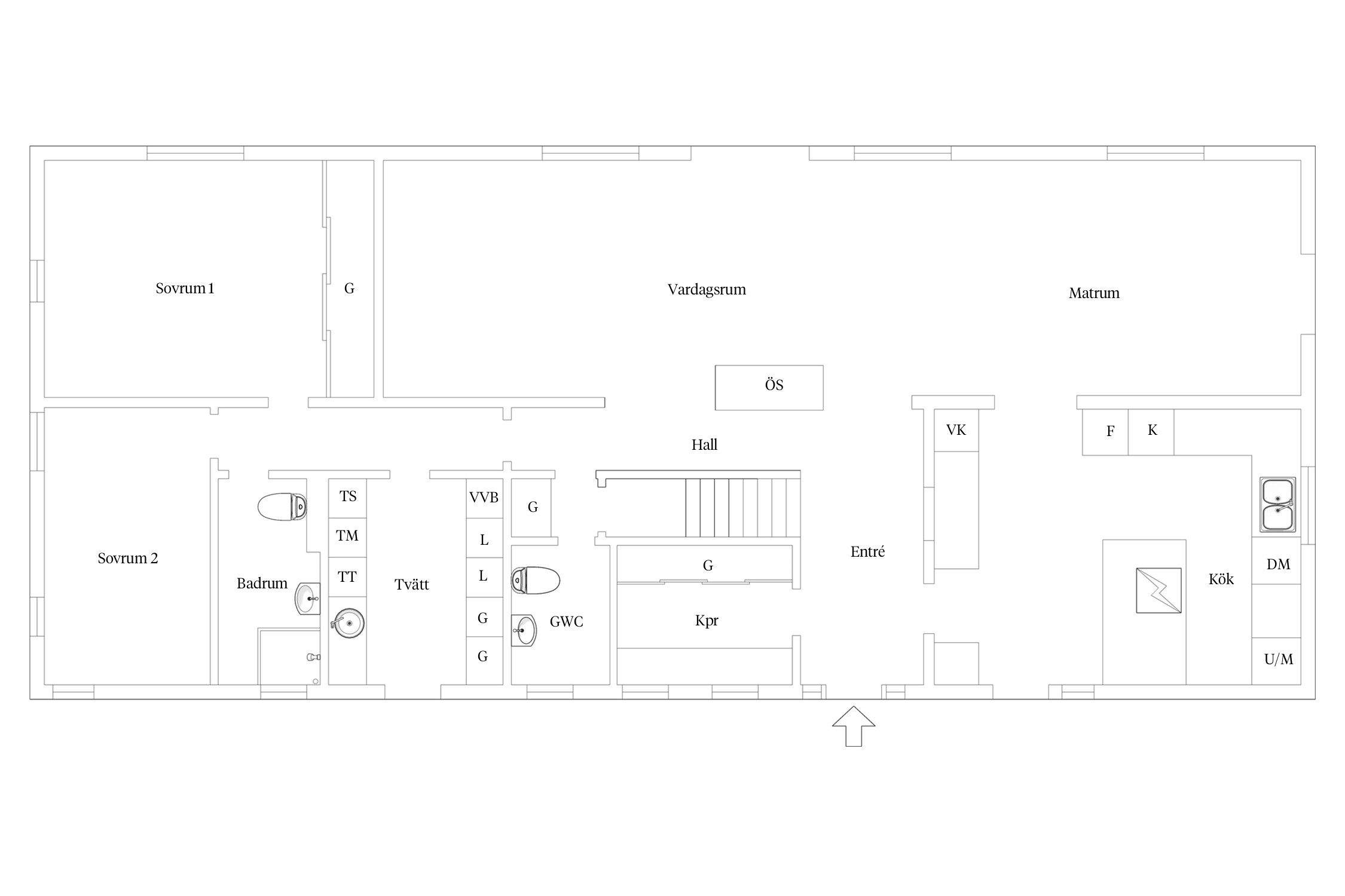
Entré/kapprum:
Ny entrédörr från Leksandsdörren. Golv av granitkeramik som har golvvärme, vitmålade väggar samt infällda spotlights i tak och fönstersmygar. Kapprummet har sittbänk och skjutdörrsgarderob från HTH med inredning från Ikea.
Kök:
En bit längre in till höger har vi det generösa och vackra köket som renoverades 2021. Inredning från HTH med bänkskivor i granitkomposit, maskiner från Siemens med undantag för vinkylen som är mQuvèè. Fiskbensmönstrad ekparkett, vitmålade väggar samt infällda spotlights i både tak och fönstersmygar. I köket finns utgång till framsidan.
Matrum/Vardagsrum:
Angränsande till köket finns det ljusa och luftiga vardagsrummet som har fönster och ny dubbeldörr ut till trädgård och uteplats i bästa syd/västläge. Generöst matrum för sällskapsmiddagar ligger i fil med vardagsrummet. Både vardagsrummet och matrummet har nylagd fiskbensmönstrad ekparkett och vitmålade väggar. Mysig etanoleldad braskamin som är fjärrstyrd.
Hall:
Hallen mitt i huset har fiskbensmönstrad ekparkett, vitmålade väggar och spotlights i taket.
Gäst-wc:
Kakel och klinker med golvvärme från 2001. Utrustningen som består av wc-stol, handfat med kommod och spegel är från 2021.
Badrum:
Kakel och klinker med golvvärme från 2001. Utrustningen som består av wc-stol, handfat med kommod, spegel, duschblandare och spotlights med Plejd är från 2021.
På entréplan finns två sovrum som båda har fiskbensmönstrad ekparkett, vitmålader väggar och spotlights i fönstersmygar. Det största sovrummet har garderober med skjutdörrar.
Tvättstugan, som har klinker med golvvärme och vitmålade väggar, är välutrustad. Här finns tvättmaskin (Miele 2021), torktumlare (Miele 2021), torkskåp ( Husqvarna 2001), städskåp, garderober, varmvattenberedare (2001), bänkskiva i laminat med tvättho samt grovingång.
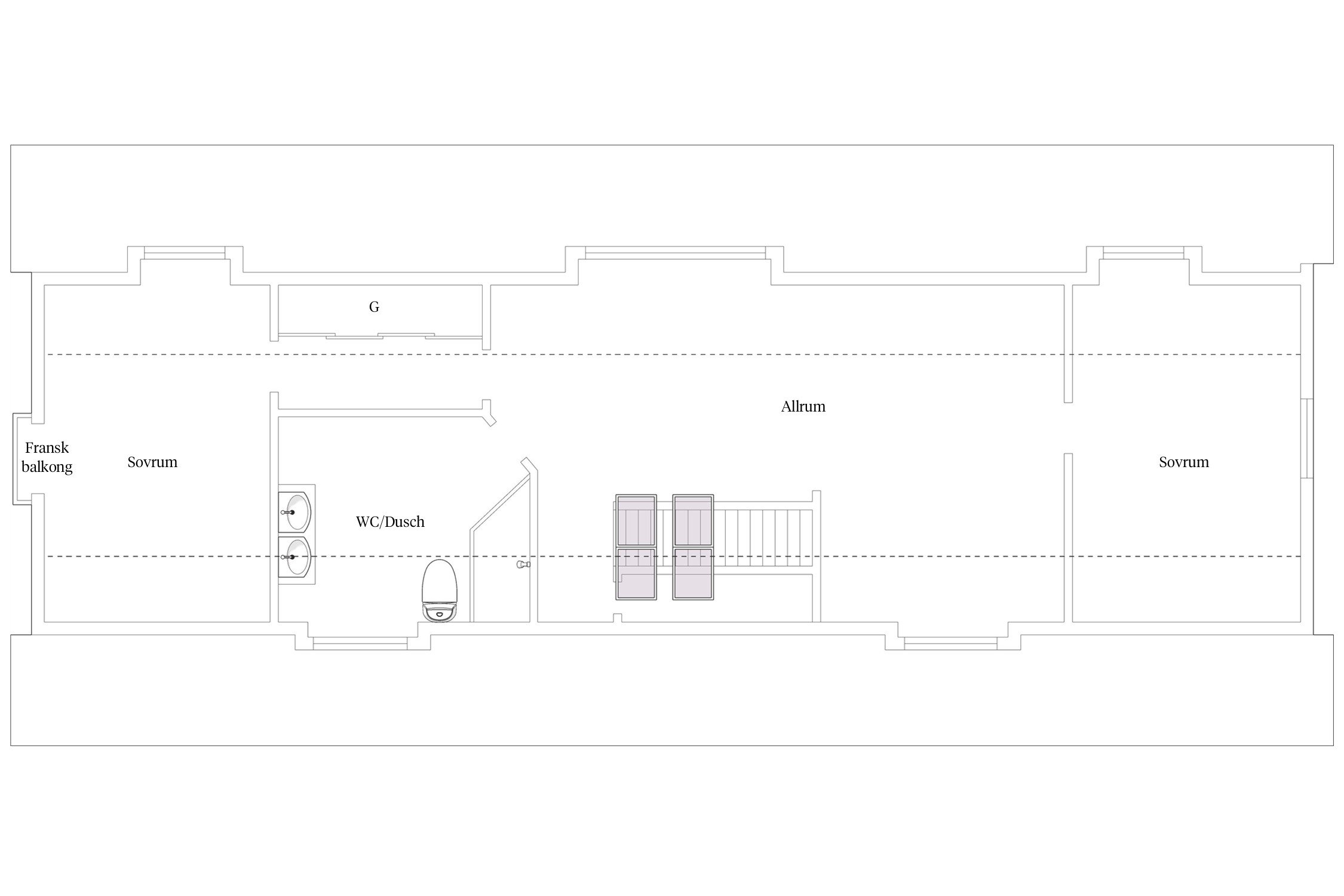
ÖVRE PLAN
Den snygga trappan med nytt räcke i plexiglas leder upp till ovanvåningen som består av att stort allrum, två stora sovrum och ett badrum.
Allrum:
Ett gigantiskt allrum som har öppet upp i nock och fyra takfönster mot öster över trappan. Mot väster finns ett stor takkupa med markis. Nyslipad Kährs ekparkett, vitmålade väggar och spotlights.
Sovrum söder:
Via en hall, som har garderober med skjutdörrar från HTH och inredning från Ikea, når man detta generösa sovrum som har nyslipad Kährs ekparkett, vitmålade väggar, en fransk balkong samt en fönsterkupa mot väster.
Sovrum norr:
Detta sovrum har öppet upp i nock, nyslipad Kährs ekparkett, fönster mot nor och en fönsterkupa mot väster där man skymtar havet.
Badrum:
Väldigt rymligt badrum som har kakel och klinker med golvvärme från 2001. Utrustningen som består av wc-stol, handfat med kommod, spegelskåp, extra stor spegel, duschblandare och handdukstork är från 2021. Fönsterkupa mot öster och infällda spotlights i taket.



Planlösning entréplan
Planlösning övre plan
Bjärred 17:15
*Areauppgifter enligt taxeringsinformationen
Se bilagd renoveringslista
Dubbelcarport med plats för två bilar samt isolerat förråd om 14,5 kvm.
Uteplats 1: Stenlagd med stor elektrisk terrassmarkis, läge syd/väst.
Uteplats 2: Stor pergola med trädäck, läge syd/väst.
Uteplats 3: Stenlagd, läge öster med morgonsol.
Kommunalt vatten, Kommunalt avlopp.
Härlig och insynsskyddad tomt i västerläge med vacker stenläggning som omgärdas av handgjord mur med vackra detaljer. Infart med fjärrstyrd grind och uppfart med plats för flera bilar.
Dubbelcarport med plats för 2 bilar. Stenläggning med plats för flera bilar.
Detaljplan (2005-06-09)
Förmån: Avtalsservitut Väg, 12-IM1-46/663.1
Förmån: Avtalsservitut Väg, 12-IM1-46/664.1
Avser infartsväg från Norra villavägen.
Fiber med öppet stadsnät via Kraftringen
I angiven uppvärmningskostnad ingår hushållsel. Total genomsnittlig elförbrukning de senaste fyra åren har varit 19 500 kwh/år.
Enligt överenskommelse
Det finns 11 st pantbrev uttagna om sammanlagt 7 467 498 kr
Bjärred är en tätort i Lomma kommun drygt en mil väster om Lund. Bjärred delas in i tre områden; den norra delen Löddenäs, Centrum och den södra delen som kallas Gamla Bjärred.
Längs stranden i Löddenäs finns ett naturreservat med det så kallade Gyllins ängar. I detta ängsområde finns bland annat ett fågeltorn samt den natursköna Trollsjöparken. Parken är ett mycket populärt ställe för rekreation och omtyckt lekområde för barn från skolor och förskolor i närheten. Området söder om parkallén är bebyggt med villor, medan den norra delen har förblivit en naturpark. Här finns planteringar kvar från den ursprungliga parken, främst bok som nu utgör ett ståtligt bestånd. Vissa av träden är över hundra år gamla.
Bjärred var från början en badort som hörde till Lund. Under slutet av 1800-talet byggdes här restaurang och hotell. I Bjärred finns också en av Sveriges längsta badbryggor med ett fint kallbadhus. I badhuset kan man förutom att bada eller svettas i bastun även besöka den fina restaurangen och vissa dagar också få musikunderhållning under måltiden.
I Borgeby finns Borgeby slott som har sitt ursprung i en av vikingakungen Harald Blåtands så kallade trelleborgar. Under medeltiden var Borgeby en av ärkebiskopen av Lunds borgar men vid reformationen kom det i privat ägo. I dag ägs slottet av en stiftelse och här finns ett museum över de förra ägarna Hanna Larsdotter och hennes make, konstnären och författaren Ernst Norlind. Strax söder om slottet ligger Borgeby kyrka.
Berga kyrka ligger mitt inne i Bjärred. Kyrkan invigdes i mitten av 1970-talet och den är skapad av Bengt och Kristina Hellborg i ren stram arkitektur. Den är byggd helt i naturmaterial och räknas till en av de förnämsta i nutid. I kyrkans inredning finns ett flertal mycket fina detaljer, bland annat ett krucifix från 1400-talet.
Vill du köpa, sälja eller värdera bostad i Gamla Bjärred? Kontakta Bjurfors mäklare i Bjärred! Passa också på att anmäla dig till vår kostnadsfria söktjänst Boagenten som hjälper dig att hitta ditt drömboende.
Kontakta mäklaren om du behöver hjälp att ta fram en boendekalkyl.
När du köper din bostad genom Bjurfors kan du ansöka om bolån till en förmånlig ränta hos våra banksamarbetspartners Söderberg & Partners och SEB.