-
Köpa
Köpa -
Sälja
Sälja - Hitta bostad
- Skapa bevakning
- Hitta mäklare
Välplanerad 4:a på attraktivt läge och med fantastisk utsikt
Lomma - Centralt, Lomma
*Enligt bostadsrättsföreningens mäklarbild/utdrag ur lägenhetsregister
Bokad visning.
På Förhand ligger bostäder som av olika anledningar inte är ute till försäljning just nu men som kan komma att säljas om förutsättningarna är rätt.
Välkommen till denna trevliga lägenhet på våning fyra. Här erbjuds bra planlösning och inglasad balkong i soligt västerläge. Hiss från markplan.
Välkommen till Strandvägen 25. Här erbjuds en ljus 4:a om 86,5kvm på 4:e våningen med hiss. Trevlig utsikt mot Höjeå och Strandstaden från vardagsrummet och balkongen. Inglasad balkong i soligt västerläge. Bostaden erbjuder en bra planlösning med två till tre rymliga sovrum med inbyggda garderober. Ett av sovrummen har även en Fransk balkong. Ljust vardagsrum med plats för flera möblemang. Äldre kök med öppen planlösning mot matrummet. Vid behov av ett tredje sovrum kan man enkelt stänga mellan kök och matrum. Bostaden erbjuder både ett helkaklat badrum och gästtoalett. Lägenheten ligger på mycket bra läge med promenadavstånd till havet, stranden och Lomma centrum.
Rumsbeskrivning: Välkomnande entré med avhängningsmöjligheter. Klinkergolv i entrédelen samt parkettgolv i hall. Från den möblerbara hallen når man bostadens klädkammare.
Till höger från entrén finns bostadens badrum och 2 sovrum. Badrummet är helkaklat och har en rymlig dusch, vask med underskåp, spegelskåp, handduksvärmare samt vägghängd toalett. Mitt emot badrummet når man bostadens första sovrum. Här finns plats för dubbelsäng. Bra förvaringsmöjligheter i garderobsvägg. Fransk balkong med dubbel dörr i svalt norrläge. Stavparkett på golvet. Sovrummet sidan om är också rymligt. Stavparkett på golvet och fönster mot norr. Till vänster om entrén når man först bostadens gästtoalett. Helkaklat i blå ton.Här finns vask samt toalett. Kök med äldre köksinredning och vitvaror. Gott om skåp och lådor för praktisk förvaring. Köket är utrustad med kyl, frys, spis, ugn, fläkt samt diskmaskin. Okänd ålder på vitvarorna. Ljust klinkergolv i köket. Köket har öppen planlösning mot matrummet. ljust och rymligt matrum med plats för stort matrumsbord.
Efter gästtoaletten och köket kommer man in i det ljusa vardagsrummet. Rummet har en trevlig utsikt mot Höjeå, parken och Strandstaden. Rummet är väl tilltaget och erbjuder bra möbleringsalternativ för både soffgrupp och matsalsmöblemang. Parkettgolv i vardagsrummet.
Den inglasade balkongen når vi från vardagsrummet och vetter mot soligt västerläge. Tack vare att balkongen är inglasad går den att utnyttja från tidig vår till sen höst.
Välkomnande entré med avhängningsmöjligheter. Klinkergolv i entrédelen samt parkettgolv i hall. Från den möblerbara hallen når man bostadens klädkammare.
Till höger från entrén finns bostadens badrum och 2 sovrum. Badrummet är helkaklat och har en rymlig dusch, vask med underskåp, spegelskåp, handduksvärmare samt vägghängd toalett. Mitt emot badrummet når man bostadens första sovrum. Här finns plats för dubbelsäng. Bra förvaringsmöjligheter i garderobsvägg. Fransk balkong med dubbel dörr i svalt norrläge. Stavparkett på golvet. Sovrummet sidan om är också rymligt. Stavparkett på golvet och fönster mot norr. Till vänster om entrén når man först bostadens gästtoalett. Helkaklat i blå ton.Här finns vask samt toalett. Kök med äldre köksinredning och vitvaror. Gott om skåp och lådor för praktisk förvaring. Köket är utrustad med kyl, frys, spis, ugn, fläkt samt diskmaskin. Okänd ålder på vitvarorna. Ljust klinkergolv i köket. Köket har öppen planlösning mot matrummet. ljust och rymligt matrum med plats för stort matrumsbord.
Efter gästtoaletten och köket kommer man in i det ljusa vardagsrummet. Rummet har en trevlig utsikt mot Höjeå, parken och Strandstaden. Rummet är väl tilltaget och erbjuder bra möbleringsalternativ för både soffgrupp och matsalsmöblemang. Parkettgolv i vardagsrummet.
Den inglasade balkongen når vi från vardagsrummet och vetter mot soligt västerläge. Tack vare att balkongen är inglasad går den att utnyttja från tidig vår till sen höst.



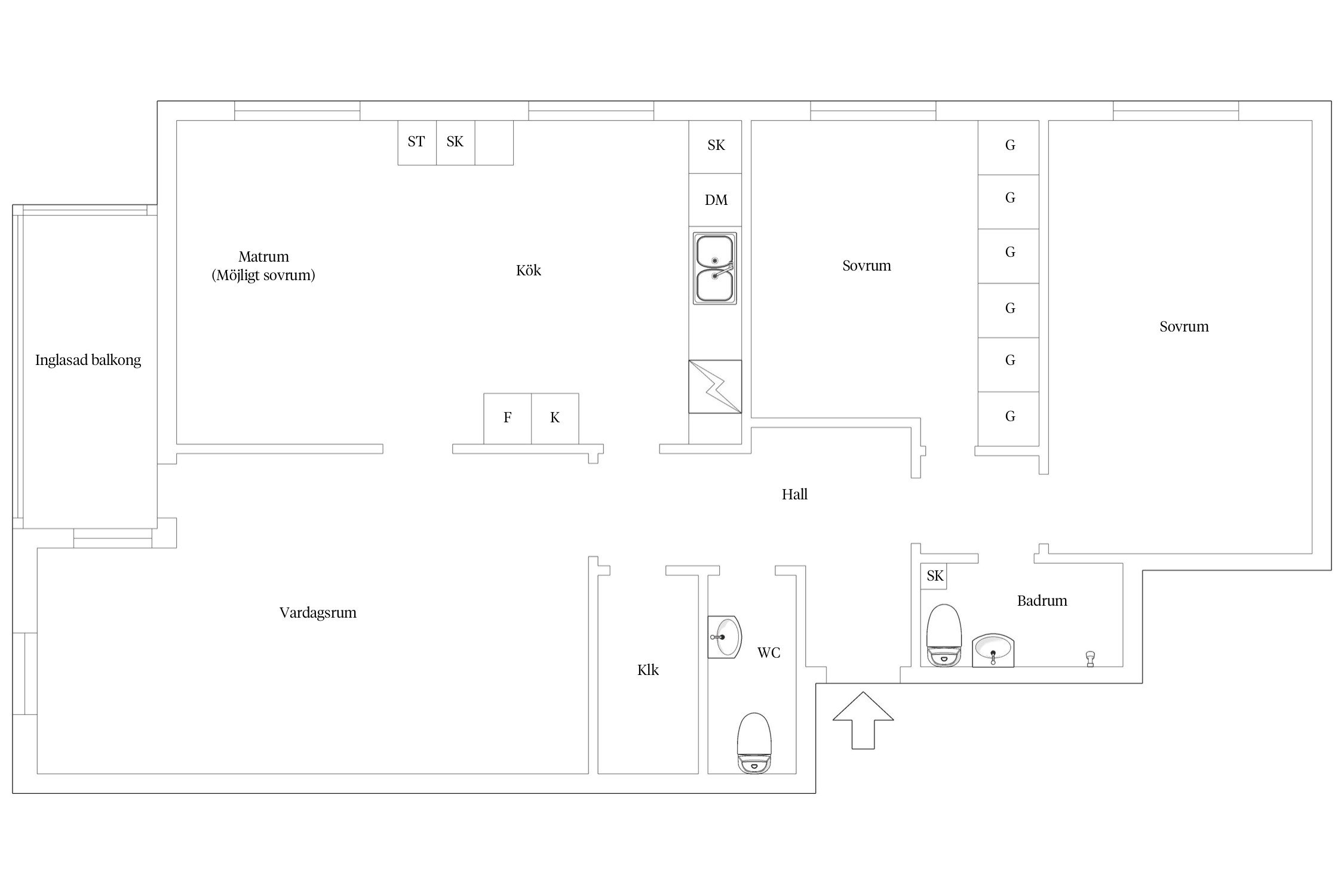
Planskiss
*Våningsplan 4 av 7.
**Enligt bostadsrättsföreningens mäklarbild/utdrag ur lägenhetsregister
Inglasad balkong, läge väster samt Fransk balkong i ett av sovrummen.
Bostadsrättens indirekta nettoskuldsättning baseras på föreningens skulder/lån minus föreningens räntebärande tillgångar och likvida medel. Beräkningen är gjord och baseras enbart på den senaste tillgängliga årsredovisningen. För mer information kontakta ansvarig fastighetsmäklare.
*Betalas av köpare
Föreningen består av 41 lägenheter och 3 bostadsrättslokaler med adresserna Strandvägen 25 och Industrigatan 4 A-H. Föreningens byggnader färdigställdes 1958.
HSB är ekonomisk förvaltare.
Köparen/köparna måste vara medlemmar i HSB Malmö innan beslut om medlemskap i föreningen tas. Ansökan om medlemskap görs på https://blimedlem.hsb.se/. HSB tar ut en avgift för medlemskap.
Föreningen höjde avgiften med 10 % 2026-01-01. I dagsläget finns det inga ytterligare planerade höjningar för 2026. (Kontrollerat 2026-01-26)
Fastigheten är fullvärdesförsäkrad i Länsförsäkringar Skåne. I försäkringen ingår styrelseansvar. Hemförsäkring tecknas och bekostas individuellt av bostadsrättsinnehavarna, kollektivt bostadsrättstillägg ingår i föreningens fastighetsförsäkring.
Utförda renoveringar
2026 Byte av entrépartier
2025 Renovering av tvättstuga, renovering av miljöhus, byte enkelglasfönster till energisnålare alternativ i en lokal
2024 En dräneringspump byttes till en med större kapacitet
2023 Justering av gångytor
2021 Ny komplett fjärrvärmecentral. Ink. pumpar och ventiler. Nytt modernt styrsystem för värmereglering. Nya avstängningsventiler och injustering av radiatorsystem. Nya termostater på radiatorerna. Temperaturgivare monteras i lägenheterna. Ny kulvertledning mellan huskropparna. Nya backventiler på spillvattenledningar.
2020 Tre nya lägenheter tillkom genom omvandling av butikslokalen, antalet parkeringsplatser utökades med tre, antalet förrådsutrymmen utökades genom att utrymmet under låghuset grävdes ur, belysningsstolparna och dess armaturer byttes till energisnålare, väggarmaturer utomhus byttes till energisnålare
2019 Byte av dräneringspumpar, låssystemet ersattes med installation av taggar och porttelefon, nya säkerhetsdörrar sattes in och samtidigt installerades postboxar
2017 Renovering av fasaden
2011/2012 Sophuset blev ombyggt till miljöhus
2011/2012 Torktumlaren blev ersatt med en ny och i torkrummet har en avfuktare installerats
2011/2012 Lekplatsen blev omarbetad till uppehållsyta med marktäckande växter och plattgångar
1999 Vatten och avloppstammar byttes ut då badrummen renoveras i fastigheten. Stammar byttes i badrummen och i köket byttes endast vattenstammarna.
Pågående renovering, beräknas vara klart 2026
Renovering av låghusets loftgång och stålpelare
Byte av skärmtaken vid trapphusentréerna
2026
Renovering av spillvattenledningarna.
Värt att veta är att föreningen tar upp lån för att finansiera dessa. Styrelsen uppdaterar årligen underhållsplanen.
Under 2026/2027
Utredning angående statusen på föreningens starkströmsledningar
Utredning angående statusen på fönstren
(Kontrollerat 2026-01-26)
Föreningen har 20 parkeringsplatser som går att hyra för 125 kr/mån. I dagsläget är det 2 - 3 i kö. Det finns parkeringsmöjligheter på gatorna runtomkring samt på två parkeringar på kommunal mark nära föreningens båda hus utan extra kostnad. 6 offentliga laddplatser för elbil finns på en av de kommunala parkeringarna.
(Kontrollerat 202601-26)
Kabel-TV via Tele2 och bredband via Halebop med en hastighet om 1000/1000 till fastigheten som fördelas till lägenheterna, ingår i månadsavgiften. Dock har ingen av bostadsrättslägenheterna på entréplan kablage för kabel-TV. Man tecknar eget abonnemang med Telia om man vill ha kabel-TV.
Det finns uteplats med möbler.
Det finns ett källarförråd till samtliga lägenheter. Det finns matkällarförråd till större delen av lägenheterna. Det finns en gemensam tvättstuga källaren.
Lägenheter 46 och 47 på entréplan har allmän nyttjanderätt av uteplats/terrass. De kan placera stolar, bord och avgränsare mellan sig och åt sidorna så länge de håller sig under takutsprånget, det är vårdat och att andra medlemmar upplever att de fritt kan passera och är välkomna.
Information som berör föreningen är inhämtad via årsredovisning, stadgar och kontakt med föreningen. Avvikelser kan förekomma och som köpare uppmanas du att själv kontrollera samtliga uppgifter, framförallt om något är av extra stor betydelse för dig som köpare.
Lomma är en tätort i Lomma kommun. Eftersom Lomma ligger vid mynningen till Höje å blev det redan under 1600-talet en naturlig plats för tull, omlastning och handel. Lomma är en blomstrande sommarort som speciellt under semestermånaderna drar mycket folk från de kringliggande kommunerna.
Varje sommar hålls en uppskattad folkfest i centrala Lomma med marknad, uppträdanden, tivoli, långlördag, utställningar, veteran- och sportbilsutställning, hantverksmässa, ponnyridning, konserter och mycket mer. För den som vill bada finns fina sandstränder och välskötta badplatser.
I Lomma centrum finns restauranger, fiskbod, bibliotek samt annan service som banker, apotek, vårdcentral, mataffärer och gym. Med en kort bil- eller bussresa kan du ta dig till större shoppingcenter som Burlövs Center och Nova Lund.
Landskapet i Lomma kommun är övervägande flackt och naturen präglas av det öppna landskapet och havet. Vacker natur finns framförallt i anslutning till stranden som till exempel området kring mynningen vid Lödde å och Alnarps ängar. Det kommunala naturreservatet Slättängsdammarna anses ha ett stort biologiskt och kulturhistoriskt värde. Tallplanteringarna Habo fure och Kyrkfuret bildar tillsammans ett större rekreationsområde med skogskänsla.
Alnarp är en mindre ort i Lomma kommun som också är säte för Sveriges lantbruksuniversitet, SLU. Här finns även den fantastiskt vackra botaniska trädgården i Alnarpsparken samt Alnarps slott som byggdes 1862. Området ligger som en grön oas mitt i det skånska landskapet. Strax intill ligger Alnarpsgården med lantbruksmuseum och undervisningslokaler. Nära byn ligger Alnarps restaurang, som förutom lunch och á la carte även erbjuder en mängd trevliga och uppskattade events som ostprovningar, temaveckor och studentfirande. Från Lomma går flera olika busslinjer och tåg, så att du lätt kan pendla till både Malmö och Lund.
Vill du köpa, sälja eller värdera bostad i centrala Lomma? Välkommen att kontakta Bjurfors mäklare i Lomma. Passa också på att anmäla dig till vår kostnadsfria söktjänst Boagenten som hjälper dig att hitta ditt drömboende.
Kontakta mäklaren om du behöver hjälp att ta fram en boendekalkyl.
När du köper din bostad genom Bjurfors kan du ansöka om bolån till en förmånlig ränta hos våra banksamarbetspartners Söderberg & Partners och SEB.
Bokad visning.
Ansvarig mäklare