-
Köpa
Köpa -
Sälja
Sälja - Hitta bostad
- Skapa bevakning
- Hitta mäklare
Stenhus på lugnt och attraktivt läge intill Höjeå i Lommas hamnkvarter.
Lomma - Grändhusen, Lomma
*Areauppgifter enligt taxeringsinformationen
Bokad visning.
På Förhand ligger bostäder som av olika anledningar inte är ute till försäljning just nu men som kan komma att säljas om förutsättningarna är rätt.
Välkommen till detta tilltalande stenhus med välplanerade kvadratmeter och exklusiva materialval. Belägen i charmiga kvarter längs Lomma hamn och ån.
Välkommen till ett stilfullt och inbjudande stenhus där ljus, rymd och livskvalitet står i centrum, beläget i ett av Strandstadens mest rofyllda och eftertraktade kvarter.
Här möts du av ett hem med en harmonisk och genomtänkt atmosfär där varje detalj bidrar till en hög boendekvalitet. Entréplanet bjuder på generösa sällskapsytor med ett socialt kök och ett luftigt vardagsrum där braskaminen skapar både värme och trivsel. De stora fönsterpartierna i varierande format och väderstreck ger ett fantastiskt ljusinsläpp och erbjuder en vacker vy mot kanal och båtplatser. Härifrån nås även den härliga uteplatsen och den grönskande trädgården, en naturlig förlängning av hemmet under årets varmare månader.
Övre plan erbjuder idag två rymliga sovrum och ett stort allrum, en perfekt plats för familjens umgänge eller avkoppling. För den som önskar finns goda möjligheter att enkelt skapa upp till fyra sovrum samt ett mindre allrum, vilket gör huset flexibelt och anpassningsbart efter livets olika skeden.
Trädgården är en privat oas med två soliga uteplatser, ett stilrent trädäck samt en generös stenlagd yta med exklusiva granitplattor. Här finns både markis och infravärme som förlänger utesäsongen och skapar en trivsam miljö från tidig vår till sen höst.
Läget är svårslaget, på en av de lugnaste gatorna i charmiga Strandstaden, med närhet till allt som gör livet enkelt och njutbart. Här bor du med gångavstånd till Lomma centrum, stranden, småbåtshamnen, restauranger, butiker, tågstation, bibliotek, vård och vackra naturreservat. Inte minst erbjuder det populära promenadstråket längs Höje å fantastiska möjligheter till rekreation.
För barnfamiljen är detta ett optimalt boende med både förskola och skola på bekvämt avstånd i en trygg och levande miljö.
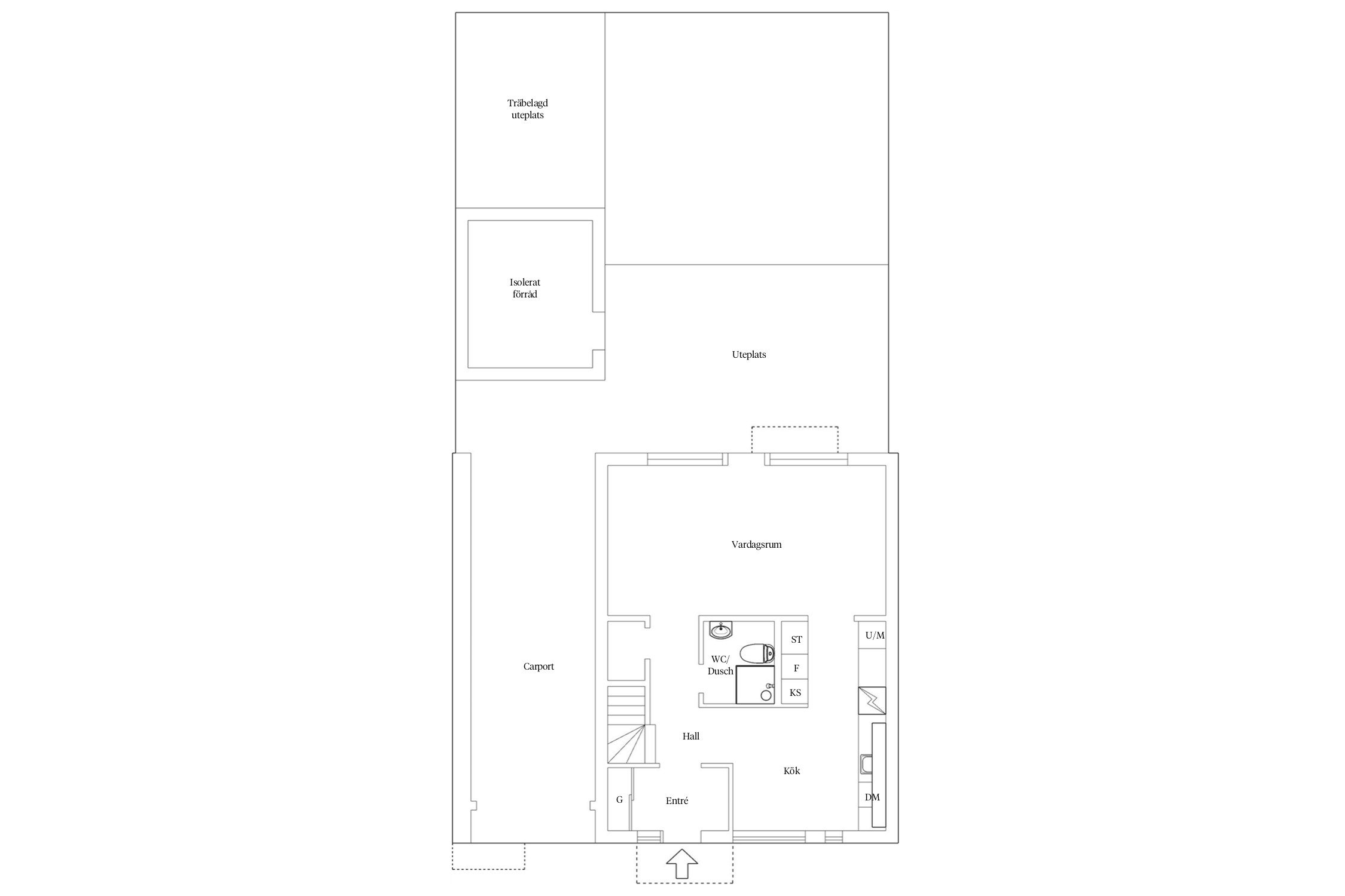
På fastigheten finns även carport med plats för två bilar, utrustad med en elbilsladdare, samt ett välisolerat förråd som ger goda förvaringsmöjligheter.
Välkommen på visning!
Hela entréplan har vattenburen golvvärme och övre plan har vattenburna radiatorer.
Enstavs ekparkettgolv i samtliga vistelserum i huset.
Entréplan
Välkomnande och rymlig hall med praktiskt och snyggt klinkergolv i modern mörkgrå ton. Inbyggd garderob med skjutdörrar för bra avhängning av ytterkläder.
Exklusivt kök från HTH med mattborstad granitbänkskiva i svart ton. Kökets utrustning består av induktionshäll, fläkt, kyl och frys, integrerad diskmaskin, inbyggd varmluftsugn, inbyggd mikrovågsugn. Samtliga vitvaror från Siemens och 2011 förutom diskmaskinen som är från 2023.
Vardagsrummet rymmer både plats för soffa och matsalsmöblemang. Ljuset i rummet är något utöver det vanliga, ljuset flödar in från de stora fönsterpartierna som går från golv till tak. Utgång till den trevliga trädgården och den generösa uteplatsen i soligt söderläge. Mysigt med braskamin i vardagsrummet.
Helkaklat badrum med klinker i svart ton på golv med golvvärme och vitt kakel på väggarna. Dusch med infällbara duschväggar från INR, wc, spegelskåp, handdukstork, samt handfat med underskåp. Spotlights i taket.
Övre Plan
Övre plan är mycket rymligt och fördelas idag på ett stort allrum på hela 35 kvm , två bra sovrum, klädkammare samt badrum med separat tvättstuga. Trevligt burspråk i allrummet och i ett av sovrummen. Ett av sovrummen har egen rymlig klädkammare. Vid behov kan man med lätthet få till fyra bra sovrum samt ett mindre allrum, se alternativ planlösning.
Stort helkaklat badrum med klinker i beige ton, vitt kakel på väggarna. Separat dusch, badkar, handdukstork, wc, stort handfat med underskåp samt spegelskåp.
Tvättstugan ligger praktiskt innanför badrummet och har klinker i grå/beige ton på golvet och vita väggar. Bra förvaringsskåp med ljusa luckor, arbetsbänk och tvättho. Tvättmaskin och torktumlare från Siemens från 2011.



Entréplan
Övre plan
Lomma 25:72
*Areauppgifter enligt taxeringsinformationen
2026: Ommålning av fasad (maj månad).
2020: Stenläggning terass granitplattor med inramning av gatsten. Ny gräsmatta.
2018: Trädäck uteplats 2.
2016: Solskydd/Terassmarkis 6,0x3,5 Värmare
Isolerat förrådom 10, 5 kvm.
Stor stensatt uteplats med granitplattor samt trädäck, båda uteplatserna i soligt söderläge.
Kommunalt vatten, Kommunalt avlopp.
Insynsskyddad trädgård i soligt söderläge med staket, gräsmatta och odlingslådor.
Integrerad carport med plats för två bilar. Elbilsladdare för en bil.
Detaljplan (2005-12-15)
Gemensamhetsanläggning: Lomma lomma ga:43 ändamål: Kvartersanläggning
Samfällighet: Lomma lomma s:72
Telia
Telia 150/150
I samfällighetsavgiften ingår det kostnad för renhållning.
Det finns 1 st pantbrev uttaget om sammanlagt 3 600 000 kr
Lomma är en tätort i Lomma kommun. Eftersom Lomma ligger vid mynningen till Höje å blev det redan under 1600-talet en naturlig plats för tull, omlastning och handel. Lomma är en blomstrande sommarort som speciellt under semestermånaderna drar mycket folk från de kringliggande kommunerna.
Varje sommar hålls en uppskattad folkfest i centrala Lomma med marknad, uppträdanden, tivoli, långlördag, utställningar, veteran- och sportbilsutställning, hantverksmässa, ponnyridning, konserter och mycket mer. För den som vill bada finns fina sandstränder och välskötta badplatser.
I Lomma centrum finns restauranger, fiskbod, bibliotek samt annan service som banker, apotek, vårdcentral, mataffärer och gym. Med en kort bil- eller bussresa kan du ta dig till större shoppingcenter som Burlövs Center och Nova Lund.
Landskapet i Lomma kommun är övervägande flackt och naturen präglas av det öppna landskapet och havet. Vacker natur finns framförallt i anslutning till stranden som till exempel området kring mynningen vid Lödde å och Alnarps ängar. Det kommunala naturreservatet Slättängsdammarna anses ha ett stort biologiskt och kulturhistoriskt värde. Tallplanteringarna Habo fure och Kyrkfuret bildar tillsammans ett större rekreationsområde med skogskänsla.
Alnarp är en mindre ort i Lomma kommun som också är säte för Sveriges lantbruksuniversitet, SLU. Här finns även den fantastiskt vackra botaniska trädgården i Alnarpsparken samt Alnarps slott som byggdes 1862. Området ligger som en grön oas mitt i det skånska landskapet. Strax intill ligger Alnarpsgården med lantbruksmuseum och undervisningslokaler. Nära byn ligger Alnarps restaurang, som förutom lunch och á la carte även erbjuder en mängd trevliga och uppskattade events som ostprovningar, temaveckor och studentfirande. Från Lomma går flera olika busslinjer och tåg, så att du lätt kan pendla till både Malmö och Lund.
Vill du köpa, sälja eller värdera bostad i Lomma - Brohus? Välkommen att kontakta Bjurfors mäklare i Lomma. Passa också på att anmäla dig till vår kostnadsfria söktjänst Boagenten som hjälper dig att hitta ditt drömboende.
Kontakta mäklaren om du behöver hjälp att ta fram en boendekalkyl.
När du köper din bostad genom Bjurfors kan du ansöka om bolån till en förmånlig ränta hos våra banksamarbetspartners Söderberg & Partners och SEB.
Bokad visning.
Ansvarig mäklare